KE-3020_KE-3020R-Rev07PDFA - 第10页
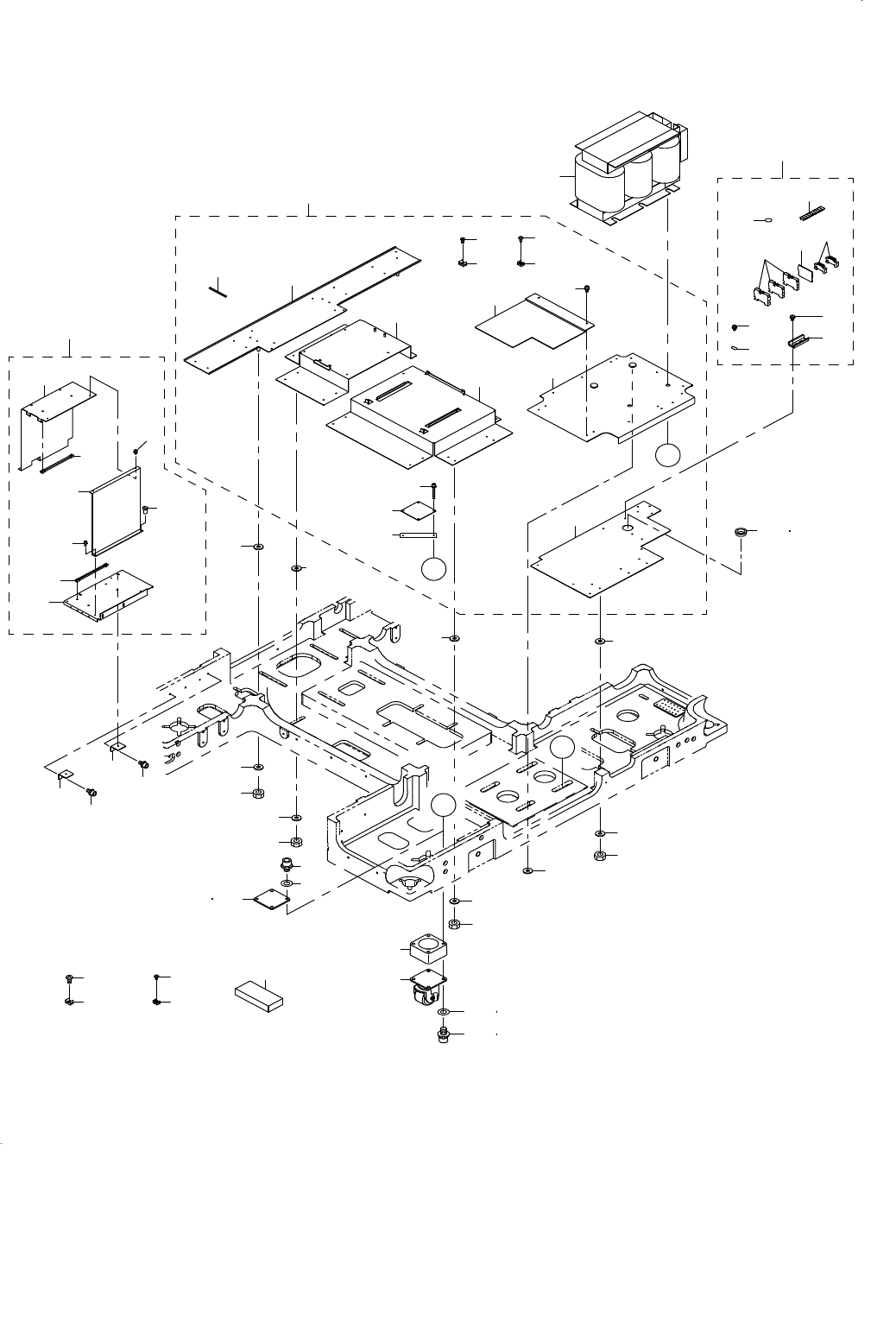
- 3 - 2. BASE FRAME COMPONENTS(2) ベースフレーム関係(2) 8 25 21 22 26 19 20 23 24 38 49 2 5 4 3 7 9 9 11 14 15 16 16 16 16 16 16 16 16 17 16 17 17 17 27 29 28 32 35 36 31 37 37 29 28 30 39 40 41 42 43 A A 45 46 50 12 13 47 53 48 …

- 2 -
NOTE( 注記 ) #01....FOR EN EN 用
#02....OPTIONAL PARTS オプション部品
REF.NO NOTE PART NO D E S C R I P T I O N
品 名
Qty
1 EA-9500B01-00 CABLE BAND
束線バンド
50
2 EA-9500B02-00 CABLE BAND 150
結束バンド 150
120
3 HX-0006500-0B CABLE BAND
束線バンド
50
4 HX-0006500-0C CABLE BAND
束線バンド
5
5 PS-0500142-KP SPRING PIN
スプリングピン
4
6 E1035-729-000 ADJUSTER FOOT
アジャストフット
4
7 400-00519 BASEFRAME NUT
ベースフレームナット
4
8 E1044-729-000-A ADJUSTER NUT 36
アジャスタナット 36
4
9 400-00403 ADJUST BOLT
アジャストボルト
4
10 SM-6126002-TN SCREW M12 L=60
六角穴ボルト M12 L=60
12
11 WS-1220002-KN SPRING WASHER
ばね座金
28
12 WP-1302500-SC WASHER
平座金 小形丸 M12
12
13 SM-6083002-TN SCREW M8 L=30
六角穴ボルト M8 L=30
24
14 NM-6080002-SC NUT M8
六角ナット M8 2種
12
15 SM-6124502-TN BOLT M12 L=45
六角穴ボルト M12 L=45
16
16 WP-1302501-SC WASHER 13X24X2.5
平座金 13X24X2.5
16
17 PS-0500142-KP SPRING PIN
スプリングピン
3
18 PS-0400122-KP SPRING PIN
スプリングピン
14
19 HX-0033900-0F SPACER
スペーサ
16
20 SM-3040652-TN SCREW M4 L=6
丸ねじ M4 L=6
16
21 400-94744 HOLE_COVER_ASSY
ホールカバー組
1
22 400-94549 HOLE_COVER
ホールカバー
(3)
23 400-94739 HOLE_COVER_COPLA
ホールカバーコプラ
(1)
24 SL-6041292-TN SCREW
座金付き六角穴ボルト
(12)
25 SL-6061292-TN SCREW
座金付き六角穴ボルト
(4)
26 400-94480 FAN_BR
ファンブラケット
8
27 400-92440 BASIC FAN ASM
ファン組
8
28 SL-4033591-SC SCREW M3X35
セムスねじ
16
29 WP-0320501-SC WASHER M3
平座金 3.2X7X0.5
16
30 NM-6030001-SC NUT M3X0.5 TYPE1
六角ナット M3X0.5 1種
16
31 400-94716 SMEMA BR ASSY
スメマブラケット組
1
32 400-94462 IF_PANEL_L
IFパネル_L
(1)
33 SL-4030881-SC SCREW M3 L=8
座金付きなべ小ねじ M3 L=8
(4)
34 400-92554 SMEMA IN CABLE ASM
スメマ INケーブル組
(1)
35 SL-6061292-TN SCREW
座金付き六角穴ボルト
2
36
#01
HK-0429901-4A CAP
キャップ
1
37 400-94717 MTC I/F PANEL R ASM
MTC I/Fパネル_R組
1
38 400-94419 IF_PANEL_R
IFパネル_R
(1)
39 401-06608 POWER LAMP 200V CABLE ASM
パワーランプ200V束線組
(1)
40 401-06609 POWER LAMP 400V CABLE ASM
パワーランプ400V束線組
(1)
41 HK-0651200-80 MODULAR KAPLA
モジュラーカプラ
(1)
42 PJ-2300062-00 UNION
隔壁用ユニオン
(1)
43 PX-9500010-00 PLUG
止栓
(1)
44 E1026-729-000 SMEMA LIGHT ANGLE L
スメマライトアングル L
(1)
45 SL-6030692-TN SCREW M3 L=6
座金付き六角穴ボルト M3 L=6
(4)
46 400-92555 SMEMA OUT CABLE ASM
スメマ OUTケーブル組
(1)
47 SL-4030881-SC SCREW M3 L=8
座金付きなべ小ねじ M3 L=8
(8)
48 400-02063 MTC POWER WIRE R ASM
MTC(R)電源ケーブル組
(1)
49 SM-4860501-SB SCREW M2.5 L=5
なべねじ M2.6 L=5
(2)
50 400-46641 USB BOX
USBボックス
(1)
51 400-46640 USB BRACKET
USBブラケット
(1)
52 400-44522 USB RELAY CABLE
USB延長ケーブル
(2)
53 SL-6030692-TN SCREW M3 L=6
座金付き六角穴ボルト M3 L=6
(4)
54 SL-6061292-TN SCREW
座金付き六角穴ボルト
4
55 400-94718 MTS IF PANEL-L ASSY
MTS_IFパネル_L組
1
56 400-92439 MTC PWR WIRE L ASM
MTC 電源 L ケーブル組
(1)
57 SL-4030881-SC SCREW M3 L=8
座金付きなべ小ねじ M3 L=8
(4)
58 PJ-2300062-00 UNION
隔壁用ユニオン
(1)
59 PX-9500010-00 PLUG
止栓
(1)
60 SM-4860501-SB SCREW M2.5 L=5
なべねじ M2.6 L=5
(2)
61 400-94420 MTS_IF_PANEL
MTS_IFパネル
(1)
62 SL-3061232-TN SCREW
座金付き丸ねじ M6 L=12
4
63 400-52570 BASE RUBBER
ベースラバー
2
64 400-94482 FAN_FIX_BR_R
ファン固定ブラケット
1
65 HM-0003300-20 FINGER GUARD
フィンガーガード
2
66 E1038-871-000 PLATEN LOCK CAM SCREW
プラテン ロックカム スクリュウ
1
67 SL-6040892-TN BOLT
座金付き六角穴ボルト
1
68 400-94463 CEILING_COVER
シーリングカバー
1
69 SL-6041492-TN SCREW
座金付き六角穴ボルト
5
70 HX-0002400-0A CLAMP
クランプ
1
71 HX-0002400-0D CLAMP
クランプ
1
72 400-94464 CABLE_SUPPORT_BR
ケーブルサポートブラケット
1
73 SL-6040892-TN BOLT
座金付き六角穴ボルト
3
74 400-94483 BANK_PCB_BR
バンクPCBブラケット
2
75 400-66568 BANK PCB ASM
バンク基板組
2
76 SL-4030691-SC SCREW M3 L=6
座金付きなべ小ねじ M3 L=6
16
77
#02
E6600-729-000 ADJUST FOOT N
アジャストフットN
4
78
#02
SM-6082502-TN BOLT
六角穴ボルト
12
79
#02
400-13306 FLICTION PLATE
フリクションプレート
12
80
#02
SM-1030801-SC SCREW M3 L=8
皿小ねじ M3X0.5 L=8
36
81
#02
400-13307 FP PUSHER
FPプッシャ
12
82
#02
NM-6080001-SC NUT M8X1.25
六角ナット M8 1種
12
83
#01
400-00535 BASEFRAME NUT(EN)
ベースフレームナット(EN)
4
84
#01
400-00404 ADJUST BOLT(EN)
アジャストボルト(EN)
4
85
#01
HK-0429900-7A CAP
キャップ
2
86
#01
HK-0429901-4A CAP
キャップ
1
87
#01
HK-0528905-0B DUST COVER
ダストカバー
1
88 400-94480 FAN_BR
ファンブラケット
1
89 400-92440 BASIC FAN ASM
ファン組
1
90 SL-4033591-SC SCREW M3X35
セムスねじ
2
91 WP-0320501-SC WASHER M3
平座金 3.2X7X0.5
2
92 NM-6030001-SC NUT M3X0.5 TYPE1
六角ナット M3X0.5 1種
2
93 SL-4040891-SC SCREW M4 L=8
座金付きなべ小ねじ M4 L=8
2

- 3 -
2. BASE FRAME COMPONENTS(2)
ベースフレーム関係(2)
8
25
21
22
26
19
20
23
24
38
49
2
5
4
3
7
9
9
11
14
15
16
16
16
16
16
16
16
16
17
16
17
17
17
27
29
28
32
35
36
31
37
37
29
28
30
39
40
41
42
43
A
A
45
46
50
12
13
47
53
48
54
44
33
18
1
B
B
34
10
52
48
6
51

- 4 -
NOTE( 注記 ) #01....FOR EN,ST(950MM OPTIONAL PARTS) EN,ST(950 MM オプション部品)用
#02....OPTIONAL PARTS オプション部品
#03....FOR ST(OPTIONAL PARTS) ST(オプション部品)用
#04....FOR EN EN 用
REF.NO NOTE PART NO D E S C R I P T I O N
品 名
Qty
1 400-94703 BASE PLATE ASSY 3020
ベースプレート組_3020
1
2 400-94377 BASE_PLATE_L_L
ベースプレート_L_L
(1)
3 400-94378 BASE_PLATE_CL_L
ベースプレート_CL_L
(1)
4 400-94379 BASE_PLATE_CR_L
ベースプレート_CR_L
(1)
5 400-94380 BASE_PLATE_TRANS_L
ベースプレートトランス_L
(1)
6 400-94381 BASE_PLATE_RR_L
ベースプレート_RR_L
(1)
7 HX-0055700-00 TIE MOUNT
タイマウント
(6)
8 HX-0029400-00 FIXED BASE
固定ベース
(8)
9 SM-4040801-SC SCREW M4X0.7 L=8
なべ小ねじ M4X0.7 L=8
(14)
10 400-98141 BASE_PLATE_FR_L
ベースプレートFR_L
(1)
11 SL-6040892-TN BOLT
座金付き六角穴ボルト
(2)
12 400-94549 HOLE_COVER
ホールカバー
(4)
13 400-98142 CH_NUT_PLATE
CH_ナットプレート
(4)
14 SL-6043092-TN BOLT
座金付き六角穴ボルト
(8)
15 HX-0066900-0A GROMMET
グロメット
(0.07)
16 400-94475 BP WASHER
BP_ワッシャー
38
17 NM-6100001-SC NUT M10X1.5
六角ナット M10 1種
18
18 400-01555 INPUT TERMINAL ASSY
入力端子台組
1
19 HK-0694900-00 BLOCK TERMINAL
ブロックターミナル
(1)
20 HK-0694500-10 BLOCK TERMINAL
ブロックターミナル
(3)
21 400-00530 CARRIER RAIL 75
キャリアレール 75
(1)
22 SL-4040891-SC SCREW M4 L=8
座金付きなべ小ねじ M4 L=8
(2)
23 HK-0691900-0B BLOCK TERMINAL
ブロックターミナル
(2)
24 HK-0694900-0A BLOCK TERMINAL
ブロックターミナル
(1)
25 100-04109 GROUND MARK
グランドマーク
(2)
26 CM-2001000-01 PE MARK LABEL
PEマークシール
(1)
27 SL-4040891-SC SCREW M4 L=8
座金付きなべ小ねじ M4 L=8
(1)
28 400-94471 BASE_SUPPORT
ベースサポート
2
29 SL-6061292-TN SCREW
座金付き六角穴ボルト
2
30 400-94734 PCB_BOX_UNIT
PCB_ボックスユニット
1
31 400-94465 PCB_BASE
ベース
(1)
32 400-94467 PCB_COVER_L
PCBカバー_L
(1)
33 400-94466 PCB_COVER_R
PCBカバー_R
(1)
34 SL-6030692-TN SCREW M3 L=6
座金付き六角穴ボルト M3 L=6
(2)
35 E1038-871-000 PLATEN LOCK CAM SCREW
プラテン ロックカム スクリュウ
(2)
36 SL-6030892-TN SCREW M3 L=8
座金付き六角穴ボルト M3 L=8
(2)
37 HX-0002600-0A BASE PARTS
基板パーツ
(4)
38 HX-0018800-0F CORD BUSH
コードブッシュ
1
39 HX-0055700-00 TIE MOUNT
タイマウント
6
40 SM-4061201-SC SCREW M6 L=12
なべ小ねじ M6 L=12
6
41 400-80833 SPONGE
スポンジ
16
42 HX-0029400-00 FIXED BASE
固定ベース
33
43 SM-4040601-SC SCREW M4X0.7 L=6
なべ小ねじ M4X0.7 L=6
33
44 400-71184 TRANSFOMER
トランス
1
45
#02
400-94543 CASTER_3020
キャスター3020
4
46
#03
400-94544 CASTER_PLATE
キャスタープレート
4
47
#01
SL-6102042-TN SCREW
座金付き六角穴ボルト
16
48
#01
WP-1052001-SC WASHER 10,5X21X2
平座金みがき丸 M10
32
49
#04
HX-0057900-00 PERFECT ROCK
パーフェクトロック
1
50
#01
400-94545 CASTER_PLATE_EN
キャスタープレート_EN
4
51
#01
400-00406 CASTER SPACER(EN)
キャスタースペーサ(EN)
4
52
#01
SL-6104042-TN BOLT
座金付き六角穴ボルト
16
53
#03
SL-6103542-TN SCREW M10 L=35
座金付き六角穴ボルト M10L=35
16
54
#03
WP-1052001-SC WASHER 10,5X21X2
平座金みがき丸 M10
16