KE-3020_KE-3020R-Rev07PDFA - 第103页
- 96 - NOTE( 注記 ) *INSTALLATION POSITION AN D DIRECTION VARY IF THE PWB TRANSFER REFERENCE IS DIFFE RENT. 基板搬送基準が異なると取付位置、方向が変わります。 REF.NO NOTE PART NO D E S C R I P T I O N 品 名 Qty 1 400-9816 1 CONVEYOR_RAIL_F_A SM_XL コ…

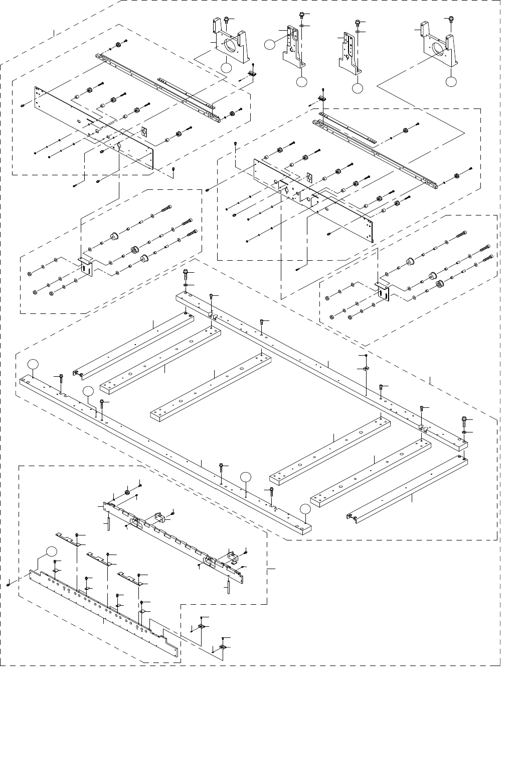
- 95 -
48.PWB CONVEYOR COMPONENTS(12)(TYPE XL)
基板搬送関係(12)(XL 仕様)
1
7
11
9
13
14
33
33
23
19
26
18
34
A
A
C
D
B
25
21
21
23
19
26
3
3
22
27
35
37
36
25
24
27
24
30
38
32
12
C
5
6
5
6
6
6
10
8
8
8
8
10
10
10
2
4
7
4
D
32
B
24
25
16
25
25
17
17
25
31
30
38
31
20
25
16
15
E
E
28
29

- 96 -
NOTE( 注記 ) *INSTALLATION POSITION AND DIRECTION VARY IF THE PWB TRANSFER
REFERENCE IS DIFFERENT.
基板搬送基準が異なると取付位置、方向が変わります。
REF.NO NOTE PART NO D E S C R I P T I O N
品 名
Qty
1 400-98161 CONVEYOR_RAIL_F_ASM_XL
コンベアレールF組XL
1
2 400-98162 BASE_BAR_ASM_XL
ベースバー組XL
(1)
3 400-98113 BASE_BAR_XL
ベースバー_XL
(2)
4 WS-0820002-KN SPRING WASHER M8
ばね座金 M8
(8)
5 400-98114 BASE_BAR_S_XL
ベースバーS_XL
(2)
6 400-98112 BASE_BAR_SS_XL
ベースバーSS_XL
(4)
7 SM-6084002-TN SCREW M8 L=40
六角穴ボルト M8 L=40
(8)
8 SL-6063592-TN SCREW
座金付き六角穴ボルトM6 L=35
(8)
9 HX-0029400-00 FIXED BASE
固定ベース
(4)
10 SL-6061642-TN BOLT
座金付き六角穴ボルト
(8)
11 SM-4040601-SC SCREW M4X0.7 L=6
なべ小ねじ M4X0.7 L=6
(4)
12 400-00802 RAIL STAND CL
レールスタンド CL
(1)
13 SL-6052092-TN SCREW
座金付き六角穴ボルト
(2)
14 400-00805 RAIL STAND CR
レールスタンド CR
(1)
15 400-98165 CONVEYOR_RAIL_FC_ASM_XL
コンベアレールFC組XL
(1)
16 401-22129 PWB_GUIDE_PLATE_RA_EPV
PWB_ガイドプレートRA_EPV
(2)
17 401-22131 PWB_GUIDE_PLATE_RB_EPV
PWB_ガイドプレートRB_EPV
(4)
18 SM-4040855-SC SCREW
なべ小ねじ M4 L=8
(4)
19 E4105-729-0A0 SHAFT SUPPORT B ASM.
シャフトサポート組
(2)
20 400-98121 RAIL_GUIDE_F_XL
レールガイドF_XL
(1)
21 SM-8030302-TP SCREW M3X0.5 L=3
止めねじ M3X0.5 L=3
(2)
22 400-98123 CONVEYOR_RAIL_FC_XL
コンベアレールFC_XL
(1)
23 SL-6041092-TN SCREW
座金付き六角穴ボルト
(4)
24 401-22128 PWB_GUIDE_PLATE_F_EPV
PWB_ガイドプレートF_EPV
(3)
25 SL-6030892-TN SCREW M3 L=8
座金付き六角穴ボルト M3 L=8
(15)
26 400-00812 RAIL GUIDE SHAFT
レールガイドシャフト
(2)
27 SM-8040602-TP SCREW M4X0.7 L=6
止めねじ
(2)
28 E2111-715-0A0 CONVEYOR PULLEY ASM.
搬送プーリ(組)
(4)
29 WP-0430800-SC WASHER M4
平座金小形丸 M4
(4)
30 400-93923 FIBER_HOLDER
ファイバーホルダ
(2)
31 SM-8030802-TP SCREW M3X0.5 L=8
止めねじ
(2)
32 400-30408 RAIL STAND F
レールスタンドF
(2)
33 SL-6052092-TN SCREW
座金付き六角穴ボルト
(4)
34 SL-6041292-TN SCREW
座金付き六角穴ボルト
(4)
35 WP-0501046-SC WASHER 5 X 14 X 1
平座金 5X14X1
(2)
36 WP-0501046-SC WASHER 5 X 14 X 1
平座金 5X14X1
(2)
37 SL-6052092-TN SCREW
座金付き六角穴ボルト
(2)
38 SM-1031001-SC SCREW M3X0.5 L=10
皿小ねじ M3X0.5 L=10
(4)

- 97 -
49.PWB CONVEYOR COMPONENTS(13)(TYPE XL)
基板搬送関係(13)(XL 仕様)
A
A
C
D
B
C
D
B
7
11
13
12
14
16
11
13
12
28
30
29
15
61
23
11
13
12
1
28
30
29
28
30
29
33
31
41
49
43
44
49
48
47
42
49
46
43
11
13
12
48
32
20
18
19
60
38
37
22
15
40
3
5
14
16
21
6
4
10
8
9
8
10
17
26
27
25
26
27
25
28
30
29
28
30
29
24
31
32
33
32
33
31
29
28
30
36
E
E
39
35
62
62
42
41
49
41
49
42
43
45
46
47
47
47
47
47
48
49
49
49
49
59
57
52
55
53
57
54
56
56
55
51
57
58
52
56
50
54
51
59
57
59
57
51
52
55
55
55
55
57
57
57
57
9
34