00198720-01_UM_X-Serie-S_ET - 第215页
Kasutusjuhend SIPLACE X-seeria S 4 Ülesseadmine ja käikuvõtmine Alates tarkvaraversioonist 713.0 Väl jaanne 11/2019 4.3 Ladumismasina ülespanek 215 4.3.7.1 Masina jalgade vahekaugused trükkplaadi topeltkonveierist 4 Jn 4…

4 Ülesseadmine ja käikuvõtmine Kasutusjuhend SIPLACE X-seeria S
4.3 Ladumismasina ülespanek Alates tarkvaraversioonist 713.0 Väljaanne 11/2019
214
4.3.7 Masinajalgade ja trükkplaadikonveieri statsionaarsete servade vahekaugu-
sed
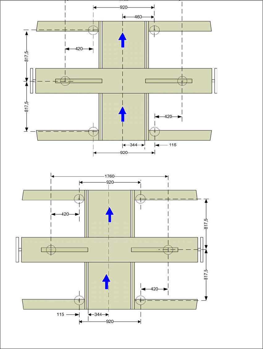
Masinajalgade vahekaugused trükkplaatide üksikkonveieri puhul
4
Jn 4.3 - 8 Masinajalgade vahekaugused trükkplaatide üksikkonveieri puhul millimeetrites
Liikumatu konveieri pool maksi-
maalses parempoolses asendis
a
.
a) Väärtus oleneb liikumatu poole asendist. Kõik mõõtmed millimeetrites.
Liikumatu konveieri pool maksi-
maalses vasakpoolses asendis
a
.

Kasutusjuhend SIPLACE X-seeria S 4 Ülesseadmine ja käikuvõtmine
Alates tarkvaraversioonist 713.0 Väljaanne 11/2019 4.3 Ladumismasina ülespanek
215
4.3.7.1 Masina jalgade vahekaugused trükkplaadi topeltkonveierist
4
Jn 4.3 - 9 Masinajalgade vahekaugused trükkplaatide kaksikkonveieri puhul millimeetrites
Liikumatu konveieri pool mak-
simaalses parempoolses
asendis
a
.
a) Väärtus oleneb liikumatu poole asendist. Kõik mõõtmed milli-
meetrites.
Liikumatu konveieri pool maksi-
maalses vasakpoolses asendis
a
.

4 Ülesseadmine ja käikuvõtmine Kasutusjuhend SIPLACE X-seeria S
4.3 Ladumismasina ülespanek Alates tarkvaraversioonist 713.0 Väljaanne 11/2019
216
4.3.8 Ladumismasina integreerimine tootmisliini
Järgige üldisi hoiatusjuhiseid lõigus 4.3.1, lk 202.
Järgige ladumismasina transpordihoiatusi jaotises 4.3.2, lk 203.
Tööriistade ja abivahendite kohta leiate teavet lõigust 4.3.5, lk 206.
4.3.8.1 Ladumismasina väljajoondamine ja seadistamine tootmisliinil
Tõstke ladumismasinat kahveltõstukiga üles, kuni masinajalad on koormusest vabastatud.
Määrake kindlaks ladumismasina trükkplaadikonveieri kõrgus ja seadke toomisliin kuuskant-
kruviga ligikaudse kõrguse peale.
Monteerige vajadusel vastava trükkplaadikõrguse masinajalad (vt 4.3.6 lk 207).
Paigutage ladumismasin kahveltõstuki abil tootmisliini vabasse kohta.
Jälgige seejuures trükkplaadikonveierite sirget väljajoondust ja kontrollige vahekaugust eel-
neva ladumismasinani.
4
4
Joondage ladumismasin X- ja Y-telje suunas, kasutades masina vesiloodi.
Asetage masina vesilood 1. ladumisalas X- ja Y-telje suunas konveierile (vt joonis 4.3 - 10).
Trükkplaadikonveieri laius on lähtestatud:
Üksikkonveier 210 mm
Kaksikkonveier, liin 1 100 mm
Kaksikkonveier, liin 2 210 mm 4
4
Mõõtke ära kaugus trükkplaadikonveieri lindi ülemise serva ja alumise serva vahel. Vahemaa
peab olema 900 mm, 930 mm või 950 mm.
HOIATUS
Kahjustusoht!
Kui masinajalad põrkavad ühel küljel tugevasti vastu põrandat, siis võivad jalakinnitused
selle tagajärjel kahjustada saada.
Laske ladumismasin aeglaselt alla.
Teine inimene peab vaatama masina alla ja jälgima, et masinajalad puudutaksid põ-
randat üheaegselt.
JUHIS
Topeltkonveieri korral asetage X-telje suuna mõõtmisel vesilood alati ladumismasina
välimistele külgedele.