KE-2010-Rev10 - 第115页
- 11 0 - 58. MI NI SIGN AL LIGH T C OM PONE NTS ミニシグナルライト関係 11 2 2 REF .NO N O TE PART NO D E S C R I P T I O N 品 名 Q ty 1 E98 19-7 29-0 A 0 CA BL E A SM. ミニパトケーブル組 2 2 H E-00 042 00- 0 0 SI GNA L TOW ER シグナルタワー (1)

- 109 -
57.NON-STOP OPERATION COMPONENTS
ノンストップオペレーション関係
1
2
33
7
8 9
7
8 9
5
6
44
REF.NO NOTE PART NO D E S C R I P T I O N
品 名
Qty
1 E6101-729-00A SWITCH PANEL F (NSO)
スイッチパネル F(NSO)
1
2 E6102-729-00A SWITCH PANEL R3 (NSO)
スイッチパネル R 3(NSO)
1
3 E9819-729-0A0 CABLE ASM.
ミニパトケーブル組
2
4 HE-0004200-00 SIGNAL TOWER
シグナルタワー
(1)
5 E9817-729-0A0 FEEDER SWITCH F ASM.
フィーダー SW F 組
1
6 E9818-729-0A0 FEEDER SWITCH R ASM.
フィーダー SW R 組
1
7 HA-0029700-00 UP AND DOWN SWITCH
照光 SW
(1)
8 HA-0024300-3A LED
LED
(1)
9 HA-0024300-10 SWITCH COVER
スイッチ カバ−
(1)

- 110 -
58.MINISIGNAL LIGHT COMPONENTS
ミニシグナルライト関係
11
22
REF.NO NOTE PART NO D E S C R I P T I O N
品 名
Qty
1 E9819-729-0A0 CABLE ASM.
ミニパトケーブル組
2
2 HE-0004200-00 SIGNAL TOWER
シグナルタワー
(1)

- 111 -
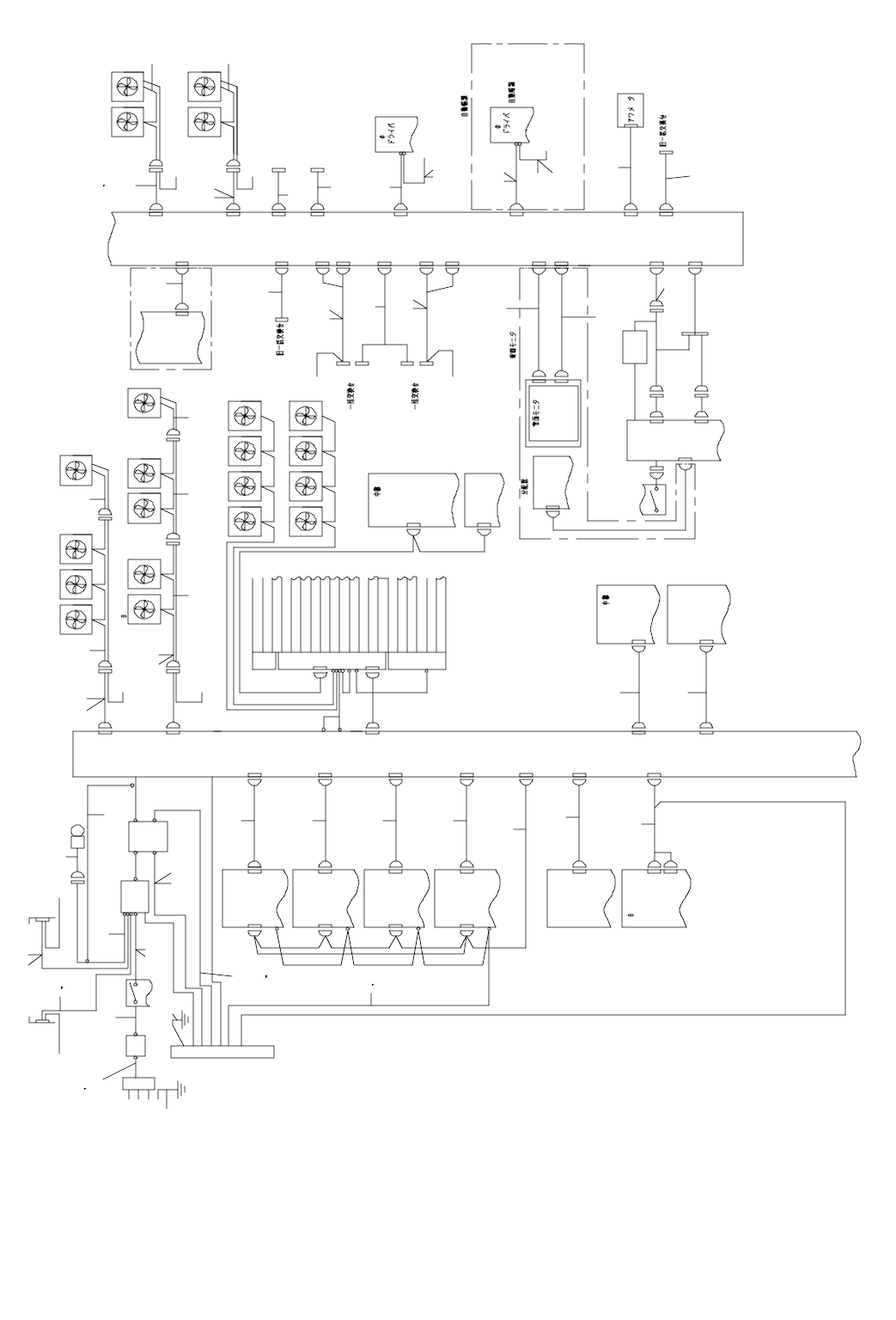
59.WIRING DIAGRAM (1)
WIRING DIAGRAM(1)
E9249
U
V
W
TB1
2 3
NFB
A C20 0V
I NPU T
MA IN
SW
1-4C
TB2
TB3
LF-FG
AC INPU T UNIT
TF1
PW R ON
L AMP
CN060
TB2
CN07
MT C POW ER
(R )
TB 2
CN06
MT C POW ER
(R )
XL
-CN8
XL
DRIVER
CN8
2-2A
XL-CN9
XR
DRIVER
XL
-CN8 XR-CN9
2-2A
CN8 CN9
CN8
2-2A
YL-CN9
YL
DRIVER
YL
-CN8
CN9
YR
DRIVER
YR-CN9
CN9
2-2A
CN8
YR
-CN8
2-3B
CN5
XY-CN5
XY SERV O
DR IVE R CPU
Z1-CN5
Z DRIVER
(1)
3-2A
CN5
CN12
Z1-CN12
CN9
POW ER
UNI T
CN010
CN009
CN003
CN004
CN001
CN002
CN008
CN041
CN042
1-4A
CN035
CN020
CN036
TB 4
TB 5
CN064
TB 2
CN061
CO NT ROL UNIT T OP FAN YR MOTO R FAN
CN065
Z SERVO FA N
CN062
XY SERV O FAN
CO NTR OL UNIT BT M FAN(L )
CN063
YL MOTO R FAN
CO NTR OL UNIT BT M FAN(R )
CN092
VME
TB 2
CN 2
CN 3
TB
CP CI
CN093
IMG -C PU
(8-1C)
LIG HT CT RL (L)
BAS E- FEE DE R
I/O CTRL
SAF ET Y
(8-1A)
(4-1A)
(5-1A)
(6-1A)
MCM R
(3-1D)
MCM L
(3-1C)
VER FY I/ F
(1-4A)
BUS -B RIG E
(2-1A)
XMP O( SUB )
(2-1A)
XMP O( MAI N)
(7-3A)
CPU
XMP
PC B.
CN26
CN126
FD D
PW R
FD D
2-2A
7-4A
O PER AT ION
PCB.
CN601
CN713
CN1
CN13
6-1B
2-4A
CARRY
P CB.
O PT ION (C VS)
VERFY I/F
PCB .
1-3B
8-4A
J5
S9-5
1-2D
POW ER
UNI T
CN052
CN034
CN026
CN028
CN032
CN024
CN030
CN051
CN029
CN054
CN016
CN015
CN047
CN013
CN011
CN012
CN304
(5-4C)
TB2
CN505
CN502
(5-3A)
(F)
CN502
CN505
(5-3B)
(R)
TB2
(7-4A)
PS
OP TIO N( )
CN067
35 36
BA SE FA N( R)
BA SE FA N( L)
TB 2
CN066
V CS MO NIT OR
(8-1D)
CN709
TB 2
CN655
(2-4A)
CE NT MO TOR (L )
DR IVE R
TB2
TB
2-5B
5
B U(L ) DRIVE R
5
2-4C
TB
TB2
OP TIO N(
)
DR IVE R
37
-
CN304
(F )
(5-4B)
CN029
16
12
65
66
13
15
5
64
4
46
48
45
47
7
22
23
11
14
17 18 19 20
21
41
42
55 53
32
26
27
28
24
25
29
30
31
58
50
44
56
51
52
57 59
9
33
43
34
54 38
40
39
60
62
6163
1
49
6
CN037
(SVGA)
VGA
7-4C
LIG HT CT RL (R)
8
10
TB 2
UPS
CN007
CN006
CN096
PS
DC1 2V
CN006
CN095A
CN095