KE-2010-Rev10 - 第31页
- 26 - N OT E ( 注記 ) # 0 1 ....EXPE CT C E CE を除く # 0 2....F O R 2 0 1 0 M ,20 10E 2010 M,2010 E 用 # 0 3....F O R 2 0 10 L 2010 L 用 # 0 4 ....F O R C E CE 用 # 0 5....F O R 2 0 10 E 2010 E 用 # 0 6....F O R 2 0 1 0E(CE) 20…

- 25 -
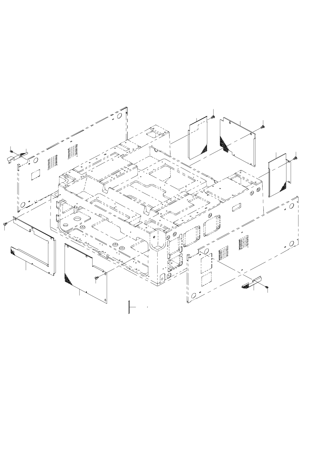
13.COVER COMPONENTS (5)
カバー関係(5)
30
29
15
15
15
36
33
27
23
26
10
8
9
6
7
23
30
35
1
2 3
37
21
22
11
12
24
28
26
30
35
24
7
27
28
29
13
30
17
33
22
13
16
17
25
25
34
34
30
35
30
35
14
31
31
31
31
31
31
A
A
20
20
20
19
19
18
4
5
22
35
35
10
32

- 26 -
NOTE( 注記 ) #01....EXPECT CE CE を除く
#02....FOR 2010M,2010E 2010 M,2010 E 用
#03....FOR 2010L 2010 L 用
#04....FOR CE CE 用
#05....FOR 2010E 2010 E 用
#06....FOR 2010E(CE) 2010 E(CE)用
REF.NO NOTE PART NO D E S C R I P T I O N
品 名
Qty
1
#01
E1501-729-0B0 BOTTOM COVER 2 ASM.
ボトムカバ−2組
1
2
#04
E1501-729-BB0 BOTTOM COVER 2 ASM. (CE)
ボトムカバー2組(CE)
1
3
#03
E1501-729-0C0 BOTTOM COVER 3 ASM.
ボトムカバ−3組
1
4
#05
E1501-729-0D0 BOTTOM COVER 4 ASM.
ボトムカバ−4組
(1)
5
#06
E1501-729-BD0 BOTTOM COVER 4 ASM. (CE)
ボトムカバー4組(CE)
(1)
6 E1501-729-000-A COVER FB
カバー FB
(1)
7 SM-0061201-SC SCREW M6 L=12
トラスねじ M 6 L =12
(4)
8 E1502-729-000 COVER SBR (ML)
カバ− SBR(ML)
(1)
9
#05
E1511-729-000 COVER SBR (LE)
カバ− SBR(LE)
(1)
10 SM-0061201-SC SCREW M6 L=12
トラスねじ M 6 L =12
(6)
11 E1503-729-000 COVER SBL (ML)
カバ− SBL(ML)
(1)
12
#05
E1512-729-000 COVER SBL (LE)
カバ− SBL(LE)
(1)
13 SM-0061201-SC SCREW M6 L=12
トラスねじ M 6 L =12
(6)
14
#02
E1504-729-000-A COVER RBR (30)
カバー RBR(30)
(1)
15 SM-0061201-SC SCREW M6 L=12
トラスねじ M 6 L =12
(4)
16 E1506-729-000-A COVER RBC
カバー RBC
(1)
17 SM-0061201-SC SCREW M6 L=12
トラスねじ M 6 L =12
(8)
18 E1560-729-000 AIR UNIT BOX (20)
エアーユニットボックス(20)
(1)
19 E1318-715-000 SAFTY COVER HINGE
安全カバー ヒンジ
(2)
20 SL-6061242-TN SCREW
座金付き六角穴ボルト
(10)
21
#02
E1508-729-000-A COVER RBL (30)
カバー RBL(30)
(1)
22 SM-0061201-SC SCREW M6 L=12
トラスねじ M 6 L =12
(4)
23 E1543-729-000 COVER STUD SU
カバ−スタッド SU
(6)
24 E1544-729-000 COVER STUD SL
カバ−スタッド SL
(6)
25
#02
E1545-729-000 COVER STUD RU(30)
カバ−スタッド RU(30)
(2)
26
#02
E1546-729-000 COVER STUD RL(30)
カバ−スタッド RL(30)
(2)
27 E1553-729-000 COVER STUD RC
カバ−スタッド RC
(4)
28 HX-0029400-00 FIXED BASE
固定ベース
(2)
29 SM-6030602-TN HEX SCREW M3 X 6
六角穴ボルト M 3 X 0.5 L =6
(2)
30
#04
HX-0050300-00 EMI GASKET
EMI ガスケット
(6)
31 SM-0061201-SC SCREW M6 L=12
トラスねじ M 6 L =12
(8)
32 E1562-729-000 AC BOX COVER
AC ボックスカバー
(1)
33
#03
E1547-729-000 COVER STUD RU(158)
カバ−スタッド RU(158)
(4)
34
#03
E1548-729-000 COVER STUD RL(158)
カバ−スタッド RL(158)
(4)
35
#06
HX-0050300-00 EMI GASKET
EMI ガスケット
(6)
36
#03
E1509-729-000-A COVER RBR (158)
カバー RBR(158)
(1)
37
#03
E1510-729-000-A COVER RBL (158)
カバー RBL(158)
(1)

- 27 -
14.COVER COMPONENTS (6)(FOR EN)
カバー関係(6)(EN 用)
1
3
2
4
5
6
7
8
9
10
11
12
13
14
15
16