CX200-4(Maint) - 第73页
1.4.6 Lamp Replacement of Light Source Device for Recognition Lighting (1) Light Source Devices Light Source Devices : MHF-D100LRSO-2 MHF-D100LRSC-2 Lamp : LM-100 (2) Lamp Replacement Procedure • T urn off the power swit…

(6) Attachment of Head Assembly to Head
Assembly Holder
(6-1) Fit the pilot pin hole on the rear side of the
head assembly into the pilot pin on the
holder side.
(6-2) Fasten the head assembly with two
“M4X12” setscrews and two “M4X16”
setscrews.
(Tightening Torque: Approx. 44 kgfcm)
(6-3) Insert the hose.
Note: Do not apply a wrench, etc., to the
magnet for head origin detection. Other-
wise, the magnet will be demagnetized.
If the magnet is demagnetized, the origin
may not be detected.
(7) Perform the “Head Origin” and the “Head/
Nozzle” teaching operations on the attached
nozzle.
Note: Refer to “5.4” and “5.5” in “Section 6” of
“Vol. 2: Operation (Supervisor)” for the
offset teaching operations.
• The head origin offset must be ±3
degrees or less.
• The head center offset must be ±3
mm.
01 10-003 1-61
AFO01ETRP
1.4 Maintenance Method

1.4.6 Lamp Replacement of Light Source Device for Recognition
Lighting
(1) Light Source Devices
Light Source Devices : MHF-D100LRSO-2
MHF-D100LRSC-2
Lamp : LM-100
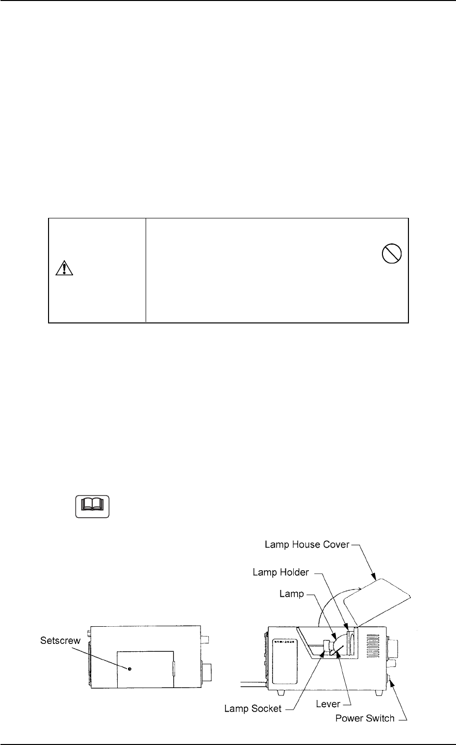
(2) Lamp Replacement Procedure
• Turn off the power switch of the light source device and check that
the LED (Orange) of the power switch extinguishes.
• Loosen the setscrew on the main body of the light source device and
open the lamp house cover.
• Lift the lever located on the left side of the lamp in the arrow direction.
The lamp will also be lifted up.
• Pull out the lamp straight up from the lamp holder.
• Detach the lamp from the socket.
When the lamp is inserted or pulled out, be sure not to forcibly
screw the terminal into or unscrew it from the socket. Other-
wise, the socket may be damaged.
Fig. 4A83
Do not touch the lamp right after it has been turned
off because it is very hot. Wait for about 3 to 5
minutes or until it cools down.
Be sure to wear gloves made of thick material (for
example, cotton work gloves) to replace the lamp
right after it has been turned off.
CAUTION
Note
0110-003 1-62 AFO01ETRP
1.4 Maintenance Method

• Return the lever to the original position.
• Put a new lamp in the lamp socket and push it down until it reaches
the bottom of the lamp holder. At this time, direct the side of the lamp
where the projected section is located so that the projection matches
the indented section of the lamp holder.
• Close the lamp house cover and shift down the lock lever to fasten
the cover.
• Turn on the power switch of the light source device and check that
the LED (orange) of the power switch illuminates.
• The lamp replacement is completed.
Perform lighting check operation after lamp replacement.
Fig. 4A84
0110-003 1-63 AFO01ETRP
1.4 Maintenance Method