CX-1-Rev10PDFA - 第72页
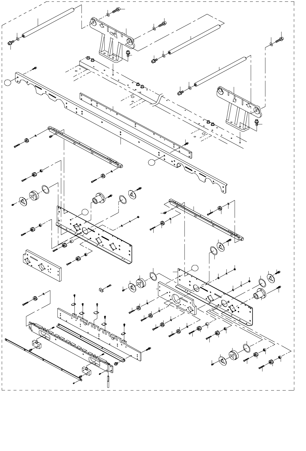
- 67 - 34 . P W B CO NVE Y O R CO MP ON E NT S ( 4 ) 基板搬送関係(4) 2 18 17 5 8 7 6 11 10 9 22 21 6 22 21 6 22 21 6 14 15 19 16 20 13 15 14 13 20 16 19 4 12 31 32 27 25 25 26 28 29 25 25 27 B B 24 33 30 24 1 11 10 9 19 19 5 1…

- 66 -
NOTE( 注記 ) *INSTALLATION POSITION AND DIRECTION VARY IF THE PWB TRANSFER
REFERENCE IS DIFFERENT.
基板搬送基準が異なると取付位置、方向が変わります。
REF.NO NOTE PART NO D E S C R I P T I O N
品 名
Qty
1 SM-6042002-TN BOLT
六角穴ボルト
1
2 SL-6041692-TN SCREW
座金付き六角穴ボルト M 4 L =16
8
3 SL-6041092-TN SCREW
座金付き六角穴ボルト
11
4 E4105-729-0A0 SHAFT SUPPORT B ASM.
シャフトサポート組
2
5 SM-8030302-TP SCREW M3X0.5 L=3
止めねじ M 3 X 0.5 L =3
2
6 400-00836 CONVEYOR RAIL RC
コンベアレール RC
1
7 SL-6041092-TN SCREW
座金付き六角穴ボルト
4
8 400-00812 RAIL GUIDE SHAFT
レールガイドシャフト
2
9 SM-8040602-TP SCREW M4X0.7 L=6
止めねじ
2
10 E2275-725-000 SAFETY BAR
セイフティバー
1
11 SL-4040841-SE SCREW M4 L=8
なべねじセムス M 4 L =8
4
12 E2124-721-000 PWB GUIDE PLATE RA
PWB ガイドプレート RA
4
13 E2125-721-000 PWB GUIDE PLATE RB
PWB ガイドプレート RB
2
14 SL-6030892-TN SCREW
座金付き六角穴ボルト
6
15 E2111-715-0A0 CONVEYOR PULLEY ASM.
搬送プーリ(組)
4
16 WP-0430800-SC WASHER M4
平座金小形丸 M 4
4
17 SM-4040855-SC SCREW
なべ小ねじ M 4 L =8
4
18 SM-1030601-SC SCREW M3 L=6
皿小ねじ M 3 X 0.5 L =6
5
19 400-30588 RAIL GUIDE R
レールガイド R
1
20 E4265-729-000 CONVEYOR BELT GUIDE (L)
搬送ベルトガイド(L)
1
21 HX-0029400-00 FIXED BASE
固定ベース
1
22 E2111-715-0A0 CONVEYOR PULLEY ASM.
搬送プ−リ(組)
2
23 WP-0430800-SC WASHER M4
平座金小形丸 M 4
2
24 SM-4040855-SC SCREW
なべ小ねじ M 4 L =8
2
25 E2089-721-0A0 CONVEYOR PULLEY B ASM.
搬送プーリ B 組
4
26 E2055-721-000 PULLEY SPACER
プーリスペーサ
1
27 SM-4042001-SC SCREW M4 X 20
なべ小ねじ M 4 X 0.7 L =20
1
28 400-33325 PULLEY SPACER
プーリスペーサ
3
29 SM-4042001-SC SCREW M4 X 20
なべ小ねじ M 4 X 0.7 L =20
3
30 400-37037 SUPPORT PLATE SL
サポートプレート SL
1
31 400-00839 DRIVE PULLEY R ASM.
ドライブプーリ R 組
1
32 400-00840 DRIVE PULLEY R
ドライブプーリ R
1
33 E2160-721-000 PULLEY FLANGE
プーリフランジ
1
34 SL-6030892-TN SCREW
座金付き六角穴ボルト
3
35 E3931-750-000 PULLEY WASHER
プーリ スラスト ワッシャ
2
36 E2160-721-000 PULLEY FLANGE
プーリフランジ
1
37 SL-6030892-TN SCREW
座金付き六角穴ボルト
3
38 SB-8160001-00 BEARING
ころがり軸受
1
39 400-30589 RAIL PLATE RL
レールプレート RL
1
40 400-00828 CONVEYOR RAIL
コンベアレール
1
41 SL-6031492-TN SCREW
座金付き六角穴ボルト
4
42 SM-6040802-TN SCREW
六角穴ボルト M 4 X 0.7 L =8
4
43 WP-0430801-SC WASHER 4.3X9X0.8
平座金 4.3 X 9 X 0.8
1
44 WS-0410002-KN SPRING WASHER
ばね座金 M 4
1
45 NM-6040001-SC NUT M4
六角ナット M 4
1

- 67 -
34.PWB CONVEYOR COMPONENTS (4)
基板搬送関係(4)
2
18
17
5
8
7
6
11
10
9
22
21
6
22
21
6
22
21
6
14
15
19
16
20
13
15
14
13
20
16
19
4
12
31
32
27
25
25
26
28
29
25
25
27
B
B
24
33
30
24
1
11
10
9
19
19
5
17
18
3
A
A
5
18
17
5
17
5
18
17
8
18
17
18
23
34
26
24
25
26
27
25

- 68 -
NOTE( 注記 ) *INSTALLATION POSITION AND DIRECTION VARY IF THE PWB TRANSFER
REFERENCE IS DIFFERENT.
基板搬送基準が異なると取付位置、方向が変わります。
REF.NO NOTE PART NO D E S C R I P T I O N
品 名
Qty
1 400-30590 RAIL PLATE RR
レールプレート RR
1
2 400-00828 CONVEYOR RAIL
コンベアレール
1
3 SL-6031492-TN SCREW
座金付き六角穴ボルト
4
4 SB-8160001-00 BEARING
ころがり軸受
1
5 SM-4040855-SC SCREW
なべ小ねじ M 4 L =8
5
6 E2089-721-0A0 CONVEYOR PULLEY B ASM.
搬送プ−リ B 組
4
7 E2055-721-000 PULLEY SPACER
プーリスペーサ
1
8 SM-4042501-SC SCREW M4X0.7 L=25
なべ小ねじ M 4 X 0.7 L =25
2
9 WP-0430801-SC WASHER 4.3X9X0.8
平座金 4.3 X 9 X 0.8
2
10 WS-0410002-KN SPRING WASHER
ばね座金 M 4
2
11 NM-6040001-SC NUT M4
六角ナット M 4
2
12 SM-6041002-TN BOLT
六角穴ボルト
4
13 400-00840 DRIVE PULLEY R
ドライブプーリ R
2
14 E2160-721-000 PULLEY FLANGE
プーリフランジ
2
15 SL-6030892-TN SCREW
座金付き六角穴ボルト
6
16 SL-6030892-TN SCREW
座金付き六角穴ボルト
6
17 E2111-715-0A0 CONVEYOR PULLEY ASM.
搬送プ−リ(組)
6
18 WP-0430800-SC WASHER M4
平座金小形丸 M 4
6
19 E3931-750-000 PULLEY WASHER
プーリ スラスト ワッシャ
4
20 E2160-721-000 PULLEY FLANGE
プーリフランジ
2
21 400-33325 PULLEY SPACER
プーリスペーサ
3
22 SM-4042001-SC SCREW M4 X 20
なべ小ねじ M 4 X 0.7 L =20
3
23 400-37038 SUPPORT PLATE SR
サポートプレート SR
1
24 E2009-725-000 GUIDE SHAFT
ガイドシャフト
3
25 WP-0501046-SC WASHER 5 X 13 X 1
平座金 5 X 14 X 1
6
26 SL-6051292-TN BOLT
座金付き六角穴ボルト
3
27 SL-6052042-TN SCREW
座金付き六角穴ボルト
3
28 SL-6052092-TN SCREW
座金付き六角穴ボルト
2
29 SL-6052092-TN SCREW
座金付き六角穴ボルト
2
30 400-30407 RAIL STAND RL
レールスタンド RL
1
31 SL-6041092-TN SCREW
座金付き六角穴ボルト
22
32 400-30593 SIDE BEAM
サイドビーム
1
33 400-00983 RAIL STAND RR
レールスタンド RR
1
34 400-37039 SUPPORT PLATE C
サポートプレート C
1