CX-1-Rev10PDFA - 第75页
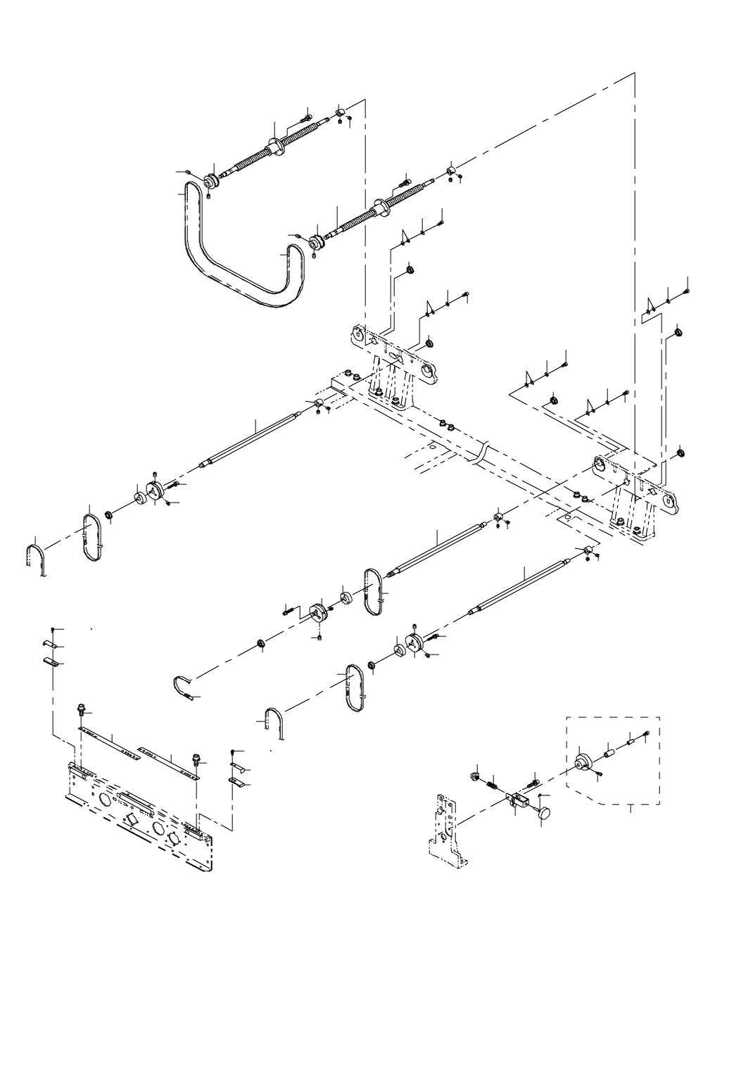
- 70 - N OTE( 注記 ) * INS TAL LA T I ON PO SITI ON A ND DI R ECT I O N VA RY I F THE P WB TR AN S FER R EF EREN CE I S D I FFE REN T. 基板搬送基準が異なると取付位置、方向が変わります。 REF .NO N O TE PART NO D E S C R I P T I O N 品 名 Q ty 1 40 0-…

- 69 -
35.PWB CONVEYOR COMPONENTS (5)
基板搬送関係(5)
4
19
18
10
19
10
20
20
23
21
22
3
4
3
16
20
23
21
44
25
8
6
24
24
9
18
11
9
14
7
12
22
13
12
13
11
5
19
18
20
23
21
22
24
14
27
17
15
29
34
30
31
39
35
37
38
2
1
40
42
26
26
43
43
20
15
17
27
20
15
17
27
7
8
6
5
32
33
36
28
1
2
41
45
41
46
40
42

- 70 -
NOTE( 注記 ) *INSTALLATION POSITION AND DIRECTION VARY IF THE PWB TRANSFER
REFERENCE IS DIFFERENT.
基板搬送基準が異なると取付位置、方向が変わります。
REF.NO NOTE PART NO D E S C R I P T I O N
品 名
Qty
1 400-00861 PWB GUIDE U
PWB ガイド U
8
2 SL-6031092-TN SCREW
座金付き六角穴ボルト
16
3 400-15577 SCREW SHAFT
スクリュウシャフト
2
4 SL-6041692-TN SCREW
座金付き六角穴ボルト M 4 L =16
8
5 SB-1080002-00 SIDE BEARING
サイドベアリング
4
6 WP-0320500-SF WASHER 3.2X7X0.5
平座金小形丸 M 3
8
7 WP-0330516-SC WASHER 3.3X8X0.5
平座金 3.3 X 8 X 0.5
4
8 SM-6030602-TN HEX SCREW M3 X 6
六角穴ボルト M 3 X 0.5 L =6
4
9 E2141-721-000 STOPPER COLLAR
ストッパカラー
2
10 SM-8040402-TP SCREW M4X0.7 L=4
止めねじ M 4 X 0.7 L =4
4
11 E2156-721-000 PULLEY A
プーリ A
2
12 SM-8040602-TP SCREW M4X0.7 L=6
止めねじ
4
13 E2015-725-000 TIMING BELT
タイミングベルト
1
14 E2011-725-000 DRIVE SHAFT
ドライブシャフト S
2
15 WP-0330516-SC WASHER 3.3X8X0.5
平座金 3.3 X 8 X 0.5
6
16 E2004-725-000 DRIVE SHAFT C
ドライブシャフト C
1
17 SM-6030602-TN HEX SCREW M3 X 6
六角穴ボルト M 3 X 0.5 L =6
6
18 E2141-721-000 STOPPER COLLAR
ストッパカラー
3
19 SM-8040402-TP SCREW M4X0.7 L=4
止めねじ M 4 X 0.7 L =4
6
20 SB-1080002-00 SIDE BEARING
サイドベアリング
6
21 400-00850 DRIVE PULLEY F
ドライブプーリ F
3
22 SM-8040602-TP SCREW M4X0.7 L=6
止めねじ
6
23 400-00851 MOTOR_PULLEY_B
モータプーリ B
3
24 SL-6031642-TN SCREW
座金付き六角穴ボルト
9
25 E2155-721-000 DRIVE BELT C
ドライブベルト C
1
26 400-00852 DRIVE BELT S
ドライブベルト S
2
27 WP-0320500-SF WASHER 3.2X7X0.5
平座金小形丸 M 3
12
28 SL-6041292-TN SCREW
座金付き六角穴ボルト
2
29 400-00854 ADJUST HAND WHEEL ASM
アジャストハンドル組
1
30 400-00856 ADJUST HAND WHEEL COLLA
アジャストハンドルカラー
1
31 E2018-715-000 PULLEY SLEEVE
プーリ スリーブ
1
32 SM-6052002-TN BOLT
六角穴ボルト
1
33 SM-6041002-TN BOLT
六角穴ボルト
1
34 400-00855 ADJUST HAND WHEEL
アジャストハンドル
1
35 400-00858 ADJUST STOPER
アジャストストッパ
1
36 400-00859 STOPER COLLAR
ストッパカラー
1
37 400-00977 STOPER SPRING
ストッパスプリング
1
38 RE-0320000-K0 E-RING 3.2
E 形止め輪 3.2
1
39 400-00857 ADJUST STOPER BRAKET
アジャストストッパベース
1
40 SL-6031092-TN SCREW
座金付き六角穴ボルト
16
41 E2046-725-000 PWB INNER
PWB インナ
12
42 SL-4031091-SC SCREW M3 X 10
なべ小ねじセムス
8
43 400-00863 CONVEYOR BELT S
コンベアベルト S
4
44 400-00864 CONVEYOR BELT C
コンベアベルト C
2
45 400-21327 SHORT PLATE
ショートプレート
1
46 400-33349 SHORT PLATE B
ショートプレート B
4

- 71 -
36.PWB CONVEYOR COMPONENTS (6)
基板搬送関係(6)
6
3
2
22
21
10
11
13
1
4
5
7
8
9
14
15
22
21
18
19
20
34
35
36
37
38
39
43
42
41
40
25
26
27
28
23
30
31
29
24
32
33
12
17
16