JM-10-Rev05 - 第49页
- 44 - NOTE( 注記 ) #01....TYPE M BOARD M 基板仕様 #02....TYPE L BOARD L 基板仕様 REF.NO NOTE PART NO D E S C R I P T I O N 品 名 Qty 1 #01 401-08109 CONVEYOR ASSY 搬送組 1 2 #02 401-46777 CONVEYOR ASSY L 搬送組L 1 3 401-07776 CONVEYOR RA…

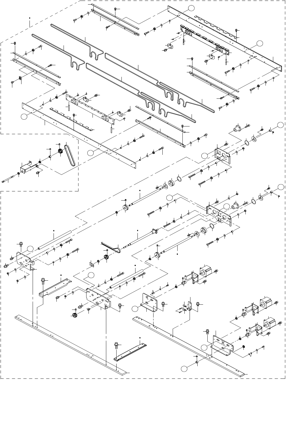
- 43 -
22.PWB CONVEYOR COMPONENTS (1)
基板搬送関係(1)
9
10
10
10
10
11
11
11
11
12
12
12
13
14
14
15
15
15
15
16
16
16
16
18
17
19
20
20
17
18
20
20
18
18
21
17
17
21
22
18
17
17
18
23
23
25
24
27
A
A
29
30
32
28
33
34
B
B
C
C
D
D
35
45
46
47
48
49
50
52
51
92
53
59
26
75
75
93
77
78
4
8
8
7
20
18
17
4
80
1
2
19
17
18
80
8
4
4
8
7
12
19
17
18
6
19
17
18
9
69
21
21
88
88
13
24
25
25
24
23
18
17
22
22
17
18
23
21
20
17
18
17
18
20
21
5
17
18
23
20
25
24
22
17
18
23
17
22
18
23
17
22
18
23
22
17
18
23
45
46
25
24
41
42
41
42
58
57
25
24
63
62
61
54
55
53
52
51
60
51
52
53
55
52
47
48
53
92
67
64
66
68
65
60
67
64
66
68
65
64
60
67
66
68
93
100
94
102
94
96
95
101
83
84
90
40
39
71
73
72
79
82
86
87
43
76
99
97
40
38
98
70
70
89
89
36
36
E
E
F
F
44
60
54
51
50
91
91
56
31
49
60
37
38
81
44
77
78
3
G
G
74
85

- 44 -
NOTE( 注記 ) #01....TYPE M BOARD M 基板仕様
#02....TYPE L BOARD L 基板仕様
REF.NO NOTE PART NO D E S C R I P T I O N
品 名
Qty
1
#01
401-08109 CONVEYOR ASSY
搬送組
1
2
#02
401-46777 CONVEYOR ASSY L
搬送組L
1
3 401-07776 CONVEYOR RAIL FL
コンベアレールFL
(1)
4 SL-6031692-TN SCREW
座金付き六角穴ボルト
(12)
5 401-07777 CONVEYOR RAIL FR
コンベアレールFR
(1)
6 401-07778 CONVEYOR RAIL RL
コンベアレールRL
(1)
7 401-07780 PWB GUIDE L
PWBガイドL
(2)
8 SL-6030892-TN SCREW
座金付き六角穴ボルト
(14)
9 401-07782 CONVEYOR RAIL
コンベアレール
(2)
10 E4105-729-0A0 SHAFT SUPPORT B ASM.
シャフトサポート組
(4)
11 SM-8030402-TP SCREW M3X0.5 L=4
止めねじ
(4)
12 SL-6040892-TN BOLT
座金付き六角穴ボルト
(8)
13 400-95014 PWB GUIDE PLATE L
PWBガイドプレートL
(2)
14 SL-6030892-TN SCREW
座金付き六角穴ボルト
(16)
15 400-78496 RAIL GUIDE SH
レールガイドSH
(4)
16 SM-8040602-TP SCREW M4X0.7 L=6
止めねじ
(4)
17 E2111-715-0A0 CONVEYOR PULLEY ASM.
搬送プ−リ(組)
(42)
18 WP-0430800-SC WASHER M4
平座金小形丸 M4
(48)
19 SM-6040802-TN SCREW
六角穴ボルト M4X0.7 L=8
(16)
20 400-78497 COLLAR A
カラーA
(8)
21 SM-6041602-TN SCREW M4 X 16
六角穴ボルト M4X0.7 L=16
(8)
22 400-78498 COLLAR B
カラーB
(18)
23 SM-6042002-TN BOLT
六角穴ボルト
(18)
24 WP-0430800-SC WASHER M4
平座金小形丸 M4
(6)
25 NM-6040001-SC NUT M4
六角ナツト M4
(6)
26 401-07783 GUIDE SH BR FL
ガイドシャフトBR FL
(1)
27 SL-6041092-TN SCREW
座金付き六角穴ボルト
(2)
28 SL-6051492-TN BOLT
座金付き六角穴ボルト
(2)
29 401-07784 GUIDE SH BR RL
ガイドシャフトBR RL
(1)
30 SL-6041092-TN SCREW
座金付き六角穴ボルト
(2)
31 401-07785 GUIDE SH BR FR
ガイドシャフトBR FR
(1)
32 SL-6041092-TN SCREW
座金付き六角穴ボルト
(3)
33 SL-6051492-TN BOLT
座金付き六角穴ボルト
(2)
34 401-07786 GUIDE SH BR RR
ガイドシャフトBR RR
(1)
35 SL-6041092-TN SCREW
座金付き六角穴ボルト
(3)
36 401-07793 CONVEYOR BELT R
コンベアベルトR
(2)
37
#01
401-07794 WA SCREW SHAFT
WAスクリュウシャフト
(2)
38
#02
401-12575 WA_SCREW_SHAFT_L
WAスクリューシャフト_L
(2)
39 401-07796 WA BELT
WAベルト
(3)
40 SM-8040602-TP SCREW M4X0.7 L=6
止めねじ M4X0.7 L=6
(6)
41 SB-8160001-00 BEARING
ころがり軸受
(2)
42 SM-6040802-TN SCREW
六角穴ボルト M4X0.7 L=8
(8)
43 400-76896 SUPPORT TABLE DOWN SENSOR ASM
サポートテーブルダウンセンサ組
(1)
44 SB-1080002-00 SIDE BEARING
サイドベアリング
(4)
45
#01
400-78507 GUIDE SH
ガイドSH
(2)
46
#02
400-95015 GUIDE_SH_L
ガイドシャフトL
(2)
47
#01
400-78508 DRIVE SH
ドライブSH
(3)
48
#02
400-95016 DRIVE_SH_L
ドライブシャフトL
(3)
49 SM-8040602-TP SCREW M4X0.7 L=6
止めねじ
(6)
50 400-78509 DRIVE PULLEY R
ドライブプーリR
(3)
51 E2160-721-000 PULLEY FLANGE
プーリフランジ
(6)
52 E3931-750-000 PULLEY WASHER
プーリ スラスト ワッシャ
(6)
53 SL-6030892-TN SCREW
座金付き六角穴ボルト
(18)
54 E2141-721-000 STOPPER COLLAR
ストッパカラー
(3)
55 SM-8040402-TP SCREW M4X0.7 L=4
止めねじ M4X0.7 L=4
(6)
56 401-07787 GUIDE SH STAND L
ガイドSHスタンドL
(1)
57 SL-6051492-TN BOLT
座金付き六角穴ボルト
(2)
58 401-07788 GUIDE SH STAND R
ガイドSHスタンドR
(1)
59 SL-6051492-TN BOLT
座金付き六角穴ボルト
(2)
60 SB-1080002-00 SIDE BEARING
サイドベアリング
(6)
61 SM-6030602-TN HEX SCREW M3 X 6
六角穴ボルト M3X0.5 L=6
(6)
62 WP-0320500-SF WASHER 3.2X7X0.5
平座金小形丸 M3
(12)
63 WP-0330516-SC WASHER 3.3X8X0.5
平座金 3.3X8X0.5
(6)
64 400-78512 MOTOR BR
モータBR
(3)
65 SL-6041092-TN SCREW
座金付き六角穴ボルト
(12)
66 400-48074 CENTER MOTOR ASM
センタモータ組
(3)
67 SL-6041042-TN BOLT
座金付き六角穴ボルト
(12)
68 400-78513 COUPLING
カップリング
(3)
69 401-07779 CONVEYOR RAIL RR
コンベアレールRR
(1)
70 401-07791 CONVEYOR BELT C
コンベアベルトC
(2)
71 SM-6030602-TN SCREW M3X6
六角穴ボルト M3X6
(4)
72 WP-0320500-SC WASHER M3
平座金小形丸 M3
(8)
73 WP-0330516-SC WASHER 3.3X8X0.5
平座金 3.3X8X0.5
(4)
74 E2141-721-000 STOPPER COLLAR
ストッパカラー
(2)
75 401-07789 CONVEYOR BASE
コンベアベース
(2)
76 SM-6850802-TN SCREW M2.5 L=8
六角穴ボルト M2.5 L=8
(2)
77
#01
401-07790 CONVEYOR BASE BR
コンベアベースブラケット
(2)
78
#02
401-12571 CONVEYOR_BASE_BR_L
コンベアベース_BR_L
(2)
79 SM-8040402-TP SCREW M4X0.7 L=4
止めねじ M4X0.7 L=4
(4)
80 401-07781 PWB GUIDE R
PWBガイドR
(2)
81 E2012-721-000 ADJUST PLATE
アジャストプレート
(2)
82 SL-6030892-TN SCREW M3 L=8
座金付き六角穴ボルト M3 L=8
(4)
83 HX-0029400-00 FIXED BASE
固定ベース
(2)
84 SM-4040601-SC SCREW M4X0.7 L=6
なべ小ねじ M4X0.7 L=6
(2)
85 401-07809 BU SENSOR BR
BUセンサブラケット
(1)
86 SL-6051092-TN BOLT
座金付き六角穴ボルト
(2)
87 400-76894 SUPPORT TABLE UP SENSOR ASM
サポートテーブルアップセンサ組
(1)
88 401-07775 RAIL GUIDE PLATE
レールガイドプレート
(2)
89 401-07792 CONVEYOR BELT L
コンベアベルトL
(2)
90 401-07795 WA PULLEY
WAプーリ
(1)
91 SL-6051492-TN BOLT
座金付き六角穴ボルト
(2)
92 400-00850 DRIVE PULLEY F
ドライブプーリF
(3)
93 SL-6051092-TN BOLT
座金付き六角穴ボルト
(4)
94 SB-1080002-00 SIDE BEARING
サイドベアリング
2
95 E2141-721-000 STOPPER COLLAR
ストッパカラー
1
96 SM-8040402-TP SCREW M4X0.7 L=4
止めねじ M4X0.7 L=4
2
97 401-07795 WA PULLEY
WAプーリ
1
98 401-07806 WA DRIVE BELT
WAドライブベルト
1
99 SM-8040602-TP SCREW M4X0.7 L=6
止めねじ
2
100 401-07804 HANDLE BRACKET
ハンドルブラケット
1
101 SL-6040892-TN BOLT
座金付き六角穴ボルト
2
102 401-07805 HANDLE SHAFT
ハンドルシャフト
1

- 45 -
23.PWB CONVEYOR COMPONENTS (2)
基板搬送関係(2)
12
8
14
9
10
11
12
7
13
1
3
12
38
39
57
57
40
41
46
46
44
42
12
8
13
12
12
11
10
9
14
14
11
12
12
14
11
15
13
3
64
64
65
65
38
39
43
45
45
47
47
48
48
49
50
51
52
53
54
55
56
63
16
17
63
4
4
5
5
6
6
7
2
12
18
22
23
24
26
27
25
28
29
29
62
31
31
30
32
33
34
35
34
20
66
58
16
17
59
60
61
21
19
36
37
67