JM-10-Rev05 - 第68页
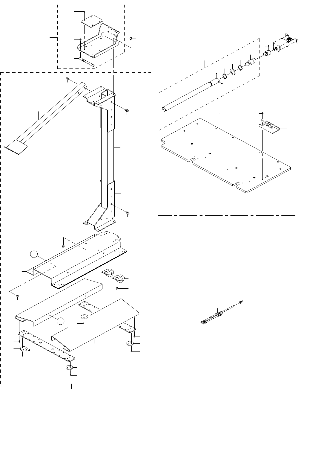
- 63 - 32. TAPE REEL INSTALLING BASE, HA NDLE ARM & EXTEND TUBE COMPONEN TS テープリール取付台・ハンド ルアーム・延長チューブ関係 2 3 6 4 4 5 5 1 7 9 8 10 11 12 13 14 19 18 20 16 15 29 25 25 26 28 28 24 24 27 22 22 22 22 33 33 33 33 32 32 30 …

- 62 -
REF.NO NOTE PART NO D E S C R I P T I O N
品 名
Qty
1 PF-0154010-A0 AIR FILTER
エアフィルター
1
2 PF-9010070-00 FILTER ELEMENT
フィルターエレメント
(1)
3 BT-1200801-EF TUBE
チューブ
2
4 PJ-3041254-01 ELBOW UNION D=12
エルボユニオンφ12
2
5 400-16815 DRAIN TANK
ドレインタンク
1
6 BT-1000651-EB POLYURETHANE TUBE
ポリウレタン チューブ
0.8
7 PJ-3031000-02 STRAGHT
ストレート
1
8 PJ-3090400-03 STRAGHT
レジューサ(φ4−φ10)
1
9 BT-0400251-EA TUBE HOSE, BLUE
ウレタンホ−ス 青
0.16
10 SL-6061692-TN BOLT
座金付き六角穴ボルト
2
11 400-55291 FILTER BRACKET
フィルタブラケット
1
12 HX-0005500-0J RUBBER BUSHING
ゴムブッシュ
1
13 E1387-700-000 HOD MAGNET
HOD マグネット
2
14 400-55290 DRAIN TANK STAY
ドレインタンクステイ
1
15 SL-6040892-TN BOLT
座金付き六角穴ボルト
2
16 HX-0029400-00 FIXED BASE
固定ベース
1
17 SM-4040601-SC SCREW M4X0.7 L=6
なべ小ねじ M4X0.7 L=6
1
18 EA-9500B01-00 CABLE BAND
束線バンド
1

- 63 -
32.TAPE REEL INSTALLING BASE, HANDLE ARM & EXTEND TUBE COMPONENTS
テープリール取付台・ハンドルアーム・延長チューブ関係
2
3
6
4
4
5
5
1
7
9
8
10
11
12
13
14
19
18
20
16
15
29
25
25
26
28
28
24
24
27
22
22
22
22
33
33
33
33
32
32
30
30
30
A
A
31
17
21
31
31
23
31
34

- 64 -
NOTE( 注記 ) #01....BEFORE M/C REV.D マシン REV.D 以前
REF.NO NOTE PART NO D E S C R I P T I O N
品 名
Qty
1
#01
401-19496 HANDLE_ARM_ASSY
ハンドルアーム組
1
2 401-19497 HANDLE_ARM
ハンドルアーム
(1)
3 401-19498 HANDLE_ARM_STOPPER_PLATE
ハンドルアームストッパプレート
(1)
4 RC-2500001-KP RETAINING RING 25
C形止め輪 25
(2)
5 SM-8030502-TP SCREW M3 L=5
止めねじ M3X0.5 L=5
(2)
6 401-19499 BALL_JOINT_BJ40_TONE
ボールジョイント
(1)
7
#01
401-19500 HANDLE_ARM_JOINT_SH
ハンドルアームジョイントシャフト
1
8
#01
SM-8040602-TP SCREW M4X0.7 L=6
止めねじ
1
9
#01
401-19501 HANDLE_ARM_SUPPORT
ハンドルアームサポート
1
10
#01
SL-6040892-TN BOLT
座金付き六角穴ボルト
2
11 401-19548 AIR_COUPLER
エアカプラ
2
12 PJ-3080600-03 Y UNION
ユニオンY
1
13 BT-0600400-EC TUBE HOSE, BLUE
ウレタンホース 青
3
14 PJ-0320090-05 NIPPLE
エアカプラニップル
1
15 E9001-706-AA0-A FEEDER SETUP STAND (W/O BASE)
テープリール取付台(脚無し)
1
16 E9001-706-A00-A WARK BASE
ワークベース
(1)
17 E9002-706-A00 LOCK SHAFT
ロックシャフト
(1)
18 E9003-706-A00 SLIDE BASE
スライドベース
(1)
19 SL-6041092-TN SCREW
座金付き六角穴ボルト
(2)
20 SM-1030601-SC SCREW M3 L=6
皿ねじ M3X0.5 L=6
(4)
21 E9004-706-AA0 BASE PLATE ASM
ベースプレート(クミ)
1
22 400-13306 FLICTION PLATE
フリクションプレート
(4)
23 E9004-706-A00 BASE PLATE
ベースプレート
(1)
24 E9005-706-A00 FOOT STOOL
フットスツール
(2)
25 E9006-706-A00 BASE SUPPORT
ベースサポート
(2)
26 E9007-706-A00 COLUMN
コラム
(1)
27 E9008-706-A00 CASTER
キャスター
(2)
28 E9009-706-A00 BASE PLATE REIN PLATE
ベースプレート補強板
(2)
29 E9010-706-A00 FEEDER SUPPORT
フィーダーサポート
(1)
30 SL-4030891-SC SCREW M3X8
なべ小ねじセムス M3 L=8
(32)
31 SL-6051092-TN BOLT
座金付き六角穴ボルト
(14)
32 SL-6061292-TN SCREW
座金付き六角穴ボルト
(8)
33 SM-1030601-SC SCREW M3 L=6
皿ねじ M3X0.5 L=6
(12)
34 SL-6051092-TN BOLT
座金付き六角穴ボルト
4