46230811 - 第3页
Page 1 DH P ositioning System Assembly , Non P/T T46230811 Rev . J This Document Supports Assembly 46230811 Rev J

i
DH Positioning System Assembly, Non P/T T46230811 Rev. J
This Document Supports Assembly 46230811 Rev J
Table of Contents
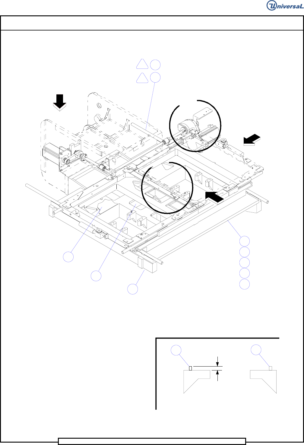
Assembly Drawings....................................................................................................................................................... 1
Notes .................................................................................................................................................................. 12
Bill Of Materials ................................................................................................................................................ 13
Functional Description ................................................................................................................................................ 20
Maintenance Concept .................................................................................................................................................. 20
Prerequisite Information.............................................................................................................................................. 20
Rotary Disc Drive Motor Mounting Procedure........................................................................................................... 21
Procedures ................................................................................................................................................................... 22
X-Y Axes Ball Bushing Preload Adjustments................................................................................................... 22
X and Y Axes Ball Screw Unit Adjustment ...................................................................................................... 23
Rotary Disc Alignment ...................................................................................................................................... 24
X and Y Axes Gear Belt Tension Adjustment Procedure ................................................................................ 29
Gear Belt Tension Adjustment................................................................................................................. 29
Gear Belt Replacement............................................................................................................................. 30
X-Y Axes Encoder Adjustments........................................................................................................................ 31
X-Y Axes Limit Switch Adjustments ................................................................................................................ 36
X Axis Negative Limit ............................................................................................................................. 38
X Axis Positive Limit............................................................................................................................... 38
Y Axis Negative Limit ............................................................................................................................. 39
Y Axis Positive Limit............................................................................................................................... 39
Rotary Disc Slow Down Adjustments ............................................................................................................... 40
Preventive Maintenance Schedule............................................................................................................................... 42
Dual Rotary Positioning Assembly Preventive Maintenance Details ......................................................................... 43
Changes To This Revision .......................................................................................................................................... 44

