2RGKBM008102 - 第31页
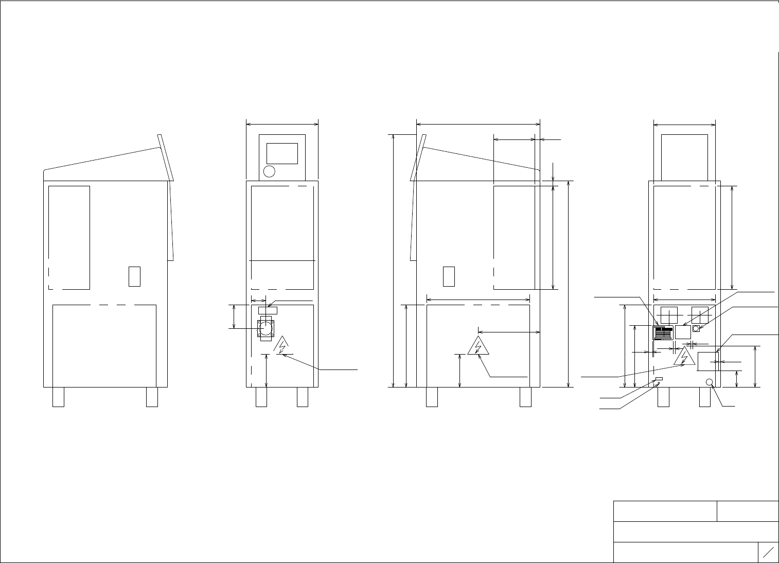
NAME T I T L E DRAWING No. TYPE AHC-R1 1 1 機構図 INSTRACTION DIAGRAM 装置正面図 MACHINE FRONT SIDE FUJI SECRET 2 RG KB M0 04 00 3 M 1L S 1 X M 1S O L 1 0 M 1L S 1 M 1S O L 1 M 1S O L 4, 5 , 6 8 ,9 M 1S O L 3 M 1S O L 7 M 1L S 2…

2RGKBM003809
番号 品名 記号 形式 メーカー 定格 個数 備考 コード番号
支給品 配線時
GRO
訂正
NO.
NAME
SYMBOL
TYPE
MANUFACTURER
RATING
Q'TY
NOTE
CODE No.
使用
.UP
記録
バルブ SOL M1SOL3 VQZ332-5M1-C6-Q SMC DC24V 0.34W 1 H64598 ○
1
SOLENOID VALVE
バルブ SOL M1SOL4,5 SY3340-5LZ-Q SMC DC24V 0.4W 1 H64600 ○
2
SOLENOID VALVE
バルブ SOL M1SOL6 SY3140-5LZ-Q SMC DC24V 0.4W 1 H64599 ○
3
SOLENOID VALVE
バルブ SOL M1SOL1 VX3324V-02-5DZ1 SMC DC24V 10.5W 1 H63922 ○
4
SOLENOID VALVE
SW フロー M1LS1 PFM750-01-E-M SMC DC24V 1.32W 1 S61433 ○
5
FLOW SW
SW マイクロ M1LS2X AV630564 PANASONIC 1 S5161A ○
6
MICRO SW
リミットSW
M1LS1X
D4NL-1HFG-B オムロン DC24V 4.8W 1 S31935 ○
7
LIMIT SW
M1SOL10
OMRON
バルブ SOL M1SOL7 VP342R-5DZ1-01B1 SMC DC24V 1.55W 1 H64775 ○
8
SOLENOID VALVE
センサアツリョク M1LS2 ZSE30A-C6L-EーMLーA1Y SMC DC24V 1.2W 1 S63425 ○
9
PRESSURE SENSOR
SWリード M1LS3,4 D-Y59BZ SMC 2 S64349 ○
10
LEAD SW
バルブ SOL M1SOL8,9 SY3340-5LZ-Q SMC DC24V 0.4W 1 H64600 ○
11
SOLENOID VALVE
マグネット SW M1LS3X XCS-DMC7902 テレメカ N.O.+N.O. 1 M1056M ○
12
MAGNET SW
TELEMECANIQUE
バルブ SOL M1SOL11 VQZ332-5M1-C6-Q SMC DC24V 0.34W 1 H64598 ○
13
SOLENOID VALVE
14
15
16
17
USER 分番
殿 生番
NAME 電気部品明細表 PAGE
ELECTRIC PARTS LIST
ヘッドクリーナ 機械手配品 TYPE
MACHINE ARRANGEMENT
AHC-R1
DRAWING NO.
2RGKBM003809
5/5
FUJI SECRET

NAME
TITLE
DRAWING No.
TYPE
AHC-R1
1
1
機構図
INSTRACTION DIAGRAM
装置正面図
MACHINE FRONT SIDE
FUJI SECRET
2RGKBM004003
M1LS1X
M1SOL10
M1LS1
M1SOL1
M1SOL4,5,6
8,9
M1SOL3
M1SOL7
M1LS2
埃回収箱
運転位置
退避位置
M1LS3M1LS4
M1LS3X
M1SOL11
2EGTBC0243
M1LS2X

NAME
TITLE
DRAWING No.
TYPE
AHC-R1
1
4
部品配置図
PARTS BLOCK ARRANGEMENT
装置全体図
GENERAL DRAWING
FUJI SECRET
2RGKBM004109
< L e f t s i d e v i e w > < F r o n t v i e w > < R i g h t S i d e v i e w > < R e a r V i e w >
□80
M1FAN2
□80
M1FAN1
M1NFB1
DISCONNECT POWER PRIOR TO SERVICING
<WARNING>
メンテナンスは機械電源を落としてから行って下さい
<警告>
10
CE
19 Chausuyama Yamamachi Chiryu,Aichi,Japan,472-8686
TEL :+8 1( 566 )81 -211 0
2RG KBM003 7**
AC200 V-230V
AUTO H EAD CLEANER
2A
10k A
5kA
50/ 60H z
3
IP2 2
rm s
RATING S OF MACHINE
DE SI GNA TI ON
DRAWING NUMBER
SU PPL Y VOL TAG E
FU LL LO AD A MP.
SHORT-CIRCUIT-CURRENT-RATING
SHORT-CIRCUIT-BREAKINGCAPACITY
FR EQ.
PH ASE
EN CLO SUR E RAT IN G
FUJI MAC HINE MF G.CO.,LTD
(ST21)
POWER
1226.378
600
1000
25
25
500
400
500
300
500
300
400
200
115
70
350
300
電源
300
20
10
10
200
2EGKBA0144
EEBR1923
EEBR1740
EEBR1740
EEBR1740
EEBR1860
125
125
EEBR1870
LAN
AIR
80
10
2EGLBA0009