2RGKBM008102 - 第34页
NAME T I T L E DRAWING No. TYPE AHC-R1 3 4 部品配置図 PARTS BLOCK ARRANGEMENT BKT扉部 端子台TB1 BKT DOOR SIDE TERMINAL TB1 FUJI SECRET 2 RG KB M0 04 10 9 端 子 台 : T B 1 ( B K T 扉 部 ) M 1 R E C 1 M 1 M S 1 X M 1 C R 2 D I O 1 M 1 C …

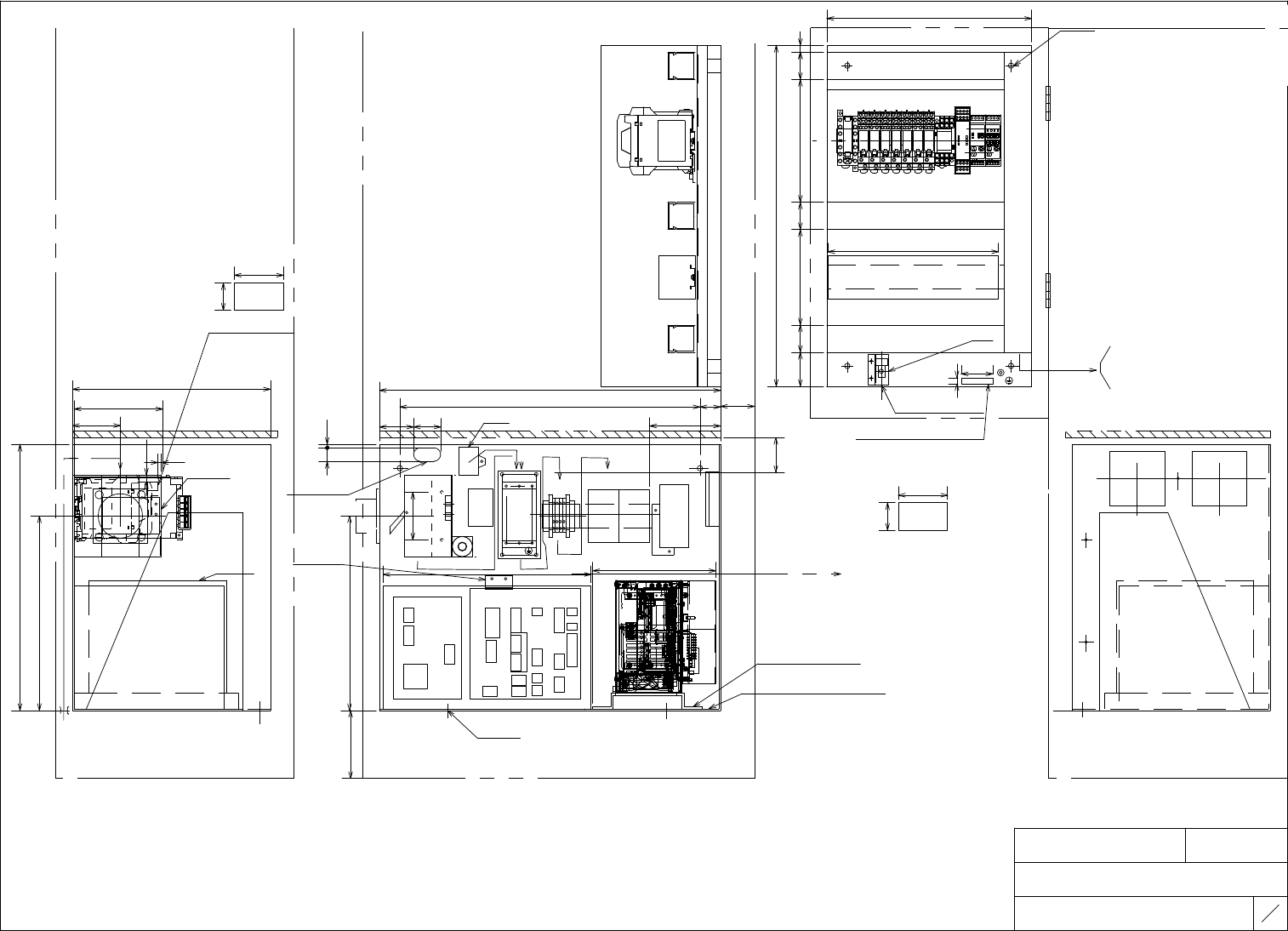
NAME
TITLE
DRAWING No.
TYPE
AHC-R1
2
4
部品配置図
PARTS BLOCK ARRANGEMENT
制御BKT
CONTROL BKT
FUJI SECRET
2RGKBM004109
Skip
inspection
*1詳細(テプラにて製作)
J2
J1
M1S A 1
M1NFB1
1 2
3
4 5
6
M1NF1
M1MS1X
M1MS2X
ダクト 40*60、l=260
ダクト 40*60、l=260
TB
ダクト 40*60、l=260
ダクト
40*60
l=440
サーボ アン プ
M1
CR11X
M1COV1
M1AD1
M1CR2
M1SR1
M1CR
1,4X
M1CR
5X,6X、7X
M1CR
12X,14X
M1REC1
M1NFB1
M1CN1
R
A
E
B
N
O
H
T
T
N
I
O
P
G
N
I
D
アース
BKT
10P
サー ボ アン プ
□80
M1FAN1
□ 80
M1FAN2
TB2
Skip
inspection
ON
OFF
M1SS1X
ハーネス HARNESS 2EGKBA0137**
ハーネス HARNESS 2EGKBA0132**
ハーネス HARNESS 2EGKBA0133**
PE
PE
(テプラにて製作)
ハーネス HARNESS 2EGKBA0148**
ハーネス
HARNESS 2EGKBA0062**
SERVO AMP
EARTH BKT
PASTE [PE] SEAL
MADE BY TEPRA
MOUNT FREE BUSH
EARTH
BKT
SERVO AMP
*1DETAIL(MADE BY TEPRA)
3-M4 HEX SCREW SET
PASTE S/N BARCODE READER
PASTE S/N BARCODE READER
DUCT
DUCT
DUCT
DUCT
CN20
CN10
CN3A OUT
CN3B IN
PG1
CN21
CNX 1CNY1
MY
MX2
MX1
PG2
PG3
CND
M1
M2
M3
PGX 2
PGX 1PGY
10
18
M1SK1
500
300
70
500
アースBKT2p
50 40 140 40 180 4010
305
250
285
130
180.6
99.8
50
4-φ8
440 30
4-φ8
CPU Box
51
2EGKBA008700
290
390
285
20 5
自在ブッシュ取付
50 40
70
2EGKBA0142**
*1
5
10
「PE」シール貼付
15
12
S/N バーコードシール貼付
3-M4六角セットビス
S/N バーコードシール貼付
9
46
103.875

NAME
TITLE
DRAWING No.
TYPE
AHC-R1
3
4
部品配置図
PARTS BLOCK ARRANGEMENT
BKT扉部 端子台TB1
BKT DOOR SIDE TERMINAL TB1
FUJI SECRET
2RGKBM004109
端子台:TB1(BKT 扉部)
M1REC1
M1MS1X
M1CR2
DIO1
M1CR11X
M1CR5X
M1CR5X
DIO1
DIO1
DIO1
+24V
+24V
+24V
+24V
+24V
+24V
G
G
G
G
G
DC+VF
DC+VP
X001
M102
M112
M103
M113
M104
M114
X00A
X003
M141
G
+24V1
+24V1
DOUT2
ESTOP
G
Y005
Y009
G
Y00A
Y00B
Y00C
G
CNH3
操作盤
M1LS1
M1LS2
M1LS1X
M1SOL7
M1PCB2
M1SOL10,M1SOL1
M1SOL3
M1SOL4
M1SOL5
M1SOL6
M1CR11X
M1SS1X,CNH3
DIO1,M1MS1X
M1FAN1,2 IO_COM
M1LS2
操作盤 OPERATION BOX、M1SR1
M1COV1,M1AD1
M1LS1,3,4
部品表
短絡板
短絡板
短絡板
品名 型式 メーカー 個数
端子台
ZDU 2.5-2/3AN
ワイドミュラー
分離板
ZAP/TW7
終端止め
EW 35 2
短絡板
ZQV 2.5/2 2
短絡板
ZQV 2.5/5 1
短絡板
ZQV 2.5/7 1
DINレール
260mm
マーカホルダ
MS-H5/8.5 2
G
M1SOL8,9
X00B
X00C
M1LS3
M1LS4
短絡板
(*option)
+24VDIO2,M1LS3X
Y000
Y004
M1PL1
M1PL2
0
Y008A
43
OPEARITON BOX
BKT DOOR SIDE TERMINAL TB1
SHORT PLATE SHORT PLATE SHORT PLATE SHORT PLATE
MARKER HOLDER
NAME TYPE MANUFACTURER Q'TY
WIDE MULLER
ワイドミュラー
WIDE MULLER
ワイドミュラー
WIDE MULLER
ワイドミュラー
WIDE MULLER
ワイドミュラー
WIDE MULLER
ワイドミュラー
WIDE MULLER
ワイドミュラー
WIDE MULLER
TERMINAL
SHORT PLATE
SHORT PLATE
SHORT PLATE
DIN RAIL
MARKER HOLDER
SEPARATION PLATE
TERMINATION STOP
PARTS LIST
DIO2,CN-M1SOL11
EW35
マーカーホルダー
8.5 5 5 5 5 5
5 5 5 5 5 8.5
9 237 14
260

NAME
TITLE
DRAWING No.
TYPE
AHC-R1
4
4
部品配置図
PARTS BLOCK ARRANGEMENT
BKT下部 端子台TB2
BKT BOTTOM SIDE TERMINAL TB2
FUJI SECRET
2RGKBM004109
端子台:TB2(BKT 下部)
M1NF1
R10
R10
S10
T10
M1MS1X
M1REC1
M1REC2
部品表
ZDU 2.5-2/3AN 4
ZAP/TW7 0
EW 35 2
ZQV 2.5/2 0
ZQV 2.5/5 0
ZQV 2.5/6 0
電磁接触機取付レールと共用
2MS-H5/8.5
BKT BOTTOM SIDE TERMINAL TB2
MARKER HOLDER
品名
NAME
端子台
TERMINAL
分離板
SEPARATION PLATE
終端止め
TERMINATION STOP
短絡板
SHORT PLATE
短絡板
SHORT PLATE
短絡板
SHORT PLATE
DINレール
DIN RAIL
マーカホルダ
MARKER HOLDER
メーカー
MANUFACTURER
ワイドミュラー
WIDE MULLER
ワイドミュラー
WIDE MULLER
ワイドミュラー
WIDE MULLER
ワイドミュラー
WIDE MULLER
ワイドミュラー
WIDE MULLER
ワイドミュラー
WIDE MULLER
ワイドミュラー
WIDE MULLER
個数
Q'TY
型式
TYPE
Shared with the contactor mounting rails
PARTS LIST
EW35
マーカーホルダー
8.5 5 5 5 5 5 5 8.5
1.5 47 6.5
55