SM482_PLUS_TRM(Ver2.5_CS20.11) - 第190页
Page +$1:+$ 190 SM482 PLUS Power Block Diagram(4/8) * UPS 사용시만결선 * UPS 사용시결선변경 AM03-020599B AM03-020595B AM03-020595B AM03-014757A AM03-014756A AM03-017244B AM03-017245C J90833316A AM03-020587A 2 2 2 2 2 DC POWER(350W) (…

Page
+$1:+$
189
Power Block Diagram(3/8)
SM482
PLUS
NO. PART NO. PART NAME Q'TY Old No. Supply Supply LT Reference
1 J90831063A MAIN_POWER_CABLE_ASSY SM33-PW001 1 SM33_PW001
2 J90831253C MCCB_NF1_EARTH_CABLE_ASSY 1 SM411_PW003-2
3 J90831066D NF1_MAIN_SWITCH_CABLE_ASSY 1 SM411_PW004
4 AM03-013512D CABLE ASSY-MAIN SWITCH_TRANS 1 AM03-900132/ AM03-013512A/ EP20-900105/
AM03-013512C
SM33_PW005
5 AM03-003859B CABLE ASSY-TRANS_CP1_2 1 AM03-003859A SM48_PW007
6 AM03-003859A CABLE ASSY-TRANS_CP1_2 1 SM421_PW106
7 AM03-006873A CABLE ASSY-CP2_TB1-MC1 1 SM48_PW008

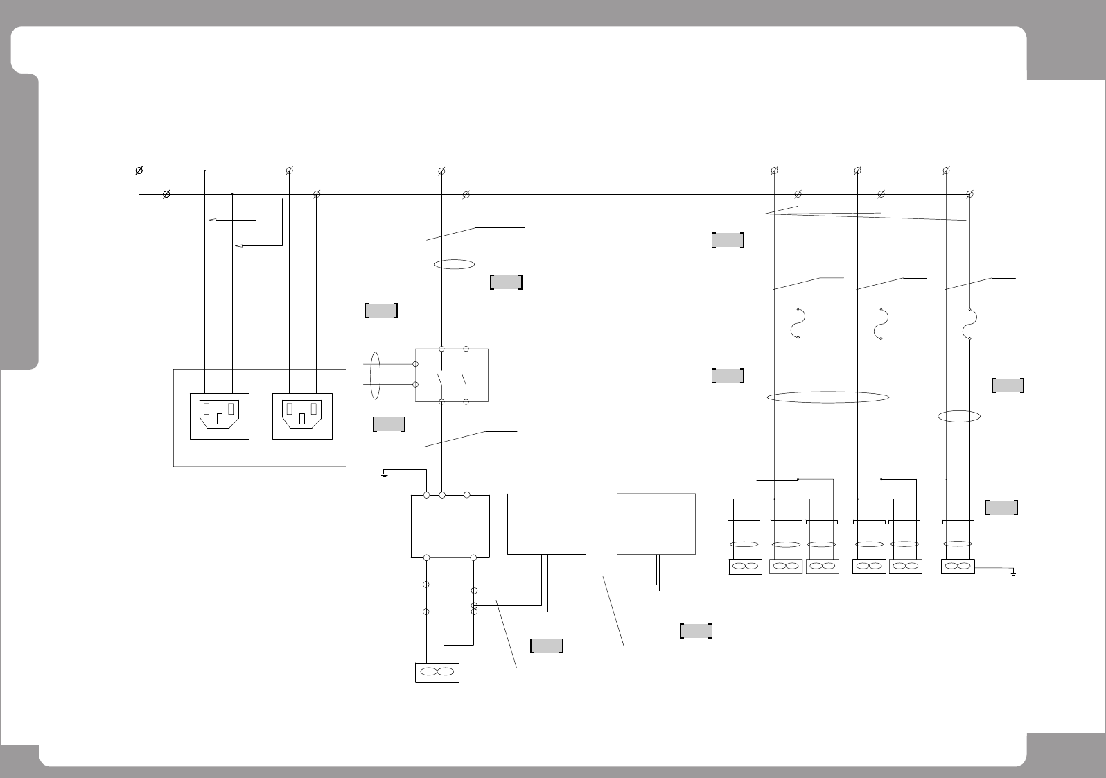
Page
+$1:+$
190
SM482
PLUS
Power Block Diagram(4/8)
* UPS사용시만결선
* UPS사용시결선변경
AM03-020599B
AM03-020595B
AM03-020595B
AM03-014757A
AM03-014756A
AM03-017244B
AM03-017245C
J90833316A
AM03-020587A
2
2 2 2
2
DC POWER(350W)
(12V)
(GND)
AC IN
5/3.3/12/-12/VDC
PE03
2
2
2
SM33_PW026
FROM CP1
1L2
1L1
AC220V
OUTLETINLET
UPS OPTION INSTALL
-UPS
(1600VA)
1L1 1L2
0.75mm(BLK)
912
58
RY 11
SC-CN24
+24V
24G
SM48C_PW044
14
13
SM48C_PW145-1
0.75mm
(RIGHT SIDE)
-FAN1
-FUSE5 (AC250V,5A)
-FAN2
0.75mm
1L1 1L2(F3) 1L1
0.75mm
1L1 1L2
-FUSE3 (AC250V,5A)
-FAN3
(LEFT SIDE)
-FAN4
1L1
1L1
1L2(F4)
-FUSE4 (AC250V,5A)
1L2
(SERVO DRIVER RACK)
-FAN5
1L2(F5)
1L21L1
SM-FAN00
SM471_PW112_LT
-PUMP
TO FRONT
1.5mm(BLK)
PC RACK
POWER SUPPLY
(SM48C_PW021)
(SM48C_PW022)
0.5mm(BLK)
0.5mm(BLK)
RACK FAN
0.6A(Max 1.2A)
MONITOR
TO REAR
MONITOR
0.75mm
0.1A
0.1A
0.1A
0.1A
0.1A
0.1A
SM48_PW113_LT
SM48_PW113_LT
6A
6C
1A
1C
1A1A
6A
1A1A
B
AA
B
6D
1B
A
2B
7D
B
8D
3B
(SM482_PW000_LT)
2
1
3
4
5
6
7
8
9

Page
+$1:+$
191
Power Block Diagram(4/8)
SM482
PLUS
NO. PART NO. PART NAME Q'TY Old No. Supply Supply LT Reference
1 AM03-006903A CABLE ASSY-CONTROL_RACK_PWR 1 SM48_PW145
2 AM03-006904A CABLE ASSY-CONTROL_RACK_PWR-EXT 1 SM48_PW145-1
3 AM03-017244B CABLE ASSY-FRONT_MONITOR_PW_12V 1 AM03-006894A / AM03-017244A SM48_PW021
4 AM03-006895A CABLE ASSY-REAR_MONITOR_PW 1 SM48_PW022
5 AM03-005488A CABLE ASSY-FAN_POWER 1 SM471_PW112
6 AM03-020595B CABLE ASSY-TB-FS/CP/MC;B 1 SM48_PW113_LT