SM482_PLUS_TRM(Ver2.5_CS20.11) - 第76页
Page +$1:+$ 76 SM482 PLUS L1200 Conveyor Assembly(1/4) - OPTION

Page
+$1:+$
75
Conveyor Ass'y(4/4)
SM482
PLUS
NO. PART NO. PART NAME Q'TY Old No. Supply Supply LT Reference
1 MC19-900014 PULLEY-WIDTH 1
2 MC03-900008 BALL BEARING 2
3 MC13-000042A SCREW,LEAD 1
4 J7053194A BEARING NUT 1
5 J7153330A PULLEY SHAFT 1
6 MC05-001026 BELT,TIMING 1 MC05-900026
7 MC19-002217A PULLEY 1 MC19-900015
8 FC30-004421A PLATE-MOTOR_NMB 1 FC09-002134A
9 EP08-002166A MOTOR,STEP 1 EP08-900121
10 FC09-002125A BRACKET-SCREW_STAND_P 1
11 FC09-002126B BRACKET-MOVE_STAND_P 1 FC09-002126A
12 MC13-001026 LM GUIDE 1 MC13-900029
13 FC18-900870 LOW PROFILE MOUNTS 2
14 FC05-000207C BASE-WIDE_ADJUST 1 FC05-000207A/ FC05-000207B
15 FC09-002124A BRACKET-FIX_STAND_P 1

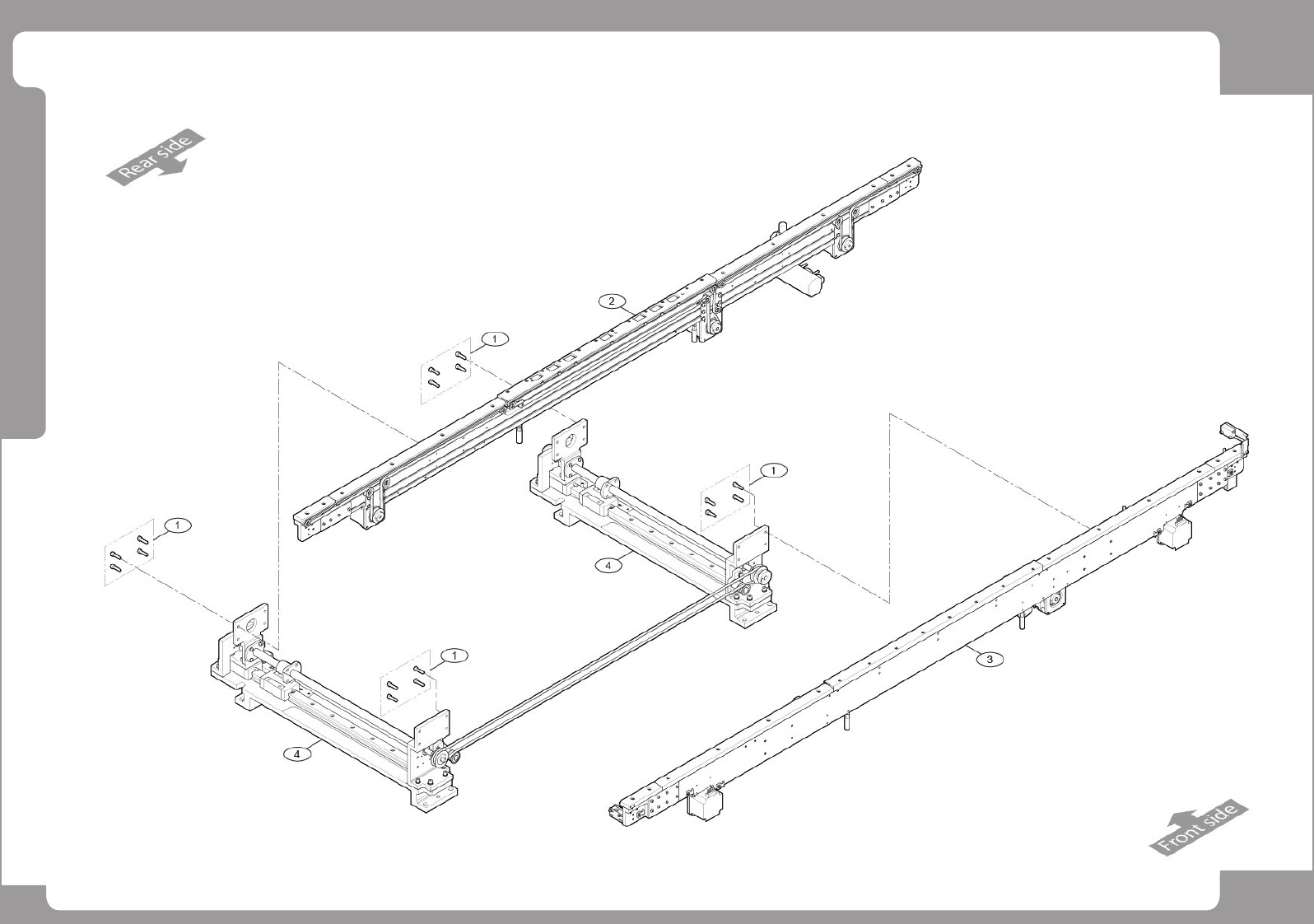
Page
+$1:+$
76
SM482
PLUS
L1200 Conveyor Assembly(1/4) - OPTION

Page
+$1:+$
77
L1200 Conveyor Assembly(1/4) - OPTION
SM482
PLUS
NO. PART NO. PART NAME Q'TY Old No. Supply Supply LT Reference
1 FC18-902761 SOCKET HEAD CAP SCREW M5*20 (NI/ZN) 16
2 AM03-014407A ASSY,CONVEYOR-MOVE_RAIL 1
3 AM03-014405A ASSY,CONVEYOR-FIX_RAIL 1
4 AM03-014406A ASSY,CONVEYOR-TRANSFER_RAIL 2