FX-3-Rev12(-J) - 第9页
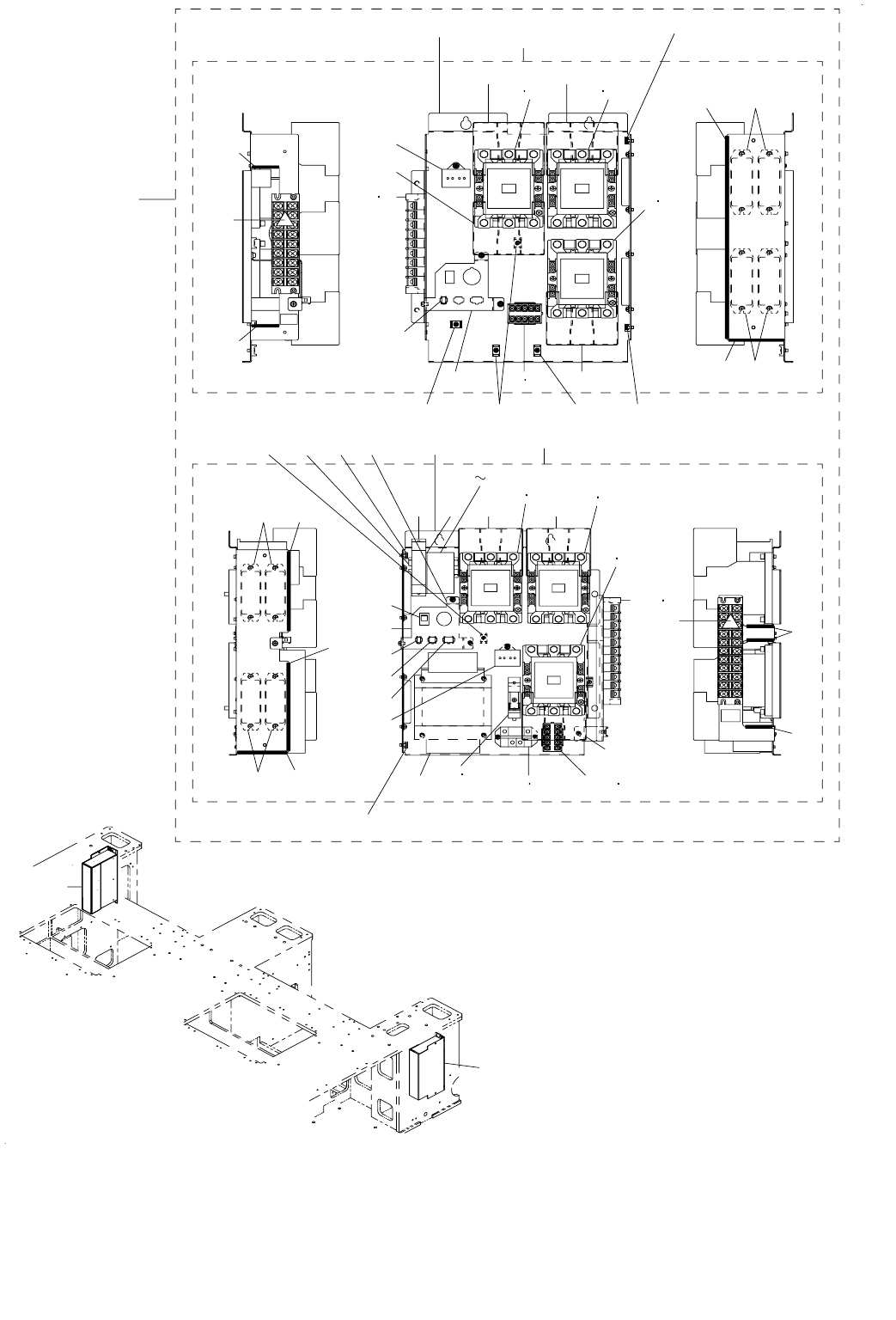
- 4 - REF.NO NOTE PART NO D E S C R I P T I O N 品 名 Qty 1 400-47055 AC INPUT ASSY AC 入力ユニット 1 2 400-47571 AC POWER INPUT UNIT(R) AC 入力ユニット(R) (1) 3 HK-0699500-90 CONNECTOR コネクタ (1) 4 HK-0699900- 20 BLOCK TERMINAL ショートピース…

- 3 -
2. BASE FRAME ELECTRIC APPARATUS COMPONENTS (1)
ベースフレーム電装関係(1)
11
10
9
8
6
7
5
3
4
2
1
TB1
11
10
9
8
6
7
5
4
1
SERI AL NO.
Re v . * *
T3T2
T1
L3L2
L1
T3T2
T1
L3L2
L1
RF 2
RF1
RF4
RF3
T3T2
T1
L3L2
L1
K1
K2
K3
CN3CN2
CN1
SW
SP
TB2
RL 5
RL 2
RL 4
RL 1
TF
40
24
2526 33
27
28
22
44
39
36
34
31
35
44
46
29 32
18
21
40
23
30
23
30
40
23
30
16
17
41
31
31
38 31
31
47
42
44
15
RF2
9
L3
5
7
RF4
8
6
RF 3
T2
K1
K2
T1
RL 1
T3
L2
T3
T1
L1
L1
TB1
1
2
L3
L1
T1
1
L3
CN1
3
4
T2
4
6
Rev .* *
SERI AL NO.
T3
9
7
T2
5
SP
8
L2
RF 1
K3
L2
6
2
3
4
5
14 5 14
5
14
6
7
8
9
9
10
11
11
12
12
12
12
13
43
12
45 4545
11
45
45
11
31
38
37
1
1
1

- 4 -
REF.NO NOTE PART NO D E S C R I P T I O N
品 名
Qty
1 400-47055 AC INPUT ASSY
AC 入力ユニット
1
2 400-47571 AC POWER INPUT UNIT(R)
AC 入力ユニット(R)
(1)
3 HK-0699500-90 CONNECTOR
コネクタ
(1)
4 HK-0699900-20 BLOCK TERMINAL
ショートピース
(2)
5 HA-0062000-00 MAGNETIC CONTACTOR
電磁開閉器
(3)
6 HB-0017500-00 RELAY
リレー
(1)
7 HB-0005800-10 RELAY CLASP
リレ−止め金具
(1)
8 400-48153 AC PWR INPT UNT R CBL 07 ASM
AC パワー入力ユニット R ケーブル07組
(1)
9 400-48155 AC PWR INPT UNT R RF ASM
AC パワー入力ユニット R RF 組
(1)
10 400-82071 AC PWR INPT UNT R SP ASM
AC パワー入力ユニット R SP 組
(1)
11 HA-0062000-10 MAGNETIC CONTACTOR
端子カバー
(4)
12 HX-0009600-0A GROMMET
エッジングブッシュ
(0.65)
13 CM-3001000-01 LABEL
危険電圧警告シール(31.5)
(1)
14 E8760-452-U00 TUBE
スミチューブ
(0.15)
15 400-47572 AC POWER INPUT UNIT(L)
AC 入力ユニット(L)
(1)
16 HK-0699501-10 BLOCK TERMINAL
端子台
(1)
17 HK-0699900-20 BLOCK TERMINAL
ショートピース
(2)
18 HK-0695500-10 BLOCK TERMINAL
端子台
(7)
19 HK-0695900-20 BLOCK TERMINAL
ショートピース
(2)
20 HK-0695900-30 BLOCK TERMINAL
端子台
(1)
21 HK-0695900-0A MARKER
マーカ
(1)
22 400-48063 AC TRANS
AC トランス
(1)
23 HA-0062000-00 MAGNETIC CONTACTOR
電磁開閉器
(3)
24 HB-0017500-00 RELAY
リレー
(1)
25 HB-0005800-10 RELAY CLASP
リレ−止め金具
(1)
26 HB-0011000-00 RELAY
リレー
(1)
27 HB-0017200-00 RELAY
リレー
(1)
28 HB-0015400-10 RELAY
リレーソケット
(1)
29 HD-0026500-00 SENSOR
センサー
(1)
30 E8760-452-U00 TUBE
スミチュ−ブ
(0.18)
31 HX-0009600-0A GROMMET
エッジングブッシュ
(1.03)
32 HK-0695900-00 BLOCK TERMINAL
ブロックターミナル
(1)
33 HB-0011000-10 RELAY COVER
関連パーツ
(1)
34 400-48109 AC PWR INPT UNT L CBL 10 ASM
AC パワー入力ユニット L ケーブル10組
(1)
35 400-48122 AC PWR INPT UNT L CBL 23 ASM
AC パワー入力ユニット L ケーブル23組
(1)
36 400-48129 AC PWR INPT UNT L CBL 30 ASM
AC パワー入力ユニット L ケーブル30組
(1)
37 400-48134 AC PWR INPT UNT L CBL 35 ASM
AC パワー入力ユニット L ケーブル35組
(1)
38 400-48145 AC PWR INPT UNT L RF ASM
AC パワー入力ユニット L RF 組
(1)
39 400-82070 AC PWR INPT UNT L SP ASM
AC パワー入力ユニット L SP 組
(1)
40 HA-0062000-10 MAGNETIC CONTACTOR
端子カバー
(3)
41 CM-3001000-01 LABEL
危険電圧警告シール(31.5)
(1)
42 400-47097 DIN RAIL
ディンレール
(1)
43 400-82024 AC INPUT PLATE R
AC 入力プレート R
(1)
44 HX-0029400-00 FIXED BASE
固定ベース
(3)
45 HX-0029400-00 FIXED BASE
固定ベース
(6)
46 400-82023 AC INPUT PLATE_L
AC 入力プレート L
(1)
47 400-82650 AC INPUT BRACKET
AC 入力ブラケット
(1)

- 5 -
3. BASE FRAME ELECTRIC APPARATUS COMPONENTS (2)
ベースフレーム電装関係(2)
1
3
4
5
6
7
8
9
10
12
13
10
16
18
19
18
19
18
19
18
19
18
19
18
19
21
21
22
22
23
23
32
32
33
33
33
35
35
35
35
35
35
35
35
35
35
35
35
35
23
35
36
37
39
39
39
39
39
39
39
39
39
39
39
39
39
39
40
42
45
46
26
18
19
18 19
18
19
18
19
18
19
18
19
18
19
20
18
19
21
18
19
18
19
15
20
20
14
A
A
11
28
11
28
22
34
18
19
18
19
35
39
35
39
39
35
35
39
29
38
18
19
18
19
17
17
17
27
27
2
27
27
30
31
41
43
44
24
25
47
48
39
35
18
19