RS-1_RS-1-XL_RS-1R-Rev16 - 第186页
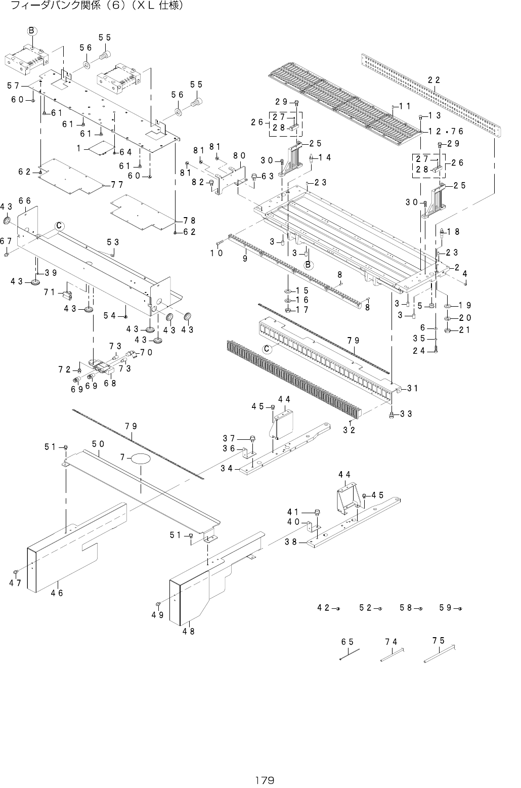
- - 90. FEEDERBANK COMPONENTS(6)(TY PEXL)

- -
REF.NO NOTE PARTNO DESCRIPTION Qty
1 401-87630 LIFTER_ASM 1
2 401-87633 B_LIFTER_FRAME_L (1)
3 401-87634 B_LIFTER_FRAME_R (1)
4 SL-6082592-TN SCREWM8L=25 (8)
5 401-87635 AIR_CYLINDER (2)
6 PC-0152030-00 SPEEDCONTROLLER (4)
7 SM-6122002-TN SCREWM12L=20 (4)
8 401-10295 LIF_CYL_SHAFT (2)
9 E2622-729-000 LIFTERTHRUSTCOLLAR (2)
10 SM-1062052-TP SCREWM6L=20
(2)
11 SB-8200003-00 BEARING (4)
12 SM-6051002-TN SCREW (16)
13 401-87636 BANK_LIFTER_L (1)
14 401-87637 BANK_LIFTER_R (1)
15 401-47453 LIFTER_SHAFT (3)
16 401-87641 LIFTER_SHAFT_AIR (1)
17 PJ-3010851-01 HALFUNION (1)
18 SM-8060552-TP SCREWM6L=5 (4)
19 400-93839 BANK_LOCATE_PIN_B2 (1)
20 400-93840 BANK_LOCATE_PIN_C2 (1)
21 WS-0820002-KN SPRINGWASHERM8 (2)
22 NM-6080003-SC NUTM8X1.25TYPE3 (2)
23 401-87642 RING_HOLDER (1)
24 RO-0982401-00 O-RING (1)
25 SM-1040801-SC SCREWM4X0.7L=8 (4)
26 401-87648 BANK_BALVE_ASM 1
27 401-87643 BANK_STOPPER_BR_L (1)
28 401-87644 BANK_STOPPER_BR_R (1)
29 PV-0105050-00 MECHANICALVALVE (2)
30 PJ-3040405-05 UNION (3)
31 SL-6042592-TN SCREWM4L=25 (4)
32 400-49671 COVERCUSHION (2)
33 SM-4030601-SC SCREWM3X0.5L=6 (2)
34 HX-0029400-00 FIXEDBASE (4)
35 SM-4040601-SC SCREWM4X0.7L=6 (4)
36 SM-1051052-TN PLATESCREWM5L=10 (4)
37 401-83169 VALVE_SUPPORT_BLACKET (1)
38 401-83170 VM230-02-00A (1)
39 401-83171 VALVE_SPACER (2)
40 PJ-3010852-01 HALFUNION8XR1/4 (1)
41 PJ-3040852-01 ELBOWUNION8XPT1/4 (1)
42 SL-4043091-SC SCREWM4L=30 (2)
43 SM-1041201-SC SCREWM4L=12 (2)
44 PX-0505010-00 SILENCER (1)
45 401-87646 GUIDE_RAIL_F_TROLLEY_ASM 1
46 400-93853 ROLLER_GUIDE_SUPPORT_FR (1)
47 SL-6040892-TN SCREWM4L=8 (2)
48 SM-1051052-TN PLATESCREWM5L=10 (2)
49 SM-1051052-TN PLATESCREWM5L=10 (4)
50 401-83193 ROLLER_GUIDE_F (1)
51 401-28068 SELECTOR_ASM 1
52 PV-0251030-00 CHECKVALVE (1)
53 PJ-3040651-03 SWIVELELBOW (2)
54 PX-0551040-00 SILENCER (1)
55 PJ-3010651-03 HALFUNION6XPT1/8 (1)
56 PV-0151250-00 MANUALVALVE (1)
57
#01
SM-4042501-SC SCREWM4X0.7L=25 2
58
#01
WP-0430801-SC WASHERM4 2
59
#01
HX-0033900-00 SPACER 2
60 401-87630 LIFTER_ASM 1
61 401-87633 B_LIFTER_FRAME_L (1)
62 401-87634 B_LIFTER_FRAME_R (1)
63 SL-6082592-TN SCREWM8L=25 (4)
64 401-87635 AIR_CYLINDER (2)
65 PC-0152030-00 SPEEDCONTROLLER (4)
66 SM-6122002-TN SCREWM12L=20 (4)
67 401-10295 LIF_CYL_SHAFT (2)
68 E2622-729-000 LIFTERTHRUSTCOLLAR (2)
69 SM-1062052-TP SCREWM6L=20 (2)
70 SB-8200003-00 BEARING (4)
71 SM-6051002-TN SCREW (16)
72 401-87636 BANK_LIFTER_L (1)
73 401-87637 BANK_LIFTER_R (1)
74 401-47453 LIFTER_SHAFT (3)
75 401-87641 LIFTER_SHAFT_AIR (1)
76 PJ-3010851-01 HALFUNION (1)
77 SM-8060552-TP SCREWM6L=5 (4)
78 400-93839 BANK_LOCATE_PIN_B2 (1)
79 400-93840 BANK_LOCATE_PIN_C2 (1)
80 WS-0820002-KN SPRINGWASHERM8 (2)
81 NM-6080003-SC NUTM8X1.25TYPE3 (2)
82 401-87642 RING_HOLDER (1)
83 RO-0982401-00 O-RING (1)
84 SM-1040801-SC SCREWM4X0.7L=8 (4)
85 401-87648 BANK_BALVE_ASM 1
86 401-87643 BANK_STOPPER_BR_L (1)
87 401-87644 BANK_STOPPER_BR_R (1)
88 PV-0105050-00 MECHANICALVALVE (2)
89 PJ-3040405-05 UNION (3)
90 SL-6042592-TN SCREWM4L=25 (4)
91 400-49671 COVERCUSHION (2)
92 SM-4030601-SC SCREWM3X0.5L=6 (2)
93 HX-0029400-00 FIXEDBASE (4)
94 SM-4040601-SC SCREWM4X0.7L=6 (4)
95 SM-1051052-TN PLATESCREWM5L=10 (4)
96 401-83169 VALVE_SUPPORT_BLACKET (1)
97 401-83170 VM230-02-00A (1)
98 401-83171 VALVE_SPACER (2)
99 PJ-3010852-01 HALFUNION8XR1/4 (1)
100 PJ-3040852-01 ELBOWUNION8XPT1/4 (1)
101 SL-4043091-SC SCREWM4L=30 (2)
102 SM-1041201-SC SCREWM4L=12 (2)
103 PX-0505010-00 SILENCER (1)
104 401-87647 GUIDE_RAIL_R_TROLLEY_ASM 1
105 400-93853 ROLLER_GUIDE_SUPPORT_FR (1)
106 SL-6040892-TN SCREWM4L=8 (2)
107 SM-1051052-TN PLATESCREWM5L=10 (2)
108 SM-1051052-TN PLATESCREWM5L=10 (4)
109 401-83205 ROLLER_GUIDE_R (1)
110 401-28068 SELECTOR_ASM 1
111 PV-0251030-00 CHECKVALVE (1)
112 PJ-3040651-03 SWIVELELBOW (2)
113 PX-0551040-00 SILENCER (1)
114 PJ-3010651-03 HALFUNION6XPT1/8 (1)
115 PV-0151250-00 MANUALVALVE (1)
116
#01
SM-4042501-SC SCREWM4X0.7L=25 2
117
#01
WP-0430801-SC WASHERM4 2
118
#01
HX-0033900-00 SPACER 2
119 BT-0600400-EC URETHANETUBEBLUE6X4 27
120 BT-0800501-EA URETHANETUBEBLUE8X5 12
121 PJ-3080600-07 UNIONY 3
122
#01
400-02287 BANKSWCABLEASSY 1
123
#01
400-02287 BANKSWCABLEASSY 1
124 SM-6083502-TN SCREW 2
125 401-83207 SCREWM8L=70 2
126 WS-0820002-KN SPRINGWASHERM8 4
127 WP-0841601-SC WASHER8.4X17.4X1.6 4

- -
90.FEEDERBANKCOMPONENTS(6)(TYPEXL)

- -
REF.NO NOTE PARTNO DESCRIPTION Qty
1 401-69473 BANKIDPCB(RF)ASM 1
2 401-89202 BANK_BASE_R 1
3 PH-0600120-C0 PARALLELPINTYPEB6X12 4
4 EZ-4453564-01 PLUGTAPERSCREW 1
5 E2602-721-000 BANKLOCATEBUSHA 2
6 WP-0430800-SC WASHERM4 13
7 E5721-729-000 LABEL 1
8 PH-0300080-U0 PARALLELPINTYPEB3X8 8
9 402-42076 CLAMP_BLOCK_RS1 4
10 SM-6041602-TN SCREWM4X16 12
11 PH-0300080-U0 PARALLELPINTYPEB3X8 10
12
#01
401-67530 GUIDE_RAIL 4
13 SM-3041052-TN SCREWM4L=10 24
14 E2609-721-000 BANKLOCATEPINA 1
15 WP-0841601-SC WASHERM8 1
16 WS-0820002-KN SPRINGWASHERM8 1
17 NM-6080003-SC NUTM8X1.25TYPE3 1
18 E2610-721-000 BANKLOCATEPINB 1
19 WP-0841601-SC WASHERM8 1
20 WS-0820002-KN SPRINGWASHERM8 1
21 NM-6080003-SC NUTM8X1.25TYPE3 1
22 401-83200 POSITIONING_PLATE 1
23 PH-0300080-U0 PARALLELPINTYPEB3X8 2
24 SM-6041602-TN SCREWM4X16 13
25 401-83142 MARK_STAND 2
26 E2505-729-0A0 MARKASM. 2
27 E2601-725-000 MARK (1)
28 E2505-729-000 MARKBASE (1)
29 SL-6041292-TN SCREWM4L=12 4
30 SL-6052092-TN SCREWM5L=20 4
31 401-83176 CAN_CONNECTOR_BR 1
32 401-82051 CONNECTOR_BIND 112
33 SL-6051292-TN SCREWM5L=12 4
34 402-09115 BANK_PLATE_L 1
35 WS-0410002-KN SPRINGWASHERM4 13
36 400-94723 TOROLLEY_COV_BR 1
37 SL-6061092-TN SCREWM6L=10 2
38 402-09116 BANK_PLATE_R 1
39 401-11974 RIVET_1661-0410 2
40 400-94723 TOROLLEY_COV_BR 1
41 SL-6061092-TN SCREWM6L=10 2
42 HX-0070600-0A MOUNTBASE 2
43 HX-0005500-0N RUBBERBUSHING 7
44 401-83151 T_SAFETY_COVER_BR 2
45 SL-6040892-TN SCREWM4L=8 6
46 401-83194 TROLLEY_SAFETY_COVER_L 1
47 SL-6040892-TN SCREWM4L=8 4
48 401-88175 TROLLEY_SAFETY_COVER_R 1
49 SL-6040892-TN SCREWM4L=8 4
50 401-83154 REGULATION_BAR_RS 1
51 SL-6040892-TN SCREWM4L=8 4
52 HX-0070600-00 MOUNTBASE 3
53 SM-3040652-TN SCREWM4L=6 2
54 HX-0070600-00 MOUNTBASE 4
55 SM-6101602-TP SCREWM10L=16 2
56 WP-1052001-SC WASHER10 2
57 401-96173 BANK_PCB_BASE 2
58 HX-0070600-0A MOUNTBASE 8
59 HX-0070600-0A MOUNTBASE 2
60 HX-0070600-00 MOUNTBASE 2
61 SM-0040601-SC SCREWM4X0.7L=6 4
62 SL-4030681-SC SCREWM3L=6 18
63 SL-6061292-TN SCREW 2
64 SL-4850591-SC SCREWM2.5L=5 4
65 EA-9500B01-00 CABLEBAND 1
66 401-96257 BANK_PCB_COVER 1
67 SL-6040892-TN SCREWM4L=8 4
68 400-93977 5PORT_SOLENOID_VALVE 1
69 PJ-3010852-01 HALFUNION8XR1/4 2
70 PJ-3040852-01 ELBOWUNION8XPT1/4 1
71 401-83168 DIFFERENTDIAMETER_T 2
72 SL-6040892-TN SCREWM4L=8 2
73 PX-0551040-00 SILENCER 2
74 BT-0600400-EC URETHANETUBEBLUE6X4 2
75 BT-0800501-EA URETHANETUBEBLUE8X5 2
76
#02
401-83208 GUIDE_RAIL_R 4
77 401-83783 ELECBANKL-SIDEPCBASM 1
78 401-83784 ELECBANKR-SIDEPCBASM 1
79 401-84971 POSITION_LAVEL_56 2
80 401-83203 BANK_CONNECTOR_A_BR 1
81 HX-0070600-0A MOUNTBASE 1
82 SL-6051092-TN SCREWM5L=10 1