RS-1_RS-1-XL_RS-1R-Rev16 - 第19页
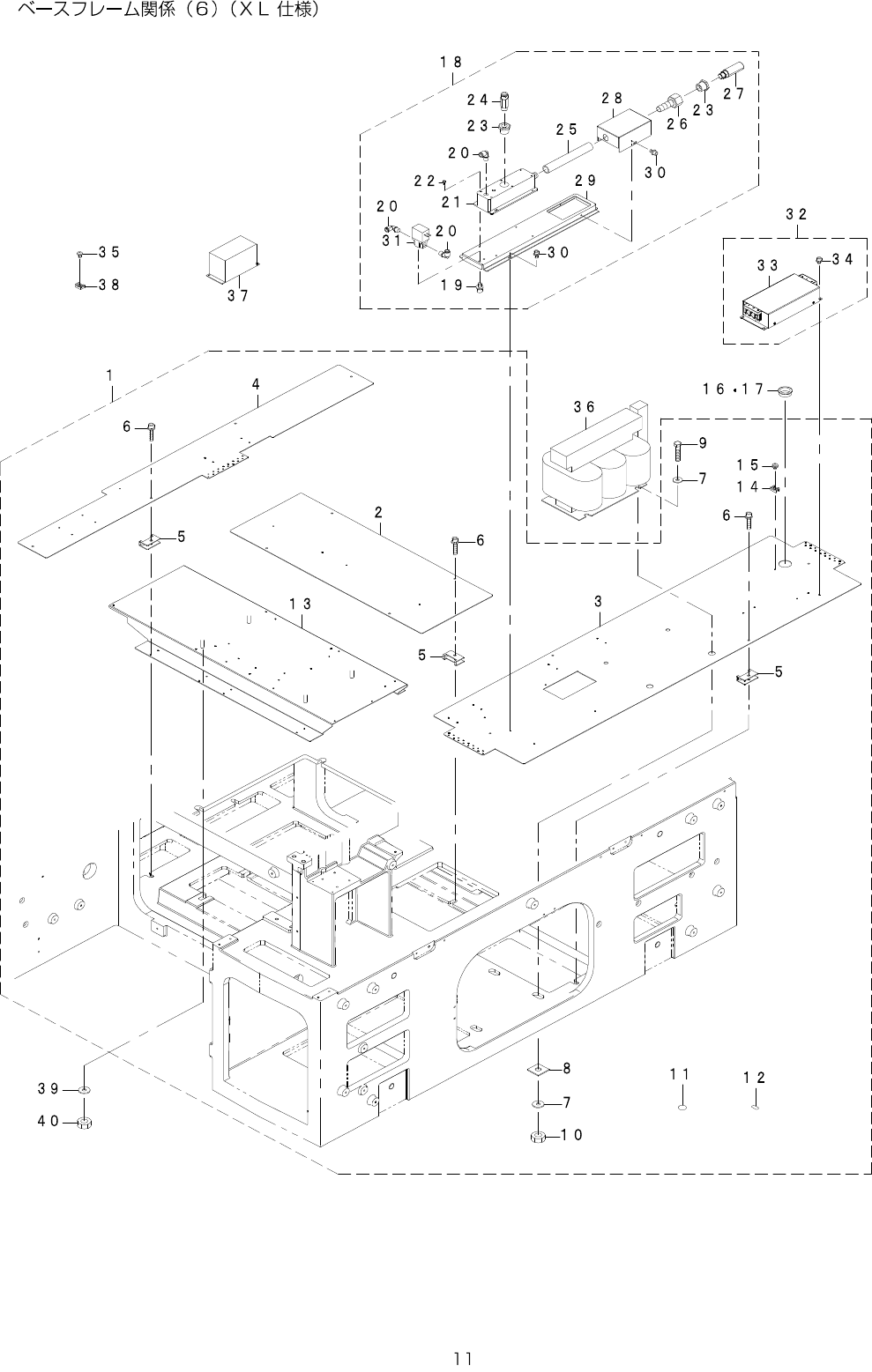
- - REF.NO NOTE PARTNO DESCRIPTION Qty 1 402-15193 BASE_PLATE_ASSY_XL 1 2 402-15096 BASE_PLATE_CB (1) 3 402-15097 BASE_PLATE_R_XL (1) 4 402-15098 BASE_PLATE_L_XL (1) 5 L110E-121-000 BASEPLATENUT (12)…

- -
6. BASEFRAMECOMPONENTS(6)(TYPEXL)

- -
REF.NO NOTE PARTNO DESCRIPTION Qty
1 402-15193 BASE_PLATE_ASSY_XL 1
2 402-15096 BASE_PLATE_CB (1)
3 402-15097 BASE_PLATE_R_XL (1)
4 402-15098 BASE_PLATE_L_XL (1)
5 L110E-121-000 BASEPLATENUT (12)
6 SL-6052592-TN SCREWM5L=25 (12)
7 400-94475 BPWASHER (4)
8 400-44814 WASHERPLATE (2)
9 400-94474 TRANS_BOLT (2)
10 NM-6120001-SC NUTM12X1.75TYPE1 (2)
11 100-04109 GROUNDMARK (3)
12 CM-2001000-01 PEMARKLABEL (1)
13 401-95247 BASE_PLATE_C (1)
14 HX-0051900-00 FIXINGBASE (1)
15 SL-4040691-SC SCREWM4L=6 (19)
16
#02
HX-0018800-0F GROMMET 1
17
#03
HX-0057900-00 PERFECTROCK 1
18 402-15195 EJECTOR_ASSY_XL 1
19 SL-6051092-TN SCREWM5L=10 (2)
20 PJ-3040852-01 ELBOWUNION8XPT1/4 (3)
21 402-01542 EJECTOR (1)
22 SL-6041092-TN SCREWM4L=10 (4)
23 402-06568 BUSHING (2)
24 PV-0253010-00 CHECKVALVE (1)
25 402-01547 EXHAUST_HOSE (0.18)
26 402-01546 HOSE_JOINT (1)
27 PX-0553030-00 SILENCER (1)
28 402-15093 MUFFLER_COVER (1)
29 402-15094 EJECTOR_BASE (1)
30 SL-6040892-TN SCREWM4L=8 (4)
31 402-05717 EJSVCABLEASM (1)
32 401-83540 ACINPUTUNIT 1
33 401-82379 NOISEFILTER (1)
34 SL-6040692-TN SCREWM4L=6 (2)
35 SM-4040601-SC SCREWM4X0.7L=6 31
36
#01
401-91280 TRANSFORMER 1
37
#01
HN-0040100-00 NOISEFILTER 1
38 HX-0029400-00 FIXEDBASE 31
39 400-94475 BPWASHER 4
40 NM-6100001-SC NUTM10X1.5 4

- -
7. BASEFRAMEELECTRICAPPARATUSCOMPONENTS(1)