SM471_TechnicalReference(Eng_Ver1.3) - 第125页
Page SAMSUNG TECHWIN 11 5 SM471 C onveyor Board Interface (2/5) NO. Lev . P ART NO. P ART NAME Q'TY Old No. Supply Supply L T Reference 1 AM03-0056 85A CABLE ASSY -F_ANC_SOL-EXT 1 S M 4 7 1 - C S 111 - 1 2 AM03-0056…

Page
SAMSUNG TECHWIN
114
SM471
Conveyor Board Interface (2/5)
[1 ]
[2 ] [3 ] [4 ]
[6 ] [7 ]
[5 ]
[8 ] [9 ] [8 ]
[1 0 ]
[11]
CN14S
CONVEYOR
I/F BOARD
CONVEYOR
I/F BOARD
24P
CN14P
21
16
15
4
9
33
4
9
15
16
21
FRONT BUT UP (F-BUT)
REAR WORK STOPPER UP (R-STS-UP)
REAR WORK STOPPER DN (R-STS-DN)
FRONT WORK STOPPER UP (F-STS-UP)
FRONT WORK STOPPER DN (F-STS-DN)
REAR BUT UP (R-BUT)
1
2
3
6
7
8
AXIS SENSOR BOARD
CN12
8
7
6
1
2
3
10P
CN9P
6P
CN9S
4
3
2
4
3
2
33
1
4
1
4
1
2
1
2
INLINE AFTER
INLINE BEFORE
5
3
5
3
4
6
4
6
2
2
11
BUSY OUTPUT
AVAILABLE OUTPUT
DF1B-6D P-2.5DSA
SM421_CV106-1
SM421-CV106-2
3
4
2
1
3
4
2
1
SMEMA
DF1B-24D P-2.5DSA
CN12P
6P
CN12S
6
4
2
5
3
1
2
1
GND
+24V
2
1
HEAD MAIN AIR
VACUUM PUMP PWR
SM471_PW146-1
3
1
6
4
2
5
DF1B-6D P-2.5DSA
CN11P
6P
CN11S
6
2
5
4
3
1
3
1
6
2
5
4
DF1B-6D P-2.5DSA
CN10P
6P
CN10S
6
2
5
4
3
1
3
1
6
2
5
4
DF1B-6D P-2.5DSA
2
1
2
1
2
1
2
1
+24V
REAR D_CART SOL1
+24V
REAR D_CART SOL2
+24V
FRONT D_CART SOL1
+24V
FRONT D_CART SOL2
DOCKING CART OPTION
SM33_CV028
FRONT DOCKING CART SOL VALVE
SM33_CV029
REAR DOCKING CART SOL VALVE
DF1B-6D P-2.5DSA
22
4
5
6
4
5
6
33
CN7P
6P
CN7S
11
CN13S
2
5
6
3
4
6P
CN13P
1
2
5
6
3
4
1
TW-BZ
SM471_CV104
SM471_CV104-1
A8
B7
A7
B9
A9
B8
A2
B1
A1
B2
SC-J4R-4
A8
B7
A7
B9
A9
B8
A2
B1
A1
B2
SM471_CA202
SC-J9L-3
SC-J9-4
DF1B-6D P-2.5DSA
CN5P
24P
CN5S
7
4
7
4
9
9
2
2
DF1B-24D P-2.5DSA
2
1
A2
B2
A1
B1
FANC SOL
SC-J5R-3
SM471_CS111
2
1
2
1
SM471_CS111-1
A10
B10
A9
B9
SM471_CV201
2
1
2
1
SC-J10L-3
2
1
2
1
SM471_CS111-2
SM471_CS111-3
A10
B10
A9
B9
FRONT ANC SOL
REAR ANC SOL
SM411_CS135
GREEN
24G
2
4
3
RED
BLUE
1
BLUE
GREEN
TOWER LAMP
RED
24G
RED LAMP
BLUE LAMP
GREEN LAMP
BUZZER
A1
B1
2
1
+24V
BZ
BUZZER
RED
TOWER LAMP
GREEN
BLUE
+24V
BZ
A1
B1
2
4
3
1
2
1

Page
SAMSUNG TECHWIN
115
SM471
Conveyor Board Interface (2/5)
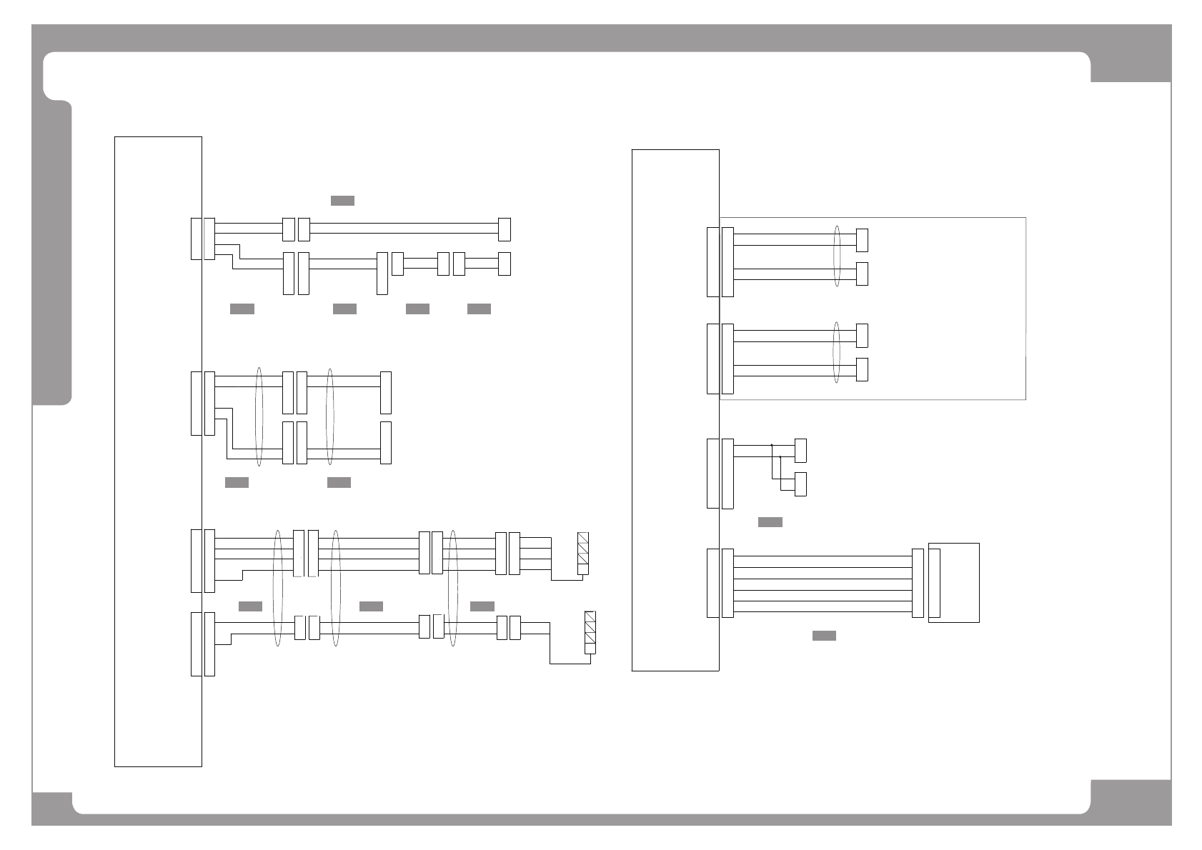
NO. Lev. PART NO. PART NAME Q'TY Old No. Supply Supply LT Reference
1 AM03-005685A CABLE ASSY-F_ANC_SOL-EXT 1 SM471-CS111-1
2 AM03-005684A CABLE ASSY-FR_ANC_SOL 1 SM471_CS111
3 AM03-005430A CABLE ASSY-AX_X2_F_AREA_SNS_J5R-J10L 1 SM471_CV201
4 AM03-005686A CABLE ASSY-R_ANC_SOL-EXT1 1 SM471_CS111-2
5 AM03-005687A CABLE ASSY-R_ANC_SOL-EXT2 1 SM471_CS111-3
6 AM03-003541A CABLE ASSY-INLINE_IN-OUT_CVIF 1 SM421_CV106-1
7 AM03-003542A CABLE ASSY-INLINE_IN-OUT 1 SM421-CV106-1-2
8 AM03-005436A CABLE ASSY-TOWER_LAMP_J9L 1 SM471_CV104-1
9 AM03-005400A CABLE ASSY-CAN_TW_J4R-J9L 1 SM471_CA202
10 AM03-005699A CABLE ASSY-VACUUM_EJECTOR_PWR 1 SM471-PW146-1
11 AM03-004348A CABLE ASSY-AXIS_SENSOR_BD_STP-BUT 1 SM411_CS135

Page
SAMSUNG TECHWIN
116
SM471
Conveyor Board Interface (3/5)
22
24
22
24
24
22
24
22
15
17
12
13
8
11
10
15
17
12
13
8
11
10
23
21
20
23
21
20
16
18
19
16
18
19
1414
CONVEYOR
I/F BOARD
24P
CN15P
9
7
6
4
3
5
2
1
9
7
6
4
3
5
2
1
CN15S
CONVEYOR
I/F BOARD
11
15
17
12
13
8
11
10
15
17
12
13
8
11
10
23
21
23
20
21
20
18
16
19
18
16
19
14 14
2
3
3
1
2
1
3
2
2
3
CN16S
9
7
6
4
3
5
2
1
9
7
6
4
3
5
2
1
24P
CN16P
FRONT ANC CLOSE SENSOR
FRONT ANC OPEN SENSOR
+24V
FRONT ANC CL
24G
+24V
FRONT ANC OP
24G
FA-CL
FA-OP
ZC153A2
ZC153A2
SM411_CV109
RA-CL
24G
REAR ANC OP
+24V
24G
REAR ANC CL
+24V
ZC153A2
ZC153A2
REAR ANC OPEN SENSOR
REAR ANC CLOSE SENSOR
3
2
2
3
1
2
1
3
3
2
11
SM33_CV010
RA-CL
FA-CL
RA-OP
FA-OP
1
4
6
5
2
3
1
4
6
5
2
3
SM411_CV109-2
1
4
6
5
2
3
1
4
6
5
2
3
SM411_CV109-1
2
1
PUMP ALARM
DF1B-24D P-2.5DSA
RA-OP
FANC-EXT
RANC-EXT
SM33_CV010
SM471_PW147
[1 ] [2 ]
[3 ] [4 ]
[2 ]