SP18 机械Parts List - 第67页
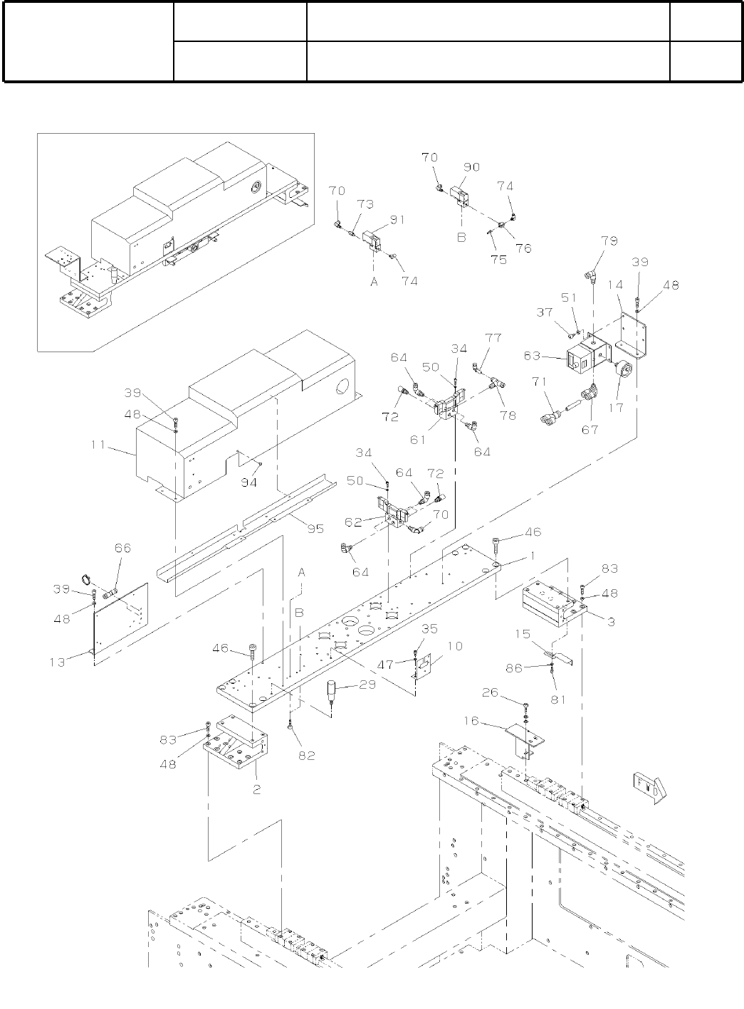
Ref No. Remarks R 1 Q't y 6-A スキージヘッド Squeegee Head イラスト No. Part No. 品 名 品番 数量 R 2 パーツリスト Kit No . キット品 番 Kit Name キット名称 N610012848AA Part N ame 備 考 セクションNo. PARTS LIST Section No. R 3 PLATE 1 1 N210025244AE HOLDER…

6-A
スキージヘッド
Squeegee Head
パーツレイアウト
Kit No.
キット品
番
Kit Name
キット名称
N610012848AA
セクションNo.
PARTS LAYOUT
Section No.
M49

Ref
No.
Remarks
R
1
Q't
y
6-A
スキージヘッド
Squeegee Head
イラスト
No.
Part No.
品 名品番 数量
R
2
パーツリスト
Kit No.
キット品
番
Kit Name
キット名称
N610012848AA
Part Name
備 考
セクションNo.
PARTS LIST
Section No.
R
3
PLATE
1
1 N210025244AE
HOLDER
1
2 N210025245AD
HOLDER
1
3 N210025246AD
BRACKET
1
10 N210025251AC
COVER
1
11 N210055404AD
BRACKET
1
13 N210043207AB
BRACKET
1
14 N210025257AA
DOG
1
15 N210055226AC
BRACKET
1
16 N210043209AB
GAUGE
1
17 N439G46702 G46-7-02
BOLT
3
26 N510019941AA WA SOCKET SP TYPE M5X12L A2J (Trivalent)
GRIP
1
29 N510020879AA GHRS-19XM6
BOLT
4
34 N510017321AA
Hexagon socket head cap screw M3X25-10.9 A2J (Trivalent)
BOLT
5
35 N510017344AA
Hexagon socket head cap screw M4X10-10.9 A2J (Trivalent)
BOLT
4
37 N510017419AA
Hexagon socket head cap screw M5X8-10.9 A2J (Trivalent)
BOLT
10
39 N510017390AA
Hexagon socket head cap screw M5X12-10.9 A2J (Trivalent)
BOLT
8
46 N510017472AA
Hexagon socket head cap screw M8X20-10.9 A2J (Trivalent)
WASHER
5
47 N510018497AA
Round finish plain washer 4 10H A2J (Trivalent)
WASHER
26
48 N510018499AA
Round finish plain washer 5 10H A2J (Trivalent)
WASHER
4
50 N510018478AA
Small round-plain washer 3 10H A2J (Trivalent)
WASHER
4
51 N510018480AA
Small round-plain washer 5 10H A2J (Trivalent)
Valve
1
61 N610026846AB Valve:-F4A00
Valve
1
62 N610026848AD Valve:-F4A02 -F4A00
Regulator
1
63 N610027892AA Regulator:-B51
JOINT
6
64 KXF02BXAA00 KQL06-01S
JOINT
2
66 KXF0E1Z9A00 KQ2H06-00
JOINT
1
67 N510010850AA KQ2LU06-02S
JOINT
3
70 KXF029LAA00 KJL06-M5
JOINT
1
71 KXF0DZUGA00 KQ2U06-99
SILENCER
4
72 KXF00W9AA00 AN103-01
JOINT
1
73 KXF02TCAA00 M-5J
JOINT
2
74 KXF02TAAA00 M-5HL-6
JOINT
1
75 KXF02T4AA00 M-5AU-6
JOINT
1
76 KXF02TLAA00 M-5UT
JOINT
1
77 KXF0DZJ5A00 KQ2L06-99
JOINT
1
78 KXF0DZ8QA00 KQ2T06-M5
JOINT
1
79 KXF0DYXPA00 KQ2L06-02S
BOLT
2
81 N510017305AA
Hexagon socket head cap screw M3X10-10.9 A2J (Trivalent)
BOLT
4
82 N510017313AA
Hexagon socket head cap screw M3X16-10.9 A2J (Trivalent)
BOLT
16
83 N510017398AA
Hexagon socket head cap screw M5X20-10.9 A2J (Trivalent)
WASHER
2
86 N510020098AA Thick washer for M3
Valve
1
90 N610037885AA Valve:-F4A04
Valve
1
91 N610037888AA Valve:-F4A05
SCREW
1
94 N510018280AA
Cross recessed Truss head machine screw M4X6-4.8 A2S (Trivalent)
BRACKET
1
95 N210083377AA
M50

6-B
スキージヘッド
Squeegee Head
パーツレイアウト
Kit No.
キット品
番
Kit Name
キット名称
N610012848AA
セクションNo.
PARTS LAYOUT
Section No.
M51