00196712-02_SM_SX4DX4_Kunde_de - 第273页
Platinenbeschreibung 6.2.1 Vision Hotlink Adapter [03050555-xx] Portal Serviceanleitung SIPLACE SX4/DX4 273 6.2 6 . 2 P o r t a l Portal 6.2.1 6 . 2 . 1 V is io n H o t lin k A d a p t e r [ 0 3 0 5 0 5 5 5 - x x ] Visio…

Platinenbeschreibung
Elektrik und Steuerung 6.1.3 SP-Verteilerbaugruppe (Stromversorger) [03076607-xx]
272 Serviceanleitung SIPLACE SX4/DX4
6.1.3
6.1.3 SP-Verteilerbaugruppe (Stromversorger) [03076607-xx]
SP-Verteilerbaugruppe (Stromversorger) [03076607-xx]
03076607-01
LED [03076607-01]
LED Farbe Status Signalname Beschreibung
D40 GN ON P150V_POWER +150VDC Portal 1
D41 GN ON P150V_POWER +150VDC Portal 2
D42 GN ON P150V_POWER +150VDC Portal 3
D43 GN ON P150V_POWER +150VDC Portal 4
D44 GN ON P40V_POWER +42VDC Portal 1
D45 GN ON P40V_POWER +42VDC Portal 2
D46 GN ON P40V_POWER +42VDC Portal 3
D47 GN ON P40V_POWER +42VDC Portal 4
D48 GN ON +24V +24VDC Portal 3/4
D49 GN ON +24V +24VDC Portal 1/2
D50 GN ON +24V +24VDC GCU 3/4
D51 GN ON +24V +24VDC GCU 1/2

Platinenbeschreibung
6.2.1 Vision Hotlink Adapter [03050555-xx] Portal
Serviceanleitung SIPLACE SX4/DX4 273
6.2
6.2 Portal
Portal
6.2.1
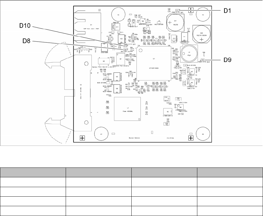
6.2.1 Vision Hotlink Adapter [03050555-xx]
Vision Hotlink Adapter [03050555-xx]
03050555-01
LED [03050555-01]
LED Farbe Status Beschreibung
D1 GN ON +12 VDC
D8 RD ON CLKUSR Fehler
D9 GN ON +5 VDC
D10 GN OFF CRC_ERR

Platinenbeschreibung
Portal 6.2.2 Kopf-Interface C700X-L/R
274 Serviceanleitung SIPLACE SX4/DX4
6.2.2
6.2.2 Kopf-Interface C700X-L/R
Kopf-Interface C700X-L/R
Kopf-Interface [03055067-xx] (Portal 1 und 3)
HINWEIS
2 Versionen
Je nach Portal kommen unterschiedliche Versionen des Kopf-Interface zum Einsatz. Die Ele-
mente auf diesen beiden Platinen sind spiegelverkehrt angeordnet. Die Funktion ist identisch.
► MODUL/Kopfinterface C700X-L [03055068Sxx] für Portal 1 und 3
► MODUL/Kopfinterface C700X-R [03055070Sxx] für Portal 2 und 4
HINWEIS
C&P20 P
Wird auf einen C&P20 P umgerüstet, dann muss das Kopfinterface mindestens Funktionsstand
-05 haben.
1 DIP-Schalterblock S1 2 LED H2-H11
3 Powercube X7 24V (Eingang 42 V) 4 DC/DC-Converter +15V, -15V, +5V, +3.3V,
+1.5V (Eingang 24 V vom Powercube)
5 X16 vom Temperatursensor X-Motor 6 X5 vom Visionboard (CAN_H/L)
7 X14, X15 (s. u.) 8 X3-X4 Flachbandleitungen vom Portalin-
terface
9 7-Segmentanzeige HCU 1(V12) und HCU2
(TWIN-Segment 2 – V2)
10 X1 Servicestecker