NPM-D3A 电路图 - 第104页
P24 OUT IN GND 1 2 3 4 -B1127 L1 Left PCB detection 1 P24 OUT IN GND 1 2 3 4 -B1131 L1 Left PCB detection 2 JST B1127 PAP-04V-S 4 3 2 1 JST B1131 PAP-04V-S 4 3 2 1 YE/WH YE GN/WH GN BK/WH BK RD/WH RD UL2464 (SPV840) 4P×2…

L2 Width Adjustment axis
ORG (Dual mode)
-B1D00
BN
BK
WH
BU
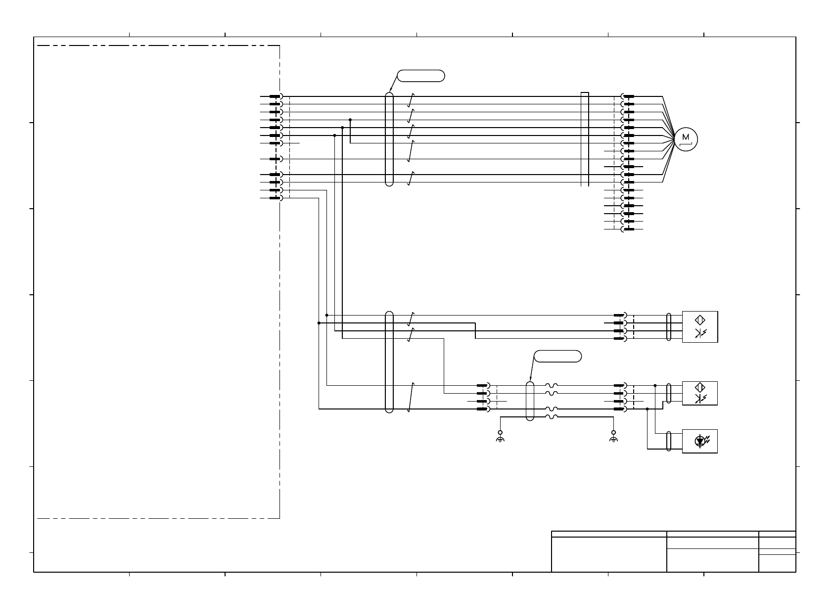
L2 Support pin
detection (Receiver)
L2 Support pin
detection (Projector)
-B1D01
BN
BK
BU
-B1D01
BN
BU
1
2
3
14
6
4
5
7
8
9
12
13
10
11
15
16
17
18
-M638
P24(M)
GND(M)
P24(C)
GND(C)
-LS
ORG
+LS
EMG
DATA+
DATA-
CW/CCW
BUSY
NC
OUTPUT COM
NC
NC
NC
NC
MOLEX
1M638R
43025-1200
1
7
2
8
3
9
4
10
5
11
6
12
AMP
B1D00P
177908-1
4
3
2
1
AMP
B1D01P
177908-1
4
3
2
1
AMP
B1D00R
177900-1
4
3
2
1
AMP
B1D01R
177900-1
4
3
2
1
AMP
1B1D01P
177908-1
4
3
2
1
AMP
1B1D01R
177900-1
4
3
2
1
N610153011AE
N610153012AC
L2 Width Adjustment motor
JST
M638R
PHDR-18VS
18
17
16
15
11
10
13
12
9
8
7
5
4
6
14
3
2
1
SEIWA
E04SR200932
EG638R
R1.25-4
JST
EG638P
R1.25-4
JST
WH
GN
RD
BK
GN/WH
GN
BK/WH
BK
RD/WH
RD
BN/WH
BN
YE/WH
YE
GN/WH
GN
BK/WH
BK
RD/WH
RD
4
For 1M638P
Main Body Wiring of NPM-D2 (P042)
Main Body Wiring of NPM-D3 (P035)
N610153347**:Main Body wiring:NPM-D2
N610159580**:Main Body wiring:NPM-D3
+V24(M)
GND(M)
+V24(C)
GND(C)
EMG20
D+SUB
D-SUB
+24V(C)
GND(C)
MOLEX
1M638P
43020-1200
12
6
11
5
10
4
9
3
8
2
7
1
5
UL2464 (SPV840) 5P×24AWG(11/0.16TA) LF BK
2464C(BPF)VVP AWG#24×5P-B
6
2464-1061/ⅡA(PF) LF 5P×24AWG
4
6
2464C(BPF)VVP AWG#24×3P-B
6
2464-1061/ⅡA(PF) LF 3P×24AWG
4
UL2464 (SPV840) 3P×24AWG(11/0.16TA) LF BK
UL2464 (SPV924) 4×25AWG(40/0.08TA) LF BK
T/2464-3599 BK LF 4×24AWG
6
6
Panasonic Smart Factory Solutions Co.,Ltd. パナソニック スマートファクトリーソリューションズ株式会社
Name
Drawing No.
Loc. No.
F4K1020-05A
1
2 3 4 5 6 7 8
A
B
C
D
E
F
1 2 3 4 5 6 7 8
A
B
C
D
E
F
Page. No.
PC Dual Conveyor Wiring:NPM-D2
(Width adjustment motor L2)
N610152998+008AG
P008

P24
OUT
IN
GND
1
2
3
4
-B1127
L1 Left PCB detection 1
P24
OUT
IN
GND
1
2
3
4
-B1131
L1 Left PCB detection 2
JST
B1127
PAP-04V-S
4
3
2
1
JST
B1131
PAP-04V-S
4
3
2
1
YE/WH
YE
GN/WH
GN
BK/WH
BK
RD/WH
RD
UL2464 (SPV840) 4P×24AWG(11/0.16TA) LF BK
MOLEX
B1120R
43025-1400
1
2
3
4
5
6
7
8
9
10
11
12
13
14
P24
OUT
IN
GND
1
2
3
4
-B1121
L1 Right PCB detection 1
P24
OUT
IN
GND
1
2
3
4
-B1126
L2 Right PCB detection 1
P24
OUT
IN
GND
1
2
3
4
-B1130
L2 Right PCB detection 2
P24
OUT
IN
GND
1
2
3
4
-B1120
L1 Right PCB detection 2
JST
B1121
PAP-04V-S
4
3
2
1
JST
B1120
PAP-04V-S
4
3
2
1
JST
B1126
PAP-04V-S
4
3
2
1
JST
B1130
PAP-04V-S
4
3
2
1
N610153013AF
IN131 P010-5A
YE/WH
YE
GN/WH
GN
BK/WH
BK
RD/WH
RD
UL2464 (SPV840) 4P×24AWG(11/0.16TA) LF BK
YE/WH
YE
GN/WH
GN
BK/WH
BK
RD/WH
RD
UL2464 (SPV840) 4P×24AWG(11/0.16TA) LF BK
+24V(1) P010-5A
IN130 P010-5A
OT104(1) P010-5A
24V GND(1) P010-5A
+24V(2) P010-5A
OT104(2) P010-5A
24V GND(2) P010-5A
5
For B1120P
Main Body Wiring of NPM-D2 (P043)
Main Body Wiring of NPM-D3 (P037)
N610153347**:Main Body wiring:NPM-D2
N610159580**:Main Body wiring:NPM-D3
MOLEX
B1120P
43020-1400
9
8
7
6
5
4
3
2
1
24VOUT
IN120
OT102
24GND
IN121
24VOUT
IN123
OT102
24GND
14
13
12
11
10
24VOUT
IN126
OT103
24GND
IN127
4
2464-1061/ⅡA(PF) LF 4P×24AWG
4
U-TKVV 4P-AWG24
6
6
2464-1061/ⅡA(PF) LF 4P×24AWG
4
U-TKVV 4P-AWG24
6
2464-1061/ⅡA(PF) LF 4P×24AWG
4
U-TKVV 4P-AWG24
6
Name
Drawing No.
Loc. No.
F4K1020-05A
1
2 3 4 5 6 7 8
A
B
C
D
E
F
1 2 3 4 5 6 7 8
A
B
C
D
E
F
Page. No.
PC Dual Conveyor Wiring:NPM-D2
(Sensor wiring PCB detection1)
N610152998+009AG
P009

P24
OUT
IN
GND
1
2
3
4
-B1133
L2 Left PCB detection 1
P24
OUT
IN
GND
1
2
3
4
-B1132
L2 Left PCB detection 2
JST
B1133
PAP-04V-S
4
3
2
1
JST
B1132
PAP-04V-S
4
3
2
1
YE/WH
YE
GN/WH
GN
BK/WH
BK
RD/WH
RD
N610153014AF
UL2464 (SPV840) 4P×24AWG(11/0.16TA) LF BK
MOLEX
B1131R
43025-0200
2
1
MOLEX
B1130R
43025-1400
1
2
3
4
5
6
7
8
9
10
11
12
13
14
YE/WH
YE
GN/WH
GN
BK/WH
BK
RD/WH
RD
UL2464 (SPV840) 4P×24AWG(11/0.16TA) LF BK
MOLEX
1B1130P
43020-1000
10
9
8
7
6
5
4
3
2
1
MOLEX
1B1130R
43025-1000
1
2
3
4
5
6
7
8
9
10
+24V(1)
P009-6C
IN130
P009-6C
OT104(1)
P009-6C
24V GND(1)
P009-6C
+24V(2)
P009-6C
IN131
P009-6E
OT104(2)
P009-6C
24V GND(2)
P009-6D
5
N610153347**:Main Body wiring:NPM-D2
N610159580**:Main Body wiring:NPM-D3
For B1130P
Main Body Wiring of NPM-D2 (P043)
Main Body Wiring of NPM-D3 (P037)
For B1131P
Main Body Wiring of NPM-D2 (P043)
Main Body Wiring of NPM-D3 (P037)
MOLEX
B1131P
43020-0200
2
1
MOLEX
B1130P
43020-1400
14
13
12
11
10
9
8
7
6
5
4
3
2
1
24VOUT
IN130
OT104
24GND
IN131
IN132
24VOUT
IN125
OT104
24GND
24VOUT
OT105
24GND
IN133
4
2464-1061/ⅡA(PF) LF 4P×24AWG
4
U-TKVV 4P-AWG24
6
2464-1061/ⅡA(PF) LF 4P×24AWG
4
U-TKVV 4P-AWG24
6
6
Panasonic Smart Factory Solutions Co.,Ltd. パナソニック スマートファクトリーソリューションズ株式会社
Name
Drawing No.
Loc. No.
F4K1020-05A
1
2 3 4 5 6 7 8
A
B
C
D
E
F
1 2 3 4 5 6 7 8
A
B
C
D
E
F
Page. No.
PC Dual Conveyor Wiring:NPM-D2
(Sensor wiring PCB detection2)
N610152998+010AG
P010