4OM-1050-002 - 第35页
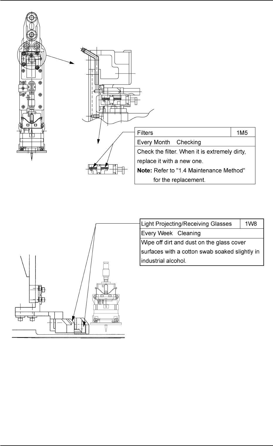
1.3 Maintenance Spots 0207-004 1-22 AFO01ETRP (10) Linear Measure Detection Section Fig. 4A23 Fig. 4A24

Cam Follower
Opening of Head Cap
Miniature Stroke Bearingޓޓ 1M2
Every Month Inspection/Lubrication (DAPHNE EPONEX GREASE No. 1)
Move the cam follower to the lowest position.
Push up the vacuum nozzle and release your finger. When the vacuum nozzle does not
move down smoothly, cleaning and lubrication are required.
Note:
Note:
Refer to "1.4.5 Disassembly, Cleaning, and Lubrication of Miniature Stroke
Bearing".
Miniature Stroke Bearingޓޓ 6M11
Every 6 Months Cleaning
• Refer to "1.4.5 Disassembly, Cleaning, and Lubrication of Miniature Stroke Bearing"
and wash the MSB shaft and outer cylinder with kerosene for 5 to 10 minutes, using
the ultrasonic cleaner.
• When the upper and lower seals are scratched or deformed or foreign substances
have accumulated on them, replace them with new ones (630 048 0849).
Fig. 4A21
Fig. 4A22
0307-005 1-21
AFO01ETRP
1.3 Maintenance Spots

1.3 Maintenance Spots
0207-004 1-22 AFO01ETRP
(10) Linear Measure Detection Section
Fig. 4A23
Fig. 4A24

(11) Main Body Driving Section
1.3 Maintenance Spots
0207-004 1-23 AFO01ETRP
Fig. 4A25