00193437-03_AI_PowerSupplyConversion_DE EN - 第66页
5 Stromversorgung am Automaten S-27 HM/ und am BE-Wagen umrüsten Mon tageanleitung Stromversorgung umrüsten 5.6 S-27 HM von 3 x 400 V ~ auf 3 x 208 V ~ umrüsten Ausgabe 12/2013 64 5.6.6.2 4-Leiteranschluss Beim 4-Leiter …

Montageanleitung Stromversorgung umrüsten 5 Stromversorgung am Automaten S-27 HM/ und am BE-Wagen umrüsten
Ausgabe 12/2013 5.6 S-27 HM von 3x 400 V~ auf 3 x 208 V~ umrüsten
63
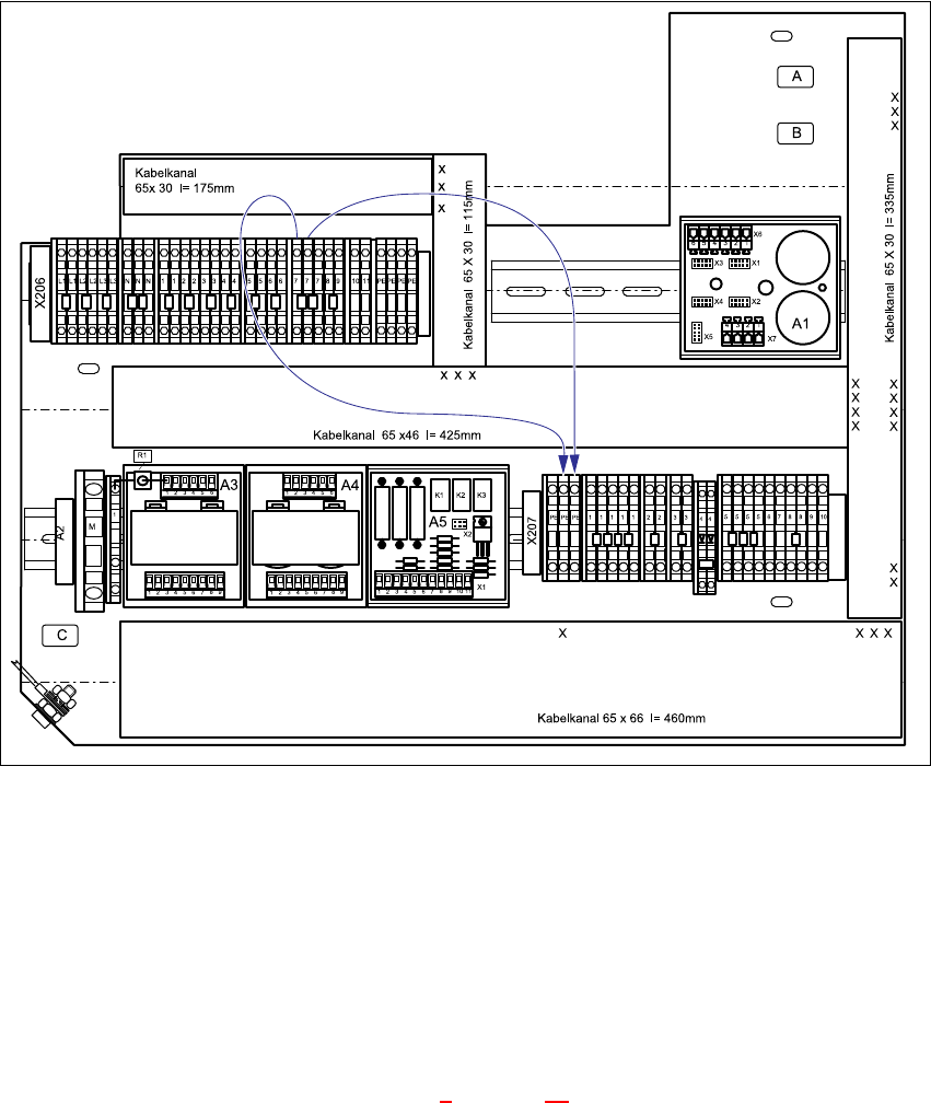
5.6.6 5- bzw. 4-Leiteranschluss der Netzversorgung
Je nach Vorgabe durch die Stromversorgungsunternehmen wird die Anschlusstechnik in 5- bzw.
4-Leiterkabeln ausgeführt. Der Automat wird standardmäßig in 5-Leiter-Anschlusstechnik ausge-
liefert. 5
5.6.6.1 5-Leiteranschluss
Beim 5-Leiteranschluss sind Neutralleiter (N) und Schutzleiter (PE) in getrennten Adern geführt.5
Im Klemmenfeld "Spannungen" sind zwei zusätzliche gelbgrüne Brückenkabel BR1 und BR2
an den Klemmleisten X206:PE und X207:7 angeschlossen. Diese Brückenkabel werden dann
bei einem 4-Leiteranschluss umgeklemmt.
Abb. 5 - 4 Klemmenfeld "Spannungen", 5-Leiteranschluss
BR1 (gegr) 5
BR2 (gegr) 5

5 Stromversorgung am Automaten S-27 HM/ und am BE-Wagen umrüsten Montageanleitung Stromversorgung umrüsten
5.6 S-27 HM von 3x 400 V~ auf 3 x 208 V~ umrüsten Ausgabe 12/2013
64
5.6.6.2 4-Leiteranschluss
Beim 4-Leiteranschluss sind Neutralleiter (N) und Schutzleiter (PE) zu einer gemeinsamen Ader
PEN zusammengefasst. Zur Herstellung eines 4-Leiteranschlusses werden beide Brückenkabel
BR1 und BR2 angeklemmt: 5
BR1 verbindet X206:7 mit X207:PE
BR2 verbindet X206:7 mit X207:PE 5
Abb. 5 - 5 Klemmenfeld "Spannungen", 4-Leiteranschluss
5.6.7 Steckdosenschutz in die Servicesteckdose X1 einsetzen
Setzen Sie für die USA-Version den Steckdosenschutz in die Servicesteckdose X1 ein.
5.6.8 Sicherheitsprüfung nach DIN EN 60 204 durchführen
Führen Sie nach Abschluss der Umverdrahtung eine Sicherheitsprüfung nach DIN EN 60 204
durch.
Gehen Sie dazu vor, wie dies in Abschnitt 2 ab Seite 12 beschrieben ist.
BR1 (gegr) 5 BR2 (gegr) 5

Montageanleitung Stromversorgung umrüsten 5 Stromversorgung am Automaten S-27 HM/ und am BE-Wagen umrüsten
Ausgabe 12/2013 5.7 BE-Wagen von 230 V~ auf 120 V~ umrüsten
65
5.7 BE-Wagen von 230 V~ auf 120 V~ umrüsten
LEBENSGEFAHR 5
Für die Umverdrahtung muss der BE-Wagen abgedockt sein. Die Stecker für das Stromversor-
gungskabel und das Kommunikationskabel müssen abgezogen sein. 5
Abb. 5 - 6 BE-Wagen, Transformator T1
(1) Transformator T1
(2) Rahmenoberteil