TT2-Mechanical - 第191页
Ref No. Remarks R 1 Q'ty 1-D デュアルコンベア:NPM-TT2 Dual Convey or:NPM-T T2 イラスト No. Part No. 品 名 品 番 数量 R 2 パーツリスト Kit No. キット品番 Kit Name キット名称 MTKA005078AA Part Nam e 備 考 セク ション No . PARTS LIST Section No. R 3 GUIDE 1 1…

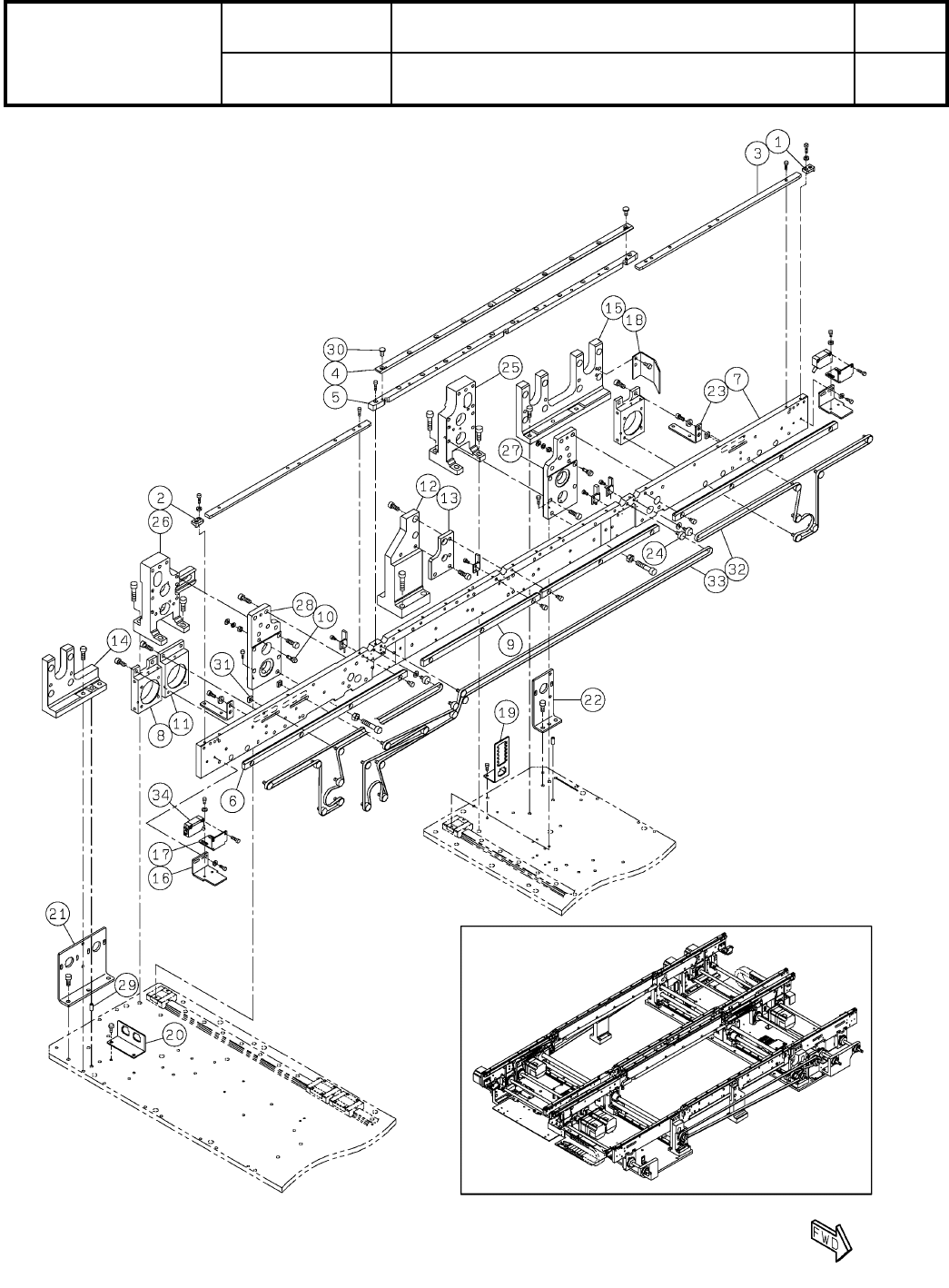
1-D
デュアルコンベア:NPM-TT2
Dual Conveyor:NPM-TT2
パーツレイアウト
Kit No.
キット品番
Kit Name
キット名称
MTKA005078AA
セクションNo.
PARTS LAYOUT
Section No.
--
O7
( KMTKA005078AA-07-4 )

Ref
No.
Remarks R
1
Q'ty
1-D
デュアルコンベア:NPM-TT2
Dual Conveyor:NPM-TT2
イラスト
No.
Part No.
品 名品 番 数量
R
2
パーツリスト
Kit No.
キット品番
Kit Name
キット名称
MTKA005078AA
Part Name
備 考
セクションNo.
PARTS LIST
Section No.
R
3
GUIDE
1
1 N210105097AC
GUIDE
1
2 N210105096AB
GUIDE
2
3 MTPA008151AA
PLATE
1
4 MTPA008152AA
GUIDE
1
5 MTPA008153AA
GUIDE
2
6 MTPA008154AA
FRAME
1
7 MTPA008159AB
HOLDER
2
8 MTPA008160AA
GUIDE
2
9 MTPA008164AA
PIN
2
10 KXFB0210A00
HOLDER
1
11 MTPA008165AA
BRACKET
1
12 MTPA008193AB
PLATE
1
13 MTPA008166AA
BRACKET
1
14 MTPA013456AA
BRACKET
1
15 MTPA013457AA
BRACKET
2
16 MTPB007639AB
BRACKET
2
17 MTPB004565AA
GUIDE
1
18 N210161569AA
BRACKET
1
19 MTPB004577AB
BRACKET
1
20 MTPB004579AB
BRACKET
1
21 MTPB004584AB
BRACKET
1
22 MTPB004585AB
BRACKET
2
23 MTPB009445AA
PULLEY
25
24 N610127907AA
BRACKET
1
25 MTKP004110AA
BRACKET
1
26 MTKP004111AA
BRACKET
1
27 MTKP004117AA
BRACKET
1
28 MTKP004113AA
PIN
2
29 KXF0CXJAA00 1017003-50010
BOLT
10
30 N510056643AA SPECIAL LOW HEAD CAP M3X6L(SCM435.Fe3O4)
NUT
3
31 N510048038AA NSMT-04-4
BELT
2
32 MTNK002604AA
A
TA-4UEB M/D2 4.5WX0.65TX1050L
BELT
1
33 MTNK002584AA
A
TA-4UEB M/D2 4.5WX0.65TX1980L
SENSOR(HP7-D63:580mm)
2
34 MTKP004114AA
O8
--
( KMTKA005078AA-07-4 )

1-E
デュアルコンベア:NPM-TT2
Dual Conveyor:NPM-TT2
パーツレイアウト
Kit No.
キット品番
Kit Name
キット名称
MTKA005078AA
セクションNo.
PARTS LAYOUT
Section No.
--
O9
( KMTKA005078AA-07-5 )