NPM-D3维修手册 - 第96页
NPM-D3 SERVICE MANUAL 4.6 Optional Units Page 4-58 EJM6D3-MB-04SM-02.DOC Rail Width Adjustment Timing Belt レール幅寄せタイミングベルト 轨道宽度调整同步皮带 Ultrasonic tension meter: N510 008902AA 超音波張力計 超声波张力计 Rail 1 レール 1 轨道 1 Rail 2 レール 2 …

NPM-D3
SERVICE MANUAL
4.6 Optional Units
EJM6D3-MB-04SM-02.DOC Page 4-57
4.6.2 Flexible Conveyor for NPM-D
フレキシブルコンベア
柔软型传送带
Unit No.
N610093918AA
4.6.2 Flexible Conveyor for NPM-D
フレキシブルコンベア
柔软型传送带
Transfer Rail Width Adjustment
搬送レール幅寄せ
搬送导轨宽度调整
5.
223
0.1 mm
58 mm
9 mm
Positioning pin Positioning pin
Rail 1 guide rail parallelism:
Board width 50 mm:
0.03 mm
300 mm:
0.1 mm
Rail 2 guide rail parallelism:
Reference
Slave
343 mm
686 mm
343 mm
Board width 50 mm:
0.03 mm
300 mm:
0.1 mm
590 mm:
0.2 mm

NPM-D3
SERVICE MANUAL
4.6 Optional Units
Page 4-58 EJM6D3-MB-04SM-02.DOC
Rail Width Adjustment Timing Belt
レール幅寄せタイミングベルト
轨道宽度调整同步皮带
Ultrasonic tension meter: N510008902AA
超音波張力計
超声波张力计
Rail 1
レール
1
轨道
1
Rail 2
レール
2
轨道
2
Span (S)
スパン
跨距
633 mm 493 mm
Width (W)
幅
宽度
9.4 mm 9.4 mm
Mass (M)
質量
质量
0.209 k
g
/cm
2
0.209 k
g
/cm
2
Tension
テンション
皮带张力
20
3 Hz 20
3 Hz
Measuring
point
Rail 1
Rail 2
Measuring
point

NPM-D3
SERVICE MANUAL
4.6 Optional Units
EJM6D3-MB-04SM-02.DOC Page 4-59
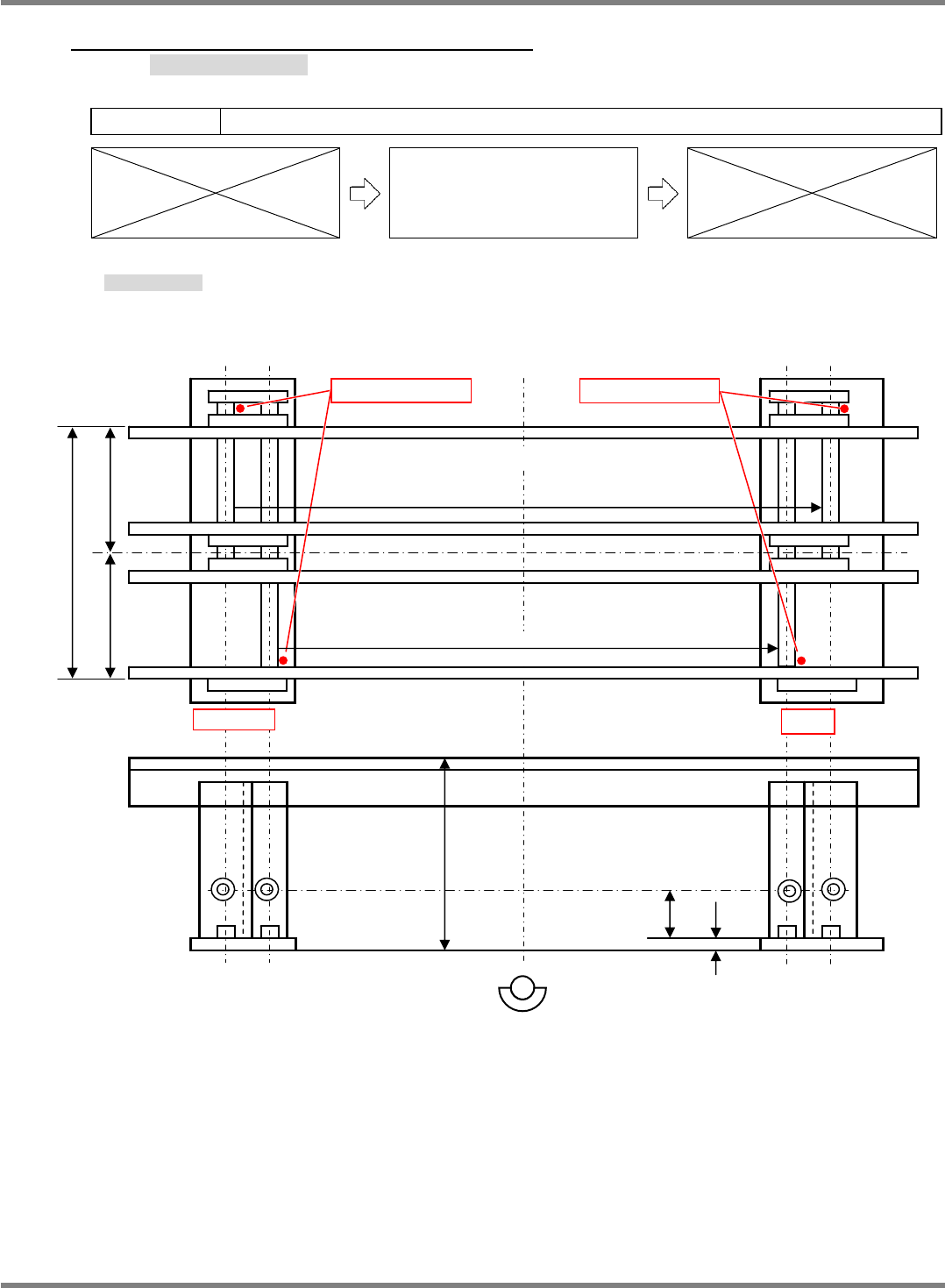
Transfer Rail Height/Planarity Adjustment
搬送レール高さ・平面度
搬送轨道的高度和平面度
Block gauge
Dial gauge & magnet stand
ブロックゲージ
ダイヤルゲージ&マグネットスタンド
块规
千分表和磁性支架
6.
1. Stack block gauges to a height of 223 mm and set on
the base surface of the main frame near to the
transfer rails.
ブロックゲージを 223 mm に組み合わせ、搬送レール近くのメインフレーム上面に置きま
す。
将块规组装为 223 mm,放在搬送轨道附近的主框架上面。
2. Attach a dial gauge to the mounting head.
装着ヘッド部にダイヤルゲージを取り付けます。
将千分表安装到贴装头部上。
3. Set the dial gauge to zero when at the top face of the
block gauge.
ブロックゲージ上面でダイヤルゲージの目盛りをゼロセットします。
在块规上面将千分表设定为 0。
4. Move the XY axes until the top faces of the rail guide
and block gauge are even and measure the transfer
rail height. (Fig. 1)
XY軸を移動させ、ブロックゲージとレールガイドの上面を比較測定します。(Fig. 1)
将 XY 轴移动,比较测量块规和轨道导轨上面。(Fig. 1)
Transfer rail height: 223±0.05 mm
搬送レール高さ
搬送轨道的高度
5. Measure the height of the fixed rail and movable rail at the indicated 4 left and right locations, and check
the planarity. (Fig. 2)
前後のレーンについて固定レールと可動レールの左右 4 か所をダイヤルゲージで比較測定し、レールの高さと平面度を確認します。(Fig. 2)
对于前后的轨道,对固定轨道和可动轨道的左右 4 处用千分表比较测定,确认轨道的高度与平面度。(Fig. 2)
Transfer rail planarity:
223±0.1 mm (Check using PC boards with the widths of 50, 300
and 590 mm)
搬送レール平面度
:
223
0.1 mm (
基板幅
50 mm
、
300 mm
、
590 mm
にて確認
)
搬送轨道平面度
:
223
0.1 mm (
用
50 mm
、
300 mm
、
590 mm
的基板宽度进行确认
)
Fig. 1
Measuring point of rail guide
Block gauge
Rail guide
Measure the
bolt tip.
Fig. 2
1 2 3
4 5 6