03217894-01-01 E By DEK Electrical Drawings - 第12页
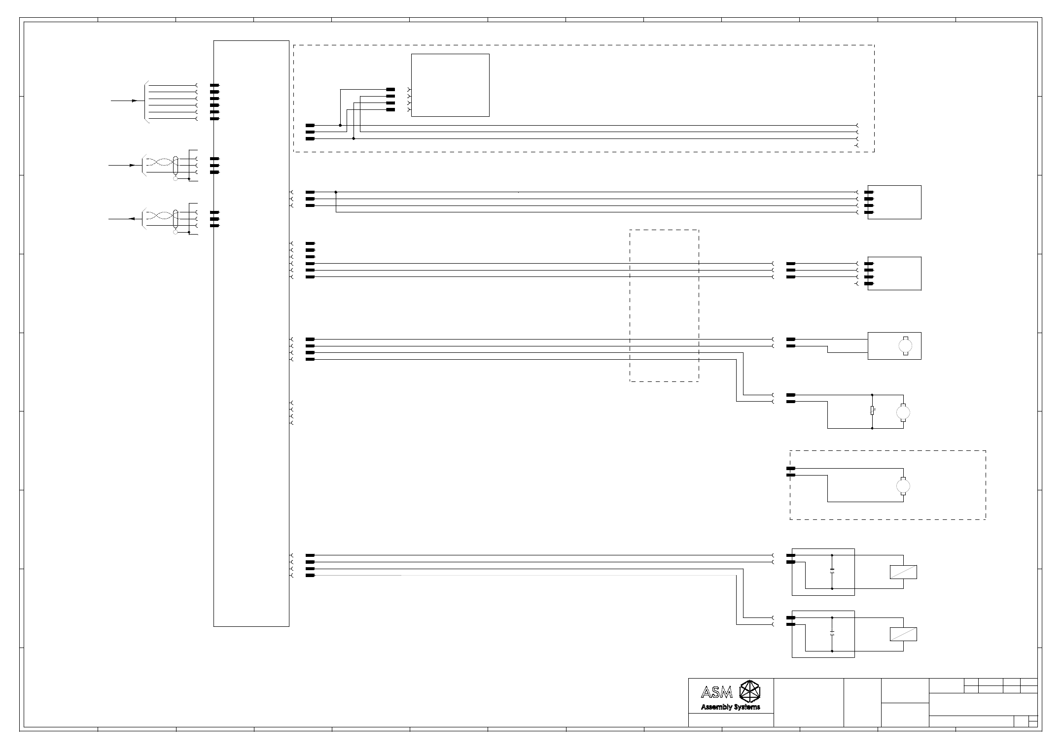
6 Electrical Drawings 185229S2 Issue 23 CCS Under Screen Cl eaner Circuit Diagram 13/ 9$&880 ),/75$7,2181,7 ',*287 9 ',*287 95(7851 62/ &/($1(5648((…

Electrical Drawings 5
185229S1 Issue 23 CCS Under Screen Cleaner Circuit Diagram
1'&
$
%
&
&
%
$
'
(
)
*
+
,
'
(
)
*
+
,
81'(56&5((1&/($1(5
$
2)
6+
7,7/(
'5$:,1*180%(5
'$7( ,1,7,$/'&5
/$7(67
,668(
1R
'5:A&,5&8,7',$*5$0A&&6
9(
9(
3$3(5)(('
02725
3$3(5&/($1(521/<
3/
6.
3/6.
6.
9
287
9
62/
/+&/($1
+20(&/$03
62/(12,'
6(
7+528*+%($0
)25.2372
6(16256,*1$/,19(57(5
3/
62/
5+&/($1
+20(&/$03
62/(12,'
'
8)
'
8)
0
6.
6.
6(
6(
3/
*(0,1,
9L
3$3(5/2:
3$3(5
86$*(
81'(56&5((1&/($1(5
'5$*&+$,13$57
*(0,1,
&
:
5
5
6(
7+528*+%($0
)25.2372
&/($1(5
+20(
6(16256,*1$/,19(57(5
371R
&&7',$*5$0
6&5((1&/($1,212'(
371R
&&7',$*5$0
3$57 3$57
3$57
16. 13/
13/
13/
95(7851
',*2879+]64:$9(
',*287
95(7851
13/
16.
95(7851
',*287
',*287
95(7851
13/16.
',*,1
6.
13/
3/
16.
3$5713/3$5716.
9
287
9
9
95(7851
9
95(7851
',*,1
16.
9
95(7851
',*,1
*(0,1,
9L
95(7851
986
96:
95(7851
9
5(7851
12'(32:(5
&$1B/
&$1B+
&$1*1'
*(0,1,
&$1,1
*(0,1,
&$1287
&$1B/
&$1B+
&$1*1'
3$5713/3$5716.
95(7851
',*2879'&
',*287
95(7851
16.
127(
)250$&+,1(6),77(':,7+*27(&+3803
3$57
3/8*13/,17216.
9
9
0
62/9(17
3803
3/
0
9(
9(
26&,//$7,1*
02725
9257(;&/($1(521/<
3/
0
5'
%.
:
1& /
1&
/
',*,1
9
',*287
9
176
'5$:1
'$7(
'5$:,1*6&$/(
'21276&$/(
25,*,1$/6&$/(
3/27
&$'
60$56+$//
THIS DRAWING AND THE COPYRIGHT
IN IT, IS THE PROPERTY OF ASM
ASSEMBLY SYSTEMS WEYMOUTH Ltd
IT MAY NOT BE COPIED,
REPRODUCED, PUBLISHED OR
DISCLOSED IN WHOLE OR IN PART
WITHOUT OUR WRITTEN CONSENT.
COPYRIGHT © BY ASM ASSEMBLY SYSTEMS
WEYMOUTH Ltd

6 Electrical Drawings
185229S2 Issue 23 CCS Under Screen Cleaner Circuit Diagram
13/
9$&880
),/75$7,2181,7
',*287
9
',*287
95(7851
62/
&/($1(5648((*((
31(80$7,&9$/9(
3$3(5&/($1(5
)2$03$'/,)7
31(80$7,&9$/9(
9257(;&/($1(5
6.
06. 03/
16.
3$5713/3$5716.
3$576&5((1&/($1,212'(
371R
&&7',$*5$0
3$570$,10$&+,1(,212'(
371R
&&7',$*5$0
3$57
6.3/
3$57
03/
3$57
06.
*(0,1,
$1,1
$1,1
9865
9
9
237,21$/$03/,),(5
62/9(17/(9(/$03*$,1
371R&&7
/(9(/
9865
$*1'
9
9
9
9
9
,1
,1
6(
6.3/
%.
*1
:+
5'
1&
1&
1&
1&
1&
62/9(177$1.:(,*+
6,1*/(32,17/2$'&(//
3$5732:(56833/<
371R
371R(6(5,(6
&&7',$*5$0
/
1
(
1
(
/
03/06.
1
(
/
06. 03/
3$57&21752/(1&/2685(
371R
&&7',$*5$0
3$57
6.
3$57
3/
6(59,&(3$1(/
9$&
3803
6833/<
13/16.
3$5713/3$5716.
95(7851
986
96:
95(7851
9
5(7851
12'(32:(5
&$1B/
&$1B+
&$1*1'
&$1,1
*(0,1,
&$1287
&$1B/
&$1B+
&$1*1'
3$5713/3$5716.
95(7851
986
96:
95(7851
9
5(7851
13/16.
12'(32:(5
&$1B/
&$1B+
&$1*1'
3$5713/3$5716.
&$1,1
3$5713/3$5716.
*(0,1,
*(0,1,
&$1287
&$1B/
&$1B+
&$1*1'
62/
9(1785,9$&880
),/75$7,21237,21
6.
13/
06. 03/
13/
9
95(7851
',*,1
16.
9
95(7851
',*,1
62/9(177,0(72*2237,21
86&9$&8806(16,1*237,21
9(1785,9$&880),/75$7,21237,21
1'&
&
%
$
'
(
)
*
+
,
,
81'(56&5((1&/($1(5
$
2)
6+
7,7/(
'5$:,1*180%(5
'$7( ,1,7,$/'&5
/$7(67
,668(
1R
':*A&,5&8,7',$*5$0A&&6
60$56+$//
176
'5$:1
'$7(
'5$:,1*6&$/(
'21276&$/(
25,*,1$/6&$/(
3/27
&$'
THIS DRAWING AND THE COPYRIGHT
IN IT, IS THE PROPERTY OF ASM
ASSEMBLY SYSTEMS WEYMOUTH
Ltd, IT MAY NOT BE COPIED,
REPRODUCED, PUBLISHED OR
DISCLOSED IN WHOLE OR IN PART
WITHOUT OUR WRITTEN CONSENT.
COPYRIGHT © BY ASM ASSEMBLY SYSTEMS
WEYMOUTH Ltd
(%<'(.9$5,$7,21
3$57
6.3/
3$57
3/
62/9(17
/(9(/
287387
9
9
6(
62/9(17
)/2$76(1625
1(2+2=*(0,1,
/2:
35(6685(
6:,7&+
+,*+
35(6685(
6:,7&+
371R9/2:32:(5
371R9/2:32:(5
371R9+,*+32:(5
371R9+,*+32:(5*(0,1,
371R9(6(5,(6
371R9(6(5,(6

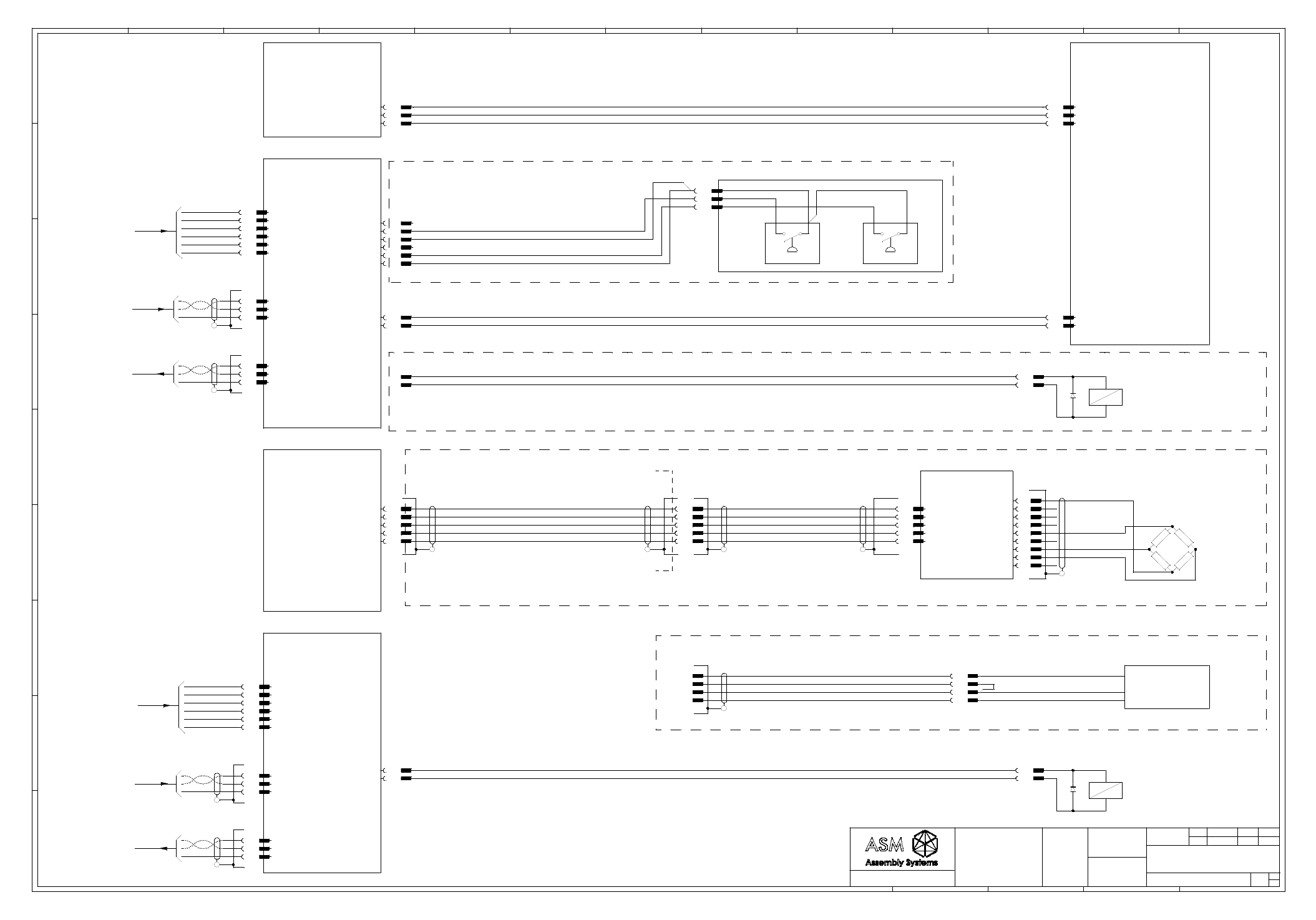
Electrical Drawings 7
185230S1 Issue 23 CCS MMI Circuit Diagram
1'&
5$5*(17
$
%
&
&
%
$
'
(
)
*
+
,
'
(
)
*
+
,
$
2)
6+
7,7/(
'5$:,1*180%(5
'$7( ,1,7,$/'&5
/$7(67
,668(
1R
'5:A&,5&8,7',$*5$0A
&&6A00,
3$5732:(56833/<(1&/2685(
371R
&&7',$*5$0
3$573&
43W1R
&&7',$*5$0
+3&:(63W1R
&&7',$*5$0
6.
'$7$
3$5786%+8%
371R
/
1
1(875$/
06.
6.
9
(
3/
3/6.
9*$
9*$
,1)5$5('86%
.(<%2$5'75$&.%$//
371R
67$1'$5'86%
.(<%2$5'75$&.%$//
371R
3/6.
$1$/2*8(5('
$1$/2*8(*5((1
$1$/2*8(%/8(
,'
+6<1&*1'
5('*1'
*5((1*1'
%/8(*1'
9
96<1&*1'
,'
,'
+6<1&
96<1&
,'
'$7$
'$7$
*1'
'$7$
9%86
'$7$
*1'
021,725
728&+6&5((1
,)),77('
'$7$
'$7$
*1'
/,9(
($57+
&$%/(6833/,('
3/
9%86
'$7$
*1'
86%
3/
6.
'$7$
9%86
'$7$
*1'
86%
'$7$
9%86
'$7$
*1'
9%86
9%86
/
1
6.
(
021,725
60368
3/
3/
3/
6.
&$%/(6833/,(':,7++8%
3/
9
9
9
81,7&$%/(6833/,('
)25121
728&+6&5((1021,725
6.
'$7$
9%86
'$7$
*1'
6.
'$7$
9%86
'$7$
*1'
3/
+$1'+(/'237,&$/
5($'(5371R
,)),77('237,21
(/6()5((3257
)2523(5$725
'$7$
'$7$
*1'
9%86
3/6.
&$%/(6833/,('
/
1
6.
(
/
1
6.
(
86%+8%
368
3/
&$%/(3686833/,(':,7++8%
9
9
9
9
3/
176
'5$:1
'$7(
'5$:,1*6&$/(
'21276&$/(
25,*,1$/6&$/(
3/27
&$'
THIS DRAWING AND THE COPYRIGHT
IN IT, IS THE PROPERTY OF ASM
ASSEMBLY SYSTEMS WEYMOUTH
Ltd, IT MAY NOT BE COPIED,
REPRODUCED, PUBLISHED OR
DISCLOSED IN WHOLE OR IN PART
WITHOUT OUR WRITTEN CONSENT.
COPYRIGHT © BY ASM ASSEMBLY SYSTEMS
WEYMOUTH Ltd
1(875$/
/,9(
($57+
06.
03/
03/
'9,6.
+273/8*'(7(&7
70'6'$7$
'$7$*1'
70'6'$7$
70'6'$7$
70'6'$7$
70'6'$7$
''&&/2&.
&/2&.*1'
''&'$7$
70'6&/2&.
$1$/2*96<1&
70'6&/2&.
70'6'$7$
&$1$/2*5('
70'6'$7$
&$1$/2**5((1
'$7$*1'
&$1$/2*%/8(
70'6'$7$
&$1$/2*+6<1&
70'6'$7$
&$1$/2**1'
9'&
*5281'
70'6'$7$
70'6'$7$
70'6'$7$
'DWD*1'
'9,7269*$$'$3725
21/<5(48,5('%<$1'
6833/,(':,7++3&
$1$/2*8(5('
$1$/2*8(*5((1
$1$/2*8(%/8(
,'
+6<1&*1'
5('*1'
*5((1*1'
%/8(*1'
9
96<1&*1'
,'
,'
+6<1&
96<1&
,'