03217894-01-01 E By DEK Electrical Drawings - 第22页
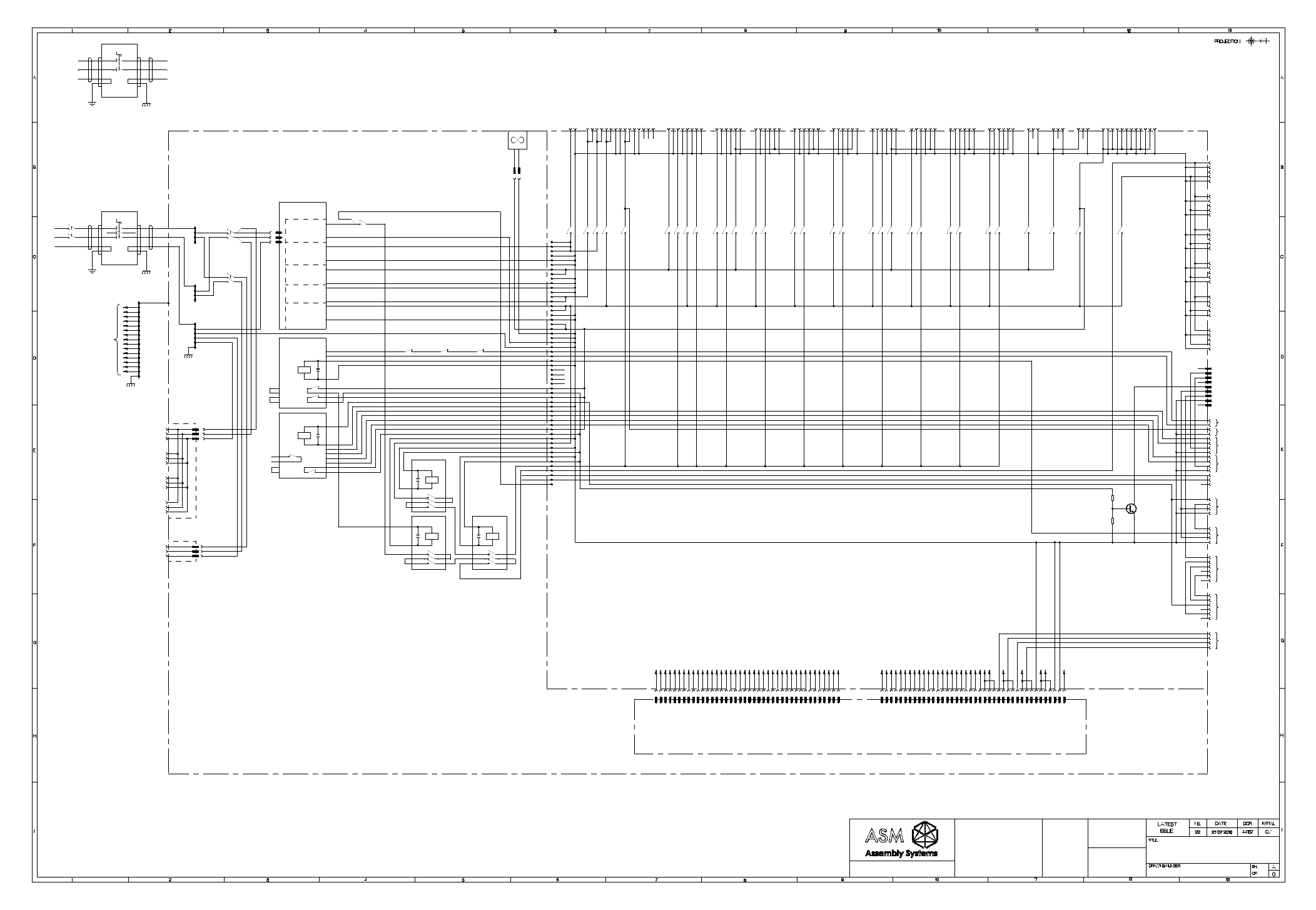
16 Electrical Drawings 185233S2 Issue 22 M37 Power Suppl y Unit Circuit Diagram M37 PSU CIRCUIT DIAGRAM 2 3 185233 M37TB01 25 26 27 28 29 30 31 32 33 34 35 36 37 38 39 40 41 52 53 42 43 44 45 46 47 48 49 50 51 15 16 17 1…

Electrical Drawings 15
185233S1 Issue 22 M37 Power Supply Unit Circuit Diagram
M37 PSU CIRCUIT DIAGRAM
1
3
185233
M37TB01
M37 POWER SUPPLY CRATE (SEE SHEET 2)
DEK PART No. 185309
DEK PART No. 210900 (E SERIES)
M37SK24
N/C
N/C
M37SK25
095
092
189
090
N/C
N/C
097
095
090
092
01
02
03
04
01
02
03
04
05
06
05
06
M37SK22
097
086
176
030
01
02
03
04
086
087
030
01
02
03
04
M37SK23
25
26
081
082
27
087
28
030
29
064
065
064
097
30
31
32
33
34
35
36
N/C
01
02
03
04
05
06
07
08
09
081
082
040
050
340
341
173
030
342
343
174
030
01
02
03
04
05
06
07
08
09
10
11
12
13
14
15
M37SK27
M37PL26
074
340
341
342
343
37
38
39
40
41
098
099
52
53
020
020
022
022
010
010
030
030
040
040
050
050
01
02
03
04
05
06
07
08
09
10
11
12
13
14
15
N/C
N/C
N/C
-12V (NEXTMOVE ES)
-12V (NEXTMOVE ES)
+5V (NEXTMOVE ES)
+5V (NEXTMOVE ES)
+24V US (NEXTMOVE I/F, MIU, CAM LIGHTING)
+24V US (NEXTMOVE I/F, MIU, CAM LIGHTING)
0V RETURN
0V RETURN
+24V SW (NEXTMOVE I/F, MIU)
+24V SW (NEXTMOVE I/F, MIU)
0V RETURN
0V RETURN
N/C
N/C
N/C
021
001
041
051
011
031
042
052
01
02
03
04
05
06
07
08
+12V
0V RETURN
+24V SW (BELT MOTORS)
0V RETURN
+24V US (EUROFLEX, STEPPER LOGIC, FANS)
0V RETURN
+24V SW (STEPPERS)
0V RETURN
072
003
062
032
012
023
01
02
03
04
05
06
+24V US
0V RETURN
+24V SW
0V RETURN
+12V
0V RETURN
053
003
043
033
013
023
01
02
03
04
05
06
+24V US
0V RETURN
+24V SW
0V RETURN
+12V
0V RETURN
054
003
044
034
014
023
01
02
03
04
05
06
+24V US
0V RETURN
+24V SW
0V RETURN
+12V
0V RETURN
055
033
045
035
015
023
01
02
03
04
05
06
+24V US
0V RETURN
+24V SW
0V RETURN
+12V
0V RETURN
056
006
046
036
016
026
01
02
03
04
05
06
+24V US
0V RETURN
+24V SW
0V RETURN
+12V
0V RETURN
057
006
047
037
017
026
01
02
03
04
05
06
+24V US
0V RETURN
+24V SW
0V RETURN
+12V
0V RETURN
064
065
074
077
074
42
43
44
45
46
065
074
065
345
060
47
48
49
50
51
15
077
16
077
17
078
18
078
080
000
23
24
075
075
076
076
11
12
13
14
069
069
070
070
07
08
09
10
067
067
068
068
02
03
04
05
R1
24K
074
074
064
074
064
064
01
02
03
04
05
06
+24V US
0V RETURN
+24V US
0V RETURN
+24V US
0V RETURN
064
074
07
08
09
+24V US
0V RETURN
MACHINE I/O NODE
CCT 185251 SH2
P. CARR I/O NODE
CCT 185251 SH2
SCN CLEAN I/O NODE
CCT 185251 SH2
OTS / HTC I/O NODE
CCT 185251 SH2
PASTE DISPENSE STEPPER NODE
CCT 185251 SH2
HTC
CCT 185251 SH2
MACHINE FANS
CCT 185252 SH1
M37SK03
M37SK02
M37SK04
M37SK05
M37SK06
M37SK07
M37SK08
M37SK09
M37SK15
20
064
21
074
058
006
048
038
018
026
01
02
03
04
05
06
+24V US
0V RETURN
+24V SW
0V RETURN
+12V
0V RETURN
PROACTIV
CCT 205388
FORMFLEX / GRIDLOCK / PROACTIV
CCT 185251 SH2
M37SK10
059
006
049
039
019
026
01
02
03
04
05
06
+24V US
0V RETURN
+24V SW
0V RETURN
+12V
0V RETURN
LIGHTING
CCT 185230
M37SK11
01
02
04
0V RETURN
24V US (MOTOR LOGIC)
05
0V RETURN
M37SK20
01
02
04
0V RETURN
24V US (MOTOR LOGIC)
05
0V RETURN
M37SK21
RTC BOARD LOAD /
PROACTIV
NODE POWER
SPARE SERVO
NODE POWER
CCT 185251 SH3
027
01
02
03
+12V
N/C
0V
M37SK12
028
01
02
03
+12V
N/C
0V
M37SK13
028
01
02
03
+12V
N/C
0V
M37SK14
029
01
02
+5V
0V
M37SK01
03
N/C
03
N/C
01
02
04
0V RETURN
24V US (MOTOR LOGIC)
05
0V RETURN
M37SK19
CAMERA Y MOTOR
CCT 185152 SH3
03
N/C
01
02
04
0V RETURN
24V US (MOTOR LOGIC)
05
0V RETURN
M37SK18
CAMERA X MOTOR
CCT 185251 SH3
03
N/C
01
02
04
0V RETURN
24V US (MOTOR LOGIC)
05
0V RETURN
M37SK17
PRINT CARRIAGE MOTOR
CCT 185251 SH3
03
N/C
060
061
063
01
02
04
42V/48V SW (MOTOR POWER)
0V RETURN
24V US (MOTOR LOGIC)
073
05
0V RETURN
M37SK16
TABLE MOTOR DRIVE
CCT 185251 SH3
03
N/C
009
N/C
007
N/C
008
N/C
008
060
061
063
073
060
061
063
073
060
061
063
073
060
061
063
073
060
061
063
073
CB3 1.5A
CB2 3.15A
CB4 3.15A
CB5 1.5A
CB6 1.5A
CB7 1.5A
CB8 3.15A
CB9 3.15A
CB10 6.3A
CB11 3.15A
CB12 3.15A
CB13 1.5A
CB14 3.15A
CB15 3.15A
CB16 3.15A
CB17 3.15A
CB18 3.15A
CB19 3.15A
CB20 3.15A
CB21 3.15A
CB22 1.5A
CB23 3.15A
CB24 3.15A
CB25 3.15A
CB26 3.15A
CB27 3.15A
CB28 3.15A
CB29 3.15A
CB30 1.5A
CB31 3.15A
173
174
N/C
175
176
189
030
N/C
176
098
099
076
067
077
345
069
345
077
345
077
345
069
077
345
077
345
077
345
077
345
069
077
345
077
345
077
345
069
069
077
029 +5V (0V RETURN = 009)
020 -12V (0V RETURN = 001)
022 +5V (0V RETURN = 001)
010 +24V US (0V RETURN = 030)
040 24V SW (0V RETURN = 050)
021 +12V (0V RETURN = 001)
041 +24V SW (0V RETURN = 051)
011 +24V US (0V RETURN = 031)
042 +24V SW (0V RETURN = 052)
012 +24V US (0V RETURN = 032)
062 +24V SW (0V RETURN = 072)
023 +12V (0V RETURN = 003)
013 +24V US (0V RETURN = 033)
043 +24V SW (0V RETURN = 053)
014 +24V US (0V RETURN = 034)
044 +24V SW (0V RETURN = 054)
015 +24V US (0V RETURN = 035)
045 +24V SW (0V RETURN = 055)
016 +24V US (0V RETURN = 036)
046 +24V SW (0V RETURN = 056)
026 +12V (0V RETURN = 006)
017 +24V US (0V RETURN = 037)
047 +24V SW (0V RETURN = 057)
018 +24V US (0V RETURN = 038)
048 +24V SW (0V RETURN = 058)
019 +24V US (0V RETURN = 039)
049 +24V SW (0V RETURN = 059)
027 +12V (0V RETURN = 007)
028 +12V (0V RETURN = 008)
064 +24V US (0V RETURN = 074)
060 +40V DC (0V RETURN = 061)
063 +24V US (0V RETURN = 073)
067
01
06
068
22
074
19
064
54
12
12
12
12
12
12
12
12
12
12
12
12
12
12
12
12
12
12
12
12
12
12
12
12
12
12
12
12
12
12
10
11
12
074
064
+24V US
0V RETURN
064
074
+24V US
0V RETURN
R2
1K
Q1
2N3904
353
POWER DISTRIBUTION PCB (SEE SHEET 3)
DEK PART No. 181502
N/C
N/C
N/C
N/C
25
26
27
28
29
30
31
32
33
34
35
36
37
38
39
40
15
16
17
18
23
24
11
12
13
14
07
08
09
10
02
03
04
05
20
21
01
06
22
19
CB1-3
CB1-1
CB2-3
CB2-1
CB3-3
CB3-1
CB4-3
CB4-1
CB5-3
CB5-1
CB6-3
CB6-1
CB7-3
CB7-1
CB8-3
CB8-1
CB9-3
CB9-1
CB10-3
CB10-1
CB11-3
CB11-1
CB12-3
CB12-1
CB13-3
CB13-1
CB14-3
CB14-1
CB15-3
CB15-1
CB16-3
CB16-1
CB17-3
CB17-1
CB18-3
CB18-1
CB19-3
CB19-1
CB20-3
CB20-1
077
064
067
029
076
020
067
022
077
010
345
040
069
021
345
041
077
011
345
042
077
012
345
062
069
023
077
013
345
043
077
014
345
044
077
015
345
045
077
016
25
26
27
28
29
30
31
32
33
34
35
36
37
38
39
40
15
16
17
18
23
24
11
12
13
14
07
08
09
10
02
03
04
05
20
21
01
06
22
19
CB21-3
CB21-1
CB22-3
CB22-1
CB23-3
CB23-1
CB24-3
CB24-1
CB25-3
CB25-1
CB26-3
CB26-1
CB27-3
CB27-1
CB28-3
CB28-1
CB29-3
CB29-1
CB30-3
CB30-1
CB31-3
CB31-1
M37TB01-01
M37PL26-05
M37TB01-07
M37TB01-13
M37TB01-15
M37TB01-51
M37TB01-54
345
046
069
026
077
017
345
047
077
018
345
048
077
019
345
049
069
027
069
028
077
063
067
175
067
504
069
505
069
506
076
507
076
030
077
060
077
030
030
342
M37SK29M37SK28
42V SW (MOTOR POWER)
42V SW (MOTOR POWER)
42V SW (MOTOR POWER)
42V SW (MOTOR POWER)
42V SW (MOTOR POWER)
N/C
USB POWER MONITOR PCB
DEK PART No. 181507
NOT FITTED IN 210900
M37SK30
507
506
505
504
01
02
03
04
SPARE 12V
CCT 185251 SH3
SPARE 12V
CCT 185251 SH3
SPARE 12V
CCT 185251 SH3
SPARE 5V
CCT 185251 SH3
SAFETY I/O (TO M36)
CCT 185248
JOG & SYSTEM SWITCHES
CCT 185248
FRONT COVER
INTERLOCK
CCT 185248
SPARE
INTERLOCK
CCT 185248
SPARE / EXTERNAL E. STOP
CCT 185248
MACHINE E. STOP
CCT 185248
PSU MONITOR USB (TO PC)
CCT 185565
N/C
JOG LEFT (NM DIG IN 12)
JOG RIGHT (NM DIG IN 13)
N/C
POWER 'ON' (NM DIG IN 14)
COVER INTERLOCK (NM DIG IN 15)
E. STOP LOOP SUPPLY (NM ERROR OUT)
0V
N/C
N/C
SYSTEM SWITCH
SYSTEM SWITCH LED
JOG LEFT SWITCH
JOG RIGHT SWITCH
RESERVED
RESERVED
TO INTERLOCK SWITCH
TO BLANKING PLUG
TO BLANKING PLUG
TO E. STOP SWITCH
TO PC
M37PL28 M37PL29
M36 HIGH CURRENT DC
CCT 185251 SH1
M36 LOW CURRENT DC
CCT 185251 SH1
AIR IONISER
CCT 185232
(BLANKING PLUG FITTED
IF M39 EMO INSTALLED)
NOTE:
PSU IS SET TO 42V ON 710 MACHINES
& 48V ON 810 MACHINES.
A1
S33
S34
14
13
A2
24
23
064
064
066
065
085 084
083 081
087
030
346
066
074
347
347
344
358
345
22NC21NC22NC21NC22NC21NC
074
065A1
A2
1
3
5
2
4
6
A1
A2
1
3
5
2
4
6
093
093
088
S22
S21
S12
S11
081
082
087
030
064
065
064
097
A1
S13
S14
S23
S24
A2
Y1
Y2
348
348
097
074
340
341
342
343
074
340
341
342
343
RSVD (CAT 4)
RSVD (CAT 4)
CON 2 CON 3
CON 1
065
074
077
A1
A2
1
3
5
2
4
6
24
23
14
13
N/C
N/C
064
065
064
065
074
077
074
065
074
065
345
060
077
078
080
000
075
076
069
070
067
068
064
074
082
344
085
079
088
074
359
360
060
351
352
+12V
0V
+12V
0V
+5V
0V
L
N
E
067
068
069
070
075
076
+24V
0V
077
078
TB2
TB3
000
355
354
000
352
351
000
000
M37SK31
M37SK32
M37SK33
L
N
E
L
N
E
L
N
E
352
000
FAN
CB32 10A
M37SK34
L
N
E
TB1
L
N
E
000
357
356
000
355
354
2
1
L
N
E
351
RD
BU
+5V
+12V
-12V
+24V
M37SK35
+42V
0V
+42V
080
079 346
355
354
000
VARIOUS MACHINE
EARTH WIRES
EARTH BUS BAR CONNECTED
TO MACHINE FRAME
CB33 10A
CB34 16A
064
074
3
1
4
2
3
1
4
2
LAMBDA J1-4
LAMBDA J1-3
352
351
351
352
354
355
354
355
356
357
000
000
000
000
000
000
000
000
000
000
000
000
000
000
000
000
PART CON1
(AUX)
PART CON2
(AUX)
PART CON3
(AUX)
02
01
M37SK36
M37PL36
NTS
DRAWN
DATE
DRAWING SCALE
DO NOT SCALE
ORIGINAL SCALE
(PLOT)
(CAD) 1:1
D F ORTON
17/08/04
THIS DRAWING AND THE COPYRIGHT
IN IT, IS THE PROPERTY OF ASM
ASSEMBLY SYSTEMS SWITZERLAND
GmbH, IT MAY NOT BE COPIED,
REPRODUCED, PUBLISHED OR
DISCLOSED IN WHOLE OR IN PART
WITHOUT OUR WRITTEN CONSENT.
COPYRIGHT © BY ASM ASSEMBLY SYSTEMS
SWITZERLAND GmbH
CB1 3.15A077 064 +24V US (0V RETURN = 074)
12
PSU
PT No: 210177 (TDK LAMBDA)
210431 (COSEL)
RL2
2 HANDED
SAFETY RELAY
RL1
E. STOP RELAY
4 WAY IEC
DISTRIBUTION PANEL
NOTE: 2 POLE ISOLATOR USED ON SEMI MCs
NOTE: IF M39 EMO IS FITTED,
REFER TO CCT 191700 FOR
CONNECTION DETAILS.
BRANCH CCT
BREAKER
25A (MAXIMUM)
TO UL489
355
354
000
N
L
E
MAINS
SUPPLY
25A MAINS
ISOLATOR
T1 (2)(1) L1
T2 (4)(3) L2
T3 (6)(5) L3
DEK PT. No. 185115
MACHINE
PROTECTIVE EARTH
(PE) CHASSIS STUD
MACHINE
BONDING EARTH
CHASSIS STUD
355
354
000
N
L
E
MAINS
SUPPLY
25A MAINS
ISOLATOR
T1 (2)(1) L1
T2 (4)(3) L2
DEK PT. No. 194325
MACHINE
PROTECTIVE EARTH
(PE) CHASSIS STUD
MACHINE
BONDING EARTH
CHASSIS STUD
N
L
E
L
E
N

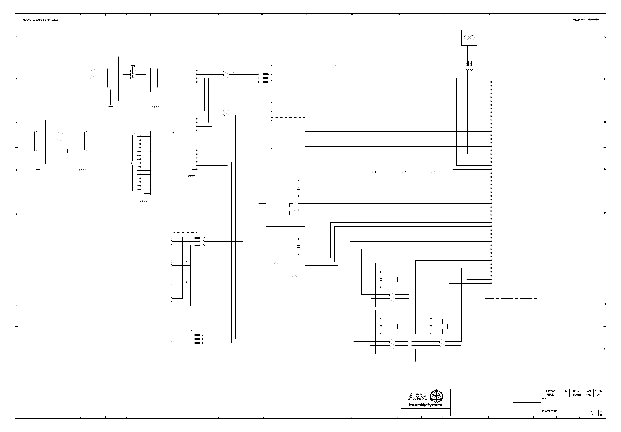
16 Electrical Drawings
185233S2 Issue 22 M37 Power Supply Unit Circuit Diagram
M37 PSU CIRCUIT DIAGRAM
2
3
185233
M37TB01
25
26
27
28
29
30
31
32
33
34
35
36
37
38
39
40
41
52
53
42
43
44
45
46
47
48
49
50
51
15
16
17
18
23
24
11
12
13
14
07
08
09
10
02
03
04
05
20
21
01
06
22
19
54
POWER DISTRIBUTION BACKPLANE PCB (SEE SHEET 3)
DEK PART No. 181502
NOTE:
PSU IS SET TO 42V ON 710 MACHINES
& 48V ON 810 MACHINES.
CON 2 CON 3
A1
S33
S34
14
13
A2
24
23
E. STOP RELAY
064
064
066
065
085 084
083 081
087
030
346
066
074
347
347
344
358
345
22NC21NC22NC21NC22NC21NC
074
065A1
A2
1
3
5
2
4
6
A1
A2
1
3
5
2
4
6
093
093
088
S22
S21
S12
S11
081
082
087
030
064
065
064
097
A1
S13
S14
S23
S24
A2
Y1
Y2
348
348
097
074
340
341
342
343
074
340
341
342
343
RSVD (CAT 4)
RSVD (CAT 4)
CON 1
065
074
077
A1
A2
1
3
5
2
4
6
24
23
14
13
N/C
N/C
064
065
064
065
074
077
074
065
074
065
345
060
077
078
080
000
075
076
069
070
067
068
064
074
082
344
085
079
088
074
359
360
060
351
352
+12V
0V
+12V
0V
+5V
0V
L
N
E
067
068
069
070
075
076
+24V
0V
077
078
TB2
TB3
000
355
354
000
352
351
000
000
M37SK31
M37SK32
M37SK33
L
N
E
L
N
E
L
N
E
352
000
FAN
CB32 10A
M37SK34
L
N
E
TB1
L
N
E
000
357
356
000
355
354
2
1
L
N
E
351
+5V
+12V
-12V
+24V
M37SK35
+42V
0V
+42V
080
079 346
355
354
000
VARIOUS MACHINE
EARTH WIRES
EARTH BUS BAR CONNECTED
TO MACHINE FRAME
CB33 10A
CB34 16A
3
1
4
2
3
1
4
2
LAMBDA J1-4
LAMBDA J1-3
352
351
351
352
354
355
354
355
356
357
000
000
000
000
000
000
000
000
000
000
000
000
000
000
000
000
PART CON1
(AUX)
PART CON2
(AUX)
PART CON3
(AUX)
RD
BU
064
074
02
01
M37SK36
M37PL36
M37 POWER SUPPLY CRATE
DEK PART No. 185309
DEK PART No. 210900 (E SERIES)
PSU
PT No: 210177 (TDK LAMBDA)
210431 (COSEL)
RL1
2 HANDED
SAFETY RELAY
RL2
4 WAY IEC
DISTRIBUTION PANEL
NTS
DRAWN
DATE
DRAWING SCALE
DO NOT SCALE
ORIGINAL SCALE
(PLOT)
(CAD) 1:1
D F ORTON
17/08/04
THIS DRAWING AND THE COPYRIGHT
IN IT, IS THE PROPERTY OF ASM
ASSEMBLY SYSTEMS SWITZERLAND
GmbH, IT MAY NOT BE COPIED,
REPRODUCED, PUBLISHED OR
DISCLOSED IN WHOLE OR IN PART
WITHOUT OUR WRITTEN CONSENT.
COPYRIGHT © BY ASM ASSEMBLY SYSTEMS
SWITZERLAND GmbH
NOTE: 2 POLE ISOLATOR USED ON SEMI MCs
NOTE: IF M39 EMO IS FITTED,
REFER TO CCT 191700 FOR
CONNECTION DETAILS.
BRANCH CCT
BREAKER
25A (MAXIMUM)
TO UL489
355
354
000
N
L
E
MAINS
SUPPLY
25A MAINS
ISOLATOR
T1 (2)(1) L1
T2 (4)(3) L2
T3 (6)(5) L3
DEK PT. No. 185115
MACHINE
PROTECTIVE EARTH
(PE) CHASSIS STUD
MACHINE
BONDING EARTH
CHASSIS STUD
355
354
000
N
L
E
MAINS
SUPPLY
25A MAINS
ISOLATOR
T1 (2)(1) L1
T2 (4)(3) L2
DEK PT. No. 194325
MACHINE
PROTECTIVE EARTH
(PE) CHASSIS STUD
MACHINE
BONDING EARTH
CHASSIS STUD
N
L
E
L
E
N

Electrical Drawings 17
185233S3 Issue 22 M37 Power Supply Unit Circuit Diagram
M37TB01
M37SK24
N/C
N/C
M37SK25
095
092
189
090
N/C
N/C
097
095
090
092
01
02
03
04
01
02
03
04
05
06
05
06
M37SK22
097
086
176
030
01
02
03
04
086
087
030
01
02
03
04
M37SK23
25
26
081
082
27
087
28
030
29
064
065
064
097
30
31
32
33
34
35
36
N/C
01
02
03
04
05
06
07
08
09
081
082
040
050
340
341
173
030
342
343
174
030
01
02
03
04
05
06
07
08
09
10
11
12
13
14
15
M37SK27
M37PL26
074
340
341
342
343
37
38
39
40
41
098
099
52
53
020
020
022
022
010
010
030
030
040
040
050
050
01
02
03
04
05
06
07
08
09
10
11
12
13
14
15
N/C
N/C
N/C
-12V (NEXTMOVE ES)
-12V (NEXTMOVE ES)
+5V (NEXTMOVE ES)
+5V (NEXTMOVE ES)
+24V US
+24V US
0V RETURN
0V RETURN
+24V SW
+24V SW
0V RETURN
0V RETURN
N/C
N/C
N/C
021
001
041
051
011
031
042
052
01
02
03
04
05
06
07
08
+12V
0V RETURN
+24V SW (BELT MOTORS)
0V RETURN
STEPPER, LOGIC)
(EUROFLEX, FANS
+24V US
0V RETURN
+24V SW (STEPPERS)
0V RETURN
072
003
062
032
012
023
01
02
03
04
05
06
+24V US
0V RETURN
+24V SW
0V RETURN
+12V
0V RETURN
053
003
043
033
013
023
01
02
03
04
05
06
+24V US
0V RETURN
+24V SW
0V RETURN
+12V
0V RETURN
054
003
044
034
014
023
01
02
03
04
05
06
+24V US
0V RETURN
+24V SW
0V RETURN
+12V
0V RETURN
055
033
045
035
015
023
01
02
03
04
05
06
+24V US
0V RETURN
+24V SW
0V RETURN
+12V
0V RETURN
056
006
046
036
016
026
01
02
03
04
05
06
+24V US
0V RETURN
+24V SW
0V RETURN
+12V
0V RETURN
057
006
047
037
017
026
01
02
03
04
05
06
+24V US
0V RETURN
+24V SW
0V RETURN
+12V
0V RETURN
064
065
074
077
074
42
43
44
45
46
065
074
065
345
060
47
48
49
50
51
15
077
16
077
17
078
18
078
080
000
23
24
075
075
076
076
11
12
13
14
069
069
070
070
07
08
09
10
067
067
068
068
02
03
04
05
R1
24K
074
074
064
074
064
064
01
02
03
04
05
06
+24V US
0V RETURN
+24V US
0V RETURN
+24V US
0V RETURN
064
074
07
08
09
+24V US
0V RETURN
MACHINE I/O NODE
CCT 185251 SH2
P. CARR I/O NODE
CCT 185251 SH2
SCN CLEAN I/O NODE
CCT 185251 SH2
OTS / HTC I/O NODE
CCT 185251 SH2
PASTE DISPENSE
STEPPER NODE
CCT 185251 SH2
HTC
RTC RAIL WIDTH
CCT 185251 SH2
MACHINE FANS
CCT 185252 SH1
M36 HIGH CURRENT DC
CCT 185251 SH1
M36 LOW CURRENT DC
CCT 185251 SH1
M37SK03
M37SK02
M37SK04
M37SK05
M37SK06
M37SK07
M37SK08
M37SK09
M37SK15
20
064
21
074
058
006
048
038
018
026
01
02
03
04
05
06
+24V US
0V RETURN
+24V SW
0V RETURN
+12V
0V RETURN
PROACTIV
CCT 205388
FORMFLEX / GRIDLOCK
CCT 185251 SH2
M37SK10
059
006
049
039
019
026
01
02
03
04
05
06
+24V US
0V RETURN
+24V SW
0V RETURN
+12V
0V RETURN
AIR IONISER
CCT 185232
LIGHTING
CCT 185230 SHT 2
M37SK11
01
02
04
0V RETURN
24V US (MOTOR LOGIC)
05 0V RETURN
M37SK20
01
02
04
0V RETURN
24V US (MOTOR LOGIC)
05 0V RETURN
M37SK21
027
01
02
03
+12V
N/C
0V
M37SK12
028
01
02
03
+12V
N/C
0V
M37SK13
028
01
02
03
+12V
N/C
0V
M37SK14
029
01
02
+5V
0V
M37SK01
03 N/C
03 N/C
01
02
04
0V RETURN
24V US (MOTOR LOGIC)
05 0V RETURN
M37SK19
03 N/C
01
02
04
0V RETURN
24V US (MOTOR LOGIC)
05 0V RETURN
M37SK18
03 N/C
01
02
04
0V RETURN
24V US (MOTOR LOGIC)
05 0V RETURN
M37SK17
03 N/C
060
061
063
01
02
04
42V/48V SW (MOTOR POWER)
0V RETURN
24V US (MOTOR LOGIC)
073
05 0V RETURN
M37SK16
03 N/C
009
N/C
007
N/C
008
N/C
008
060
061
063
073
060
061
063
073
060
061
063
073
060
061
063
073
060
061
063
073
CB3 1.5A
CB2 3.15A
CB4 3.15A
CB5 1.5A
CB6 1.5A
CB7 1.5A
CB8 3.15A
CB9 3.15A
CB10 6.3A
CB11 3.15A
CB12 3.15A
CB13 1.5A
CB14 3.15A
CB15 3.15A
CB16 3.15A
CB17 3.15A
CB18 3.15A
CB19 3.15A
CB20 3.15A
CB21 3.15A
CB22 1.5A
CB23 3.15A
CB24 3.15A
CB25 3.15A
CB26 3.15A
CB27 3.15A
CB28 3.15A
CB29 3.15A
CB1 3.15A
CB30 1.5A
CB31 3.15A
173
174
N/C
175
176
189
030
N/C
176
098
099
076
067
077
345
069
345
077
345
077
345
069
077
345
077
345
077
345
077
345
069
077
345
077
345
077
345
069
077
069
077
029 +5V (0V RETURN = 009)
020 -12V (0V RETURN = 001)
022 +5V (0V RETURN = 001)
010 +24V US (0V RETURN = 030)
040 24V SW (0V RETURN = 050)
021 +12V (0V RETURN = 001)
041 +24V SW (0V RETURN = 051)
011 +24V US (0V RETURN = 031)
042 +24V SW (0V RETURN = 052)
012 +24V US (0V RETURN = 032)
062 +24V SW (0V RETURN = 072)
023 +12V (0V RETURN = 003)
013 +24V US (0V RETURN = 033)
043 +24V SW (0V RETURN = 053)
014 +24V US (0V RETURN = 034)
044 +24V SW (0V RETURN = 054)
015 +24V US (0V RETURN = 035)
045 +24V SW (0V RETURN = 055)
016 +24V US (0V RETURN = 036)
046 +24V SW (0V RETURN = 056)
026 +12V (0V RETURN = 006)
017 +24V US (0V RETURN = 037)
047 +24V SW (0V RETURN = 057)
018 +24V US (0V RETURN = 038)
048 +24V SW (0V RETURN = 058)
019 +24V US (0V RETURN = 039)
049 +24V SW (0V RETURN = 059)
027 +12V (0V RET
URN = 007)
028 +12V (0V RETURN = 008)
064 +24V US (0V RETURN = 074)
060 +40V DC (0V RETURN = 061)
063 +24V US (0V RETURN = 073)
067
01
06
068
22
074
19
064
54
12
12
12
12
12
12
12
12
12
12
12
12
12
12
12
12
12
12
12
12
12
12
12
12
12
12
12
12
1
1
2
2
12
10
11
12
074
064
+24V US
0V RETURN
064
074
+24V US
0V RETURN
R2
1K
Q1
2N3904
353
N/C
N/C
N/C
N/C
25
26
27
28
29
30
31
32
33
34
35
36
37
38
39
40
15
16
17
18
23
24
11
12
13
14
07
08
09
10
02
03
04
05
20
21
01
06
22
19
CB1-3
CB1-1
CB2-3
CB2-1
CB3-3
CB3-1
CB4-3
CB4-1
CB5-3
CB5-1
CB6-3
CB6-1
CB7-3
CB7-1
CB8-3
CB8-1
CB9-3
CB9-1
CB10-3
CB10-1
CB11-3
CB11-1
CB12-3
CB12-1
CB13-3
CB13-1
CB14-3
CB14-1
CB15-3
CB15-1
CB16-3
CB16-1
CB17-3
CB17-1
CB18-3
CB18-1
CB19-3
CB19-1
CB20-3
CB20-1
077
064
067
029
076
020
067
022
077
010
345
040
069
021
345
041
077
011
345
042
077
012
345
062
069
023
077
013
345
043
077
014
345
044
077
015
345
045
077
016
25
26
27
28
29
30
31
32
33
34
35
36
37
38
39
40
15
16
17
18
23
24
11
12
13
14
07
08
09
10
02
03
04
05
20
21
01
06
22
19
CB21-3
CB21-1
CB22-3
CB22-1
CB23-3
CB23-1
CB24-3
CB24-1
CB25-3
CB25-1
CB26-3
CB26-1
CB27-3
CB27-1
CB28-3
CB28-1
CB29-3
CB29-1
CB30-3
CB30-1
CB31-3
CB31-1
M37TB01-01
M37PL26-05
M37TB01-07
M37TB01-13
M37TB01-15
M37TB01-51
M37TB01-54
345
046
069
026
077
017
345
047
077
018
345
048
077
019
345
049
069
027
069
028
077
063
067
175
067
504
069
505
069
506
076
507
076
030
077
060
077
030
030
342
M37SK29
M37SK28
42V SW (MOTOR POWER)
42V SW (MOTOR POWER)
42V SW (MOTOR POWER)
42V SW (MOTOR POWER)
42V SW (MOTOR POWER)
N/C
SPARE 12V
CCT 185251 SH3
REMOTE BAR
CODE READER
CCT 185231 SH2
BAR CODE
HAND SCANNER
CCT 185230 SH3
SPARE 5V
CCT 185251 SH3
N/C
JOG LEFT (NM DIG IN 12)
JOG RIGHT (NM DIG IN 13)
N/C
POWER 'ON' (NM DIG IN 14)
COVER INTERLOCK (NM DIG IN 15)
0V
N/C
N/C
SYSTEM SWITCH
SYSTEM SWITCH LED
JOG LEFT SWITCH
JOG RIGHT SWITCH
RESERVED
RESERVED
TO INTERLOCK SWITCH
TO BLANKING PLUG
TO BLANKING PLUG
TO E. STOP SWITCH
M37SK30
507
506
505
504
01
02
03
04
TO PSU MONITOR PCB 181507
NOT FITTED ON 210900
TO PSU MONITOR PCB 181507
NOT FITTED ON 210900
(BLANKING PLUG FITTED
IF M39 EMO INSTALLED)
POWER DISTRIBUTION PCB
DEK PART No. 181502
RTC BOARD LOAD/
PROACTIV
NODE POWER
CCT 185251 SH3
SPARE SERVO
NODE POWER
CCT 185251 SH3
CAMERA Y MOTOR
CCT 185152 SH3
CAMERA X MOTOR
CCT 185251 SH3
PRINT CARRIAGE MOTOR
CCT 185251 SH3
TABLE MOTOR DRIVE
CCT 185251 SH3
SAFETY I/O (TO M36)
CCT 185248
JOG & SYSTEM SWITCHES
CCT 185248
FRONT COVER
INTERLOCK
CCT 185248
SPARE
INTERLOCK
CCT 185248
SPARE / EXTERNAL E. STOP
CCT 185248
TO PC
MACHINE E. STOP
CCT 185248
E. STOP LOOP SUPPLY (NM ERROR OUT)
CV
22
21/07/2016
3
3
0
185233
A
O
F
SH.
TITLE
DRAWING NUMBER
DATE INITIALDCR
LATEST
ISSUE
No.
M37 PSU CIRCUIT DIAGRAM
44107
NTS
DRAWN
D
A
T
E
D
R
A
W
I
N
G
S
C
A
L
E
DO NOT SCALE
ORIGINAL SCALE
(PLOT)
(CAD) 1:1
D F ORTON
17/08/04
THIS DRAWING AND THE COPYRIGHT
IN IT, IS THE PROPERTY OF ASM
ASSEMBLY SYSTEMS SWITZERLAND
GmbH, IT MAY NOT BE COPIED,
REPRODUCED, PUBLISHED OR
DISCLOSED IN WHOLE OR IN PART
WITHOUT OUR WRITTEN CONSENT.
COPYRIGHT © BY ASM ASSEMBLY SYSTEMS
SWITZERLAND GmbH
(NEXTMOVE I/F, MIU,
CAM LIGHTING)
(NEXTMOVE I/F, MIU,
CAM LIGHTING)
PUS MONITOR USB
CCT 185565