03217894-01-01 E By DEK Electrical Drawings - 第26页
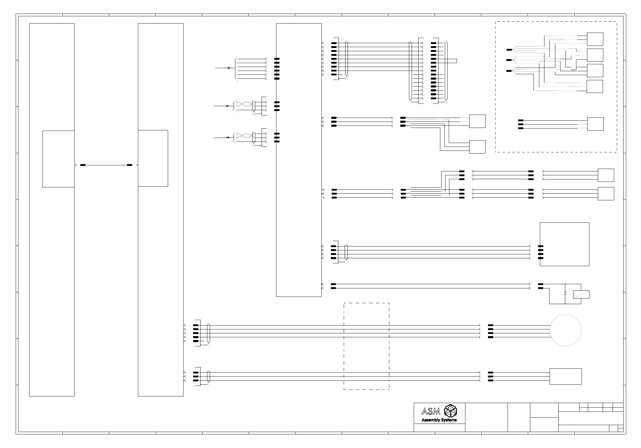
20 Electrical Drawings 185234S3 Issue 19 CCS Squeegee/ProFlow/Ball Plac ement Circuit Diagram (Ball Placement) 1'& $ % & & % $ ' ( ) * + , …

Electrical Drawings 19
185234S2 Issue 19 CCS Squeegee/ProFlow/Ball Placement Circuit Diagram (ProFlow)
1'&
$
%
&
&
%
$
'
(
)
*
+
,
'
(
)
*
+
,
$
2)
6+
7,7/(
'5$:,1*180%(5
'$7( ,1,7,$/'&5
/$7(67
,668(
1R
648((*((352)/2:
6(
5($5
648((*((
+20(
3712
<(
5'
%8
2*
0
3$57
3/
3$57
6.
3$57
3/
3$57
6.
9
6,*
9
3$57&21752/(1&/2685(
371R
&&7',$*5$0
3$573&
43W1R
&&7',$*5$0
+3&;3H3W1R
+3&:(63W1R
&&7',$*5$0
+(%'3W1R
&&7',$*5$0
3/
3$57352&(6625
&$5'027+(5%2$5'
06.
86%
3$57
06.
'5:A&,5&8,7',$*5$0A&&6
352)/2:237,21
6.
86%
3$57
3$57
35,17&$55,$*('5$*&+$,1
3$57
03/
3$57
06.
3$57
03/
&+%
&+%
&+$
&+$
1&
3$5735,17&$55,$*(,212'(
371R
&&7',$*5$0
9
3$57
16.
3$57
13/
13/16.
3$5713/3$5716.
95(7851
986
96:
95(7851
9
5(7851
12'(32:(5
&$1B/
&$1B+
&$1*1'
&$1,1
&$1287
&$1B/
&$1B+
&$1*1'
3$5713/3$5716.
3$57
03/
1(;7029(
(6&$5'
9
',*,1
9
62/
31(80$7,&9$/9(
352)/2:
3$67(35(6685(212))
352)/2:3$67(
35(6685(5(*8/$725
371R
$1$/2*8(287
9
$1$/2*8(,1
06. 03/
)25352)/2:
)25352)/2:
9
16.
13/
9
$1$/2*8(,1
9
',*,1
9
',*,1
9
1&
9
9
35(6685('(0$1',1387
9
35(6685(021,725287387
1&
1&
1&
1&
6. 3/
1&
1&
1&1&
1&1&
1&1&
1&1&
1&1&
1&1&
352)/2:),77('/,1.
352)/2:&$66(77(/2:
06(
5(('
6:,7&+
352)/2:
67(33(5
02725
6.
',*287
9
3$57
16.
3$57
13/
352)/2:3$67(
/(9(/$03/,),(5
3W1R
9
9
6,*1$/
9
9
6,*1$/
6(
352)/2:
3$67(/(9(/
6(1625
1&
6,*1$/
9
9
1&
3/
352)/2:),77('/,1.
6.
3/
1&
1&
1&
1&
1&
1&
1&
1&
1&
1&
1&
1&
1&
1&
1&
1&
1&
1&
1&
1&
1&
1&
1&
1&
1&
1&
1&
1&
1&
1&
1&
1&
1&
3$67(/(9(/7,0(72*2237,21
67$1'$5'352)/2:237,21
127(
7+(67$1'$5'352)/2:237,21
,1&25325$7(6$5(('6:,7&+)25
3$67(/2:'(7(&7,217+(7,0(
72*2237,2187,/,6(6$1$1$/2*8(
6(1625$1'$03/,),(572'(7(&7
7+($&78$/3$67(/(9(/
25,)
3$67(',63(16(
237,21,6),777('
%$//3/$&(0(17237,216
,1'8&7,9(
352;,0,7<
6(1625
176
'5$:1
'$7(
'5$:,1*6&$/(
'21276&$/(
25,*,1$/6&$/(
3/27
&$'
60$56+$//
THIS DRAWING AND THE COPYRIGHT
IN IT, IS THE PROPERTY OF ASM
ASSEMBLY SYSTEMS WEYMOUTH
Ltd, IT MAY NOT BE COPIED,
REPRODUCED, PUBLISHED OR
DISCLOSED IN WHOLE OR IN PART
WITHOUT OUR WRITTEN CONSENT.
COPYRIGHT © BY ASM ASSEMBLY SYSTEMS
WEYMOUTH Ltd

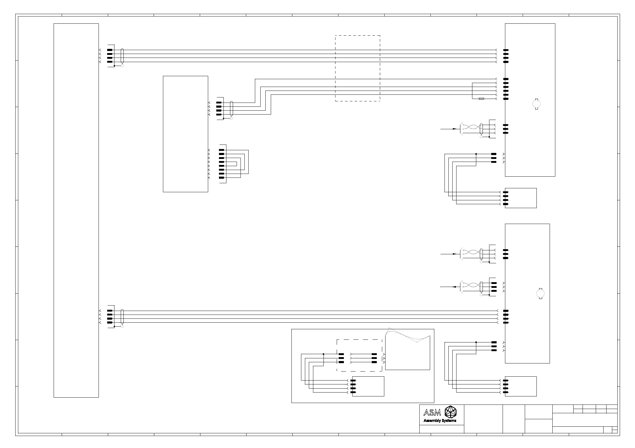
20 Electrical Drawings
185234S3 Issue 19 CCS Squeegee/ProFlow/Ball Placement Circuit Diagram (Ball Placement)
1'&
$
%
&
&
%
$
'
(
)
*
+
,
'
(
)
*
+
,
$
2)
6+
7,7/(
'5$:,1*180%(5
'$7( ,1,7,$/'&5
/$7(67
,668(
1R
6(
5($5
648((*((
+20(
3712
<(
5'
%8
2*
0
3$57
3/
3$57
6.
3$57
3/
3$57
6.
3$57&21752/(1&/2685(
371R
&&7',$*5$0
3$573&
43W1R
&&7',$*5$0
+3&;3H3W1R
+3&:(63W1R
&&7',$*5$0
+(%'3W1R
&&7',$*5$0
3/
3$57352&(6625
&$5'027+(5%2$5'
06.
86%
3$57
06.
'5:A&,5&8,7',$*5$0A&&6
648((*((352)/2:
%$//3/$&(0(17237,216
%$//3/$&(0(17237,21
6.
86%
3$57
3$57
35,17&$55,$*('5$*&+$,1
3$57
03/
3$57
06.
3$57
03/
&+%
&+%
&+$
&+$
1&
3$5735,17&$55,$*(,212'(
371R
&&7',$*5$0
9
3$57
16.
3$57
13/
13/16.
3$5713/3$5716.
95(7851
986
96:
95(7851
9
5(7851
12'(32:(5
&$1B/
&$1B+
&$1*1'
&$1,1
&$1287
&$1B/
&$1B+
&$1*1'
3$5713/3$5716.
3$57
03/
1(;7029(
(6&$5'
9
',*,1
9
62/
31(80$7,&9$/9(
352)/2:
3$67(35(6685(212))
352)/2:3$67(
35(6685(5(*8/$725
371R
$1$/2*8(287
9
$1$/2*8(,1
06. 03/
9
16.
13/
9
$1$/2*8(,1
9
',*,1
9
',*,1
9
1&
9
9
35(6685('(0$1',1387
9
35(6685(021,725287387
1&
1&
1&
1&
6. 3/$
1&
1&
1&1&
1&1&
1&1&
1&1&
1&1&
1&1&
352)/2:),77('/,1.
352)/2:
67(33(5
02725
6.
',*287
9
3$57
16.
3$57
13/
25,)
3$67(',63(16(
237,21,6),777('
9
13/
',*,1
9
16.
9
13/
',*,1
9
16.
3/
6.
3/
3/
6.
6.
3/
3/
6.
6.
00+($'
00+($'
00+($'
00+($'
00+($'
00+($'
00+($'
00+($'
,1'8&7,9(
352;,0,7<
6(1625
,1'8&7,9(
352;,0,7<
6(1625
6(
6(
',))86(
237,&$/
6(1625
',))86(
237,&$/
6(1625
6(
6(
',))86(
237,&$/
6(1625
6(
',))86(
237,&$/
6(1625
6(
',))86(
237,&$/
6(1625
6(
',))86(
237,&$/
6(1625
6(
13/ (3/
(3/
',))86(
237,&$/
6(1625
6(
+233(5/220
+233(5/220
+233(5/220
(3/
9
6,*
9
,1'8&7,9(
352;,0,7<
6(1625
176
'5$:1
'$7(
'5$:,1*6&$/(
'21276&$/(
25,*,1$/6&$/(
3/27
&$'
'*5((1
THIS DRAWING AND THE COPYRIGHT
IN IT, IS THE PROPERTY OF ASM
ASSEMBLY SYSTEMS WEYMOUTH
Ltd, IT MAY NOT BE COPIED,
REPRODUCED, PUBLISHED OR
DISCLOSED IN WHOLE OR IN PART
WITHOUT OUR WRITTEN CONSENT.
COPYRIGHT © BY ASM ASSEMBLY SYSTEMS
WEYMOUTH Ltd

Electrical Drawings 21
185235S1 Issue 16 Camera Circuit Diagram (Axes)
$
%
&
&
%
$
'
(
)
*
+
,
'
(
)
*
+
,
&$0(5$
$
2)
6+
7,7/(
'5$:,1*180%(5
5$5*(17
'5:A&,5&8,7',$*5$0A
3$5732:(56833/<(1&/2685(
371R
&&7',$*5$0
371R(6(5,(6
&&7',$*5$0
3$57&$0(5$;0272512'(
371R
3$57&$0(5$<0272512'(
371R
986
9
',*,1
13/
16.
6(
6(2
&$0(5$;
+20(
)25.2372
9
287
9
9
9
',*,1
13/ 16.
6(
&$0(5$<
+20(
)25.2372
9
287
9
96:
95(7851
986
95(7851
16.
3$57
03/
&$1+
&$1/
&$1*1'
3$57
16.
&$1+
&$1/
&$1*1'
3$57
16.
6:,7&+('6(592'&6833/<
9
986/2*,&6833/<
9
13/
3$57
13/
6:,7&+('6(592'&6833/<
9
986/2*,&6833/<
9
13/
3$57
16.
/$7(67
,668(
1R
'$7(
'&5
1'&
,1,7,$/
3$57
06.
3$57
06.
16.
3$57
13/
9L
3$57&$0(5$<'5$*&+$,1
371R*(0,1,
0
0
*(0,1,
&$1,1
&$1287
&$1,1
3$57
03/
3$57
13/
&$1+
&$1/
&$1*1'
6(
96:
95(7851
986
95(7851
/
/
9
9
',*,1
13/ 16.
6(
&$0(5$<
+20(
)25.2372
9
287
9
6(
/
3$57&$0(5$<0272512'(
371R
(;7(16,21/220)259L3/$7)250
9L(;7(16,21
3$57&21752/(1&/2685(
3W1R
&&7',$*
&+$
&+$
&+%
&+%
16.
13/
&+$
&+$
&+%
&+%
06.
03/
9L
E
F
D
E
F
D
E
F
3$57
%586+/(666(592'5,9(
&$0(5$;$;,6
6.
3$57
%586+/(666(592'5,9(
&$0(5$;$;,6
3/
&+$
&+$
&+%
&+%
&+$
&+$
&+%
&+%
+$:.(<((1&2'(5
('*(&211(&725
&+$
&+%
&$17(50,1$7255
176
'5$:1
'$7(
'5$:,1*6&$/(
'21276&$/(
25,*,1$/6&$/(
3/27
&$'
THIS DRAWING AND THE
COPYRIGHT IN IT, IS THE
PROPERTY OF ASM ASSEMBLY
SYSTEMS WEYMOUTH Ltd,
IT MAY NOT BE COPIED,
REPRODUCED, PUBLISHED OR
DISCLOSED IN WHOLE
OR IN PART WITHOUT OUR
WRITTEN CONSENT.
COPYRIGHT © BY ASM ASSEMBLY SYSTEMS
WEYMOUTH Ltd