03217894-01-01 E By DEK Electrical Drawings - 第34页
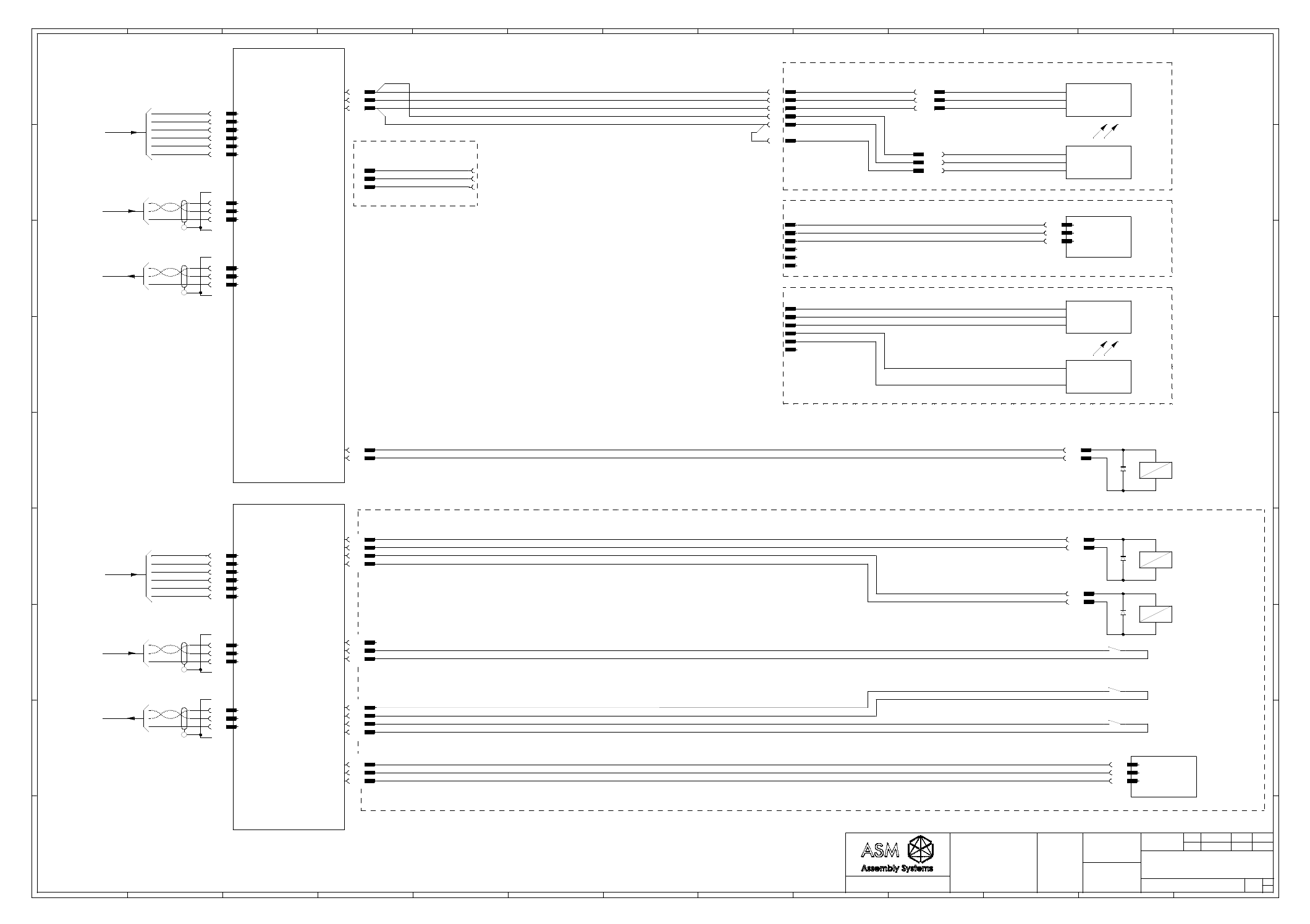
28 Electrical Drawings 185503 Issue 10 CCS Screen Load Circuit Diag ram 1'& $ % & & % $ ' ( ) * + , ' ( ) * + , $ 2) 6+ 7,7/( &apos…

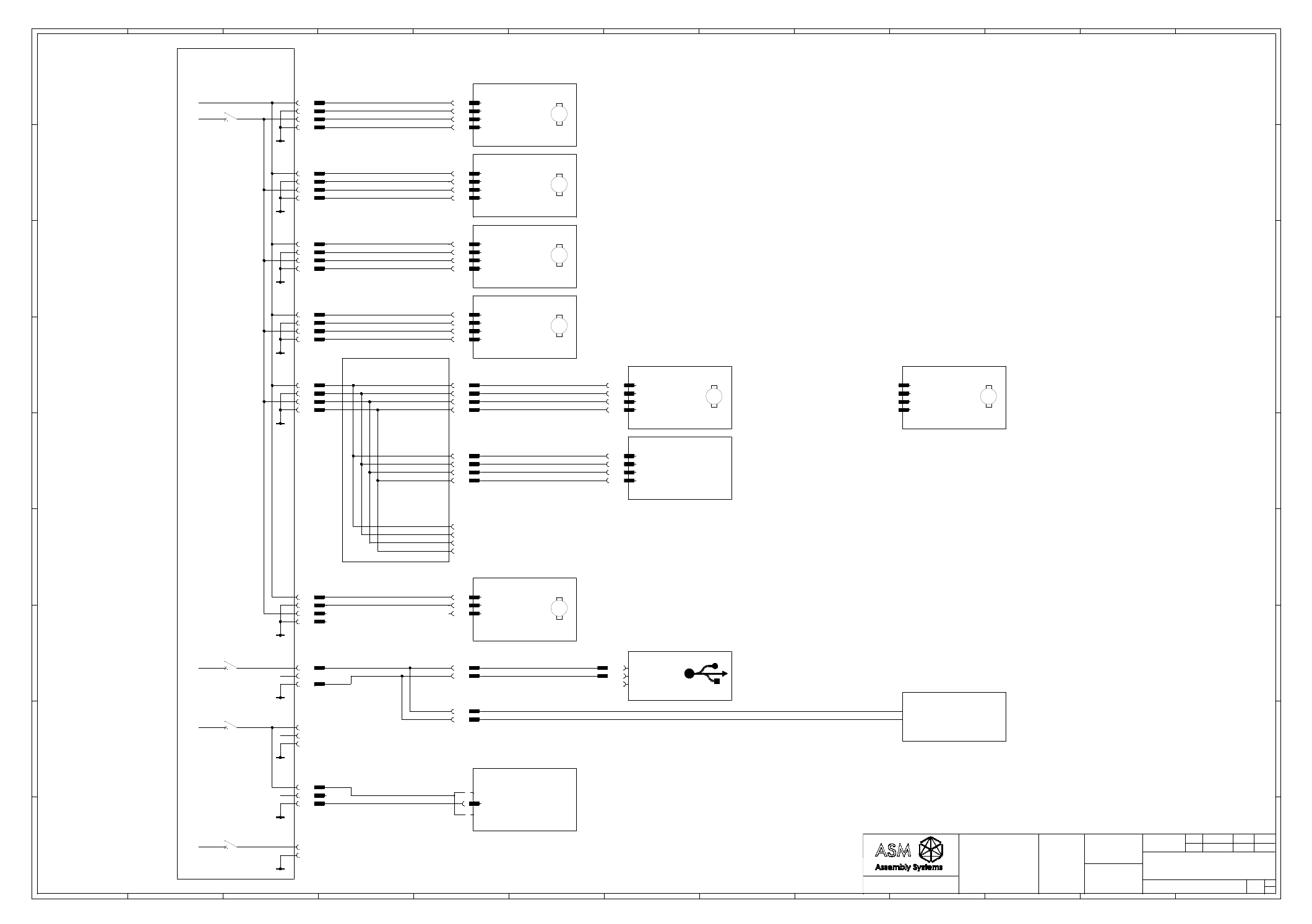
Electrical Drawings 27
185251S3 Issue 30 Power Distribution Circuit Diagram
1'&
$
%
&
&
%
$
'
(
)
*
+
,
'
(
)
*
+
,
$
2)
6+
7,7/(
'5$:,1*180%(5
'$7( ,1,7,$/'&5
/$7(67
,668(
1R
3$5732:(56833/<(1&/2685(
371R
371R(6(5,(6
&&7',$*
'5:A&,5&8,7',$*5$0A
32:(5',675,%87,21
06.3/
16.
13/
7$%/(0272512'(
371R
06.3/
16.
13/
35,17&$55,$*(0272512'(
371R
3$57
6(592'&6833/<
95(7851
98602725/2*,&
95(7851
6(592'&6833/<
95(7851
98602725/2*,&
95(7851
0
0
&%$
986
9
06.3/
16.
13/
6(592'&6833/<
95(7851
98602725/2*,&
95(7851
0
06.3/
06.3/
16.
13/
6(592'&6833/<
95(7851
98602725/2*,&
95(7851
0
9
9
9
03/
03/
9
9
&%$
9
9
1&
06.
&%$
9
9
1&
063/.
9
1&
06.
&%$
9
9
63$5(9
32:(5
127(32:(56833/<)256(592027256
,66(7729210$&+,1(6$1'
9210$&+,1(6
996:6((127(
3527(&7('%<&%$
&$0(5$;0272512'(
371R
127),77('21
&$0(5$<0272512'(
371R
127),77('21
06.3/
5(027(352'8&7,'237,21
6((&&76+((7
06.
06.
1&
03/
0&21752/
(1&/2685(
371R
&&7B6
1&
1&
(852)/(;
6833/<
1&
)25&$0(5$;<
/,1($56(5926
0
06.%
06.&
06.$
16.
16.
13/
13/
57&7:+
96:
6(592'&6833/<
95(7851
95(7851
986
98602725/2*,&
95(7851
95(7851
0
3UR$FWLY'5,9(%2$5'
371R
,)),77('237,21
%2$5'/2$'0272512'(
371R
)2557&237,2121/<
6. 3/
%$5&2'(
+$1'6&$11(5
371R
,)),77('237,21
9&(175(
9%2'<
13/
6(592'&6833/<
95(7851
98602725/2*,&
95(7851
0
7+,1:$)(5+$1'/,1*7:+0272512'(
371R
)257:+237,2121/<
25
176
'5$:1
'$7(
'5$:,1*6&$/(
'21276&$/(
25,*,1$/6&$/(
3/27
&$'
5$5*(17
371R
,)),77('
237,21$65(48,5('
THIS DRAWING AND THE
COPYRIGHT IN IT, IS THE
PROPERTY OF ASM ASSEMBLY
SYSTEMS WEYMOUTH Ltd,
IT MAY NOT BE COPIED,
REPRODUCED, PUBLISHED OR
DISCLOSED IN WHOLE
OR IN PART WITHOUT OUR
WRITTEN CONSENT.
COPYRIGHT © BY ASM ASSEMBLY SYSTEMS
WEYMOUTH Ltd
3/
03/
6.
06.$06.3/
3/ 6.
9
9
*1'
*1'
*1'
/('67(1&,/%$&./,*+7
371R
,)),77('237,21
3$5786%+8%
371R
,)),77('237,21

28 Electrical Drawings
185503 Issue 10 CCS Screen Load Circuit Diagram
1'&
$
%
&&
%
$
'
(
)
*
+
,
'
(
)
*
+
,
$
2)
6+
7,7/(
'5$:,1*180%(5
'$7( ,1,7,$/'&5
/$7(67
,668(
1R
3$570$,10&,212'(
371R
&&7',$*5$0
9
',*,1
9
*(0,1,
9
6,*1$/
9
9
02'(
9
5[
6(
6&5((1
$7&(175(
7+528*+
%($02372
7[
%1
%.
%8
%1
%.
%8
3/
6.
3/6.
6(
6&5((1/2$'&</,1'(5(;7(1'('
6(
6&5((1/2$'&</,1'(55(75$&7('
3/ 6.
6(
',))86(
2372
6(1625
6&5((1
326,7,21
6(1625
9
6,*1$/
9
6.
6(
648((*(('5,375$<5(75$&7('
13/
16.
',*287
9
3$57
13/
3$57
16.
62/
67(1&,//2$'
$&78$725
31(80$7,&9$/9(
6.
62/
648((*(('5,375$<
$&78$725
31(80$7,&9$/9(
9
',*287
6.
'5:A&,5&8,7',$*5$0A
&&6A6&5((1/2$'
3$5735,17&$55,$*(,212'(
371R
&&7',$*5$0
9
',*,1
9
',*,1
9
9
',*,1
9
13/16.
3$5713/3$5716.
95(7851
986
96:
95(7851
9
5(7851
12'(32:(5
&$1B/
&$1B+
&$1*1'
&$1,1
*(0,1,
&$1287
&$1B/
&$1B+
&$1*1'
3$5713/3$5716.
13/16.
3$5713/3$5716.
95(7851
986
96:
95(7851
9
5(7851
12'(32:(5
&$1B/
&$1B+
&$1*1'
&$1,1
&$1287
&$1B/
&$1B+
&$1*1'
3$5713/3$5716.
3$57
13/
3$57
16.
13/
16.
9
',*,1
13/
16.
1&
5(('6:,7&+
5(('6:,7&+
5(('6:,7&+
3$57
3$57
237,21$8726&5((1/2$'
25,)
6&5((1&/($1(5
237,21,6),77('
)25*(0,1,
25,)
3$67(',63(16(
237,21,6),77('
62/
6&5((1&/$036
31(80$7,&
9$/9(
6.
3$57
13/
3$57
16.
',*287
9
6(
',))86(
2372
6(1625
6&5((1
326,7,21
6(1625
9
6,*1$/
9
%1
%.
%8
3/
1&
1&
1&
1&
6.
$:60&+$6(
(;7(16,21/220)259L3/$7)250
13/
16.
9
6,*1$/
9
9
9
5[
6(
6&5((1
$7&(175(
7+528*+
%($02372
7[
%1
%.
%8
%1
%8
3/
$60&+$6(
$:60&+$6(&&+$6(
$:60&&+$6(
176
'5$:1
'$7(
'5$:,1*6&$/(
'21276&$/(
25,*,1$/6&$/(
3/27
&$'
60$56+$//
THIS DRAWING AND THE COPYRIGHT
IN IT, IS THE PROPERTY OF ASM
ASSEMBLY SYSTEMS WEYMOUTH
Ltd, IT MAY NOT BE COPIED,
REPRODUCED, PUBLISHED OR
DISCLOSED IN WHOLE OR IN PART
WITHOUT OUR WRITTEN CONSENT.
COPYRIGHT © BY ASM ASSEMBLY SYSTEMS
WEYMOUTH Ltd

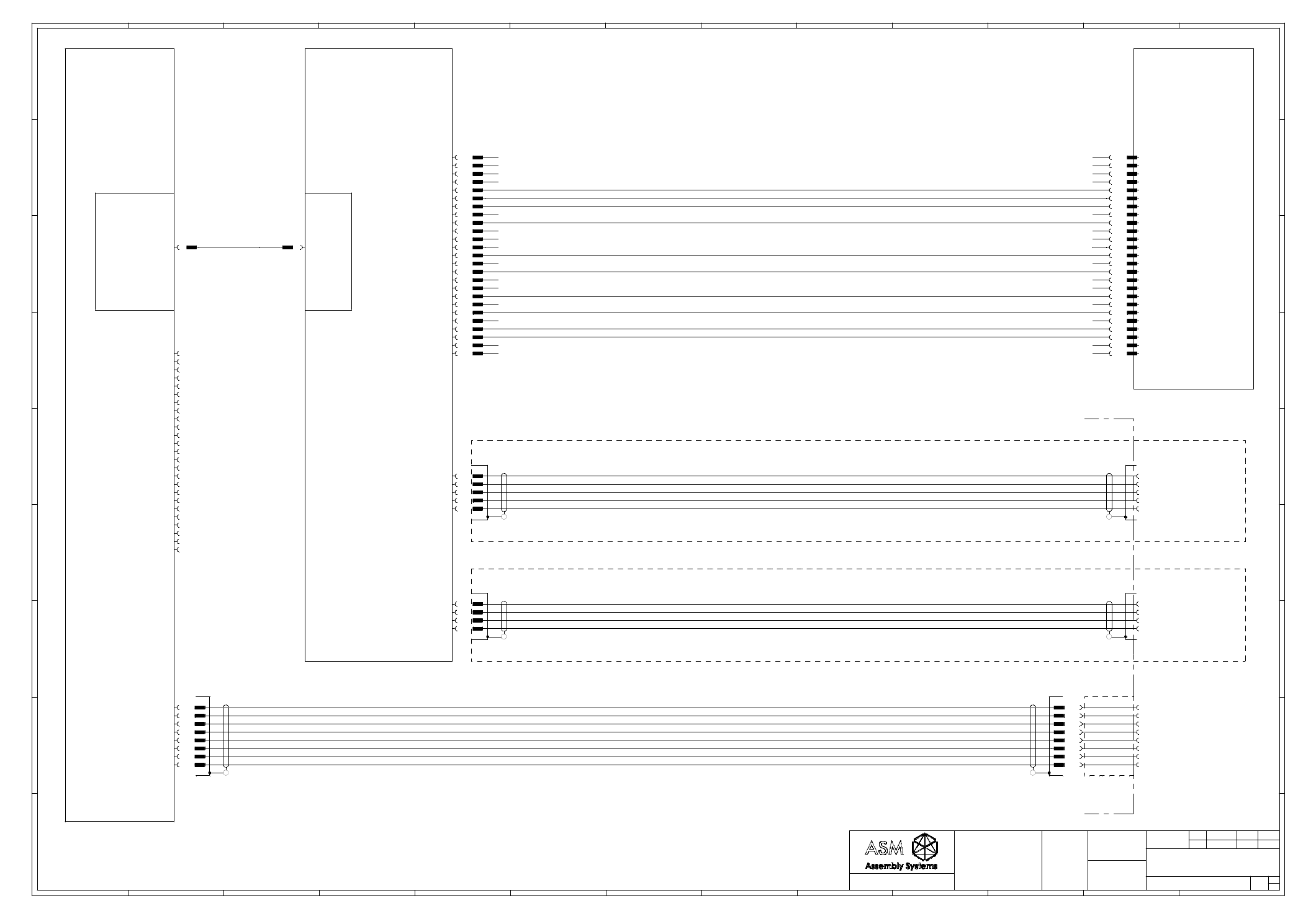
Electrical Drawings 29
185504 Issue 12 CCS External Signals Circuit Diagram
3/6.
86%
3$57352&(6625&$5'
027+(5%2$5'
1'&
$
%
&
&
%
$
'
(
)
*
+
,
'
(
)
*
+
,
&&6A(;7(51$/6,*1$/6
$
2)
6+
7,7/(
'5$:,1*180%(5
'$7( ,1,7,$/'&5
/$7(67
,668(
1R
60$56+$//
'5:A&,5&8,7',$*5$0A
3$573&
43W1R
&&7',$*5$0
+3&;3H3W1R
+3&:(63W1R
&&7',$*5$0
+3&(%'3W1R
&&7',$*5$0
3/
6.
3/
6.
6.
1HR+R]
/$1
665)0,32',)),77('
371R
25
0,8
3712
3$5$//(/
35,17(5
6752%(
'$7$%,7
'$7$%,7
'$7$%,7
$&.
%86<
3$3(5(1'
6/&7
$872)(('
(5525
,1,7
6/&7,1
*1'
*1'
*1'
*1'
*1'
*1'
*1'
*1'
'$7$%,7
'$7$%,7
'$7$%,7
'$7$%,7
'$7$%,7
/$1
1&
%2$5'3$66,3
6(1'83/,1(,3
572583/,1(23
9
96:
%2$5'3$6623
6(1''2:1/,1(,3
9,3
5725'2:1/,1(23
'(.0$&+,1(
03/
83'2:1/,1(
06.
6(('2(6)25
'2:1/,1(/2207<3(
'(.0$&+,1(
06.
3$57&21752/(1&/2685(
3712
&&7',$*5$0
03/
03/
%2$5'3$6623
6(1'83/,1(23
83/,1(5($'<,3
986
9
96:
1&
%2$5'3$66,3
6(1''2:1/,1(23
9
'2:1/,1(5($'<,3
06.
06.
86%
1(;7029(
(6&$5'
$1,1
3$57
06.
9
3$57
03/
$1,1
9865
9
/(9(/
9
3$57
6.
/(9(/
9865
9
1HR+R]
1HR+R]
62/9(177,0(
72*2237,21
3$57
03/
$*1'
3$57
03/
$287
$*1'
&+$66,6
3$57
03/
3$57
06.
6(59,&(3$1(/
3712
1&
1&
1&
1&
1&
1&
1&
1&
1&
1&
1&
1&
1&
1&
1&
1&
1&
1&
1&
1&
1&
1&
1&
1&
1&
1&
1&
1&
1&
1&
1&
1&
1&
1&
1&
1&
1&
1&
1&
1&
1&
1&
1&
1&
1&
1&
1&
1&
1&
1&
1&
1&
1&
1&
1&
1&
1&
1&
1HR+R]
7&0237,21
176
'5$:1
'$7(
'5$:,1*6&$/(
'21276&$/(
25,*,1$/6&$/(
3/27
&$'
THIS DRAWING AND THE COPYRIGHT
IN IT, IS THE PROPERTY OF ASM
ASSEMBLY SYSTEMS WEYMOUTH
Ltd, IT MAY NOT BE COPIED,
REPRODUCED, PUBLISHED OR
DISCLOSED IN WHOLE OR IN PART
WITHOUT OUR WRITTEN CONSENT.
COPYRIGHT © BY ASM ASSEMBLY SYSTEMS
WEYMOUTH Ltd
$*1'
7(03
$*1'
&+$66,6