03217894-01-01 E By DEK Electrical Drawings - 第46页
40 Electrical Drawings 222019 Issue 2 Controller PC H81 EA NDC 02 5 4 3 2 1 A B C C B A 123 45 67 8 91 0 1 1 1 2 1 3 6 7 8 9 10 11 12 13 D E F G H I D E F G H I 0 CONTROLLER^PC H81 EA A OF SH. TITLE DRAWING NUMBER DATE I…

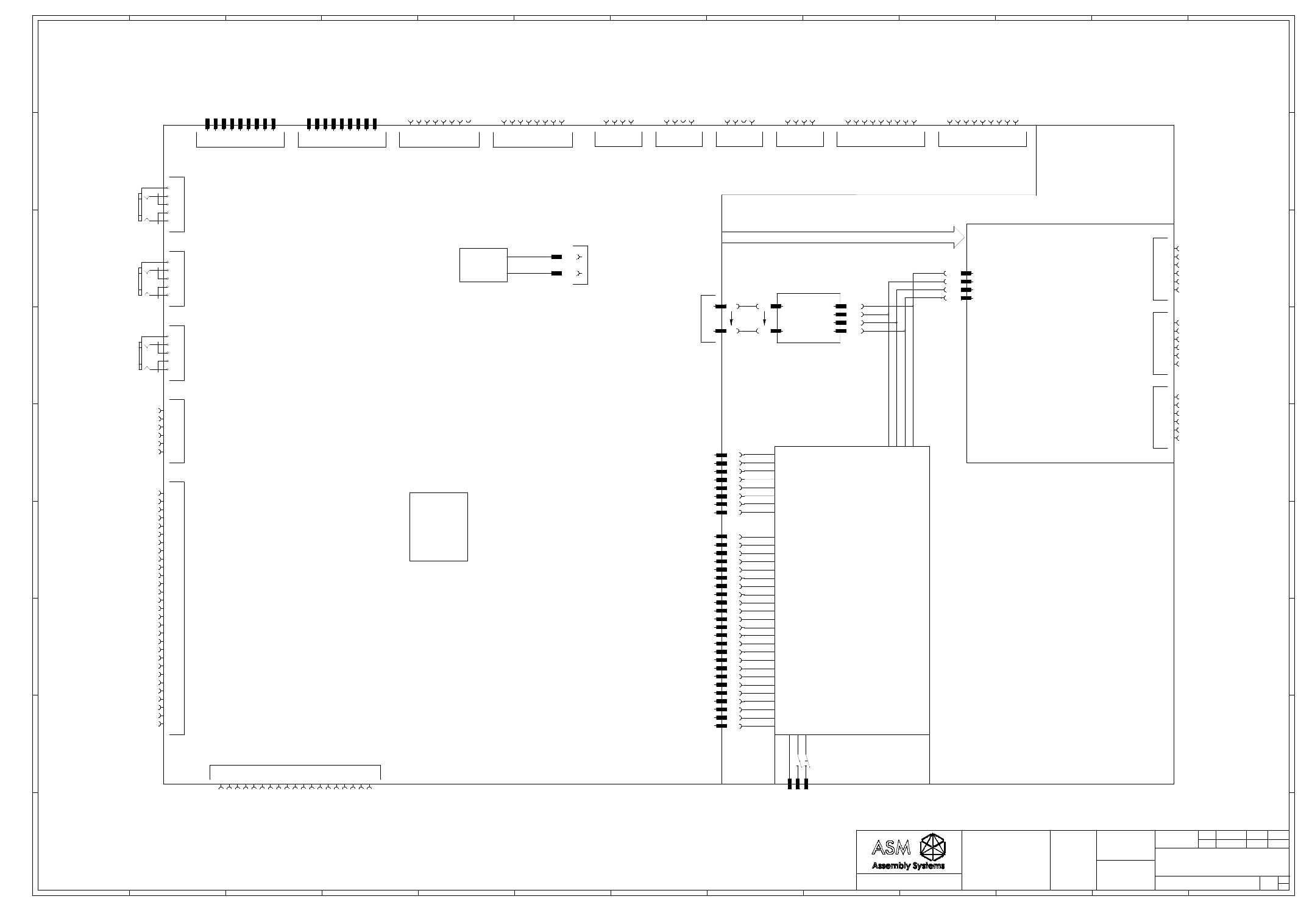
Electrical Drawings 39
200962 Issue 1 Controller PC EBD H81 EA
6,
$
%
&
&
%
$
'
(
)
*
+
,
'
(
)
*
+
,
&21752//(5A(%'A+($
$
2)
6+
7,7/(
'5$:,1*180%(5
'$7( ,1,7,$/'&5
/$7(67
,668(
1R
':*A&,5&8,7',$*5$0A
6.
6.
6.
6.
6.
363,10,1,
.(<%2$5'
*
,
*
$
%
,
7
(
7
+
(
5
1
(
7
*
L
*
$
%
,
7
(
7
+
(
5
1
(
7
6.
+
'
0
,
&2056
&2056
723:$<'
0
2
1
,
7
2
5
1
2
7
8
6
(
'
/
$
1
+
2
6
7
&
2
0
0
6
/
$
1
+
2
6
7
&
2
0
0
6
1
2
7
8
6
(
'
6$7$
1
2
7
8
6
(
'
1
2
7
8
6
(
'
12786('
12786(' 12786('
12786('
6.
6.
6. 6.
0$,16,1
3/
6.
6.
.(<%2$5'0286(
728&+6&5((1
3712
81,%5$,1
),5(:,5(&$5'
3712
9
96(16(
9
9
*1'
*1'
9
32:(521
*1'
*1'
9
*1'
*1'
*1'
32:(5*22'
5(6(59('
967$1'%<
9
9
9
9
9
9
*1'
/
1
(
*1'
*1'
*1'
*1'
9
9
9
9
+''
<
(
%
.
%
.
5
'
9
9
*1'
*1'
*1'
*1'
9
9
9
9
6:
027+(5%2$5'
3&,(;35(66%86
/
,
1
(
2
8
7
0
,
&
,
1
/
,
1
(
,
1
86%
86% 86%86%
86%
86%
86%
86%
86%
86% 86% 86%
63$5(
1(;7029((6
6.
6.
6.
),5(:,5(
&$0(5$
127
86('
127
86('
32:(5
32:(5
32:(5
*1'
*1'
*1'
73%
73%
73%
73%
73%
73%
73$
73$
73$
73$
73$
73$
$7;3RZHU6XSSO\
:
5'
%.
%.
<(
9
*1'
*1'
9
),5(:,5(
),5(:,5(
),5(:,5(
6$7$
&+$66,6)$1
<(
%.
%.
5'
3/%3/$
'$7$
1&
*1'
9
&/.
1&
6.%6.$
$7;32:(5
932:(5
%.
2*
%5
%.
2*
%8
%.
%.
%.
%.
5'
*5
5'
5'
%.
%.
5'
5'
5'
%.
%.
%.
*5
1&
3/
5'
<(/
5'
<(/
5'
2*
%.
'$7$
'$7$
'$7$6+,(/'
'$7$
'$7$
'$7$6+,(/'
'$7$
&/2&.
&/2&.6+,(/'
6'$
&/2&.
''&+(&&(&*1'
&(&
9
1&
+273/8*'(7(&7
6&/
'$7$6+,(/'
'$7$
9%86
9%86
'$7$
'$7$
'$7$
'$7$
*1'
*1'
9%86
9%86
'$7$
'$7$
'$7$
'$7$
*1'
*1'
6WG$B665;7;
6WG$B665;7;
9%86
9%86
6WG$B665;7;
6WG$B665;7;
'$7$
'$7$
*1'B'5$,1
*1'B'5$,1
6WG$B667;5;
6WG$B667;5;
'$7$
'$7$
6WG$B667;5;
6WG$B667;5;
*1'
*1'
5;'
5;'
7;B'
7;B'
7;'
7;'
5;B'
7;B'
'65
'65
5;B'
7;B'
'75
'75
%,B'
7;B'
*1'
*1'
%,B'
7;B'
576
576
%,B'
7;B'
'&'
'&'
7;B'
7;B'
5,
5,
&76
&76
%,B'
7;B'
176
'5$:1
'$7(
'5$:,1*6&$/(
'21276&$/(
25,*,1$/6&$/(
3/27
&$'
6,9(6
+3$5712
352&(6625
&(/(521&38
**+]
0(025<
*%''5
'9,,
+273/8*'(7(&7
70'6'$7$
'$7$*1'
70'6'$7$
70'6'$7$
70'6'$7$
70'6'$7$
''&&/2&.
&/2&.*1'
''&'$7$
70'6&/2&.
$1$/2*96<1&
70'6&/2&.
70'6'$7$
&$1$/2*5('
70'6'$7$
&$1$/2**5((1
'$7$*1'
&$1$/2*%/8(
70'6'$7$
&$1$/2*+6<1&
70'6'$7$
&$1$/2**1'
9'&
*5281'
70'6'$7$
70'6'$7$
70'6'$7$
'DWD*1'
0
2
1
,
7
2
5
6
9
*
$
$
'
$
3
7
2
5
6
8
3
3
/
,
(
'
:
,
7
+
3
&
63$5(
'21*/(
THIS DRAWING AND THE COPYRIGHT
IN IT, IS THE PROPERTY OF ASM
ASSEMBLY SYSTEMS WEYMOUTH
LIMITED, IT MAY NOT BE COPIED,
REPRODUCED, PUBLISHED OR
DISCLOSED IN WHOLE OR IN PART
WITHOUT OUR WRITTEN CONSENT.
COPYRIGHT © BY ASM ASSEMBLY SYSTEMS
WEYMOUTH LIMITED

40 Electrical Drawings
222019 Issue 2 Controller PC H81 EA
NDC
02
54321
A
B
C
C
B
A
12345
67
8
910 1112 13
6
7
8
9
10 11
12
13
D
E
F
G
H
I
D
E
F
G
H
I
0
CONTROLLER^PC H81 EA
A
OF
SH.
TITLE
DRAWING NUMBER
DATE INITIALDCR
LATEST
ISSUE
No.
14/04/2015
43225
222019
1
1
DWG^CIRCUIT DIAGRAM^
01
02
03
04
05
06
3SK63
3SK49
3SK48
3SK47
3SK04
PS2 - 6 PIN MINI
KEYBOARD
G
I
G
A
B
I
T
E
T
H
E
R
N
E
T
G
i
G
A
B
I
T
E
T
H
E
R
N
E
T
3SK05
H
D
M
I
COM 1 RS232
COM 2 RS232
(TOP 9 WAY 'D')
M
O
N
I
T
O
R
N
O
T
U
S
E
D
L
A
N
1
H
O
S
T
C
O
M
M
S
L
A
N
2
H
O
S
T
C
O
M
M
S
N
O
T
U
S
E
D
SATA
SATA
STINGER (IF FITTED)
N
O
T
U
S
E
D
NOT USED
NOT USED
NOT USED
NOT USED
01
02
03
04
01
02
03
04
06
06
01
01
02
02
07
07
03
03
08
08
04
04
09
09
05
05
3SK36 3SK35
MAINS IN
3PL01
3SK34 3SK57
NOT USED TO USB HUB
UNIBRAIN
FIREWIRE CARD
Pt No. 191015
01
01
01
02
02
02
03
03
03
01
13
02
14
03
15
04
16
05
17
06
18
07
19
08
20
09
21
10
22
+3.3V
3.3V SENSE
+3.3V
-12V
GND
GND
+5V
POWER ON
GND
GND
+5V
GND
GND
GND
POWER GOOD
RESERVED
+5V STANDBY
+5V
+12V
+5V
11
23
12
24
+12V
+5V
+3.3V
GND
L
N
E
01
03
02
04
07
05
08
06
GND
GND
GND
GND
+12V
+12V
+12V
+12V
DVD
HDD
Y
E
Y
E
B
K
B
K
B
K
B
K
R
D
R
D
01
01
02
02
03
03
04
04
+12V
+12V
+12V
GND
GND
GND
GND
GND
GND
+5V
+5V
+5V
01
01
01
01
07
07
07
07
01
01
02
02
+12V
+12V
0V
0V
3SW1
MOTHERBOARD
PCI EXPRESS BUS
L
I
N
E
-
O
U
T
M
I
C
I
N
L
I
N
E
I
N
01
02
03
04
01
02
03
04
01
02
03
04
01
02
03
04
3SK56 3SK37 3SK58 3SK59
USB2.0 USB3.0USB3.0 USB2.0 USB2.0 USB2.0 USB2.0USB2.0
USB3 USB4 USB2 USB1
TO NEXTMOVE ES
USB5
USB6 USB7 USB8
3SK55
3SK53
3SK54
TO M37 PSUTO COVERS LH
FOR OPERATOR
USB DEVICES
TO COVERS RH
FOR OPERATOR
USB DEVICES
TO USB/RS232
CONVERTER
04
04
04
05
05
05
06
06
06
FIREWIRE
CAMERA
NOT
USED
NOT
USED
POWER
POWER
POWER
GND
GND
GND
TPB-
TPB-
TPB-
TPB+
TPB+
TPB+
TPA-
TPA-
TPA-
TPA+
TPA+
TPA+
ATX Power Supply
500W
RD
BK
BK
YE
+5V
GND
GND
+12V
SATA 1
FIREWIRE 2
FIREWIRE 3
FIREWIRE 1
SATA 0
CHASSIS FAN
CHASSIS FAN
YE
BK
BK
RD
3PL03B3PL03A
02
02
02
02
03
03
03
03
04
04
04
04
05
05
05
05
06
06
06
06
07
07
07
07
08
08
08
08
09
09
01
01
01
01
DATA +
N / C
GND
+ 5V
CLK
N / C
3SK02B3SK02A
ATX POWER
12V POWER
BK
OG
BR
BK
OG
BU
BK
BK
BK
BK
RD
GR
RD
RD
BK
BK
RD
RD
RD
BK
BK
BK
GR
N/C
PL
RD
YEL
RD
YEL
RD
OG
BK
04
03
02
01
DATA 2 +
DATA 1 +
DATA 1 SHIELD
DATA 1 -
DATA 1 +
DATA 0 SHIELD
DATA 0 -
CLOCK +
CLOCK SHIELD
SDA
CLOCK -
DDC/HEC/CEC GND
CEC
+ 5 V
N/C
HOT PLUG DETECT
SCL
DATA 2 SHIELD
DATA 2 -
01
02
03
04
05
06
07
08
09
10
11
16
12
17
13
18
14
19
15
V BUS
DATA -
DATA +
GND
V BUS
DATA -
DATA +
GND
StdA_SSRX/TX-
StdA_SSRX/TX-
V BUS
V BUS
StdA_SSRX/TX+
StdA_SSRX/TX+
DATA -
DATA -
GND_DRAIN
GND_DRAIN
StdA_SSTX/RX-
StdA_SSTX/RX-
DATA +
DATA +
StdA_SSTX/RX+
StdA_SSTX/RX+
GND
GND
V BUS
DATA -
DATA +
GND
V BUS
DATA -
DATA +
GND
V BUS
DATA -
DATA +
GND
V BUS
DATA -
DATA +
GND
RXD
RXD
TX_D1 -
TX_D1+
TXD
TXD
RX_D2 +
TX_D1+
DSR
DSR
RX_D2 -
TX_D1+
DTR
DTR
BI_D3 +
TX_D1+
GND
GND
BI_D3 -
TX_D1+
RTS
RTS
BI_D4 +
TX_D1+
DCD
DCD
TX_D1 +
TX_D1+
RI
RI
CTS
CTS
BI_D4 -
TX_D1+
NTS
DRAWN
DATE
DRAWING SCALE
DO NOT SCALE
ORIGINAL SCALE
(PLOT)
(CAD) 1:1
THIS DRAWING AND THE COPYRIGHT
IN IT, IS THE PROPERTY OF ASM
ASSEMBLY SYSTEMS SWITZERLAND
GmbH, IT MAY NOT BE COPIED,
REPRODUCED, PUBLISHED OR
DISCLOSED IN WHOLE OR IN PART
WITHOUT OUR WRITTEN CONSENT.
COPYRIGHT © BY ASM ASSEMBLY SYSTEMS
SWITZERLAND GmbH
N CAMP
25/03/2015
H81 PC PART No.
XPe 200921
WES7 200920
PROCESSOR:
DUAL CORE
2 x 3.20 GHZ
MEMORY:
2GB DDR3
DVI-I
HOT PLUG DETECT
T.M.D.S DATA 2 -
DATA 0 / 5 GND
T.M.D.S. DATA 4 -
T.M.D.S. DATA 5 -
T.M.D.S. DATA 4 +
T.M.D.S. DATA 5 +
DDC CLOCK
CLOCK GND
DDC DATA
T.M.D.S. CLOCK +
ANALOG. V SYNC
T.M.D.S. CLOCK -
T.M.D.S. DATA 1 -
C1 ANALOG RED
T.M.D.S. DATA 1 +
C2 ANALOG GREEN
DATA 1 / 3 GND
C3 ANALOG BLUE
T.M.D.S. DATA 3 +
C4 ANALOG H SYNC
T.M.D.S. DATA 3 +
C5 ANALOG GND
+ 5 VDC
GROUND
T.M.D.S. DATA 0 -
T.M.D.S. DATA 2 +
T.M.D.S. DATA 0 +
Data 2 / 4 GND
16
01
17
02
18
03
19
04
20
05
21
06
22
07
23
08
24
09
25
10
26
11
27
12
28
13
29
14
15
M
O
N
I
T
O
R
(
S
V
G
A
A
D
A
P
T
O
R
2
0
0
9
0
4
S
U
P
P
L
I
E
D
W
I
T
H
P
C
)
TO DONGLE
USB EXPANSION
PORTS