PTS-XPFS-02JE - 第157页
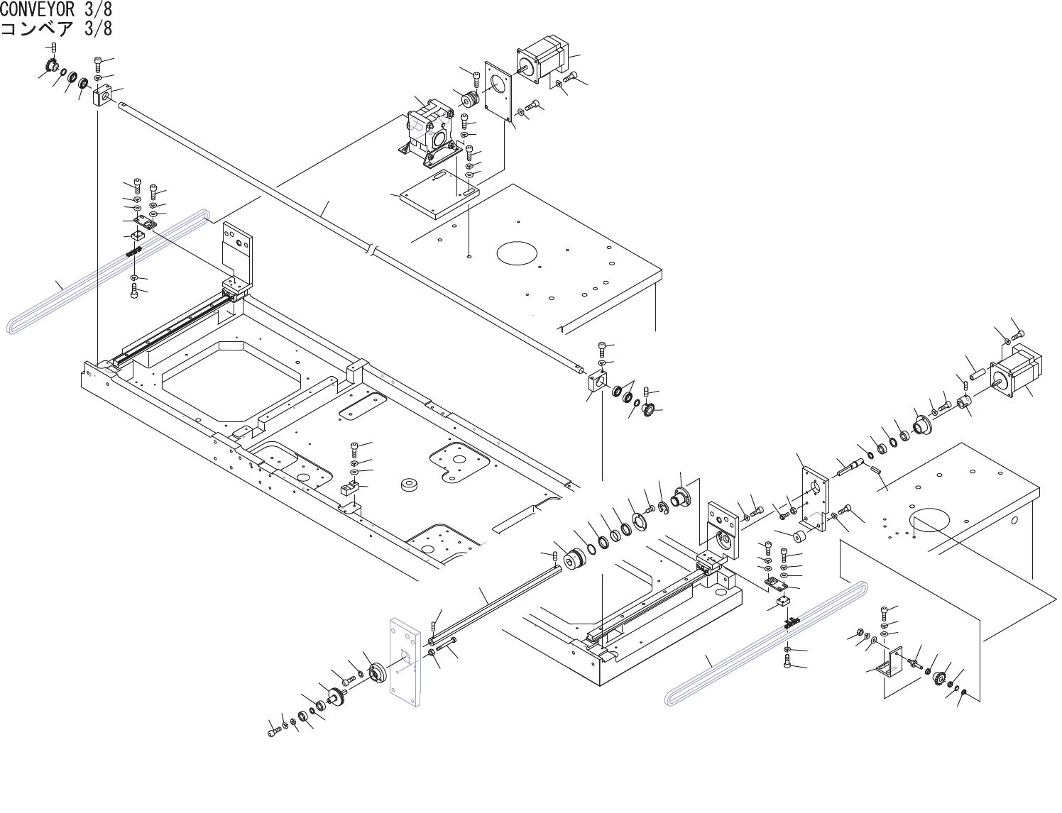
CONVEYOR 3/8 コンベア 3/8 AGGQC9004 No. Drg.No. & Code No. QTY Description Rating Materials Remarks 番号 図番 & コード番号 個 数 品名 規格 材質 備考 1 DEQC0171 1 PULLEY プーリ FE 2 GVC0141 1 COLLAR カラー FE 3 H5300A 1 BOLT, HEX SOCKET ボルト …

A
41
42
40
39
38
35
36
34
6
33
6
32
30
24
29
28
22
23
20
21
19
18
16
17
16
15
14
11
10
11
12
13
7
9
8
1
6
2
6
5
4
3
27
44
45
46
47
48
49
43
50
53
52
51
58
59
60
55
56
57
61
54
64
65
62
63
62
31
25
26
37
101
99
98
97
94
90
83
80
81
82
84
85
86
87
89
88
78
75
77
76
72
71
73
74
74
79
95
96
91
92
93
102
106
107
108
105
103
104
100
76
77
75
73
74
72
71
AGGQC9004
156
PTS-XPFS-02JE

CONVEYOR 3/8
コンベア 3/8 AGGQC9004
No. Drg.No. & Code No. QTY Description Rating Materials Remarks
番号 図番 & コード番号 個数 品名 規格 材質 備考
1 DEQC0171 1 PULLEY プーリ FE
2 GVC0141 1 COLLAR カラー FE
3 H5300A 1 BOLT, HEX SOCKET ボルト 六角穴 M05X015 FE
4 W1023A 1 WASHER, LOCK ワッシャ スプリング 5M/M FE
5 K11384 1 COLLAR カラー SRW8 OT
6 H4440A 4 BEARING, MINIATURE ベアリング ミニチュア DDL-1910ZZ OT
7 DNQC1570 1 HOLDER, BEARING ホルダ ベアリング FE
8 H5288A 2 BOLT, HEX SOCKET ボルト 六角穴 M04X010 FE
9 W1011A 2 WASHER, CONICAL ワッシャ 皿 M- 4-L FE
10 DEQC0190 1 SHAFT シャフト FE
11 N4026A 2 SCREW, HEX SOCKET SET ネジ 六角穴止め M04X004 クボミサキ FE
12 H5136M 1 BOLT, STOPPER ボルト ストッパ UST5-45 OT
13 N10797 1 NUT, HEX ナット 六角 M05(3カ クロ) FE 12-ACC
14 BHPP1810 1 PULLEY プーリ OT
15 IQC5750 1 COLLAR カラー FE
16 H4104A 2 BEARING ベアリング DDA-2520 OT
17 IQC5760 1 COLLAR カラー FE
18 IQC5440 1 RETAINER, BEARING 押え ベアリング FE
19 K5357M 3 SCREW, HEX SOCKET COUNTERSUNK 小ネジ 六角穴皿 M03X006 FE
20 BHPP1081 1 HOLDER ホルダ FE
21 S1046A 1 CIR-CLIP サークリップ WR19 OT
22 H5288A 4 BOLT, HEX SOCKET ボルト 六角穴 M04X010 FE
23 W1022A 4 WASHER, LOCK ワッシャ スプリング 4M/M FE
24 GGQC0631 1 BKT BKT FE
25 H5329A 2 BOLT, HEX SOCKET ボルト 六角穴 M06X035 FE
26 W1024A 2 WASHER, LOCK ワッシャ スプリング 6M/M FE
27 K11373 2 COLLAR カラー NCLB6-20-14 OT
28 H5136N 1 BOLT, STOPPER ボルト ストッパ UST5-15 OT
29 N10797 1 NUT, HEX ナット 六角 M05(3カ クロ) FE 28-ACC
30 BHPP1160 1 SHAFT シャフト FE
31 H2059A 1 PIN, SPRING ピン スプリング 4゚X20 OT
32 S1003A 1 CIR-CLIP サークリップ RTW 19 OT
33 BHPP1260 1 COLLAR カラー FE
34 DBPP0331 1 HOLDER ホルダ FE
35 H5290A 2 BOLT, HEX SOCKET ボルト 六角穴 M04X015 FE
36 W1022A 2 WASHER, LOCK ワッシャ スプリング 4M/M FE
37 GGQC0210 1 COUPLING カップリング FE
38 N4027A 1 SCREW, HEX SOCKET SET ネジ 六角穴止め M04X005 クボミサキ FE
157
PTS-XPFS-02JE

CONVEYOR 3/8
コンベア 3/8 AGGQC9004
No. Drg.No. & Code No. QTY Description Rating Materials Remarks
番号 図番 & コード番号 個数 品名 規格 材質 備考
39 GGQC0201 4 SUPPORT COLUMN 支柱 FE
40 XM00232 1 MOTOR, STEPPING モータ ステッピング OT
41 H5296C 4 BOLT, HEX SOCKET ボルト 六角穴 M04X045 FE
42 W1022A 4 WASHER, LOCK ワッシャ スプリング 4M/M FE
43 GGQC1213 1 BKT BKT FE
44 H5276A 2 BOLT, HEX SOCKET ボルト 六角穴 M03X010 FE
45 W1021A 2 WASHER, LOCK ワッシャ スプリング 3M/M FE
46 W1042A 2 WASHER, FLAT ワッシャ 平 4W- 3 FE
47 H5276A 2 BOLT, HEX SOCKET ボルト 六角穴 M03X010 FE
48 W1021A 2 WASHER, LOCK ワッシャ スプリング 3M/M FE
49 W1042A 2 WASHER, FLAT ワッシャ 平 4W- 3 FE
50 GGQC1171 1 BLOCK 駒 FE
51 GGQC1180 1 CHAIN チェーン OT
52 H5273A 2 BOLT, HEX SOCKET ボルト 六角穴 M03X005 FE
53 W1021A 2 WASHER, LOCK ワッシャ スプリング 3M/M FE
54 GGQC0512 1 BKT BKT FE
55 N10797 1 NUT, HEX ナット 六角 M05(3カ クロ) FE
56 W1023A 1 WASHER, LOCK ワッシャ スプリング 5M/M FE
57 W1044A 1 WASHER, FLAT ワッシャ 平 4W- 5 FE
58 H5300A 2 BOLT, HEX SOCKET ボルト 六角穴 M05X015 FE
59 W1023A 2 WASHER, LOCK ワッシャ スプリング 5M/M FE
60 W1044A 2 WASHER, FLAT ワッシャ 平 4W- 5 FE
61 GGQC0520 1 SHAFT シャフト FE
62 H4445A 2 BEARING, MINIATURE ベアリング ミニチュア DDLF-1050ZZ OT
63 S3032T 1 SPROCKET スプロケット RS25-12T 2ガタ OT
64 GVC0350 1 COLLAR カラー FE
65 S1027A 1 CIR-CLIP サークリップ STW 5 OT
71 GGQC1120 2 SPROCKET スプロケット OT
72 N4026A 2 SCREW, HEX SOCKET SET ネジ 六角穴止め M04X004 クボミサキ FE
73 GGQC1140 2 COLLAR カラー FE
74 H4196A 4 BEARING ベアリング 6801ZZ OT
75 GGQC1160 2 HOUSING ハウジング FE
76 H5295A 4 BOLT, HEX SOCKET ボルト 六角穴 M04X035 FE
77 W1022A 4 WASHER, LOCK ワッシャ スプリング 4M/M FE
78 GGQC1091 1 SHAFT シャフト FE
79 GGQC1213 1 BKT BKT FE
80 H5276A 2 BOLT, HEX SOCKET ボルト 六角穴 M03X010 FE
81 W1021A 2 WASHER, LOCK ワッシャ スプリング 3M/M FE
158
PTS-XPFS-02JE