PTS-XPFS-02JE - 第183页
This page intentionally blank. 183 PTS-XPFS-02JE

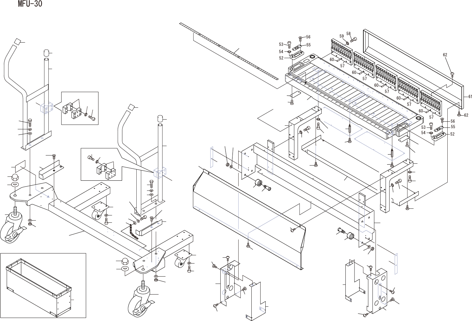
CONVEYOR 8/8
コンベア 8/8 AGGQC9004
No. Drg.No. & Code No. QTY Description Rating Materials Remarks
番号 図番 & コード番号 個数 品名 規格 材質 備考
38 K5365R 4 SCREW, C/R TRUSS 小ネジ 十穴トラス M03X004(3カ シロ) FE
39 GGQC2380 1 COVER カバー FE
40 K5365R 2 SCREW, C/R TRUSS 小ネジ 十穴トラス M03X004(3カ シロ) FE
41 GGQC2601 1 BKT, WIRING BKT 配線 FE
42 H5298A 2 BOLT, HEX SOCKET ボルト 六角穴 M05X010 FE
43 W1023A 2 WASHER, LOCK ワッシャ スプリング 5M/M FE
44 K2174F 4 CAP キャッ
プ
KD-773W OT
182
PTS-XPFS-02JE

This page intentionally blank.
183
PTS-XPFS-02JE

BB
AA
BB
AA
1
2
67
3
4
3
4
5
6
7
8
9
1063
64
65
66
11
12
13
14
15
15
15.1
16
20
24
25
25
26
27
28
28
28
28
29
30
25
25
20
20
21
22
22
23
23
21
20
17
18
19
19
19.1
5
6
7
2
35
31
31
32
33
34
36
37
33
34
36
37
38
38
39
39
39
39
40
40
40
40
44
45
45
46
47
48
48
49
50
51
50
51
47
AGGUF9004
184
PTS-XPFS-02JE