NXTIII PartList - 第125页
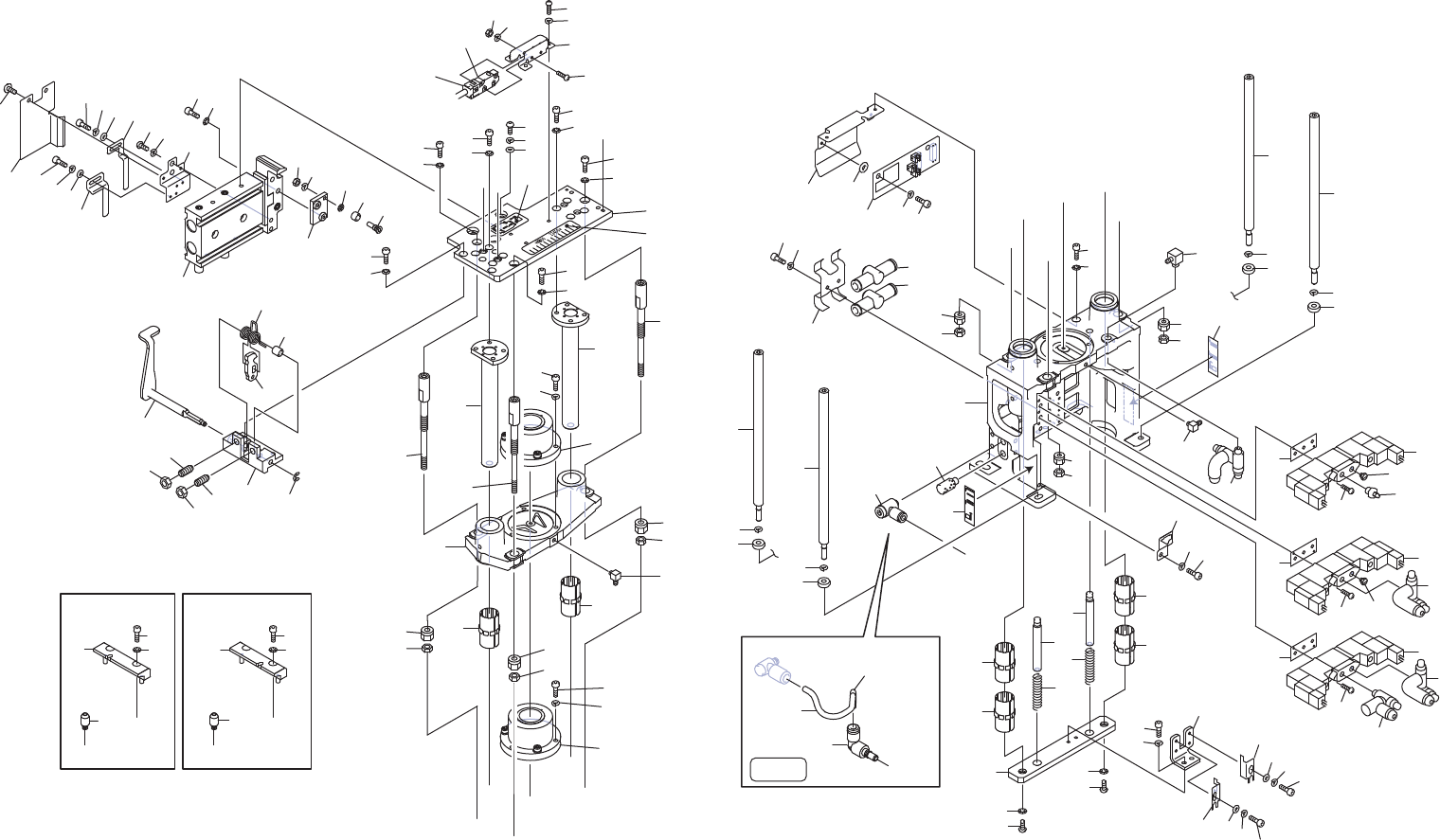
NOZZLE CHANGER 1/2 (M3) UL03349 ノズルチェンジャ 1/2 (M6,AIM series) UL03448 No. Dr g .No. & Code No. QTY Descri p tion Ratin g Materials Remarks 番号 図番 & コード番号 個数 品名 規 格材 質 備 考 1 PM00MY2 1 PLATE プ レート FE 2 PX05141 1 SEA…

M3 M6,AIM series
%
%
%
A
A
B1
B1
B2
B2
C1
C1
C2
C2
C3
C3
A
A
B1
B1
B2
B2
C1
C1
C2
C2
C3
C3
X
X
To BED
C
Y
Y
Z
Z
X
X
Y
Y
Z
Z
X
X
$
$
$
To BED
M3 IIc
1
2
3
4
5
6
7
26
27
39
40
41
42
43
44
45
46
47
48
47
48
49
59
60
60
56
57
57
58
58
56
49
49
50
50
50
51
52
52
52
53
53
53
51
51
37
38
29
33
30
31
32
34
35
36
67
28
121
112
123
124
115
114
116
117
113
54
55
54
55
54
55
64
65
65
66
67
68
69
70
73
74
75
76
76
77
78
79
83
90
92
92
93
93
84
85
65
94
95
96
97
98
99
100
101
103
104
105
106
107
102
65
108
109
11 0
108
109
11 0
108
109
110
108
109
110
80.1
132
131
133
95
96
122
13
14
15
13
8
9
10
11
12
19
20
21
61
62
63
62
63
61
16
17
16
17
72
86
87
89
88
91
89
86
87
88
86
87
88
91
111
71
80
81
82
ࣀࢬࣝࢳ࢙ࣥࢪࣕ
12==/(&+$1*(5
(M3) UL03349
(M6,AIM series) UL03448
124
PTS-NXT3-02JE

NOZZLE CHANGER 1/2
(M3) UL03349
ノズルチェンジャ 1/2
(M6,AIM series) UL03448
No. Dr
g
.No. & Code No. QTY Descri
p
tion Ratin
g
Materials Remarks
番号 図番 & コード番号 個数 品名
規
格材質 備考
1 PM00MY2 1 PLATE
プ
レート FE
2 PX05141 1 SEAL, BAR CODE シール バーコード OT unit serial number, M3
3 PX05151 1 SEAL, BAR CODE シール バーコード OT unit serial number, M6,AIM series
4 PX05492 1 SEAL シール PL
5 PP00323 1 GUARD ガード FE
6 K51756 3 SCREW, C
/
R PAN 小ネジ 十穴鍋 M02.5X005(ステンレス) FE
7 W1106A 3 WASHER, LOCK ワッシャ ス
プ
リン
グ
2.5M
/
M(3カ シロ) FE
8 S5161A 1 SW, MICRO SW マイクロ AV630564-A OT
9 RH03022 1 HARNESS ハーネス OT
10 K5175Z 2 SCREW, C
/
R PAN 小ネジ 十穴鍋 M02X012(ステンレス) FE
11 W1106B 2 WASHER, LOCK ワッシャ ス
プ
リン
グ
2M
/
M(3カ シロ) FE
12 N1074A 2 NUT, HEX ナット 六角 M02(ステンレス) FE
13 PM17792 1 PIN, REFERENCE ピン 基準 FE
14 AA39Z04 1 GUIDE ガイド OT M3
15 AA3AA03 1 GUIDE ガイド OT M6,AIM series
16 H54253 2 BOLT, HEX SOCKET ボルト 六角穴 M03X010(3カ シロ) FE
17 W1010A 2 WASHER, CONICAL ワッシャ 皿 M-3-L FE
19 K5258E 2 SCREW, HEX SOCKET BUTTON 小ネジ 六角穴ボタン M03X006(3カ シロ) FE
20 W1106C 2 WASHER, LOCK ワッシャ ス
プ
リン
グ
3M
/
M(3カ シロ) FE
21 W1108B 2 WASHER, FLAT ワッシャ 平 3M
/
MX0.5X7(3カシロ) FE
26 PB68584 1 BKT BKT FE
27 K5258K 2 SCREW, HEX SOCKET BUTTON 小ネジ 六角穴ボタン M04X006(3カ シロ) FE
28 W1106D 2 WASHER, LOCK ワッシャ ス
プ
リン
グ
4M
/
M(3カ シロ) FE
29 PP01361 1 DOG, SW ドッ
グ
SW FE
30 H5425F 2 BOLT, HEX SOCKET ボルト 六角穴 M02.5X006(3カ シロ) FE
31 W1106A 2 WASHER, LOCK ワッシャ ス
プ
リン
グ
2.5M
/
M(3カ シロ) FE
32 W60565 2 WASHER, FLAT ワッシャ 平 2.5M
/
MX0.5X5(3カシロ) FE
33 PP01351 1 DOG, SW ドッ
グ
SW FE
34 H5425F 2 BOLT, HEX SOCKET ボルト 六角穴 M02.5X006(3カ シロ) FE
35 W1106A 2 WASHER, LOCK ワッシャ ス
プ
リン
グ
2.5M
/
M(3カ シロ) FE
36 W60565 2 WASHER, FLAT ワッシャ 平 2.5M
/
MX0.5X5(3カシロ) FE
37 PB68591 1 COVER, SWITCH カバー SW FE
38 K51710 2 SCREW, C
/
R TRUSS 小ネジ 十穴トラス M03X005(3カ シロ) FE
39 2MGKMP001001 1 BKT, CLAMP BKT クラン
プ
FE
40 H54251 2 BOLT, HEX SOCKET ボルト 六角穴 M03X006(3カ シロ) FE
41 W1010A 2 WASHER, CONICAL ワッシャ 皿 M-3-L FE
42 2MGKMP001102 1 SHAFT, ARM シャフト アーム OT
43 S1003D 1 CIR-CLIP サークリッ
プ
ST-EW-2(3カ シロ) OT
44 PP00863 1 CLAMPER クランパ FE
45 PZ08741 1 SPRING, TORSION ス
プ
リン
グ
ネジリ FE
46 PM17551 1 COLLAR カラー FE
47 H63811 2 PLUNGER, BALL
プ
ランジャ ボール BPQ5 OT
48 N1079Y 2 NUT, HEX ナット 六角 M05 3シュ(3カシロ) FE
49 PM00MX2 3 SHAFT シャフト FE
50 H68191 3 BOLT, HEX SOCKET ボルト 六角穴 M04X008テイトウ(3カ シロ) FE
51 W1011A 3 WASHER, CONICAL ワッシャ 皿 M-4-L FE
52 PM59924 3 NUT, STOPPER ナット ストッパ FE
53 N1079Y 3 NUT, HEX ナット 六角 M05 3シュ(3カシロ) FE
54 PM90481 3 NUT, STOPPER ナット ストッパ FE
55 N1079X 3 NUT, HEX ナット 六角 M04 3シュ(3カ シロ) FE
56 PM36787 2 SHAFT シャフト AL
125
PTS-NXT3-02JE

NOZZLE CHANGER 1/2
(M3) UL03349
ノズルチェンジャ 1/2
(M6,AIM series) UL03448
No. Dr
g
.No. & Code No. QTY Descri
p
tion Ratin
g
Materials Remarks
番号 図番 & コード番号 個数 品名
規
格材質 備考
57 H54250 8 BOLT, HEX SOCKET ボルト 六角穴 M03X005(3カ シロ) FE
58 W1010A 8 WASHER, CONICAL ワッシャ 皿 M-3-L FE
59 AA39E03 1 PLATE, LOWER
プ
レート 下 OT
60 H4274K 2 BEARING, SLIDE ベアリン
グ
スライド JUM-02-12 OT
61 XS03490 2 CYLINDER, AIR シリンダ エアー OT
62 H54254 6 BOLT, HEX SOCKET ボルト 六角穴 M03X012(3カ シロ) FE
63 W1106C 6 WASHER, LOCK ワッシャ ス
プ
リン
グ
3M
/
M(3カ シロ) FE
64 AA39D12 1 BASE ベース OT
65 H4274K 4 BEARING, SLIDE ベアリン
グ
スライド JUM-02-12 OT
66 A4068H 1 ELBOW エルボ M-5ALU-4 OT
67 A4067A 2 ELBOW エルボ M-3ALU-4 OT
68 PX00303 1 NAMEPLATE, SOL
銘
板 SOL PL
69 PX00314 1 NAMEPLATE, SOL
銘
板 SOL PL
70 Y60409 1 UNION, ELBOW ユニオン エルボ KQ2VS04-M5A OT
71 S1058A 1 SILENCER サイレンサ AN120-M5 OT
72 K5335K 1 CONTROLLER, SPEED コントローラ スピード ASD230F-M5-04 OT
73 PB41823 1 BAND バンド FE
74 H54250 2 BOLT, HEX SOCKET ボルト 六角穴 M03X005(3カ シロ) FE
75 W1106C 2 WASHER, LOCK ワッシャ ス
プ
リン
グ
3M
/
M(3カ シロ) FE
76 H13332 2 VALVE バル
ブ
AQ240F-04-00 OT
77 PP00853 1 BKT BKT FE
78 H54251 2 BOLT, HEX SOCKET ボルト 六角穴 M03X006(3カ シロ) FE
79 W1010A 2 WASHER, CONICAL ワッシャ 皿 M-3-L FE
80 2AGKMP000400 1 BOARD, PRINTED CIRCUIT 基板
プ
リント OT
80.1 W10052 2 WASHER ワッシャ CC-0306-03 OT
81 H54251 2 BOLT, HEX SOCKET ボルト 六角穴 M03X006(3カ シロ) FE
82 W1106C 2 WASHER, LOCK ワッシャ ス
プ
リン
グ
3M
/
M(3カ シロ) FE
83 PB47692 1 BKT BKT FE
84 H54251 1 BOLT, HEX SOCKET ボルト 六角穴 M03X006(3カ シロ) FE
85 W1106C 1 WASHER, LOCK ワッシャ ス
プ
リン
グ
3M
/
M(3カ シロ) FE
86 K11520 3 GASKET ガスケット SY3000-11-24 OT
87 H11224 3 VALVE, SOL バル
ブ
SOL SY3220-5MOZ-M5 OT
88 K51735 6 SCREW, C
/
R PAN 小ネジ 十穴鍋 SY3000-23-4 FE
89 H3146A 2 PLUG
プ
ラ
グ
M-5P OT
90 N2030T 1 NIPPLE ニッ
プ
ル M-5AU-4 OT
91 K5335K 2 CONTROLLER, SPEED コントローラ スピード ASD230F-M5-04 OT
92 PM89962 2 GUIDE, SPRING ガイド ス
プ
リン
グ
FE
93 PZ13701 2 SPRING, COIL ス
プ
リン
グ
コイル FE
94 PB58533 1 BKT BKT FE
95 K5258Y 2 SCREW, HEX SOCKET BUTTON 小ネジ 六角穴ボタン M05X012(3カ シロ) FE
96 W1012A 2 WASHER, CONICAL ワッシャ 皿 M-5-L FE
97 PP01391 1 BKT BKT FE
98 H54252 2 BOLT, HEX SOCKET ボルト 六角穴 M03X008(3カ シロ) FE
99 W1106C 2 WASHER, LOCK ワッシャ ス
プ
リン
グ
3M
/
M(3カ シロ) FE
100 PP01371 1 DOG, SW ドッ
グ
SW FE
101 H54251 2 BOLT, HEX SOCKET ボルト 六角穴 M03X006(3カ シロ) FE
102 W1106C 2 WASHER, LOCK ワッシャ ス
プ
リン
グ
3M
/
M(3カ シロ) FE
103 W1108D 2 WASHER, FLAT ワッシャ 平 4W-3(3カ シロ) FE
104 PP01381 1 DOG, SW ドッ
グ
SW FE
105 H54251 2 BOLT, HEX SOCKET ボルト 六角穴 M03X006(3カ シロ) FE
106 W1106C 2 WASHER, LOCK ワッシャ ス
プ
リン
グ
3M
/
M(3カ シロ) FE
126
PTS-NXT3-02JE