NXTIII PartList - 第155页
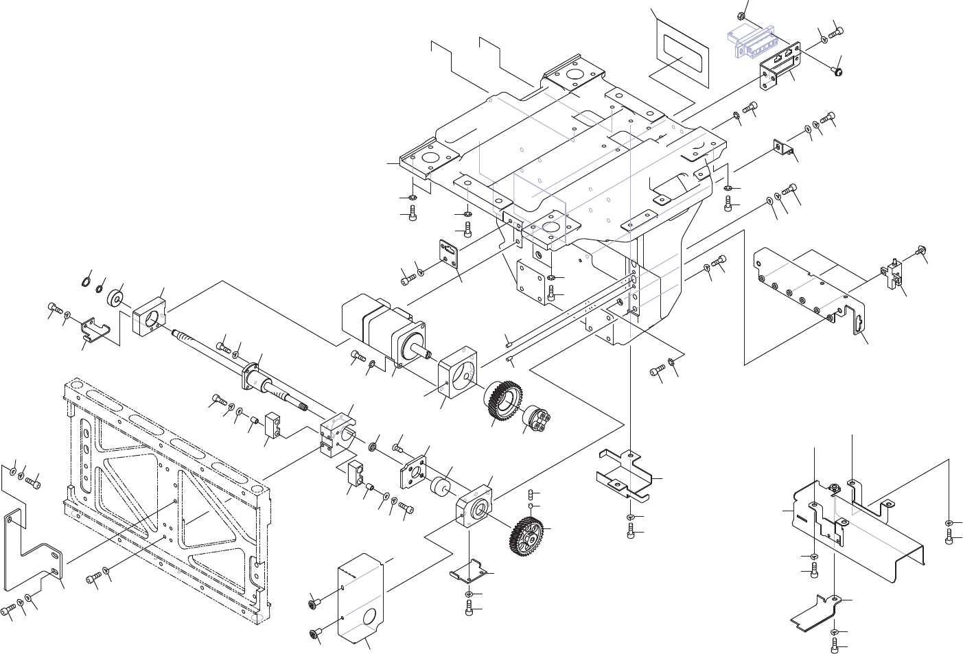
M3 III-X SLIDE 1/3 M3 III-Xスライド 1/3 2UGTSF000103 No. Dr g .No. & Code No. QTY Descri p tion Ratin g Materials Remarks 番号 図番 & コード番号 個数 品名 規 格材 質 備 考 1 2MGTSF000803 1 SLIDE, Y-AXIS スライド Y軸 OT 1.1 H20932 2 PIN, PA…

A
A
A
A
C
C
B
B
C
C
B
B
32
8
9
33
34
40
1.1
31
13
12
20
7
4
17
25
26
18
46
47
55
1
3
2.1
24
21
5
6
22
23
58
56
57
1.1
93
94
92
88
89
87
37
38
27
28
29
56
57
58
84
85
65
66
68
77
78
79
80
81
82
73
74
75
62
63
64
61
3
2
3
2
69
70
71
45
48
49
50
51
52
48
49
52
51
50
98
97
90
91
14
16
15
19
11
36
39
42
43
43
0,,,;ࢫࣛࢻ
0,,,;6/,'(
2UGTSF000103
154
PTS-NXT3-02JE

M3 III-X SLIDE 1/3
M3 III-Xスライド 1/3
2UGTSF000103
No. Dr
g
.No. & Code No. QTY Descri
p
tion Ratin
g
Materials Remarks
番号 図番 & コード番号 個数 品名
規
格材質 備考
1 2MGTSF000803 1 SLIDE, Y-AXIS スライド Y軸 OT
1.1 H20932 2 PIN, PARALLEL ピン 平行
φ
04X06 A種(m6) ステンレス OT
2 H5426M 4 BOLT, HEX SOCKET ボルト 六角穴 M04X012(3カ シロ) FE
2.1 H5426N 12 BOLT, HEX SOCKET ボルト 六角穴 M04X015(3カ シロ) FE
3 W1011A 16 WASHER, CONICAL ワッシャ 皿 M-4-L FE
4 2MGTSF003201 1 HOLDER, BEARING ホルダ ベアリン
グ
FE
5 H5426N 2 BOLT, HEX SOCKET ボルト 六角穴 M04X015(3カ シロ) FE
6 W1011A 2 WASHER, CONICAL ワッシャ 皿 M-4-L FE
7 2MGTSF003304 1 HOLDER, BEARING ホルダ ベアリン
グ
FE
8 H5427E 2 BOLT, HEX SOCKET ボルト 六角穴 M05X018(3カ シロ) FE
9 W1106E 2 WASHER, LOCK ワッシャ ス
プ
リン
グ
5M
/
M(3カ シロ) FE
11 H4218N 1 BEARING ベアリン
グ
706CTYDBCP8P5 OT
12 2MGTSF003103 1 RETAINER, BEARING 押え ベアリン
グ
FE
13 K64283 4 SCREW, HEX SOCKET COUNTERSUNK 小ネジ 六角穴皿 M04X008(3カシロ) FE
14 XB00795 1 BALL SCREW ボールネジ OT
15 H54253 4 BOLT, HEX SOCKET ボルト 六角穴 M03X010(3カ シロ) FE
16 W1106C 4 WASHER, LOCK ワッシャ ス
プ
リン
グ
3M
/
M(3カ シロ) FE
17 S1028A 1 CIR-CLIP サークリッ
プ
STW 6 OT
18 PM00511 1 COLLAR カラー FE
19 H4130K 1 BEARING ベアリン
グ
606ZZMC3 OT
20 PM00446 1 COLLAR カラー FE
21 2MGTSF002804 1 GEAR, HELICAL ギヤ ヘリカル FE
22 K52633 3 BLOCK, CLAMP 駒 クラン
プ
SEPNS3 OT
23 N4018A 3 SCREW, HEX SOCKET SET ネジ 六角穴止め M03X003 クボミサキ FE
24 2MGTSF002001 1 COVER カバー AL
25 H54251 2 BOLT, HEX SOCKET ボルト 六角穴 M03X006(3カ シロ) FE
26 W1106C 2 WASHER, LOCK ワッシャ ス
プ
リン
グ
3M
/
M(3カ シロ) FE
27 2MGTSF001901 1 COVER カバー AL
28 H54251 2 BOLT, HEX SOCKET ボルト 六角穴 M03X006(3カ シロ) FE
29 W1106C 2 WASHER, LOCK ワッシャ ス
プ
リン
グ
3M
/
M(3カ シロ) FE
31 2MGTSF006702 1 BKT, MOTOR BKT モータ FE
32 H5427E 2 BOLT, HEX SOCKET ボルト 六角穴 M05X018(3カ シロ) FE
33 W1106E 2 WASHER, LOCK ワッシャ ス
プ
リン
グ
5M
/
M(3カ シロ) FE
34 W1108E 2 WASHER, FLAT ワッシャ 平 4W-5(3カ シロ) FE
36 2MGTSF005100 1 MOTOR, AC SERVO モータ ACサーボ OT
37 H5426M 2 BOLT, HEX SOCKET ボルト 六角穴 M04X012(3カ シロ) FE
38 W1011A 2 WASHER, CONICAL ワッシャ 皿 M-4-L FE
39 2MGTSF002702 1 GEAR, HELICAL ギヤ ヘリカル FE
40 K1001F 1 COUPLING カッ
プ
リン
グ
MA-8-21 OT
42 2MGTSF002901 1 COVER カバー FE
43 2MGTSF011800 2 SCREW, C
/
R FLAT 小ネジ 十穴平 FE
45 2MGTSF003801 1 BKT, SLIDE BKT スライド FE
46 H54254 4 BOLT, HEX SOCKET ボルト 六角穴 M03X012(3カ シロ) FE
47 W1106C 4 WASHER, LOCK ワッシャ ス
プ
リン
グ
3M
/
M(3カ シロ) FE
48 2MGTSF008100 2 STOPPER ストッパ OT
49 PM40612 4 COLLAR カラー FE
50 H54254 4 BOLT, HEX SOCKET ボルト 六角穴 M03X012(3カ シロ) FE
51 W1106C 4 WASHER, LOCK ワッシャ ス
プ
リン
グ
3M
/
M(3カ シロ) FE
52 W1108B 4 WASHER, FLAT ワッシャ 平 3M
/
MX0.5X7(3カシロ) FE
55 2MGTSF004000 1 BKT BKT FE T
p
arts
56 H5426L 3 BOLT, HEX SOCKET ボルト 六角穴 M04X010(3カ シロ) FE
155
PTS-NXT3-02JE

M3 III-X SLIDE 1/3
M3 III-Xスライド 1/3
2UGTSF000103
No. Dr
g
.No. & Code No. QTY Descri
p
tion Ratin
g
Materials Remarks
番号 図番 & コード番号 個数 品名
規
格材質 備考
57 W1106D 3 WASHER, LOCK ワッシャ ス
プ
リン
グ
4M
/
M(3カ シロ) FE
58 W1043C 3 WASHER, FLAT ワッシャ 平 4W- 4(3カシロ) FE
61 2MGTSF005800 1 TAPE テー
プ
OT
62 2MGTSF011901 1 BKT, WIRING BKT 配線 AL
63 H5426M 2 BOLT, HEX SOCKET ボルト 六角穴 M04X012(3カ シロ) FE
64 W1011A 2 WASHER, CONICAL ワッシャ 皿 M-4-L FE
65 S63595 3 SENSOR, PHOTO センサ フォト EE-SX672P-WR 1M OT
66 K5198B 6 SCREW, WASHER ASS'Y 小ネジ 座金組込み M03X008 ナベセムス P4(3カシロ) FE
68 2MGTSF002400 1 RETAINER, WIRING 押え 配線 FE
69 H5426L 1 BOLT, HEX SOCKET ボルト 六角穴 M04X010(3カ シロ) FE
70 W1106D 1 WASHER, LOCK ワッシャ ス
プ
リン
グ
4M
/
M(3カ シロ) FE
71 W1043C 1 WASHER, FLAT ワッシャ 平 4W- 4(3カシロ) FE
73 2MGTSF002300 1 COVER, CONNECTOR カバー コネクタ FE
74 H5426K 2 BOLT, HEX SOCKET ボルト 六角穴 M04X008(3カ シロ) FE
75 W1106D 2 WASHER, LOCK ワッシャ ス
プ
リン
グ
4M
/
M(3カ シロ) FE
77 2MGZSF000701 1 GUIDE, HOLDER ガイド 受け FE
78 H5426K 2 BOLT, HEX SOCKET ボルト 六角穴 M04X008(3カ シロ) FE
79 W1106D 2 WASHER, LOCK ワッシャ ス
プ
リン
グ
4M
/
M(3カ シロ) FE
80 2MGTSF002202 1 RETAINER, WIRING 押え 配線 FE
81 H5426K 1 BOLT, HEX SOCKET ボルト 六角穴 M04X008(3カ シロ) FE
82 W1106D 1 WASHER, LOCK ワッシャ ス
プ
リン
グ
4M
/
M(3カ シロ) FE
84 H5426K 2 BOLT, HEX SOCKET ボルト 六角穴 M04X008(3カ シロ) FE
85 W1106D 2 WASHER, LOCK ワッシャ ス
プ
リン
グ
4M
/
M(3カ シロ) FE
87 2MGTSF011500 1 BKT BKT FE
88 H5426K 2 BOLT, HEX SOCKET ボルト 六角穴 M04X008(3カ シロ) FE
89 W1106D 2 WASHER, LOCK ワッシャ ス
プ
リン
グ
4M
/
M(3カ シロ) FE
90 K5198B 2 SCREW, WASHER ASS'Y 小ネジ 座金組込み M03X008 ナベセムス P4(3カシロ) FE
91 N10793 2 NUT, HEX ナット 六角 M03 P=0.5(3カシロ) FE
92 2MGTSF011400 1 BKT BKT FE
93 H67950 2 BOLT, HEX SOCKET ボルト 六角穴 M04X008(3カ クロ) FE
94 W60557 2 WASHER, LOCK ワッシャ ス
プ
リン
グ
4M
/
M(3カ クロ) FE
97 H57114 4 BOLT, HEX SOCKET ボルト 六角穴 M06X018(ステンレス) FE
98 W1100K 4 WASHER, CONICAL ワッシャ 皿 6M
/
M JIS B1252 2シュ 2L(ステンレス) FE
156
PTS-NXT3-02JE