NXTIII PartList - 第231页
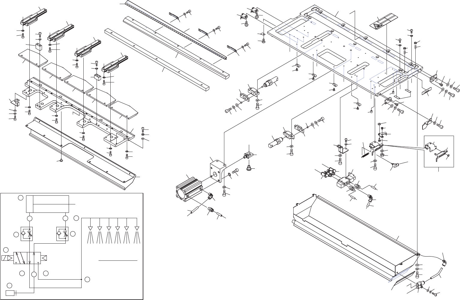
M6-WASTE TAPE PROCESSING UNIT M6-残テープ処理ユニット 2UGTPL000201 No. Dr g .No. & Code No. QTY Descri p tion Ratin g Materials Remarks 番号 図番 & コード番号 個数 品名 規 格材 質 備 考 1 2MGTPL001102 1 PLATE プ レート FE 2 2MGKPK002100 20 SHIM…

J
J
J
J
A
A
B
B
C
C
D
D
A
A
B
B
C
C
D
D
E
E
F
F
G
G
H
H
H
H
G
G
K
K
L
L
M
M
M
M
K
K
L
L
N
N
Air blow
࢚࣮㓄⟶ᅗ
31(80$7,&&,5&8,7',$*5$0
㸴
㸴
㸴
㸴 㸴
㸯㸭㸶
㸯㸭㸶
㸯㸭㸶㸯㸭㸶
㸴
㸦㹃㸿㸧 㸦㹎㸧
㸦㹀㸧
㸦㸿㸧
㸦㹃㹀㸧
㸯㸭㸶㸯㸭㸶
㸯㸭㸶
㸨㹒㹁㸴㹄㸿ࠉ㸯㸰㸱㸲㸳㸴㸨
P
L
1
F
F
N
N
1
2
3
4
5
6
7
7
8
8
9
9
11
12
12
14
14
15
15
16
16
17
17
18
18
19
19
21
22
22
23
23
35
36
37
39
40
38
41
41
42
42
44
45
46
47
47.1
48
49
50
51
52
53
54
55
56
57
58
59
60
64
66
65
67
68
73
80
81
82
81
82
81
82
81
82
83
84
85
85
85
85
85
86
86
86
86
11
6
13
13
70
61
62
63
30
31
32
33
34
24
24
25
25
3
4
5
26
27
28
29
43
43
93
94
71
72
69
100
101
102
102.1
110
114
112
115
113
87
88
87
88
87
88
87
88
89
90
91
92
95
96
97
98
99
108
109
111
103
104
105
106
107
121
121
121
121
122
123
123
123
123
123
105
106
107
105
106
107
116
0:$67(7$3(352&(66,1*81,7
0ṧࢸ࣮ࣉฎ⌮ࣘࢽࢵࢺ
2UGTPL000201
230
PTS-NXT3-02JE

M6-WASTE TAPE PROCESSING UNIT
M6-残テープ処理ユニット
2UGTPL000201
No. Dr
g
.No. & Code No. QTY Descri
p
tion Ratin
g
Materials Remarks
番号 図番 & コード番号 個数 品名
規
格材質 備考
1 2MGTPL001102 1 PLATE
プ
レート FE
2 2MGKPK002100 20 SHIM シム FE Note.1
3 N1079Y 4 NUT, HEX ナット 六角 M05 3シュ(3カシロ) FE
4 N60002 4 SCREW, HEX SOCKET SET ネジ 六角穴止め M05X016 ヒラサキ FE
5 K64998 10 SCREW, HEX SOCKET BUTTON 小ネジ 六角穴ボタン M06X018(3カ シロ) FE
6 W1013A 10 WASHER, CONICAL ワッシャ 皿 M- 6-H FE
7 H60491 2 PIN, PARALLEL ピン 平行
φ
06X10 A種(m6) FE
8 S4077L 2 SENSOR, PHOTO センサ フォト PM-L44P FE
9 K51993 4 SCREW, WASHER ASS'Y 小ネジ 座金組込み M03X012 ナベセムス P4(3カ シロ) FE
11 PM0HLE0 2 BKT, STOPPER BKT ストッパ FE
12 H5427C 4 BOLT, HEX SOCKET ボルト 六角穴 M05X015(3カ シロ) FE
13 W1106E 4 WASHER, LOCK ワッシャ ス
プ
リン
グ
5M
/
M(3カ シロ) FE
14 A61508 2 ABSORBER, SHOCK ア
ブ
ソーバ ショック KSHJ16x15-02-246W OT
15 PG07050 2 PLATE, STOPPER
プ
レート ストッパ PL
16 PM36281 4 COLLAR カラー FE
17 H54253 4 BOLT, HEX SOCKET ボルト 六角穴 M03X010(3カ シロ) FE
18 W1106C 4 WASHER, LOCK ワッシャ ス
プ
リン
グ
3M
/
M(3カ シロ) FE
19 W1108B 4 WASHER, FLAT ワッシャ 平 3M
/
MX0.5X7(3カシロ) FE
21 2MGTPK001901 1 PLATE, LOCATING
プ
レート 位置決め FE
22 H5426M 2 BOLT, HEX SOCKET ボルト 六角穴 M04X012(3カ シロ) FE
23 W1106D 2 WASHER, LOCK ワッシャ ス
プ
リン
グ
4M
/
M(3カ シロ) FE
24 W1043C 2 WASHER, FLAT ワッシャ 平 4W- 4(3カシロ) FE
25 2MGTPK000102 2 BOLT, POSITIONING ボルト 位置決め FE
26 2MGTPK001802 1 BKT BKT FE T
p
arts
27 H5427B 1 BOLT, HEX SOCKET ボルト 六角穴 M05X012(3カシロ) FE
28 W1106E 1 WASHER, LOCK ワッシャ ス
プ
リン
グ
5M
/
M(3カ シロ) FE
29 2MGTPK002101 1 PLATE, LOCATING
プ
レート 位置決め FE
30 2MGTPK002900 1 BOLT, HEX SOCKET ボルト 六角穴 OT
31 W1106E 1 WASHER, LOCK ワッシャ ス
プ
リン
グ
5M
/
M(3カ シロ) FE
32 W1108E 1 WASHER, FLAT ワッシャ 平 4W-5(3カ シロ) FE
33 2MGTPL000400 1 SEAL, BAR CODE シール バーコード OT unit serial number
34 2MGKPL002001 1 SEAL シール PL
35 PB07RT1 1 BKT, VALVE BKT バル
ブ
FE
36 H5426K 2 BOLT, HEX SOCKET ボルト 六角穴 M04X008(3カ シロ) FE
37 W1106D 2 WASHER, LOCK ワッシャ ス
プ
リン
グ
4M
/
M(3カ シロ) FE
38 H13362 1 VALVE, SOL バル
ブ
SOL SY5120-5MOZ-01 OT
39 K5258E 2 SCREW, HEX SOCKET BUTTON 小ネジ 六角穴ボタン M03X006(3カ シロ) FE
40 W1106C 2 WASHER, LOCK ワッシャ ス
プ
リン
グ
3M
/
M(3カ シロ) FE
41 K53473 2 CONTROLLER, SPEED コントローラ スピード AS2311F-01-06S OT
42 PZ07811 2 TUBE チュー
ブ
OT
43 Y60335 2 UNION, HALF ユニオン ハーフ KQ2H06-01AS OT
44 Y60192 1 UNION, ELBOW ユニオン エルボ KQ2L06-01AS OT
45 PZ07731 1 TUBE チュー
ブ
OT
46 H3149W 1 PLUG, COUPLER
プ
ラ
グ
カ
プ
ラ MC-06PCL OT
47 2MGKPL004603 1 COVER カバー FE
47.1 2MGTPK001502 1 BRUSH
ブ
ラシ OT
48 H54251 4 BOLT, HEX SOCKET ボルト 六角穴 M03X006(3カ シロ) FE
49 W1106C 4 WASHER, LOCK ワッシャ ス
プ
リン
グ
3M
/
M(3カ シロ) FE
50 W1108B 4 WASHER, FLAT ワッシャ 平 3M
/
MX0.5X7(3カシロ) FE
51 PM0GBG1 1 BKT, CYLINDER BKT シリンダ FE
52 H5425C 2 BOLT, HEX SOCKET ボルト 六角穴 M06X012(3カシロ) FE
231
PTS-NXT3-02JE

M6-WASTE TAPE PROCESSING UNIT
M6-残テープ処理ユニット
2UGTPL000201
No. Dr
g
.No. & Code No. QTY Descri
p
tion Ratin
g
Materials Remarks
番号 図番 & コード番号 個数 品名
規
格材質 備考
53 W1013A 2 WASHER, CONICAL ワッシャ 皿 M- 6-H FE
54 S60016 1 CYLINDER, AIR シリンダ エアー CQ2A40-60Z-DCM353EM OT
55 Y60192 1 UNION, ELBOW ユニオン エルボ KQ2L06-01AS OT
56 Y60335 1 UNION, HALF ユニオン ハーフ KQ2H06-01AS OT
57 PM0KXW0 1 JOINT ジョイント FE
58 PM0EEW2 1 PIN ピン FE
59 H5425C 4 BOLT, HEX SOCKET ボルト 六角穴 M06X012(3カシロ) OT
60 W1013A 4 WASHER, CONICAL ワッシャ 皿 M- 6-H FE
61 2AGTPK000102 1 PANEL, CONNECTOR パネル コネクタ OT
62 PB09GM2 1 PANEL, CONNECTOR パネル コネクタ FE
63 2MGTPK000801 1 SHUTTER シャッタ FE
64 PM04403 2 PIN, GUIDE ピン ガイド FE
65 H5426K 2 BOLT, HEX SOCKET ボルト 六角穴 M04X008(3カ シロ) FE
66 W1106D 2 WASHER, LOCK ワッシャ ス
プ
リン
グ
4M
/
M(3カ シロ) FE
67 S60017 1 SPRING, TENSION ス
プ
リン
グ
引
張
AWA8-25 FE
68 2MGKPK003001 1 STOPPER, SAFETY ストッパ 安全 FE
69 2MGKPK003301 1 PIN ピン FE
70 2MGKPK012100 1 COLLAR カラー FE
71 2MGKPK003400 1 PIN ピン FE
72 N10793 1 NUT, HEX ナット 六角 M03 P=0.5(3カシロ) FE
73 W1106C 1 WASHER, LOCK ワッシャ ス
プ
リン
グ
3M
/
M(3カ シロ) FE
80 2MGKPL002603 1 PLATE
プ
レート FE
81 H54252 16 BOLT, HEX SOCKET ボルト 六角穴 M03X008(3カ シロ) FE
82 W1010A 16 WASHER, CONICAL ワッシャ 皿 M-3-L FE
83 H54298 10 BOLT, HEX SOCKET ボルト 六角穴 M05X008(3カ シロ) FE
84 W1012A 10 WASHER, CONICAL ワッシャ 皿 M-5-L FE
85 PM0KBA4 5 CUTTER, MOVABLE カッタ 可動 FE
86 XG01981 4 GUIDE, RAIL ガイド レール OT
87 H54254 16 BOLT, HEX SOCKET ボルト 六角穴 M03X012(3カ シロ) FE
88 W1010A 16 WASHER, CONICAL ワッシャ 皿 M-3-L FE
89 PM0KXX2 1 BLOCK, STOPPER
ブ
ロック ストッパ FE
90 H5427K 2 BOLT, HEX SOCKET ボルト 六角穴 M05X028(3カ シロ) FE
91 W1106E 2 WASHER, LOCK ワッシャ ス
プ
リン
グ
5M
/
M(3カ シロ) FE
92 PM23114 1 BLOCK, STOPPER
ブ
ロック ストッパ FE
93 H5427C 2 BOLT, HEX SOCKET ボルト 六角穴 M05X015(3カ シロ) FE
94 W1012A 2 WASHER, CONICAL ワッシャ 皿 M-5-L FE
95 2MGKPL001201 1 DOG ドッ
グ
FE
96 H5426L 2 BOLT, HEX SOCKET ボルト 六角穴 M04X010(3カ シロ) FE
97 W1106D 2 WASHER, LOCK ワッシャ ス
プ
リン
グ
4M
/
M(3カ シロ) FE
98 W1043C 2 WASHER, FLAT ワッシャ 平 4W- 4(3カシロ) FE
99 PB0B6Z2 1 COVER, SLIDE カバー スライド FE
100 K5172L 6 SCREW, C
/
R TRUSS 小ネジ 十穴トラス M04X006(3カ シロ) FE
101 H5426M 1 BOLT, HEX SOCKET ボルト 六角穴 M04X012(3カ シロ) FE
102 N1079B 1 NUT, HEX ナット 六角 M04 P=0.7 1シュ(3カシロ) FE
102.1 W1108S 1 WASHER, FLAT ワッシャ 平 4M
/
MX0.8X9(1W-4)(3カシロ) FE
103 2MGKPL001303 1 GUIDE ガイド FE
104 2MGKPL003701 1 CUTTER, STATIONARY カッタ 固定 FE
105 2MGKPL004900 3 RETAINER, COVER 押え カバー FE
106 H54251 6 BOLT, HEX SOCKET ボルト 六角穴 M03X006(3カ シロ) FE
107 W1106C 6 WASHER, LOCK ワッシャ ス
プ
リン
グ
3M
/
M(3カ シロ) FE
108 PZ14740 1 TUBE チュー
ブ
OT
232
PTS-NXT3-02JE