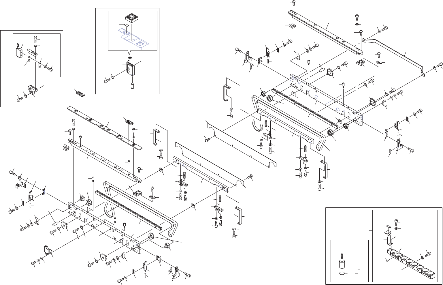
NXTIII PartList - 第311页
M3 III-SINGLE CONVEYOR 3/6 M3 III-シングルコンベア 3/6 2UGTCA000100 No. Dr g .No. & Code No. QTY Descri p tion Ratin g Materials Remarks 番号 図番 & コード番号 個数 品名 規 格材 質 備 考 1 2MGTCB002304 1 PLATE, RETAINING プ レート 押え FE 2 2MG…

B
B
A
A
C
C
A
A
OPTION
Auto backup pin function
⮬ືࣂࢵࢡࢵࣉࣆࣥᶵ⬟
BACK-UP PIN
ࣂࢵࢡࢵࣉࣆࣥ
㸮㸮㸮㸮㸮㸮
㸿㹎㸱㹄㸿
B
B
C
C
4
5
6
7
8
9
11.1
12
12
9
44
18
21
33
74
75
76
73
74
75
76
73
73
34
31
42
45
46
33
34
31
35
38
55
56
57
56
57
59
59
48
55
35
74
75
76
73
74
75
76
11
52
53
51
31
33
34
45
46
43
8.1
44
31
33
34
18
48
55
56
57
59
59
55
57
56
4
68
68
58
62
63
61
62
63
61
4
36
37
19
20
62
63
61
62
63
61
32
32
32
32
77
78
78
22
24
23
39
41
40
79
80
81
80
81
4
4
58.1
58
58.1
58
58.1
58
58.1
120
121
122
123
2
3
1
15
15
77
86
87
88
89
90
91
92
93
85
96
97
95
98
100
99
101
102
95.1
111
112
110
115
118
116
110.1
5.1
51.1
47
47
16
17
17
16
16
17
17
16
27
28
25
25
25
25
49
50
49
50
14
14
26.1
26
26.1
26
29
27
28
29
27
28
29
27
28
29
83
84
103
104
16.1
16.1
16.1
16.1
47.1
47.1
2UGTCA000100
0,,,ࢩࣥࢢࣝࢥࣥ࣋
0,,,6,1*/(&219(<25
310
PTS-NXT3-02JE

M3 III-SINGLE CONVEYOR 3/6
M3 III-シングルコンベア 3/6
2UGTCA000100
No. Dr
g
.No. & Code No. QTY Descri
p
tion Ratin
g
Materials Remarks
番号 図番 & コード番号 個数 品名
規
格材質 備考
1 2MGTCB002304 1 PLATE, RETAINING
プ
レート 押え FE
2 2MGTCF004501 6 BOLT ボルト FE
3 2MGTCF000400 6 COLLAR カラー FE
4 PM23709 5 PIN, REFERENCE ピン 基準 FE
5 PM085L6 1 RAIL レール FE
5.1 PM09WC4 1 RAIL レール FE Thin
p
anel o
p
tion
6 H5289A 4 BOLT, HEX SOCKET ボルト 六角穴 M04X012 FE
7 W1011A 4 WASHER, CONICAL ワッシャ 皿 M-4-L FE
8 PT01225 1 GUIDE ガイド FE
8.1 PT01234 1 GUIDE ガイド FE
9 K5255T 4 SCREW, HEX SOCKET BUTTON 小ネジ 六角穴ボタン M03X006 FE
11 PT01214 1 GUIDE ガイド FE
11.1 PT01244 1 GUIDE ガイド FE
12 K5255T 4 SCREW, HEX SOCKET BUTTON 小ネジ 六角穴ボタン M03X006 FE
14 H3170B 2 PLUNGER, BALL
プ
ランジャ ボール SBP-4 OT
15 2MGTCA001000 2 SEAL シール PL
16 2AGTCA000702 4 PULLEY
プ
ーリ OT
16.1 AB07600 4 PULLEY
プ
ーリ OT Thin
p
anel o
p
tion
17 2AGTCA000602 4 PULLEY
プ
ーリ OT
18 2MGTCA003300 2 BKT, SENSOR BKT センサ FE
19 2MGTCA004801 1 GUIDE ガイド FE
20 PS03151 1 SHEET シート OT
21 H67813 2 BOLT, HEX SOCKET ボルト 六角穴 M03X008テイトウ(3カ シロ) FE
22 2MGTCA004801 1 GUIDE ガイド FE
23 PS03151 1 SHEET シート OT
24 H67813 2 BOLT, HEX SOCKET ボルト 六角穴 M03X008テイトウ(3カ シロ) FE
25 2MGTCA002600 2 SENSOR, FIBER センサ ファイバ OT SET
26 T63140 2 TUBE, MARKER チュー
ブ
マーカ
φ
2.8(内径)X0.4(キイロ) OT
26.1 T63141 2 TUBE, MARKER チュー
ブ
マーカ
φ
2.8(内径)X0.4(シロ) OT
27 H54250 8 BOLT, HEX SOCKET ボルト 六角穴 M03X005(3カ シロ) FE
28 W1106C 8 WASHER, LOCK ワッシャ ス
プ
リン
グ
3M
/
M(3カ シロ) FE
29 2MGKCA031200 4 PLATE
プ
レート FE
31 PM05AC1 4 GUIDE ガイド FE
32 PP02472 4 SPACER スペーサ FE
33 H54254 4 BOLT, HEX SOCKET ボルト 六角穴 M03X012(3カ シロ) FE
34 W1010A 4 WASHER, CONICAL ワッシャ 皿 M-3-L FE
35 2MGTCA003200 2 BKT, SENSOR BKT センサ FE
36 2MGTCA004901 1 GUIDE ガイド FE
37 PS03151 1 SHEET シート OT
38 H67813 2 BOLT, HEX SOCKET ボルト 六角穴 M03X008テイトウ(3カ シロ) FE
39 2MGTCA004901 1 GUIDE ガイド FE
40 PS03151 1 SHEET シート OT
41 H67813 2 BOLT, HEX SOCKET ボルト 六角穴 M03X008テイトウ(3カ シロ) FE
42 PM050M6 1 PLATE
プ
レート FE
43 2MGTCB004500 1 PLATE
プ
レート FE
44 2MGKCA024000 2 GUIDE, BELT ガイド ベルト AL
45 H5426L 8 BOLT, HEX SOCKET ボルト 六角穴 M04X010(3カ シロ) FE
46 W1011A 8 WASHER, CONICAL ワッシャ 皿 M-4-L FE
47 2MGKCA025601 2 CONVEYOR, BELT コンベア ベルト OT
47.1 2MGKCA026100 2 CONVEYOR, BELT コンベア ベルト OT Thin
p
anel o
p
tion
48 PM059T4 2 PLATE, GUIDE
プ
レート ガイド FE
311
PTS-NXT3-02JE

M3 III-SINGLE CONVEYOR 3/6
M3 III-シングルコンベア 3/6
2UGTCA000100
No. Dr
g
.No. & Code No. QTY Descri
p
tion Ratin
g
Materials Remarks
番号 図番 & コード番号 個数 品名
規
格材質 備考
49 2MGTCB005601 2 PLATE, CLAMPING
プ
レート クラン
プ
FE
50 K5255A 8 SCREW, HEX SOCKET BUTTON 小ネジ 六角穴ボタン M03X004 FE
51 2MGTCB002400 1 RAIL レール FE
51.1 2MGTCB005000 1 RAIL レール FE Thin
p
anel o
p
tion
52 H5289A 4 BOLT, HEX SOCKET ボルト 六角穴 M04X012 FE
53 W1011A 4 WASHER, CONICAL ワッシャ 皿 M-4-L FE
55 PM05AD2 4 PLATE
プ
レート FE
56 H54252 8 BOLT, HEX SOCKET ボルト 六角穴 M03X008(3カ シロ) FE
57 W1106C 8 WASHER, LOCK ワッシャ ス
プ
リン
グ
3M
/
M(3カ シロ) FE
58 2MGKCA042000 4 BOLT, STOPPER ボルト ストッパ FE
58.1 N1079X 4 NUT, HEX ナット 六角 M04 3シュ(3カ シロ) FE
59 PZ14451 4 SPRING ス
プ
リン
グ
FE
61 PB90253 4 HOOK フック FE
62 H54252 8 BOLT, HEX SOCKET ボルト 六角穴 M03X008(3カ シロ) FE
63 W1106C 8 WASHER, LOCK ワッシャ ス
プ
リン
グ
3M
/
M(3カ シロ) FE
68 2MGKCA006501 2 PIN ピン OT
73 PM97051 4 BLOCK, LOCATING
ブ
ロック 位置決め FE
74 H54252 8 BOLT, HEX SOCKET ボルト 六角穴 M03X008(3カ シロ) FE
75 W1106C 8 WASHER, LOCK ワッシャ ス
プ
リン
グ
3M
/
M(3カ シロ) FE
76 W60542 8 WASHER, FLAT ワッシャ 平 3M
/
MX0.5X6 コガタマル(3カシロ) FE
77 PT01921 2 PLATE, REFERENCE
プ
レート 基準 FE
78 K5255T 4 SCREW, HEX SOCKET BUTTON 小ネジ 六角穴ボタン M03X006 FE
79 2MGTCA003901 1 RETAINER, WIRING 押え 配線 FE
80 H54252 2 BOLT, HEX SOCKET ボルト 六角穴 M03X008(3カ シロ) FE
81 W1106C 2 WASHER, LOCK ワッシャ ス
プ
リン
グ
3M
/
M(3カ シロ) FE
83 AA6WL06 8 PIN, BACKUP ピン バックアッ
プ
OT
84 PZ34033 8 SHEET シート OT
85 2AGTCB000402 1 HOLDER, PIN ホルダ ピン OT
86 2AGTCB000301 1 HOLDER, PIN ホルダ ピン OT
87 H5426T 3 BOLT, HEX SOCKET ボルト 六角穴 M04X020(3カ シロ) FE
88 W1011A 3 WASHER, CONICAL ワッシャ 皿 M-4-L FE
89 2MGTCB004300 1 BKT BKT FE
90 H5274A 2 BOLT, HEX SOCKET ボルト 六角穴 M03X006 FE
91 W1021A 2 WASHER, LOCK ワッシャ ス
プ
リン
グ
3M
/
MFE
92 H21924 2 PIN, PARALLEL ピン 平行
φ
02X05 A種(m6) SUS OT
93 2MGTCB004401 1 SEAL, BAR CODE シール バーコード PL unit serial number
95 PM057F1 1 BKT, SENSOR BKT センサ FE
95.1 PM09WG0 1 BKT, SENSOR BKT センサ FE Thin
p
anel o
p
tion
96 H5426L 2 BOLT, HEX SOCKET ボルト 六角穴 M04X010(3カ シロ) FE
97 W1011A 2 WASHER, CONICAL ワッシャ 皿 M-4-L FE
98 PM057E2 1 BKT, SENSOR BKT センサ FE
99 PB12715 1 WASHER ワッシャ FE
100 XS01249 1 SENSOR, TOUCH センサ タッチ OT
101 K5258N 2 SCREW, HEX SOCKET BUTTON 小ネジ 六角穴ボタン M04X012(3カ シロ) FE
102 W1106D 2 WASHER, LOCK ワッシャ ス
プ
リン
グ
4M
/
M(3カ シロ) FE
103 H54252 2 BOLT, HEX SOCKET ボルト 六角穴 M03X008(3カ シロ) FE
104 W1010A 2 WASHER, CONICAL ワッシャ 皿 M-3-L FE
110 AA86N06 1 JIG 治具 OT
110.1 AA7TG11 1 JIG 治具 OT Thin
p
anel o
p
tion
111 H5426L 2 BOLT, HEX SOCKET ボルト 六角穴 M04X010(3カ シロ) FE
112 W1011A 2 WASHER, CONICAL ワッシャ 皿 M-4-L FE
312
PTS-NXT3-02JE