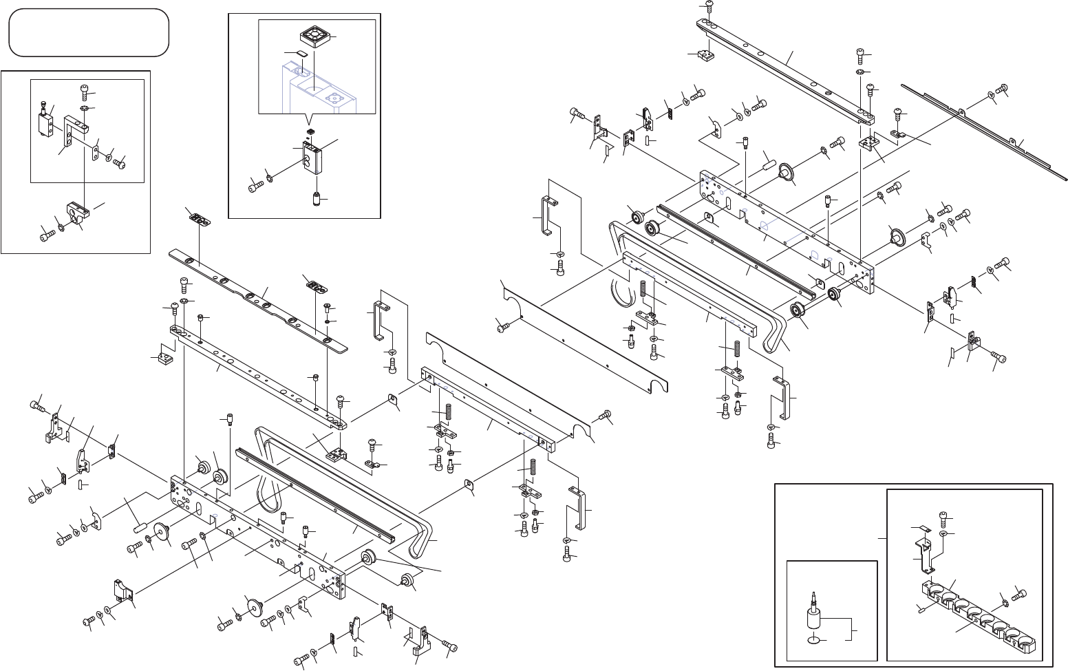
NXTIII PartList - 第331页
M3 III-DOUBLE CONVEYOR 2/8 M3 III-ダブルコンベア 2/8 2UGTCB000100 No. Dr g .No. & Code No. QTY Descri p tion Ratin g Materials Remarks 番号 図番 & コード番号 個数 品名 規 格材 質 備 考 54 W1106C 2 WASHER, LOCK ワッシャ ス プ リン グ 3M / M(3カ シロ)…

M3 III-DOUBLE CONVEYOR 2/8
M3 III-ダブルコンベア 2/8
2UGTCB000100
No. Dr
g
.No. & Code No. QTY Descri
p
tion Ratin
g
Materials Remarks
番号 図番 & コード番号 個数 品名
規
格材質 備考
1 PM057G4 6 HOUSING ハウジン
グ
FE
2 H54260 24 BOLT, HEX SOCKET ボルト 六角穴 M04X040(3カ シロ) FE
3 W1106D 24 WASHER, LOCK ワッシャ ス
プ
リン
グ
4M
/
M(3カ シロ) FE
4 H2096H 12 PIN, PARALLEL ピン 平行
φ
03X06 B種(h8) ステンレス OT
5 PT01910 6 PULLEY, TIMING
プ
ーリ タイミン
グ
AL
6 H54252 24 BOLT, HEX SOCKET ボルト 六角穴 M03X008(3カ シロ) FE
7 W1106C 24 WASHER, LOCK ワッシャ ス
プ
リン
グ
3M
/
M(3カ シロ) FE
8 PM057H2 6 COLLAR カラー FE
9 PP02480 6 RETAINER 押え FE
10 H54252 24 BOLT, HEX SOCKET ボルト 六角穴 M03X008(3カ シロ) FE
11 W1106C 24 WASHER, LOCK ワッシャ ス
プ
リン
グ
3M
/
M(3カ シロ) FE
12 XB03823 6 BALL SCREW ボールネジ OT
13 S1030A 6 CIR-CLIP サークリッ
プ
STW 9 OT
14 H4218Z 6 BEARING ベアリン
グ
7006CDBMP6 OT
15 PM80131 6 NUT, LOCK ナット ロック FE
16 N4027A 6 SCREW, HEX SOCKET SET ネジ 六角穴止め M04X005 クボミサキ FE
17 K5613D 6 BLOCK 駒 SM-402E OT
18 PM057K4 1 BKT BKT FE
18.1 PM057L3 1 BKT BKT FE
19 H5427F 4 BOLT, HEX SOCKET ボルト 六角穴 M05X020(3カ シロ) FE
20 W1106E 4 WASHER, LOCK ワッシャ ス
プ
リン
グ
5M
/
M(3カ シロ) FE
21 W1108E 4 WASHER, FLAT ワッシャ 平 4W-5(3カ シロ) FE
22 2MGKCA028200 3 PULLEY
プ
ーリ OT
23 2MGKCA028302 3 SHAFT シャフト FE
24 N1079L 3 NUT, HEX ナット 六角 M08(3カ シロ) FE
25 W1106G 3 WASHER, LOCK ワッシャ ス
プ
リン
グ
8M
/
M(3カシロ) FE
27 2MGTCA005400 2 BKT, ADJUSTING BKT セリ FE
28 H5426X 4 BOLT, HEX SOCKET ボルト 六角穴 M04X025(3カ シロ) FE
29 W1106D 4 WASHER, LOCK ワッシャ ス
プ
リン
グ
4M
/
M(3カ シロ) FE
30 H67809 2 BOLT, HEX SOCKET ボルト 六角穴 M05X040 ゼンネジ(3カ シロ) FE
31 W1108C 2 WASHER, FLAT ワッシャ 平 5M
/
MX1.0X10(3カシロ) FE
32 2MGTCB002001 2 BKT, MOTOR BKT モータ FE
33 H54269 4 BOLT, HEX SOCKET ボルト 六角穴 M05X010(3カシロ) FE
34 W1106E 4 WASHER, LOCK ワッシャ ス
プ
リン
グ
5M
/
M(3カ シロ) FE
35 XM01271 2 MOTOR, STEPPING モータ ステッピン
グ
OT
36 H5426L 8 BOLT, HEX SOCKET ボルト 六角穴 M04X010(3カ シロ) FE
37 W1106D 8 WASHER, LOCK ワッシャ ス
プ
リン
グ
4M
/
M(3カ シロ) FE
38 PZ05392 2 PULLEY
プ
ーリ OT
39 N4027A 4 SCREW, HEX SOCKET SET ネジ 六角穴止め M04X005 クボミサキ FE
40 H4572L 1 BELT, TIMING ベルト タイミン
グ
720-3GT-9 OT
41 H45206 1 BELT, TIMING ベルト タイミン
グ
822-3GT-9 OT
42 PM067T4 2 BKT, STOPPER BKT ストッパ FE
43 W1108F 2 WASHER, FLAT ワッシャ 平 4W-6(3カ シロ) FE
44 2MGKCE000100 2 BOLT, POSITIONING ボルト 位置決め FE
44.1 N60024 2 NUT, HEX ナット 六角 M6 P=0.75 (3カ シロ) FE
45 2MGTCB003303 1 PLATE, BASE
プ
レート ベース AL
46 H54241 10 BOLT, HEX SOCKET ボルト 六角穴 M06X015(3カシロ) FE
47 W1106F 10 WASHER, LOCK ワッシャ ス
プ
リン
グ
6M
/
M(3カシロ) FE
48 W1108H 10 WASHER, FLAT ワッシャ 平 6M
/
MX1.6X12.5(3カシロ) FE
52 S3150B 1 SW, PRESSURE SW
プ
レッシャ ZSE30A-01-P-ML OT
53 . 2 SCREW, C
/
R PAN 小ネジ 十穴鍋 OT ACC-52
330
PTS-NXT3-02JE

M3 III-DOUBLE CONVEYOR 2/8
M3 III-ダブルコンベア 2/8
2UGTCB000100
No. Dr
g
.No. & Code No. QTY Descri
p
tion Ratin
g
Materials Remarks
番号 図番 & コード番号 個数 品名
規
格材質 備考
54 W1106C 2 WASHER, LOCK ワッシャ ス
プ
リン
グ
3M
/
M(3カ シロ) FE
55 H62396 1 BKT BKT ZS-38-A1 OT
56 H5426L 2 BOLT, HEX SOCKET ボルト 六角穴 M04X010(3カ シロ) FE
57 W1106D 2 WASHER, LOCK ワッシャ ス
プ
リン
グ
4M
/
M(3カ シロ) FE
58 W1043C 2 WASHER, FLAT ワッシャ 平 4W- 4(3カシロ) FE
59 K63144 1 CONNECTOR コネクタ KQ2U04-M5A OT
60 H14592 1 VALVE, SOL バル
ブ
SOL MV090-03-PL-1L-DC24V OT
61 H54296 2 BOLT, HEX SOCKET ボルト 六角穴 M2.6X006(3カ シロ) OT
62 W1106H 2 WASHER, LOCK ワッシャ ス
プ
リン
グ
2.6M
/
M(3カ シロ) FE
63 2MGMCE014801 1 BKT, SOL BKT SOL FE
64 H54251 2 BOLT, HEX SOCKET ボルト 六角穴 M03X006(3カ シロ) OT
65 W1106C 2 WASHER, LOCK ワッシャ ス
プ
リン
グ
3M
/
M(3カ シロ) FE
66 Y60181 3 UNION, ELBOW ユニオン エルボ KQ2L04-M5A OT
67 2MGTCB008200 1 TUBE チュー
ブ
OT
68 2MGTCA004100 1 TUBE チュー
ブ
OT
331
PTS-NXT3-02JE

/DQHUDLO
࣮࣮ࣞࣥࣞࣝ
B
B
B
B
A
A
A
A
C
C
C
C
OPTION
Auto backup pin function
⮬ືࣂࢵࢡࢵࣉࣆࣥᶵ⬟
BACK-UP PIN
ࣂࢵࢡࢵࣉࣆࣥ
㸮㸮㸮㸮㸮㸮
㸿㹎㸱㹄㸿
4
1
5
6
7
8
9
11.1
12
12
9
44
18
21
33
74
75
76
73
74
75
76
73
73
34
31
42
45
46
33
34
31
35
38
55
56
57
56
57
59
59
48
55
35
74
75
76
73
74
75
76
11
52
53
51
31
33
34
45
46
43
8.1
44
31
33
34
18
48
55
56
57
59
59
55
57
56
4
68
68
96
97
95
62
63
61
62
63
61
4
15
41
39
22
24
98
100
99
101
102
36
37
19
20
40
23
62
63
61
62
63
61
32
32
32
32
80
81
79
77
78
78
86
87
88
89
90
91
92
93
111
112
110
115
118
116
85
4
4
120
121
122
123
15
77
2
3
58
58.1
58
58.1
58
58.1
58
58.1
5.1
51.1
95.1
110.1
47
47
16
17
17
16
16
17
17
16
27
28
25
25
27
28
27
28
27
28
49
50
49
50
14
14
103
104
26.1
26
26.1
26
25
25
29
29
29
29
83
84
16.1
16.1
16.1
16.1
47.1
47.1
2UGTCB000100
0,,,ࢲࣈࣝࢥࣥ࣋
0,,,'28%/(&219(<25
332
PTS-NXT3-02JE