NXTIII PartList - 第441页
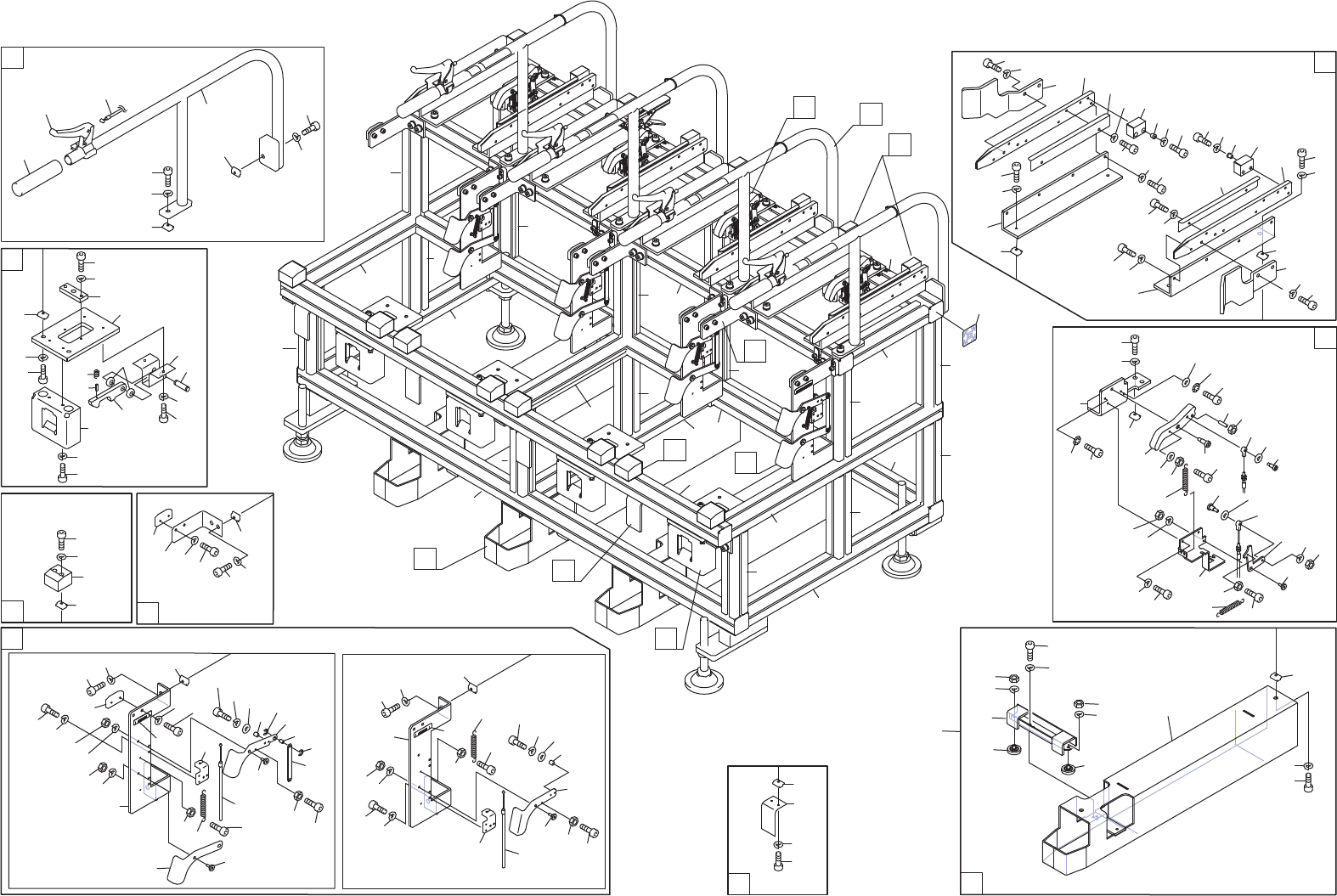
PSU (M3) 1/2 (With bucket) UK02018 (Standard) UK01918 No. Dr g .No. & Code No. QTY Descri p tion Ratin g Materials Remarks 番号 図番 & コード番号 個数 品名 規 格材 質 備 考 1 PZ52040 3 FRAME フレーム OT 2 PZ36071 3 FRAME フレーム OT 3 2MG…

67$1'$5'3$//(7
ᶆ‽ࣃࣞࢵࢺ
3$//(76:,7+%8&.(7
ࣂࢣࢵࢺࡁࣃࣞࢵࢺ
A
B
F
H
K
E
N
3$//(76:,7+%8&.(7
ࣂࢣࢵࢺࡁࣃࣞࢵࢺ
67$1'$5'3$//(7
ᶆ‽ࣃࣞࢵࢺ
G
J
B
E
F
H
J
K
N
A
*PD00L 123456*
*PD00N 123456*
G
12
12
27
28
26
33
35
36
34
39
43
46
50
51
47
41
40
44
45
48
49
29
32
31
13
16
14
13
14
15
15
17
23
16.1
23
24
24
19
19
25
25
20
20
21
21
22
22
18
17
18
73
74
75
76
83
86
77
78
79
80
82
81
85
84
88
89
90
87
114
115
116
117
118
119
120
122
123
124
121
125
126
126
127
127
128
128
129
130
30.1
30.3
30.2
69
69.1
69.2
69.3
91
92
93
94
98
101.1
102
151
154
154
153
153
152
103
104
105
107
106
108
109
110
112
113
100
99
91.2
1
2
2
3
4
4
4
4
4
4
4
4
5
6
6
6
6
7
7
8
2
9
9
9
9
9
91
92
93
94
95
98
96
97
101
102
103
104
132
105
133
107
106
108
109
110
112
113
134
100
99
135
137
139
140
141
142
142
144
145
147
148
146
144
143
143
138
136
91.1
133
131
37
38
42
37
52
53
54
55
56
10
38.1
54.1
111
53
111
53
3680
(Standard) UK01918
(With bucket) UK02018
440
PTS-NXT3-02JE

PSU (M3) 1/2
(With bucket) UK02018
(Standard) UK01918
No. Dr
g
.No. & Code No. QTY Descri
p
tion Ratin
g
Materials Remarks
番号 図番 & コード番号 個数 品名
規
格材質 備考
1 PZ52040 3 FRAME フレーム OT
2 PZ36071 3 FRAME フレーム OT
3 2MGKPT001000 1 FRAME フレーム OT
4 PZ26241 8 FRAME フレーム OT
5 PZ26251 1 FRAME フレーム OT
6 PZ27191 5 FRAME フレーム OT
7 2MGKPT001100 2 FRAME フレーム OT
8 PZ27231 1 FRAME フレーム OT
9 PZ27241 5 FRAME フレーム OT
10 K2173E 12 CAP キャッ
プ
NC4040 OT
12 PB063K0 8 BKT, SUPPORT BKT 支え AL
13 H5428L 16 BOLT, HEX SOCKET ボルト 六角穴 M08X020(3カ シロ) FE
14 W1106G 16 WASHER, LOCK ワッシャ ス
プ
リン
グ
8M
/
M(3カシロ) FE
15 N1009C 16 NUT ナット HNTT8-8 OT
16 2MGKPT006001 4 GUIDE, RAIL ガイド レール FE
16.1 2MGKPT006101 4 GUIDE, RAIL ガイド レール FE
17 H5427C 32 BOLT, HEX SOCKET ボルト 六角穴 M05X015(3カ シロ) FE
18 W1106E 32 WASHER, LOCK ワッシャ ス
プ
リン
グ
5M
/
M(3カ シロ) FE
19 PG02861 8 STOPPER ストッパ PL
20 K1138S 16 COLLAR カラー AZC5 OT
21 H5427E 16 BOLT, HEX SOCKET ボルト 六角穴 M05X018(3カ シロ) FE
22 W1106E 16 WASHER, LOCK ワッシャ ス
プ
リン
グ
5M
/
M(3カ シロ) FE
23 PB60532 8 RAIL レール FE
24 H5427B 16 BOLT, HEX SOCKET ボルト 六角穴 M05X012(3カシロ) FE
25 W1106E 16 WASHER, LOCK ワッシャ ス
プ
リン
グ
5M
/
M(3カ シロ) FE
26 2MGKPT005101 4 BKT, PIVOT BKT 支点 FE
27 H5428L 8 BOLT, HEX SOCKET ボルト 六角穴 M08X020(3カ シロ) FE
28 W1106G 8 WASHER, LOCK ワッシャ ス
プ
リン
グ
8M
/
M(3カシロ) FE
29 N1009C 8 NUT ナット HNTT8-8 OT
30.1 H5426L 4 BOLT, HEX SOCKET ボルト 六角穴 M04X010(3カ シロ) FE
30.2 W1011B 4 WASHER, CONICAL ワッシャ 皿 M-4-L(3カ シロ) FE
30.3 W1043C 4 WASHER, FLAT ワッシャ 平 4W- 4(3カシロ) FE
31 H5426K 4 BOLT, HEX SOCKET ボルト 六角穴 M04X008(3カ シロ) FE
32 W1011B 4 WASHER, CONICAL ワッシャ 皿 M-4-L(3カ シロ) FE
33 PJ10603 4 STOPPER ストッパ PL
34 H5120Z 4 BOLT ボルト MSB8-15 FE
35 H3170K 4 PLUNGER, BALL
プ
ランジャ ボール BPWL6 OT
36 N1079D 4 NUT, HEX ナット 六角 M06 P=1.0 1シュ(3カシロ) FE
37 XW00523 4 WIRE ワイヤ OT
38 H5120W 4 BOLT ボルト MSB6-10 OT
38.1 W1108F 4 WASHER, FLAT ワッシャ 平 4W-6(3カ シロ) OT
39 H5426M 4 BOLT, HEX SOCKET ボルト 六角穴 M04X012(3カ シロ) FE
40 N1079B 4 NUT, HEX ナット 六角 M04 P=0.7 1シュ(3カシロ) FE
41 W1108S 4 WASHER, FLAT ワッシャ 平 4M
/
MX0.8X9(1W-4)(3カシロ) FE
42 S3262S 4 SPRING, TENSION ス
プ
リン
グ
引
張
AWY8-40 OT
43 PB0ALF2 4 BKT BKT FE
44 H5426L 8 BOLT, HEX SOCKET ボルト 六角穴 M04X010(3カ シロ) FE
45 W1106D 8 WASHER, LOCK ワッシャ ス
プ
リン
グ
4M
/
M(3カ シロ) FE
46 2MGLPT007300 4 LEVER, CLAMP レバー クラン
プ
FE
47 PM93493 4 BOLT ボルト FE
48 N1079B 4 NUT, HEX ナット 六角 M04 P=0.7 1シュ(3カシロ) FE
441
PTS-NXT3-02JE

PSU (M3) 1/2
(With bucket) UK02018
(Standard) UK01918
No. Dr
g
.No. & Code No. QTY Descri
p
tion Ratin
g
Materials Remarks
番号 図番 & コード番号 個数 品名
規
格材質 備考
49 W1106D 4 WASHER, LOCK ワッシャ ス
プ
リン
グ
4M
/
M(3カ シロ) FE
50 H54253 4 BOLT, HEX SOCKET ボルト 六角穴 M03X010(3カ シロ) FE
51 N10793 4 NUT, HEX ナット 六角 M03 P=0.5(3カシロ) FE
52 S3250G 4 SPRING, TENSION ス
プ
リン
グ
引
張
AWS6-60 OT
53 2MGKPT004900 4 WIRE ワイヤ OT
54 H5120W 4 BOLT ボルト MSB6-10 OT
54.1 W1108F 4 WASHER, FLAT ワッシャ 平 4W-6(3カ シロ) OT
55 N1079B 4 NUT, HEX ナット 六角 M04 P=0.7 1シュ(3カシロ) FE
56 W1106D 4 WASHER, LOCK ワッシャ ス
プ
リン
グ
4M
/
M(3カ シロ) FE
69 PB52893 4 STOPPER ストッパ FE
69.1 H5427C 8 BOLT, HEX SOCKET ボルト 六角穴 M05X015(3カ シロ) FE
69.2 W1106E 8 WASHER, LOCK ワッシャ ス
プ
リン
グ
5M
/
M(3カ シロ) FE
69.3 N60367 8 NUT ナット HNTA8-5 OT
73 PB69192 4 BASE ベース FE
74 H5428L 8 BOLT, HEX SOCKET ボルト 六角穴 M08X020(3カ シロ) FE
75 W1106G 8 WASHER, LOCK ワッシャ ス
プ
リン
グ
8M
/
M(3カシロ) FE
76 N1009C 8 NUT ナット HNTT8-8 OT
77 PB69202 4 RETAINER, SPRING 押え ス
プ
リン
グ
FE
78 H54272 8 BOLT, HEX SOCKET ボルト 六角穴 M06X020(3カシロ) FE
79 W1106F 8 WASHER, LOCK ワッシャ ス
プ
リン
グ
6M
/
M(3カシロ) FE
80 PB69253 4 GUIDE ガイド FE
81 H54241 8 BOLT, HEX SOCKET ボルト 六角穴 M06X015(3カシロ) FE
82 W1106F 8 WASHER, LOCK ワッシャ ス
プ
リン
グ
6M
/
M(3カシロ) FE
83 2MGLPT003600 4 BKT BKT FE
84 H54241 8 BOLT, HEX SOCKET ボルト 六角穴 M06X015(3カシロ) FE
85 W1106F 8 WASHER, LOCK ワッシャ ス
プ
リン
グ
6M
/
M(3カシロ) FE
86 H21870 4 PIN ピン CDGH10-30 OT
87 W10040 8 WASHER ワッシャ WSF25 OT
88 PB63292 4 LEVER レバー FE
89 H2055T 4 PIN, SPRING ピン ス
プ
リン
グ
φ
4X 8 FE
90 S3261E 4 SPRING ス
プ
リン
グ
SWY16.5-35 OT
91 2MGKPT000901 4 BKT BKT FE
91.1 2MGKPT001200 1 SEAL, BAR CODE シール バーコード OT STANDARD PALLET, unit serial number
91.2 2MGKPT001400 1 SEAL, BAR CODE シール バーコード OT
PALLETS WITH BUCKET, unit serial number
92 H5428G 8 BOLT, HEX SOCKET ボルト 六角穴 M08X016(3カ シロ) FE
93 W1106G 8 WASHER, LOCK ワッシャ ス
プ
リン
グ
8M
/
M(3カシロ) FE
94 N1009C 8 NUT ナット HNTT8-8 OT
95 PJ10621 4 GUIDE ガイド PL STANDARD PALLET
96 H5427B 8 BOLT, HEX SOCKET ボルト 六角穴 M05X012(3カシロ) FE STANDARD PALLET
97 W1106E 8 WASHER, LOCK ワッシャ ス
プ
リン
グ
5M
/
M(3カ シロ) FE STANDARD PALLET
98 PB69232 4 BKT, STOPPER BKT ストッパ FE
99 H5426L 8 BOLT, HEX SOCKET ボルト 六角穴 M04X010(3カ シロ) FE
100 W1106D 8 WASHER, LOCK ワッシャ ス
プ
リン
グ
4M
/
M(3カ シロ) FE
101 PB050R0 4 LEVER レバー FE STANDARD PALLET
101.1 PB74892 4 LEVER レバー FE PALLETS WITH BUCKET
102 PM93493 4 BOLT ボルト FE
103 N1079B 4 NUT, HEX ナット 六角 M04 P=0.7 1シュ(3カシロ) FE
104 W1106D 4 WASHER, LOCK ワッシャ ス
プ
リン
グ
4M
/
M(3カ シロ) FE
105 S3228C 8 SPACER スペーサ CU-414 OT
106 H5426T 8 BOLT, HEX SOCKET ボルト 六角穴 M04X020(3カ シロ) FE
107 W1106D 8 WASHER, LOCK ワッシャ ス
プ
リン
グ
4M
/
M(3カ シロ) FE
442
PTS-NXT3-02JE