NXTIII PartList - 第473页
ࡇࡢ࣮࣌ࢪࡣࣈࣛࣥࢡ࣮࣌ࢪ࡛ࡍࠋ This page is intentionally blank. 473 PTS-NXT3-02JE

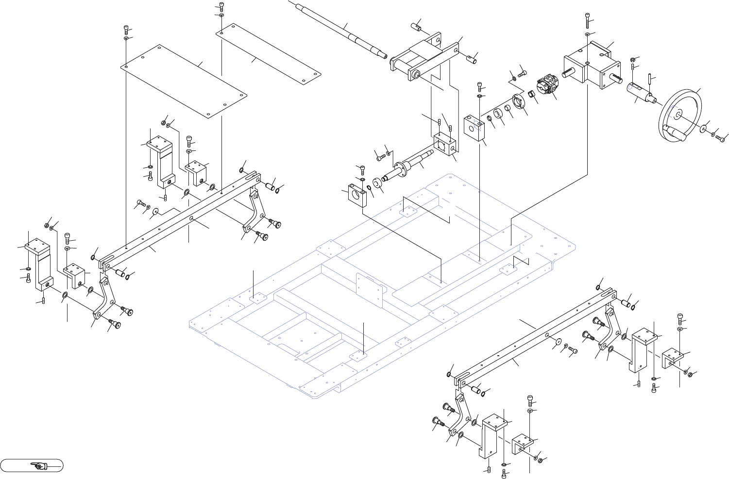
MCU 5/6
UX00138
No. Dr
g
.No. & Code No. QTY Descri
p
tion Ratin
g
Materials Remarks
番号 図番 & コード番号 個数 品名
規
格材質 備考
52 H5234A 2 BOLT, HEX ボルト 六角 M12X070 10.9 ゼンネジ FE
53 N1080D 4 NUT, HEX ナット 六角 M12(3カクロ) FE
54 H4902E 2 BEARING, DRY ベアリン
グ
ドライ K5B1212 OT
472
PTS-NXT3-02JE
ࡇࡢ࣮࣌ࢪࡣࣈࣛࣥࢡ࣮࣌ࢪ࡛ࡍࠋ
This page is intentionally blank.
473
PTS-NXT3-02JE

C
C
E
E
C
C
J
J
D
D
E
E
F
F
A
A
L
L
M
M
B
B
K
K
B
B
A
A
J,K,L,M
J,K,L,M
F
F
D
D
Ref.1/
1
2
3
4
6
5
7
8
7
8
9
11
10
14
15
17
16
6
1
2
3
4
5
6
7
7
8
8
9
10
11
14
15
16
17
5
6
6.1
7
7
14
15
16
17
9
8
8
10
11
24
25
26
27
28
29
30
31
32
34
33
35
36
37
38
39
40
41
42
43
44
45
46
47
48
49
49
50
54
56
57
58
55
5
7
8
7
8
9
11
10
12
13
14
15
17
16
12
13
12
13
12
13
6.1
6.1
6.1
6.1
6.1
6.1
6.1
18
19
20
21
22
23
51
52
53
47
0&8
UX00138
474
PTS-NXT3-02JE