NXTIII PartList - 第479页
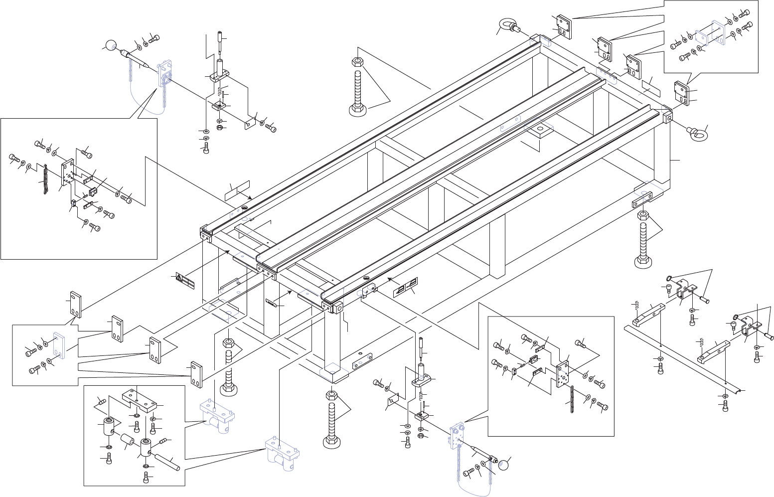
MSU UK01509 No. Dr g .No. & Code No. QTY Descri p tion Ratin g Materials Remarks 番号 図番 & コード番号 個数 品名 規 格材 質 備 考 1 PM61018 1 FRAME フレーム FE 2 A1250D 4 ADJUSTER アジャスタ FJSN20-130 OT 3 PM55784 2 PLATE プ レート FE 4 H542…

B
B
B
B
A
A
A
A
1
2
3
4
6
7
8
8
9
5
10
9
10
11
11
12
13
14
15
16
18
19
20
20
2
2
2
23
23
31
31
32
33
35
35
36
36
22
21
22
34
32
33
34
37
37
38
38
40
39
17
14
15
16
18
19
41
42
44
43
51
51
52
52
53
53
54
54
55
55
56
56
56
56
57
57
57
57
58
58
58
58
59
59
60
60
61
61
62
63
64
65
65
66
66
67
67
68
68
69
69
70
70
71
71
72
73
72
81
82
81
82
81
82
81
82
83
83
84
84
85
85
86
86
87
87
88
88
91
91
91
91
92
92
93
93
94
94
95
95
96
97
97
98
98
17
64
41
42
44
43
73
UK01509
068
478
PTS-NXT3-02JE

MSU
UK01509
No. Dr
g
.No. & Code No. QTY Descri
p
tion Ratin
g
Materials Remarks
番号 図番 & コード番号 個数 品名
規
格材質 備考
1 PM61018 1 FRAME フレーム FE
2 A1250D 4 ADJUSTER アジャスタ FJSN20-130 OT
3 PM55784 2 PLATE
プ
レート FE
4 H5428R 4 BOLT, HEX SOCKET ボルト 六角穴 M08X030(3カ シロ) FE
5 W1106G 4 WASHER, LOCK ワッシャ ス
プ
リン
グ
8M
/
M(3カシロ) FE
6 H5428F 2 BOLT, HEX SOCKET ボルト 六角穴 M08X015(3カ シロ) FE
7 W1014A 2 WASHER, CONICAL ワッシャ 皿 M- 8-H FE
8 PM55772 4 GUIDE ガイド FE
9 H5429E 4 BOLT, HEX SOCKET ボルト 六角穴 M12X025(3カシロ) FE
10 W1016A 4 WASHER, CONICAL ワッシャ 皿 M-12-H FE
11 N4048C 4 SCREW, HEX SOCKET SET ネジ 六角穴止め M06X010 ヒラサキ(ステンレス) FE
12 PM50282 2 ROLLER ローラ FE
13 PM50271 2 PIN, ROLLER ピン ローラ FE
14 PB08SZ1 2 BKT BKT FE
15 H5427B 4 BOLT, HEX SOCKET ボルト 六角穴 M05X012(3カシロ) FE
16 W1106E 4 WASHER, LOCK ワッシャ ス
プ
リン
グ
5M
/
M(3カ シロ) FE
17 H60886 2 BOLT, HEX SOCKET ボルト 六角穴 M06X006(3カ シロ) FE
18 H2189S 2 PIN ピン HCDGH10-30 OT
19 PM60954 2 LEVER レバー FE
20 S3260D 2 SPRING ス
プ
リン
グ
SWR10.5-25 FE
21 PB33756 1 BKT BKT FE
22 H54269 2 BOLT, HEX SOCKET ボルト 六角穴 M05X010(3カシロ) FE
23 W1106E 2 WASHER, LOCK ワッシャ ス
プ
リン
グ
5M
/
M(3カ シロ) FE
31 PM61006 2 HOLDER, STOPPER ホルダ ストッパ FE
32 H54274 4 BOLT, HEX SOCKET ボルト 六角穴 M06X025(3カ シロ) FE
33 W1106F 4 WASHER, LOCK ワッシャ ス
プ
リン
グ
6M
/
M(3カシロ) FE
34 W1108F 4 WASHER, FLAT ワッシャ 平 4W-6(3カ シロ) FE
35 PB39373 2 PLATE, GUIDE
プ
レート ガイド FE
36 H5426K 4 BOLT, HEX SOCKET ボルト 六角穴 M04X008(3カ シロ) FE
37 W1106D 4 WASHER, LOCK ワッシャ ス
プ
リン
グ
4M
/
M(3カ シロ) FE
38 PM60992 2 STOPPER ストッパ FE
39 PM0HBS0 1 PLATE
プ
レート FE
40 PM0HBR0 1 PLATE
プ
レート FE
41 S3019L 2 SPRING ス
プ
リン
グ
WL10-45 FE
42 H2093M 2 PIN, PARALLEL ピン 平行
φ
04X25 A種(m6) FE
43 N1079C 2 NUT, HEX ナット 六角 M05 P=0.8 1シュ(3カシロ) FE
44 W1106E 2 WASHER, LOCK ワッシャ ス
プ
リン
グ
5M
/
M(3カ シロ) FE
51 PB08TA0 2 PLATE, STOPPER
プ
レート ストッパ FE
52 H5426H 2 BOLT, HEX SOCKET ボルト 六角穴 M04X006(3カ シロ) FE
53 H5428N 4 BOLT, HEX SOCKET ボルト 六角穴 M08X025(3カシロ) FE
54 W1106G 4 WASHER, LOCK ワッシャ ス
プ
リン
グ
8M
/
M(3カシロ) FE
55 W1108G 4 WASHER, FLAT ワッシャ 平 4W-8(3カ シロ) FE
56 PM0H8T0 4 GUIDE ガイド FE
57 H5426L 8 BOLT, HEX SOCKET ボルト 六角穴 M04X010(3カ シロ) FE
58 W1106D 8 WASHER, LOCK ワッシャ ス
プ
リン
グ
4M
/
M(3カ シロ) FE
59 PM0H8S0 2 BLOCK
ブ
ロック FE
60 H5426S 4 BOLT, HEX SOCKET ボルト 六角穴 M04X018(3カ シロ) FE
61 W1106D 4 WASHER, LOCK ワッシャ ス
プ
リン
グ
4M
/
M(3カ シロ) FE
62 PM0H8X0 1 SLIDE スライド FE
63 PM0H8Y0 1 SLIDE スライド FE
64 S3022N 2 SPRING ス
プ
リン
グ
WF6-20 FE
479
PTS-NXT3-02JE

MSU
UK01509
No. Dr
g
.No. & Code No. QTY Descri
p
tion Ratin
g
Materials Remarks
番号 図番 & コード番号 個数 品名
規
格材質 備考
65 T2044C 2 CHAIN チェーン TM-103SS-11(L=248) FE
66 H5426L 2 BOLT, HEX SOCKET ボルト 六角穴 M04X010(3カ シロ) FE
67 W1043C 2 WASHER, FLAT ワッシャ 平 4W- 4(3カシロ) FE
68 W1106D 2 WASHER, LOCK ワッシャ ス
プ
リン
グ
4M
/
M(3カ シロ) FE
69 N21197 2 GRIP 握り PBA8-35-R OT
70 PM0HBT0 2 PIN, STOPPER ピン ストッパ FE
71 H5426L 2 BOLT, HEX SOCKET ボルト 六角穴 M04X010(3カ シロ) FE
72 W1043C 2 WASHER, FLAT ワッシャ 平 4W- 4(3カシロ) FE
73 W1106D 2 WASHER, LOCK ワッシャ ス
プ
リン
グ
4M
/
M(3カ シロ) FE
81 2MGKBT000100 4 PLATE, FIXED
プ
レート 固定 FE
82 2MGKBT000200 4 STOPPER ストッパ PL
83 H5428R 12 BOLT, HEX SOCKET ボルト 六角穴 M08X030(3カ シロ) FE
84 W1106G 12 WASHER, LOCK ワッシャ ス
プ
リン
グ
8M
/
M(3カシロ) FE
85 W1108G 12 WASHER, FLAT ワッシャ 平 4W-8(3カ シロ) FE
86 H5426N 12 BOLT, HEX SOCKET ボルト 六角穴 M04X015(3カ シロ) FE
87 W1106D 12 WASHER, LOCK ワッシャ ス
プ
リン
グ
4M
/
M(3カ シロ) FE
88 W1108S 12 WASHER, FLAT ワッシャ 平 4M
/
MX0.8X9(1W-4)(3カシロ) FE
91 PB21474 4 PLATE, FIXED
プ
レート 固定 FE T
p
arts
92 H5428R 12 BOLT, HEX SOCKET ボルト 六角穴 M08X030(3カ シロ) FE
93 W1106G 12 WASHER, LOCK ワッシャ ス
プ
リン
グ
8M
/
M(3カシロ) FE
94 W1108G 12 WASHER, FLAT ワッシャ 平 4W-8(3カ シロ) FE
95 . 4 BOLT, EYE ボルト アイ FE
96 PX03621 1 SEAL, BAR CODE シール バーコード OT unit serial number
97 PZ19231 2 SEAL シール PL
98 PZ25581 2 SEAL シール PL
480
PTS-NXT3-02JE