NXTIII PartList - 第497页
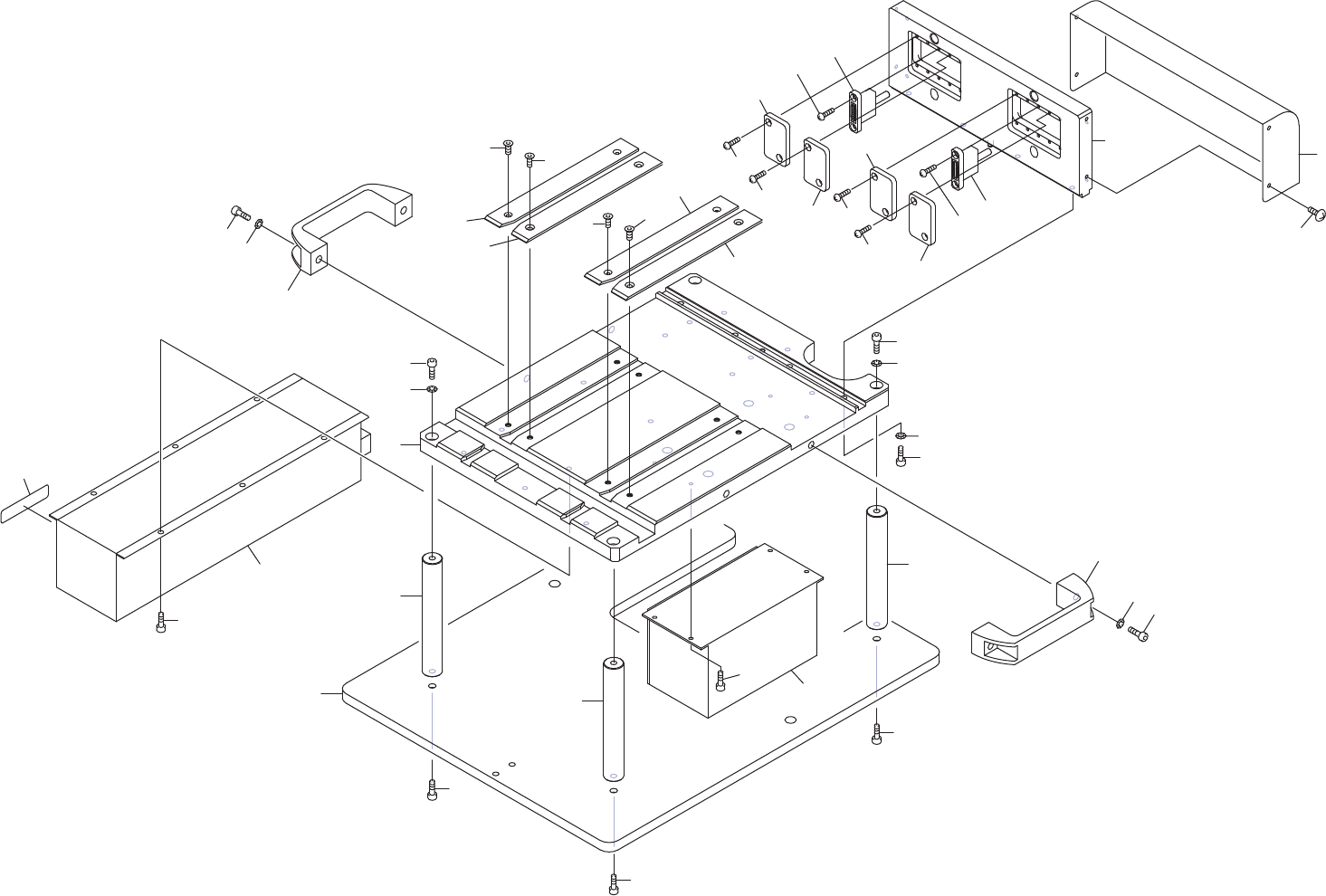
No. Dr g .No. & Code No. QTY Descri p tion Ratin g Materials Remarks 番号 図番 & コード番号 個数 品名 規 格材 質 備 考 1 2MDLFW008701 1 PLATE プ レート FE 2 2MDLFW008801 4 SUPPORT COLUMN 支柱 FE 3 H5427B 4 BOLT, HEX SOCKET ボルト 六角穴 M05X0…

1
8
9
2
25
27
26
24
3
3
3
4
5
4
5
6
7
10
11
12
13
14
15
15
17
17
16
16
18
21
21
32
18
32
22
19
12
22
22
22
21
30
31
21
13
14
2
2
DETAIL A1
AA87520
JIG, INSPECTION
ල᳨ᰝ
496
PTS-NXT3-02JE

No. Dr
g
.No. & Code No. QTY Descri
p
tion Ratin
g
Materials Remarks
番号 図番 & コード番号 個数 品名
規
格材質 備考
1 2MDLFW008701 1 PLATE
プ
レート FE
2 2MDLFW008801 4 SUPPORT COLUMN 支柱 FE
3 H5427B 4 BOLT, HEX SOCKET ボルト 六角穴 M05X012(3カシロ) FE
4 H5427E 4 BOLT, HEX SOCKET ボルト 六角穴 M05X018(3カ シロ) FE
5 W1012A 4 WASHER, CONICAL ワッシャ 皿 M-5-L FE
6 2MDLFW008603 1 BASE ベース FE
7 2MDLFW008501 1 PLATE
プ
レート FE
8 H5426N 4 BOLT, HEX SOCKET ボルト 六角穴 M04X015(3カ シロ) FE
9 W1011A 4 WASHER, CONICAL ワッシャ 皿 M-4-L FE
10 PB09161 1 COVER カバー FE
11 K5171S 4 SCREW, C
/
R TRUSS 小ネジ 十穴トラス M03X006(3カ シロ) FE
12 T5000S 2 HANDLE 取手 AGS110 OT
13 H54241 4 BOLT, HEX SOCKET ボルト 六角穴 M06X015(3カシロ) FE
14 W1013A 4 WASHER, CONICAL ワッシャ 皿 M- 6-H FE
15 PM14974 2 PLATE, GUIDE
プ
レート ガイド FE
16 K5357L 4 SCREW, HEX SOCKET COUNTERSUNK 小ネジ 六角穴皿 M03X006(3カ シロ) FE
17 PM14984 2 PLATE, GUIDE
プ
レート ガイド FE
18 K5357L 4 SCREW, HEX SOCKET COUNTERSUNK 小ネジ 六角穴皿 M03X006(3カ シロ) FE
19 PX02052 1 SEAL, BAR CODE シール バーコード OT unit serial number
21 2MDLFW004601 4 COVER カバー FE
22 K5171T 8 SCREW, C
/
R TRUSS 小ネジ 十穴トラス M02.5X005(3カ シロ) FE
24 XB03460 1 BOX, POWER SUPPLY BOX 電源 OT
25 H5426H 6 BOLT, HEX SOCKET ボルト 六角穴 M04X006(3カ シロ) FE
26 XB02270 1 BOX, INTERFACE BOX インタフェース OT
27 H54251 4 BOLT, HEX SOCKET ボルト 六角穴 M03X006(3カ シロ) FE
30 XH01111 1 HARNESS ハーネス OT
31 XH01080 1 HARNESS ハーネス OT
32 XP00133 4 PIN ピン FE
DETAIL A1
497
PTS-NXT3-02JE

8
9
25
27
26
28
28
24
3
3
3
4
5
6
15
15
17
17
16
16
18
18
4
5
19
26.1
7
10
11
21
21
32
32
22
22
22
22
21
30
31
21
12
13
14
1
12
13
14
2
2
2
A2DETAIL
AA44K17
JIG, INSPECTION
ල᳨ᰝ
498
PTS-NXT3-02JE