NXTIII PartList - 第85页
ࡇࡢ࣮࣌ࢪࡣࣈࣛࣥࢡ࣮࣌ࢪ࡛ࡍࠋ This page is intentionally blank. 85 PTS-NXT3-02JE

M3 III-BED 3/
M3 III-ベッド 3/
2UGTBC000100
No. Dr
g
.No. & Code No. QTY Descri
p
tion Ratin
g
Materials Remarks
番号 図番 & コード番号 個数 品名
規
格材質 備考
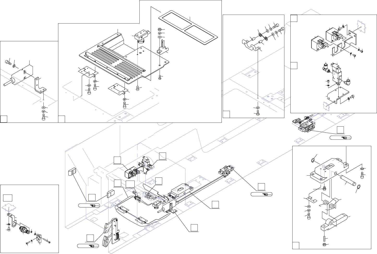
49 H67821 8 BOLT, HEX SOCKET ボルト 六角穴 M06X025 ゼンネジ(3カ シロ) FE
50 W1013A 8 WASHER, CONICAL ワッシャ 皿 M- 6-H FE
51 N4045A 4 SCREW, HEX SOCKET SET ネジ 六角穴止め M06X005 クボミサキ FE
52 PM00844 4 SHAFT シャフト FE
53 AA74N00 4 ROLLER ローラ OT
54 PM77781 4 COLLAR カラー FE
60 PB022B2 1 SHIM シム FE Note.2
63 H5426H 1 BOLT, HEX SOCKET ボルト 六角穴 M04X006(3カ シロ) FE
64 W1106D 1 WASHER, LOCK ワッシャ ス
プ
リン
グ
4M
/
M(3カ シロ) FE
64.1 W1108S 1 WASHER, FLAT ワッシャ 平 4M
/
MX0.8X9(1W-4)(3カシロ) FE
66 PM0BEG2 2 GUIDE ガイド FE
74 PM00844 8 SHAFT シャフト FE
75 PM77781 8 COLLAR カラー FE
76 PB042W0 8 WASHER ワッシャ FE
77 AA74N00 8 ROLLER ローラ OT
78 N4045A 8 SCREW, HEX SOCKET SET ネジ 六角穴止め M06X005 クボミサキ FE
80 H67821 8 BOLT, HEX SOCKET ボルト 六角穴 M06X025 ゼンネジ(3カ シロ) FE
81 W1013A 8 WASHER, CONICAL ワッシャ 皿 M- 6-H FE
Note.1:These parts are delivered in sets of 2 parts. Replace both parts in a set, as shown in the illustration, at the same time.
:これらの部品は2個で1set納入となります。交換時は図示の組合せに従い2個同時に交換して下さい。
Note.2:[Interchangeable parts/選択部品] PB022B2(t=0.1), PB022C2(t=0.2), PB022D2(t=0.3)
84
PTS-NXT3-02JE
ࡇࡢ࣮࣌ࢪࡣࣈࣛࣥࢡ࣮࣌ࢪ࡛ࡍࠋ
This page is intentionally blank.
85
PTS-NXT3-02JE

H
H
Ref.5/
B
B
A
A
C
C
F
F
D
D
C
C
B
B
K
K
L
L
D
D
E
E
Ref.5/
Ref.5/
Ref.5/
G
G
G
G
J3
J3
J3
J3
H
H
A
A
39
38
22
24
23
1
1.1
13
11
12
9
10
6
5
3
2
4
4
31
30
40
41
32
34
37
36
35
29
33.1
33.1
33
18
18
15
16
15
14
19
19
21
19.1
19.1
20
25
3
2
50
51
52
53
54
55
55
56
56
57
58
59
60
61
62
63
64
75
76
77
78
79
80
81
82
83
84
7
8
27
28
26
2UGTBC000100
0,,,࣋ࢵࢻ
0,,,%('
86
PTS-NXT3-02JE