YGP_(KGY)_mpl_e - 第17页
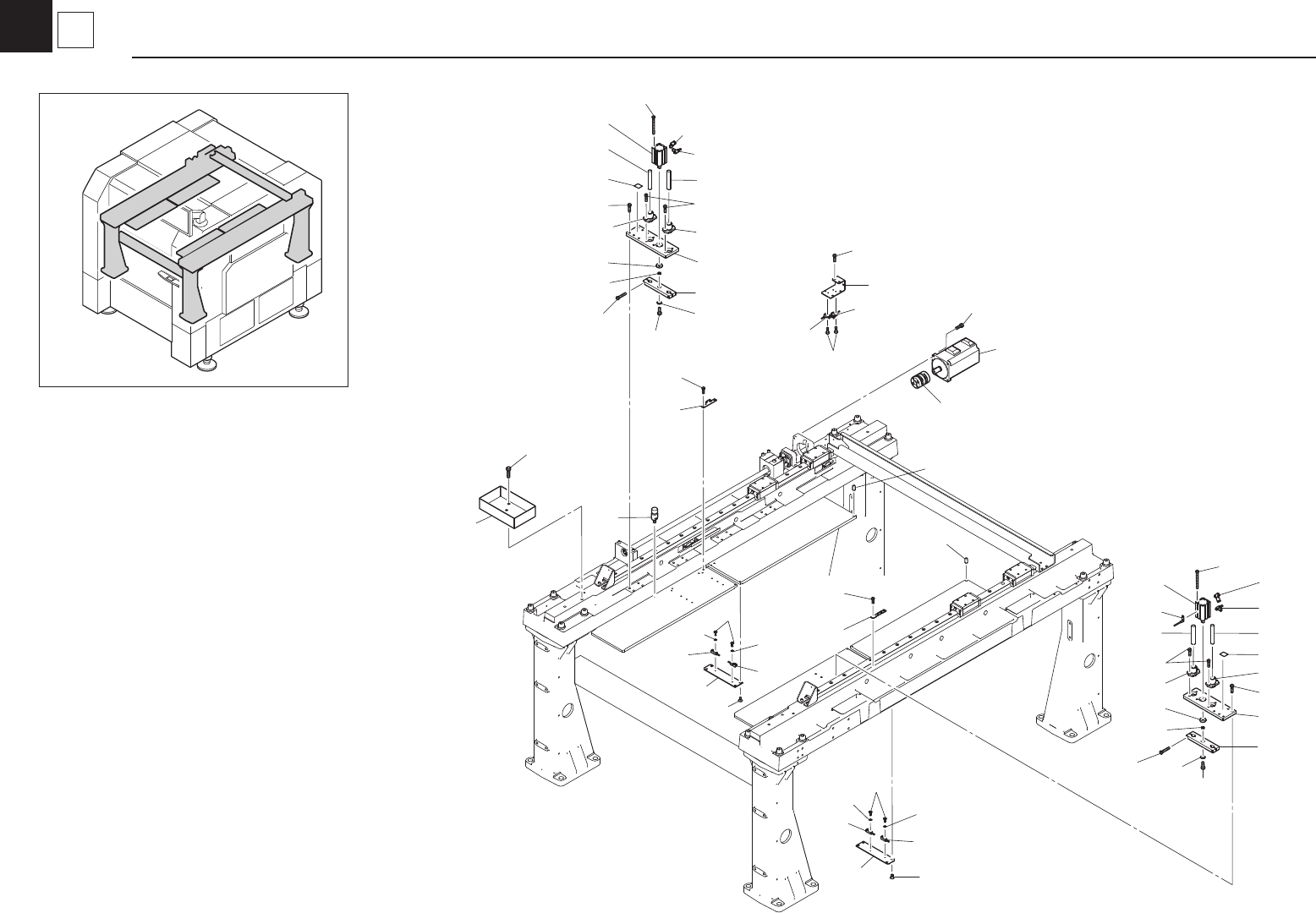
No. Part No. Part Name Q'ty Remarks Rank Level No. Part No. Part Name Q'ty Remarks Rank Level 1 KM0-M2220-00X COUPLING,X-AXIS 2 / × 39 2 90K63-51 1541 AC SER VO MOTOR 1 B × 40 3 90K63-51 1542 AC SER VO MOTOR 1 …

2
3
12
12
1
1
15
5
4
15
13
10
8
11
9
7
15
14
6
KGY-081209
3
4
CY-axis Assy
Moving-axis

No. Part No. Part Name Q'ty Remarks Rank Level No. Part No. Part Name Q'ty Remarks Rank Level
1 KM0-M2220-00X COUPLING,X-AXIS 2 / × 39
2
90K63-511541 AC SERVO MOTOR
1
B
×
40
3 90K63-511542 AC SERVO MOTOR 1 B × 41
4 KGY-M653F-01X SENSOR,CY SAFETY 1 B × 42
5 KGY-M653F-10X SENSOR,CY ESCAPE 1 B × 43
6 KGY-M653R-20X SENSOR,CYORG 1 B × 44
7 KGY-M653R-30X SENSOR,CYOT 1 B × 45
8 KGY-M2443-00X BRACKET 4,CY DUCT 1 / × 46
9 KGY-M2444-00X BRCKET,CY ORG SENSOR 1 / × 47
10
KGY-M2447-00X STAY,CY SAF. SENSOR 1 / × 48
11 91317-05012 BOLT HEX.SOCKET HEAD 8 M5X12 49
12 91317-05018 BOLT HEX.SOCKET HEAD 8 M5X18 50
13 91317-03008 BOLT HEX.SOCKET HEAD 2 M3X8 51
14 98907-04008 SCREW,FRAT HEAD 4 52
15 98907-03008 SCREW BINDING HEAD 8 53
16 54
17 55
18 56
19 57
20 58
21 59
22 60
23 61
24 62
25 63
26 64
27 65
28 66
29 67
30 68
31 69
32 70
33 71
34 72
35 73
36 74
37 75
38 76
KGY-081209
3
4
CY-axis Assy
Moving-axis

34
8
32
1
18
17
28
24
36
25
26
16
10
10
31
7
7
23
23
34
6
11
12
13
35
14
33
36
25
26
10
10
9
31
7
7
34
6
12
13
35
14
11
33
2
37
27
29
21
22
38
38
38
38
4
30
29
20
19
5
30
31
3
31
3
9
49
15
KGY-081209
3
5
SY-Base & Mark Section
Moving-axis