YGP_(KGY)_mpl_e - 第21页
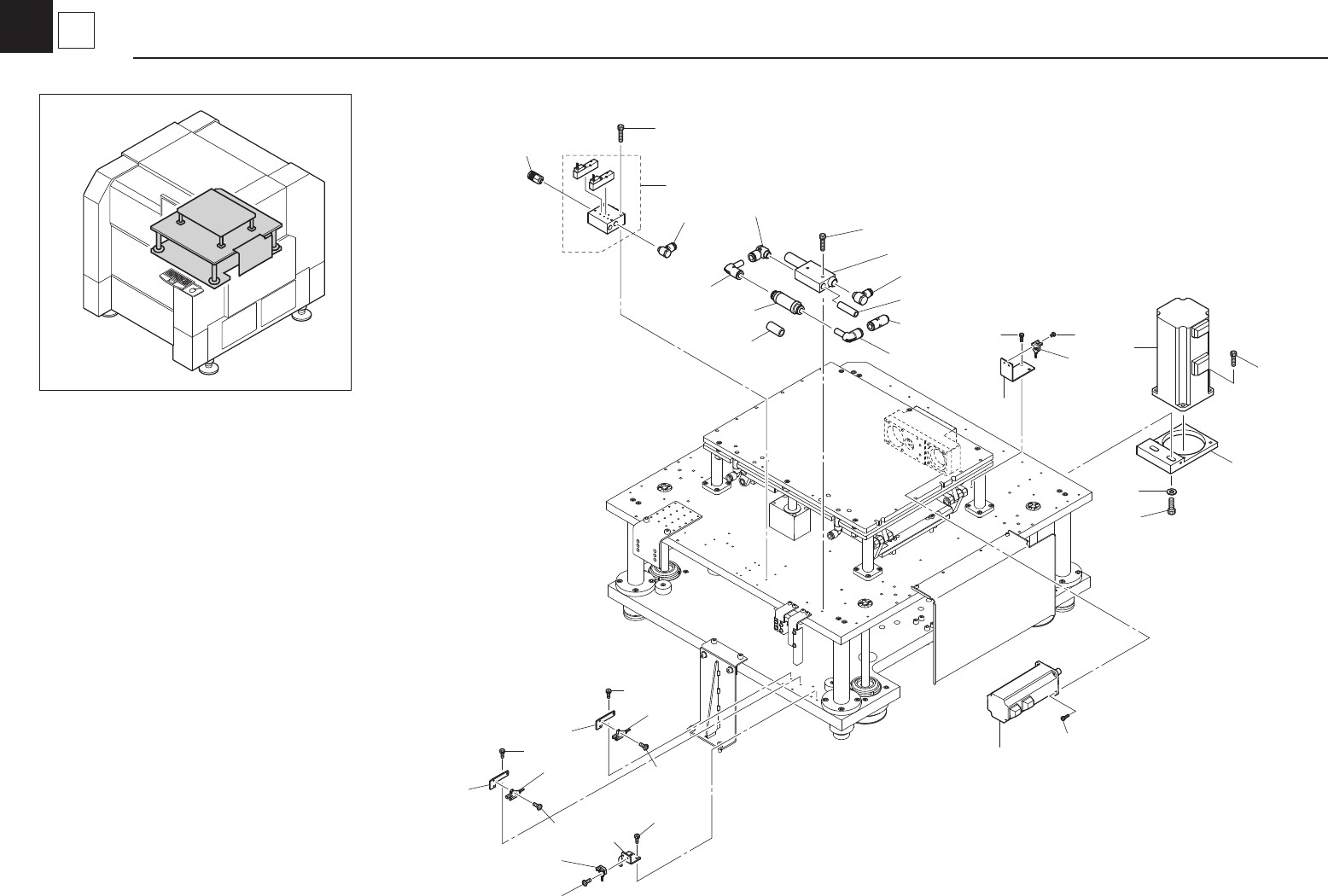
No. Part No. Part Name Q'ty Remarks Rank Level No. Part No. Part Name Q'ty Remarks Rank Level 1 KGY -M3109-00X ST A Y SENSOR,Y ORG. Z 1 / × 39 2 KGY -M31 12-00X ST A Y SENSOR,X ORG. Z 1 / × 40 3 KGY -M31 18-00X…

9
17
10
17
19
7
2
4
18
3
8
20
16
21
1
5
6
18
19
3
15
8
20
16
22
14
21
12
23
24
13
11
KGY-081209
3
6
X/Y/R-axis Assy
Moving-axis

No. Part No. Part Name Q'ty Remarks Rank Level No. Part No. Part Name Q'ty Remarks Rank Level
1 KGY-M3109-00X STAY SENSOR,Y ORG. Z 1 /
×
39
2
KGY-M3112-00X STAY SENSOR,X ORG. Z
1
/
×
40
3 KGY-M3118-00X STAY SENSOR,XYR SAFE 2 /
×
41
4 KGY-M653F-50X SENSOR,X TRANSFER 1 B
×
42
5 KGY-M653F-60X SENSOR,Y TRANSFER 1 B
×
43
6 KGY-M653R-70X SENSOR,YORG 1 B
×
44
7 KGY-M653R-80X SENSOR,XORG 1 B
×
45
8 KGY-M653U-00X SENSOR,Z AXIS H 1 B
×
46
9 90K63-411503 AC SERVO MOTOR,X 1 B
×
47
10
90K63-411504 AC SERVO MOTOR,Y 1 B
×
48
11 KGY-M3109-00X STAY SENSOR,Y ORG. Z 1 /
×
49
12 KGY-M653F-40X SENSOR,R TRANSFER 1 B
×
50
13 KGY-M653R-A0X SENSOR,RORG 1 B
×
51
14 90K63-311805 AC SERVO MOTOR,R 1 B
×
52
15 91317-04008 BOLT HEX.SOCKET HEAD 2 M4X8 53
16 91317-05010 BOLT HEX.SOCKET HEAD 4 M5X10 54
17 91317-05020 BOLT HEX.SOCKET HEAD 8 M5X20 55
18 98907-03006 SCREW BINDING HEAD 4 56
19 98907-03008 SCREW BINDING HEAD 4
57
20 98907-03010 SCREW,B.H. 4
58
21
91317-04010 BOLT HEX.SOCKET HEAD 4 M4X10 59
22 91317-04012 BOLT HEX.SOCKET HEAD 4 M4X12 60
23 98907-03006 SCREW BINDING HEAD 2 61
24 98907-03008 SCREW BINDING HEAD 2 62
25 63
26 64
27 65
28 66
29 67
30 68
31 69
32 70
33 71
34 72
35 73
36 74
37 75
38 76
KGY-081209
3
6
X/Y/R-axis Assy
Moving-axis

31
14
23
5
13
15
30
19
22
3
8
27
22
3
9
27
22
4
7
28
14
11
12
6
26
10
21
2
29
20
1
18
25
24
28
17
16
KGY-081209
3
7
Z-axis Assy
Moving-axis