PanasonicCM212規格說明書 - 第33页
CM212-M 2005.1201 - 27 - 6. 印刷基板的设计基准 6.1 印刷基板规格概要 标准 : 基板固定方式 ( 需要基板标记 ) ■ 基板切口标准 为了确保基板挡块所定的基板停止位 置及基板检测传感器的安全 动作,对基板切口的位置和尺寸 的条件设定如 下。 [ 下图表示左 → 右搬送、前面基准 ( 标准 ) 时的设定。其他条件 ( 选购件 ) 时也以此为准。 ] Min. 50 mm × 50 mm 使用可能的基板尺 …

CM212-M 2005.1201
- 26 -
5.
其他标准规格
5.1
程序功能
数据的编制均使用数据编制装置
PT200-G
进行编制。但是
,
部分数据修正也可在机器主体上进行。由机器主体修
正的数据以及示教的内容被自动反馈至
PT200-G
。在基板四角也能够设定坐标数据的原点。
※客户准备
PT200-G
用硬件。
有关
PT200-G
详情
,
请参照另册「
PT200-G
规格说明书」。
有关
PS200-G
详情
,
请参照另册「
PS200-G
规格说明书」。
5.2
三色信号塔
信号灯的颜色与亮灯标准
信号灯的
显示颜色
分
类
亮灯标准
红色
紧急停止错误
・ 电机等的轴异常
・ 空气压力下降
・ 基板支撑异常
・ 贴装头故障
・ 编带故障
黄色
单一停止
・ 吸着错误
・ 贴装错误
・ 基板搬送错误
・ 无工件
・ 吸嘴交换错误
绿色
运转中
自动运转等动力为
ON
的状态时
(
但是在红色和黄色闪烁时为熄灯状态
)
※亮灯规格,可以变更其设定。
红
黄
绿
距离地面
2 000mm
(
标准
)
数据编制装置
PT200-G
基板数据
L
W
T
元件数据
芯片名称
L
W
T
REF
形状角度
…
托盘数据
托盘名称
L
W
T
芯片数量
固定信息
料架固定 吸嘴固定
Max. 10 000
点
区块数据
No.
X
Y
A
元件名称
区块属性数据
BL
X
Y
BAD
ROT
数据分配
料架配置
吸嘴
配置
Max. 10 000
点
贴装数据
X
Y
元件名称
BL
注释

CM212-M 2005.1201
- 27 -
6.
印刷基板的设计基准
6.1
印刷基板规格概要
标准
:
基板固定方式
(
需要基板标记
)
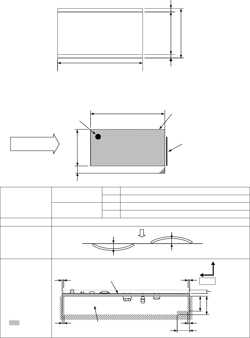
■ 基板切口标准
为了确保基板挡块所定的基板停止位置及基板检测传感器的安全动作,对基板切口的位置和尺寸的条件设定如
下。
[
下图表示左
→
右搬送、前面基准
(
标准
)
时的设定。其他条件
(
选购件
)
时也以此为准。
]
Min. 50 mm × 50 mm
使用可能的基板尺
寸
Max. 400 mm × 250 mm
Min. 50 mm × 44 mm
使用可能的基板尺
寸
(
贴装可能的基板尺
寸
)
贴装可能范围
Max. 400 mm × 244 mm
基板厚度
0.3mm
~
4.0mm
基板弯曲容许值
贴装前基板状态
※
为不允许存在
元件的范围
50 mm
20 mm
4.5 mm
基板检测传感器位置
禁止基板切口区域
基板流向
基板挡块
Max. 0.5 mm
Max. 0.5 mm
贴装方向
搬送时的空区
3 mm 3mm
3mm
3 mm
30 mm
25 mm
高速贴装头
: Max. 6.5 mm
多功能贴装头
: Max. 25 mm
基板
20 mm
Y
Z
固定侧
50 mm
~
400 mm
贴装可能范围
44 mm
~
244 mm
50 mm
~
250 mm
3 mm 3 mm

CM212-M 2005.1201
- 28 -
6.2
识别标记
基板的识别标记,在基板的对角位置需要
2
点。
■ 基板识别标记规格
标记形状 尺寸
○
φ0.5 mm
~
φ1.6 mm
△(正三角形) 一边的长度
0.5 mm
~
1.6 mm
□
纵横
0.5 mm
~
1.6 mm
纵横
0.5 mm
~
1.6 mm
标准标记形状和尺寸
所谓尺寸的纵横,指标记所外接的四角形的尺寸
标记的材质和
电路图形
基板的识别补正,根据与标记和电路图形
(
导电体图形
)
的位置关系而定。因此,
对补正精度来讲,标记必须与电路图形的工程、材质相同。
标记材质和
基板质地的画像条件
基本上,标记识别依靠照明的反射光的强度来进行,因此标记的材质和基板质地
需要具有一定的对比度。
此反差,会因电镀状态
•
氧化状态
•
表面高度
•
偏差
•
镜面性
•
保护物质
•
干扰光而有
相当的变化,因此需要事先进行对象标记的评价。
标记尺寸和背景
标记的背景,需要与标记所相异的一定尺寸以上的不干涉区域。
不干涉区域
标记
a
≧
0.2 mm
以上
标记不一定必须为黑色。
a
a
aa