PanasonicCM212規格說明書 - 第55页
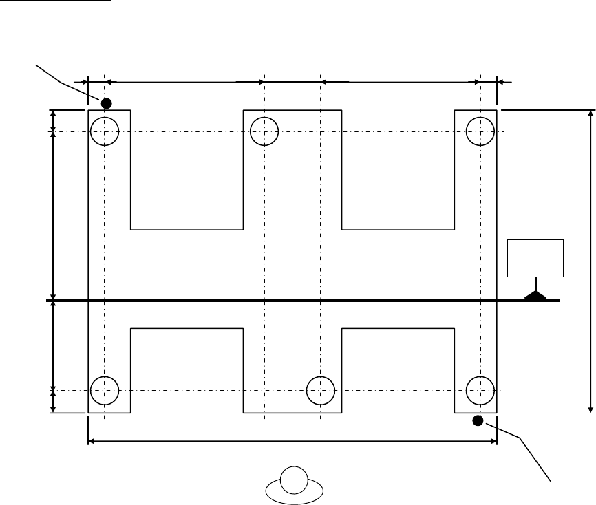
CM212-M 2005.1201 - 49 - ※ 交换整体交换台车 ( 选购件 ) 时,需要的最小限空间。 设置机器时请注意。 ( 单位 : mm) ※ 整体交换台车(选购件)设置范围 的地面倾斜度,必须在台车 的左右方向 6 mm 以下、前方向 4mm 以下、后方向 11 mm 以下。若地面的倾斜超过此范 围时,整体交换台车的搬入 无法进行。 955 4 400 651 操作员侧

CM212-M 2005.1201
- 48 -
■ 调整螺栓的配置图
机种名
: CM212-M
(
单位
: mm)
125
125
760
2 005
140 856856 75 75
1 520
Air
0.5 MPa
~
0.8 MPa
3
相
AC 200/220/380/400/420/480 V
传送带
基准面
510
操作员侧

CM212-M 2005.1201
- 49 -
※交换整体交换台车
(
选购件
)
时,需要的最小限空间。
设置机器时请注意。
(
单位
: mm)
※整体交换台车(选购件)设置范围的地面倾斜度,必须在台车的左右方向
6 mm
以下、前方向
4mm
以下、后方向
11 mm
以下。若地面的倾斜超过此范围时,整体交换台车的搬入无法进行。
955
4 400
651
操作员侧

CM212-M 2005.1201
- 50 -
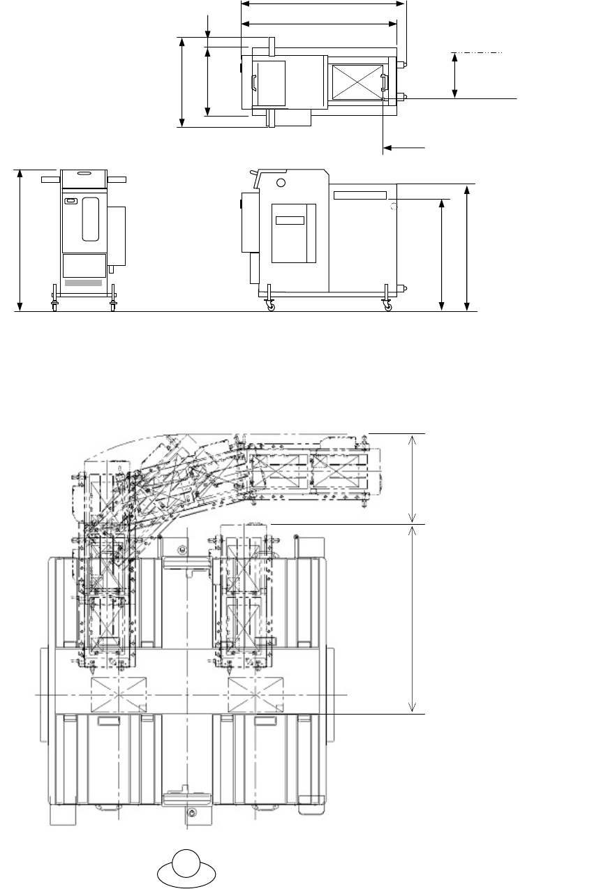
■ 直接托盘式供料器
DT40S-20 (
选购件
)
外形尺寸
(
单体
)
(
单位
: mm)
外形尺寸
(
连接时
)
※
1
托盘供给面的高度
888 mm
是
CM212-M
的基板搬送高度为
900 mm
时的标准值。
其可调整范围为
888
mm
。
※
2
400 mm × 250 mm
尺寸的基板中心位置。
+139.5
-16.5
317
203
基板中心※2
908
888 (托盘供给面) ※1
986
1 050
517
414
51
(自基板中心※2)
1 097
1 385
647
操作员侧
※在维护作业时因为有拉出托
盘式供料器的情况,设置时请
确保左示尺寸。