KE2040取扱説明書Ver.2.01和文Rev.04 - 第175页
4 - 70 ④ トレイ先頭位置 ホルダ内でのトレイの基準位置(X、Y)をトレイ突き当てからの距離で入力します。 ⑤ トレイ間ピッチ ホルダ内でのトレイ間ピッチ(ピッチX、ピッチY)を入力します。 ⑥ トレイ分割数 ホルダ内でのトレイの横方向の分割数(Xn) 、縦方向の分割数(Yn)を入力します。 ⑦ トレイ厚み 部品を含むトレイの底面から上面までの高さTを入力します。 図 図 図 図 4-7- 3-2 トレイ厚み図 トレイ厚み図 トレ…

4 - 69
3)
トレイが選択された場合
トレイが選択された場合トレイが選択された場合
トレイが選択された場合
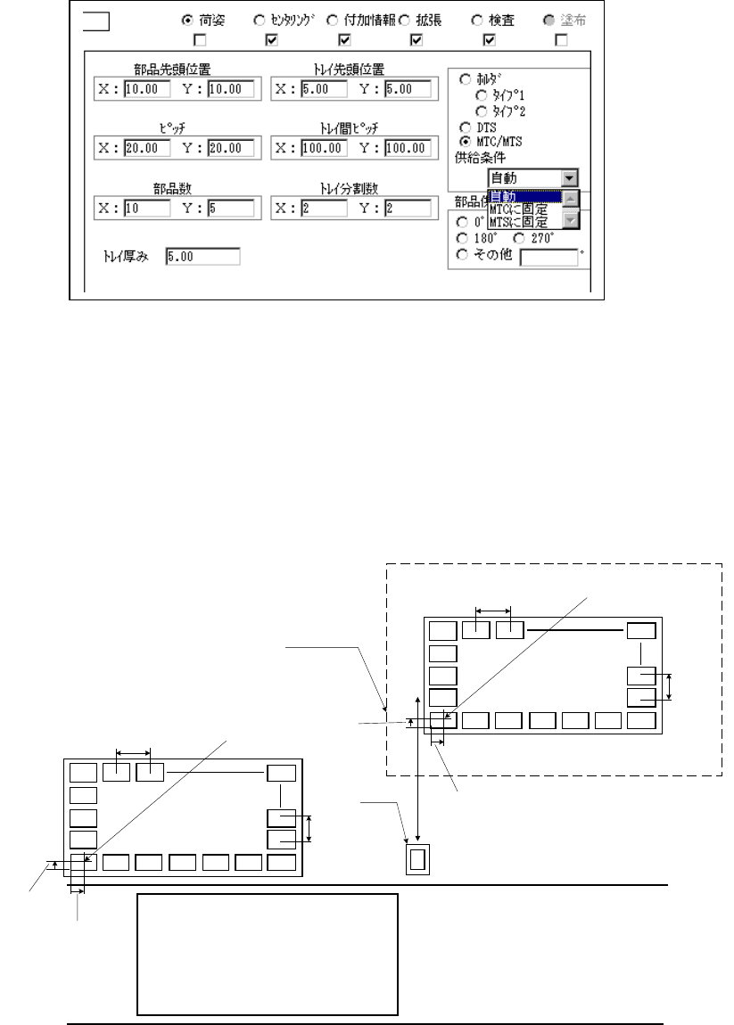
① 部品先頭位置
トレイ部品の先頭部品の部品中心位置(X、Y)をトレイ外形からの距離で入力します。
② ピッチ
部品間ピッチ(ピッチ X、ピッチ Y)を入力します。
③ 部品数
横方向、縦方向の部品数(Xn、Yn)を入力します。
Yn
Yn
Xn
Xn
トレイホルダ、 DTS、 MTS、 (TR5)
ピッチ X
ピッチ Y
先頭部品
シャトル
ピッチ X
先頭部品
搬送路
基板
機械前側
ピッチ
Y
部品先頭位置 X
部品先頭位置 Y
部品先頭
位置 X
部品先頭
位置 Y
MTC
(TR4,TR5)
図
図図
図 4-7-3-1
部品先頭位置、ピッチ、部品数図
部品先頭位置、ピッチ、部品数図部品先頭位置、ピッチ、部品数図
部品先頭位置、ピッチ、部品数図

4 - 70
④ トレイ先頭位置
ホルダ内でのトレイの基準位置(X、Y)をトレイ突き当てからの距離で入力します。
⑤ トレイ間ピッチ
ホルダ内でのトレイ間ピッチ(ピッチX、ピッチY)を入力します。
⑥ トレイ分割数
ホルダ内でのトレイの横方向の分割数(Xn)、縦方向の分割数(Yn)を入力します。
⑦ トレイ厚み
部品を含むトレイの底面から上面までの高さTを入力します。
図
図図
図 4-7-3-2
トレイ厚み図
トレイ厚み図トレイ厚み図
トレイ厚み図
⑧ 供給装置
供給装置をラジオボタンで設定します。
吸着データが複数入力してある部品の供給をトレイ、DTSまたはMTC/MTSに変更
した場合は、下記のダイアログが表示されます。
MTC/MTSを指定した場合、供給条件をコンボボックスで設定します。供給条件は、
最適化分割、吸着データのステージ指定時供給条件を参照します。
供給条件
自動 MTC/MTSのどちらにも使用できます。
MTCに固定 MTCのみの使用となります。
MTSに固定 MTSのみの使用となります。
⑨ 部品供給角度
部品の供給角度をラジオボタンで設定します。
その他の部品を選択した場合は、エディットフィールドに角度を入力して下さい。
(0°∼359°)
・
Xn
Yn
Y
X
ピッチX
ピッチY
部品
トレイ
ケース1
ケース1ケース1
ケース1 ケース2
ケース2ケース2
ケース2
T
T

4 - 71
部品供給角度は、部品が供給される角度が、搭載角度0°のときに比べて何度になってい
るかを表します。テープ部品は部品データにおいて、供給方向を指定しているため、吸着
データで供給角度は指定しません。
反時計回りを+とします。
フロント側、リア側、MTC、MTSという供給位置には影響されません。
・搭載角度0°
・搭載角度0°・搭載角度0°
・搭載角度0°
図
図図
図 4-7-3-3-搭載角度
搭載角度搭載角度
搭載角度0°
0°0°
0°
・ 供給角度の設定例
供給角度の設定例供給角度の設定例
供給角度の設定例
スティックフィーダ
スティックフィーダスティックフィーダ
スティックフィーダ
機械前側図
機械前側図機械前側図
機械前側図
図
図図
図 4-7-3-4
供給角度説明例図
供給角度説明例図供給角度説明例図
供給角度説明例図
MTC (TR4、 TR6)、
MTS (TR5)
QFP
0°
トレイホルダ
QFP
0°
スティックフィーダ
SOP
QFJ
270° 0°
SOP SOP SOP QFJ QFJ
0° 90° 270° 0° 90°
部品供給角度の定義
部品供給角度の定義部品供給角度の定義
部品供給角度の定義
QFP QFP(PLCC) SOP TSOP-1 TSOP-2 コネクタ
:供給角度を決めるための
視点の方向