KE-3010A_KE-3020VA_KE-3020VRA-Rev14PDFA - 第136页
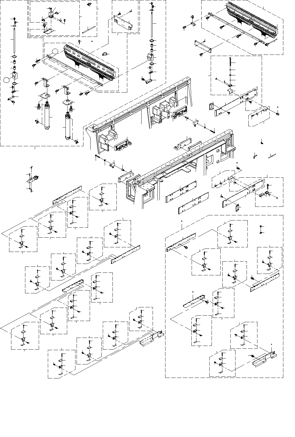
- 129 - 65. M CHANGER TRUCK UNIT COMPONENTS メカ交換台車ユニット関係 25 10 17 21 21 22 22 18 19 20 1 14 12 13 11 23 24 1 92 91 91 93 94 93 94 95 95 96 97 79 79 97 A 78 96 92 98 99 10 0 10 2 10 3 10 4 10 6 11 4 10 5 10 8 10 8 11 3 10…

- 128 -
NOTE( 注記 ) #01....TYPE E LIFTER 電動リフタ仕様
#02....ME BANK COMMON USE SPECIFICATION メカ電動バンク共用仕様
REF.NO NOTE PART NO D E S C R I P T I O N
品 名
Qty
1 401-47449 B_LIF_FRAME_R
バンクリフタフレームR
1
2
#02
401-10119 B_LIF_FRAME_R
バンクリフタフレームR
1
3 PC-0152030-00 SPEED CONTROLLER
スピードコントローラ
2
4 400-93854 CYLINDER SCREW M8 L=125
シリンダねじ M8 L=125
4
5 SL-6083092-TN SCREW M8 L=30
座金付き六角穴ボルト M8 L=30
8
6 401-47453 LIFTER_SHAFT
リフタシャフト
4
7
#02
400-93838 LIFTER_SHAFT
リフタシャフト
4
8 SM-6051602-TN SCREW
六角穴ボルト
8
9 401-10295 LIF CYL SHAFT
リフタシリンダシャフト
1
10 E2622-729-000 LIFTER THRUST COLLAR
リフタスラストカラー
1
11 SM-1062052-TP SCREW M6 L=20
六角穴ボルト M6 L=20
1
12 401-47452 BANK_LIFTER_R
バンクリフタR
1
13 400-93840 BANK LOCATE PIN C2
バンクロケートピンC2
1
14 NM-6080003-SC NUT M8X1.25 TYPE3
六角ナット M8X1.25 3種
1
15 WS-0820002-KN SPRING WASHER M8
ばね座金 M8
1
16 SM-8060552-TP SCREW M6 L=5
止めねじ
2
17 401-47448 B_LIF_FRAME_L
バンクリフタフレームL
1
18
#02
401-10117 B_LIF_FRAME_L
バンクリフタフレームL
1
19 PC-0152030-00 SPEED CONTROLLER
スピードコントローラ
2
20 400-93854 CYLINDER SCREW M8 L=125
シリンダねじ M8 L=125
4
21 SB-8200003-00 BEARING
転がり軸受
2
22 SM-6051602-TN SCREW
六角穴ボルト
8
23
#02
SM-6051002-TN SCREW
六角穴ボルト
16
24 E2622-729-000 LIFTER THRUST COLLAR
リフタスラストカラー
1
25 SM-1062052-TP SCREW M6 L=20
六角穴ボルト M6 L=20
1
26 401-47451 BANK_LIFTER_L
バンクリフタL
1
27 SM-8060552-TP SCREW M6 L=5
止めねじ
2
28 400-93839 BANK LOCATE PIN B2
バンクロケートピンB2
1
29 NM-6080003-SC NUT M8X1.25 TYPE3
六角ナット M8X1.25 3種
1
30 WS-0820002-KN SPRING WASHER M8
ばね座金 M8
1
31 400-93849 SENSOR PLATE
センサプレート
1
32 SM-3040652-TN SCREW M4 L=6
丸ねじ M4 L=6
2
33 400-92511 SWITCH D3DC-3
スイッチD3DC−3
1
34
#01
401-47455 E_BANK_SUPPORT_UNIT
Eバンクサポート組
1
35 400-94347 CYLINDER CM2B40-75
シリンダ CM2B40−75
(2)
36 PC-0152030-00 SPEED CONTROLLER
スピードコントローラ
(4)
37 401-47479 CYLINDER_BR
シリンダブラケット
(4)
38 400-93842 LIFTER_SHAFT_HEAD
リフタシャフトヘッド
(2)
39 SL-6061292-TN SCREW M6 L=12
座金付き六角穴ボルト M6 L=12
(8)
40 PA-6307503-00 AIR CYLINDER
エアシリンダ
1
41 SB-8200003-00 BEARING
転がり軸受
2
42 PA-6307503-00 AIR CYLINDER
エアシリンダ
1
43 401-10295 LIF CYL SHAFT
リフタシリンダシャフト
1
44
#02
401-60005 E BANK SUPPORT UNIT
E バンクサポートユニット
1
45 400-94347 CYLINDER CM2B40-75
シリンダ CM2B40−75
(2)
46 PC-0152030-00 SPEED CONTROLLER
スピードコントローラ
(4)
47 401-47479 CYLINDER_BR
シリンダブラケット
(3)
48 401-11180 CYLINDER_BR_U
シリンダブラケット_U
(1)
49 400-93842 LIFTER_SHAFT_HEAD
リフタシャフトヘッド
(2)
50 SL-6061292-TN SCREW M6 L=12
座金付き六角穴ボルト M6 L=12
(8)
51
#02
401-14146 BANK_VALVE_ME_ASM
バンクバルブME組
1
52 401-11181 BANK_VALVE_BR_B
バンクバルブブラケットB
(1)
53 SL-6040892-TN SCREW M4 L=8
座金付き六角穴ボルト M4 L=8
(2)
54 PV-0105051-00 MECHANICAL VALVE
メカニカル バルブ
(1)
55 PJ-3040405-05 ELBOW
エルボユニオン
(2)
56 SL-6042592-TN SCREW M4 L=25
座金付き六角穴ボルト M4 L=25
(2)
57 HX-0029400-00 FIXED BASE
固定ベース
(1)
58 SM-4040801-SC SCREW M4X0.7 L=8
なべ小ねじ M4X0.7 L=8
(1)

- 129 -
65.M CHANGER TRUCK UNIT COMPONENTS
メカ交換台車ユニット関係
25
10
17
21
21
22
22
18
19
20
1
14
12
13
11
23
24
1
92
91
91
93
94
93
94
95
95
96
97
79
79
97
A
78
96
92
98
99
100
102
103
104
106
11 4
105
108
108
113
109
11 0
11 2
80
81
82
82
82
82
83
83
84
84
85
88
A
86
86
85
86
86
83
83
87
90
89
87
88
90
89
60
59
61
2
4
6
5
7
3
120
15
64
66
63
70
62
69
68
65
67
66
8
9
75
73
72
74
71
77
7
6
5
4
3
120
2
76
16
8 9
11 8
11 7
11 9
11 6
11 5
41
45
44
43
42
35
39
38
36
37
39
38
35
36
37
40
45
41
42
43
44
34
33
37
42
43
39
45
44
41
35
31
28 30
32
39
35
36
38
38
36
37
42
43
44
45
32
29 30
26 27
31
56
55
54
53
49
48
50
50
48
47
53
56
57
51
55
54
49
49
48
50
47
54
55
56
57
53
51
50
48
49
57
54
55
56
47
53
47
51
50
48
49
56
55
54
49
48
50
53
54
55
56
53
47
47
50
48
49
54
55
53
56
47
50
49
48
108
111
107
53
57
56
55
54
101
124
121
123
122
124
121
122
32
32
40
40
40
46
46
46
46
41
58
52
58
52
58
52
58
52
51
52
47
58
52
58
57
51
57
52
58
52
58
51
57
51
57
125
126
123
125
126
51

- 130 -
NOTE( 注記 ) #01....FOR 3010A 3010 A 用
#02....FOR 3020VA,3020VRA 3020 VA,3020 VRA 用
#03....ME BANK COMMON USE SPECIFICATION メカ電動バンク共用仕様
#04....ME BANK COMMON USE SPECIFICATION メカ電動バンク共用仕様
(FRONT OF THE MACHINE) (マシン前側)
#05....ME BANK COMMON USE SPECIFICATION メカ電動バンク共用仕様
(REAR OF THE MACHINE) (マシン後側)
REF.NO NOTE PART NO D E S C R I P T I O N
品 名
Qty
1 400-93850 ROLLER GUIDE F
ローラガイドF
2
2 400-93851 ROLLER GUIDE R
ローラガイドR
2
3 E2777-721-0A0 BANK STOPPER ASM.
バンクストッパ組
2
4 E2777-721-000 BANK STOPPER
バンクストッパ
(1)
5 E2778-721-000 STOPPER RUBBER
ストッパゴム
(1)
6 E2779-721-000 STOPPER COLLAR
ストッパカラー
(2)
7 SL-6031292-TN SCREW M3 L=12
座金付き六角穴ボルト M3 L=12
(2)
8 SL-6051042-TN SCREW
座金付き六角穴ボルト
4
9
#03
SL-6051442-TN BOLT
座金付き六角穴ボルト
4
10 400-00598 DRIVER BRACKET SUPPORT C
ドライバブラケットサポートC
2
11 SL-6051042-TN SCREW
座金付き六角穴ボルト
4
12 SL-6051242-TN SCREW
座金付き六角穴ボルト
4
13 SL-6051092-TN SCREW M5 L=10
座金付き六角穴ボルト M5 L=10
2
14 400-26804 DS CONNECTOR BRACKET
DSコネクタブラケット
1
15 400-93852 ROLLER GUIDE SUPPORT FL
ローラガイドサポートFL
1
16 400-93853 ROLLER GUIDE SUPPORT FR
ローラガイドサポートFR
1
17 400-93831 DRIVE CYLINDER UNIT
ドライブシリンダユニット
1
18 400-93843 DRIVER SUPPORT
ドライバサポート
(1)
19 400-00575 DRIVE CYLINDER L
ドライブシリンダL
(1)
20 400-00576 DRIVE CYLINDER R
ドライブシリンダR
(1)
21 SL-6051292-TN SCREW M5 L=12
座金付き六角穴ボルト M5 L=12
(2)
22 SL-6052592-TN SCREW M5 L=25
座金付き六角穴ボルト M5 L=25
(6)
23 PJ-3080600-03 UNION Y
ユニオンワイ
(1)
24 BT-0600400-EC URETHANE TUBE BLUE 6X4
ポリウレタン チューブ 青 6X4
(0.8)
25 SM-4861001-SC SCREW M2.6 L=10
なべ小ねじ M2.6 L=10
4
26
#02
401-60137 FEEDER_SENS_ASM_20A_ME
フィーダセンサ組20Aメカ電動
1
27
#01
401-60136 FEEDER_SENS_ASM_10A_ME
フィーダセンサ組10Aメカ電動
1
28
#02
401-60011 SENSOR_BR_F_ME
センサブラケットF_ME
(1)
29
#02
401-60013 SENSOR_BR_FR_ME
センサブラケットFR_ME
(1)
30
#01
401-60011 SENSOR_BR_F_ME
センサブラケットF_ME
(2)
31 401-60012 SENSOR_BR_R_ME
センサブラケットR_ME
(2)
32 SL-6051292-TN SCREW M5 L=12
座金付き六角穴ボルト M5 L=12
(8)
33
#02
HX-0029400-00 FIXED BASE
固定ベース
(2)
34
#02
SM-4040601-SC SCREW M4X0.7 L=6
なべ小ねじ M4X0.7 L=6
(2)
35 401-60006 FEEDER SENSOR RECEIVER ASM
フィーダセンサ受光組
(4)
36 401-29057 SEPARATE SENSOR RECEIVER ASM
SEPARATE センサ受光組
(1)
37 400-93991 S_BR_B
センサ_ブラケット_B
(1)
38 400-93993 NUT_PLATE
ナット_プレート
(1)
39 SL-6030892-TN SCREW M3 L=8
座金付き六角穴ボルト M3 L=8
(2)
40 SM-6851602-TN SCREW M2.5X16
六角穴ボルト M2.5X16
(2)
41 401-60007 FEEDER SENSOR EMISSION ASM
フィーダセンサ投光組
(4)
42 401-29058 SEPARATE SENSOR EMISSION ASM
SEPARATE センサ投光組
(1)
43 400-93991 S_BR_B
センサ_ブラケット_B
(1)
44 400-93993 NUT_PLATE
ナット_プレート
(1)
45 SL-6030892-TN SCREW M3 L=8
座金付き六角穴ボルト M3 L=8
(2)
46 SM-6851602-TN SCREW M2.5X16
六角穴ボルト M2.5X16
(2)
47
#03
401-60006 FEEDER SENSOR RECEIVER ASM
フィーダセンサ受光組
8
48 401-29057 SEPARATE SENSOR RECEIVER ASM
SEPARATE センサ受光組
(1)
49 400-93991 S_BR_B
センサ_ブラケット_B
(1)
50 400-93993 NUT_PLATE
ナット_プレート
(1)
51 SL-6030892-TN SCREW M3 L=8
座金付き六角穴ボルト M3 L=8
(2)
52 SM-6851602-TN SCREW M2.5X16
六角穴ボルト M2.5X16
(2)
53
#03
401-60007 FEEDER SENSOR EMISSION ASM
フィーダセンサ投光組
8
54 401-29058 SEPARATE SENSOR EMISSION ASM
SEPARATE センサ投光組
(1)
55 400-93991 S_BR_B
センサ_ブラケット_B
(1)
56 400-93993 NUT_PLATE
ナット_プレート
(1)
57 SL-6030892-TN SCREW M3 L=8
座金付き六角穴ボルト M3 L=8
(2)
58 SM-6851602-TN SCREW M2.5X16
六角穴ボルト M2.5X16
(2)
59
#03
PJ-3080600-03 UNION Y
ユニオンワイ
7
60
#03
PJ-3040600-01 REDUCER ELBOW
レデュ−サエルボ
1
61
#03
BT-0600400-EC URETHANE TUBE BLUE 6X4
ポリウレタン チューブ 青 6X4
18
62
#03
400-94345 BANK_VALVE_L_ASM
バンクバルブL組
1
63 400-94341 BANK_VALVE_BRACKET
バンクバルブブラケット
(1)
64 PV-0105050-00 MECHANICAL VALVE
メカニカル バルブ
(1)
65 SL-6042592-TN SCREW M4 L=25
座金付き六角穴ボルト M4 L=25
(2)
66 PJ-3040405-05 ELBOW
エルボユニオン
(2)
67 400-94342 VALVE_SPACER
バルブスペーサ
(2)
68 WP-0430801-SC WASHER M4
平座金 M4
(2)
69 WS-0410002-KN SPRING WASHER M4
ばね座金 M4
(2)
70 SM-1051052-TN PLATE SCREW M5 L=10
皿ねじ M5 L=10
(2)
71
#03
400-94344 BANK_VALVE_R_ASM
バンクバルブR組
1
72 400-94341 BANK_VALVE_BRACKET
バンクバルブブラケット
(1)
73 PV-0105050-00 MECHANICAL VALVE
メカニカル バルブ
(1)
74 SL-6042592-TN SCREW M4 L=25
座金付き六角穴ボルト M4 L=25
(2)
75 PJ-3040405-05 ELBOW
エルボユニオン
(1)
76 SM-1051052-TN PLATE SCREW M5 L=10
皿ねじ M5 L=10
(2)
77 PX-0505010-00 SILENCER
消音器
(1)
78
#03
401-14145 DRIVE CYLINDER LIFT UNIT
ドライブシリンダリフトユニット
1
79 PC-0152030-00 SPEED CONTROLLER
スピードコントローラ
(4)
80 400-93844 DC GUIDE BLOCK L
ドライブシリンダガイドブロックL
(1)
81 400-93845 DC GUIDE BLOCK R
ドライブシリンダガイドブロックR
(1)
82 SB-7100002-00 SLIDE BEARING
スライド軸受
(4)
83 RC-1900002-KP C RING
C形止め輪
(4)
84 401-10300 DC GUIDE SHAFT
ドライブシリンダガイドシャフト
(2)
85 401-10301 SHAFT CLAMP BR
シャフトクランプブラケット
(2)
86 SL-6040892-TN SCREW M4 L=8
座金付き六角穴ボルト M4 L=8
(6)
87 401-10294 SHAFT CLAMP BR B
シャフトクランプブラケットB
(2)
88 401-10293 SHAFT CLAMP BR A
シャフトクランプブラケットA
(2)
89 SL-6051292-TN SCREW M5 L=12
座金付き六角穴ボルト M5 L=12
(4)
90 SL-6040892-TN SCREW M4 L=8
座金付き六角穴ボルト M4 L=8
(4)
91 SL-6052092-TN SCREW M5 L=20
座金付き六角穴ボルト M5 L=20
(2)
92 SL-6051292-TN SCREW M5 L=12
座金付き六角穴ボルト M5 L=12
(2)
93 400-71364 DRV SYL SPT
ドライブシリンダサポート
(2)
94 SL-6051492-TN BOLT
座金付き六角穴ボルト
(4)
95 401-10292 DRV CYL BR
ドライブシリンダブラケット
(2)
96 SL-6082092-TN SCREW M8 L=20
座金付き六角穴ボルト M8 L=20
(4)
97 400-94348 CYLINDER CDM2B40-200
シリンダ CDM2B40−200
(2)
98
#04
400-92513 DRIVE CYL SENSOR F ASM
ドライブシリンダセンサFケーブル組
1
99
#05
400-92514 DRIVE CYL SENSOR R ASM
ドライブシリンダセンサRケーブル組
1
100
#03
400-93834 BAND BM2-040
バンド BM2−040
1
101
#03
400-94333 DC CON BR F ASM
コネクタブラケットフロント組
1
102 400-94335 DC CON BR
コネクタブラケット
(1)
103 SM-4051001-SC SCREW M5 L=10
なべ小ねじ M5X0.8 L=10
(2)
104 SM-4861001-SC SCREW M2.6 L=10
なべ小ねじ M2.6 L=10
(4)
105
#03
401-60135 BANK_AIR_PARTS_ME
バンクエアーパーツメカ電動
4
106 PJ-3080600-03 UNION Y
ユニオンワイ
(5)
107 401-61173 AIR_OPE_VALVE_ASM
エアオペレーションバルブ組
(2)
108 PJ-3040651-03 SWIVEL ELBOW
自在エルボ
(3)
109 PX-0551040-00 SILENCER
サイレンサ
(1)
110 SM-6040802-TN SCREW M4X0.7 L=8
六角穴ボルト M4X0.7 L=8
(2)
111 401-60128 AIR_OP_VALVE_BR
エアーオペレーションバルブブラケット
(1)
112 400-94349 AIR OPE VALVE
エアオペレートバルブ
(1)
113 SL-6061492-TN SCREW M6 L=14
座金付き六角穴ボルト M6 L=14
(4)
114 BT-0600400-EC URETHANE TUBE BLUE 6X4
ポリウレタン チューブ 青 6X4
(66)
115
#03
PV-0151170-A0 SELECTOR
セレクタ
1
116
#03
400-94346 CHECK_VALVE
チェックバルブ
1
117
#03
PJ-3010651-03 HALF UNION 6XPT1/8
ハ−フユニオン
2
118
#03
PJ-3040651-03 SWIVEL ELBOW
自在エルボ
2
119
#03
PX-0551040-00 SILENCER
サイレンサ
1
120 SM-1051052-TN PLATE SCREW M5 L=10
皿ねじ M5 L=10
12
121
#03
400-02287 B SW CABLE ASM(EN)
B SWケーブル組(EN)
2
122
#03
SM-4042501-SC SCREW M4X0.7 L=25
なべ小ねじ M4X0.7 L=25
4
123
#03
WP-0430801-SC WASHER M4
平座金 M4
4
124
#03
HX-0033900-00 STUD
基板パーツ
4
125
#03
401-09099 BANK_SUP_B_L
バンク_サポート_B_L
2
126
#03
401-09100 BANK_SUP_B_R
バンク_サポート_B_R
2