NPM-W2 - 第155页
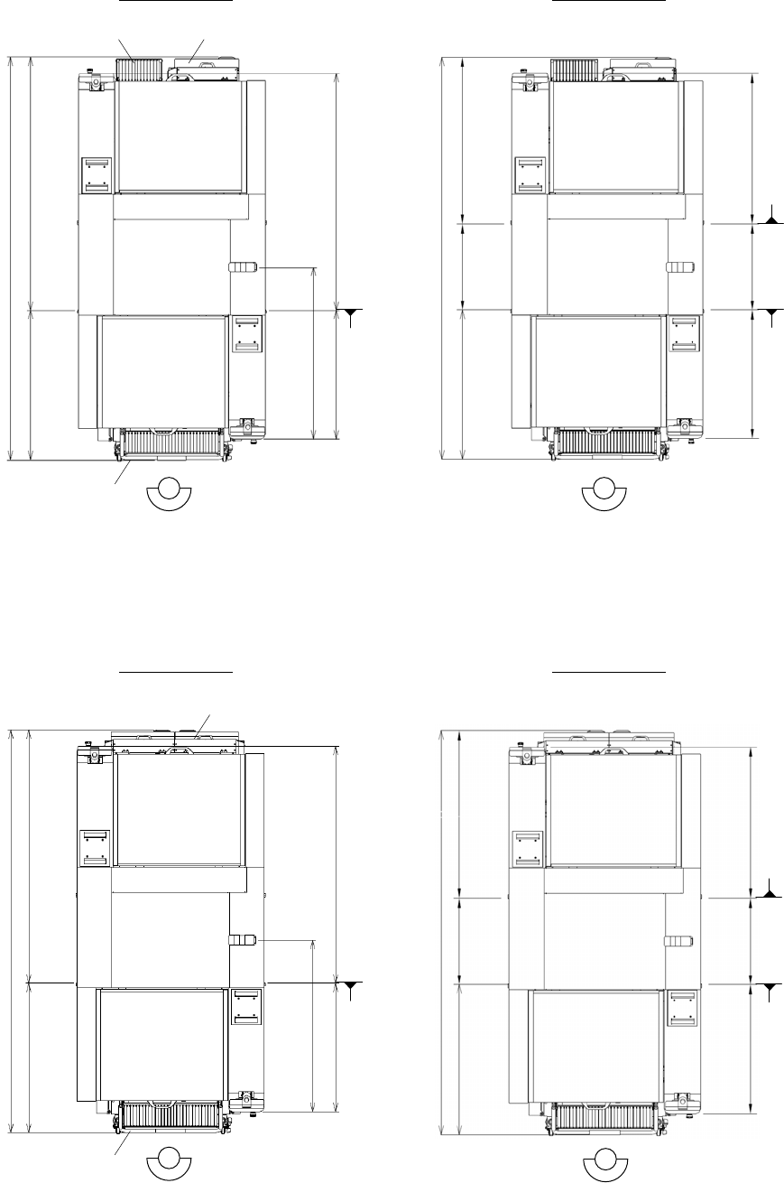
NPM-W2 2018.0416 - 149 - ( 单位 : mm) ■ 单式托盘供料器连接时 ■ 双式托盘供料器连接时 1 616 954 1 095.5 820.5 1 51 1.5 2 570 1 616 954 1 095.5 820.5 1 51 1.5 单式托盘供料器 13 站供料器座 双式托盘供料器 交换台车 2 570 前 侧 交换台车 前 侧 前 侧 前 侧 1 055.5 943.5 2 570 571 810 9…

NPM-W2 2018.0416
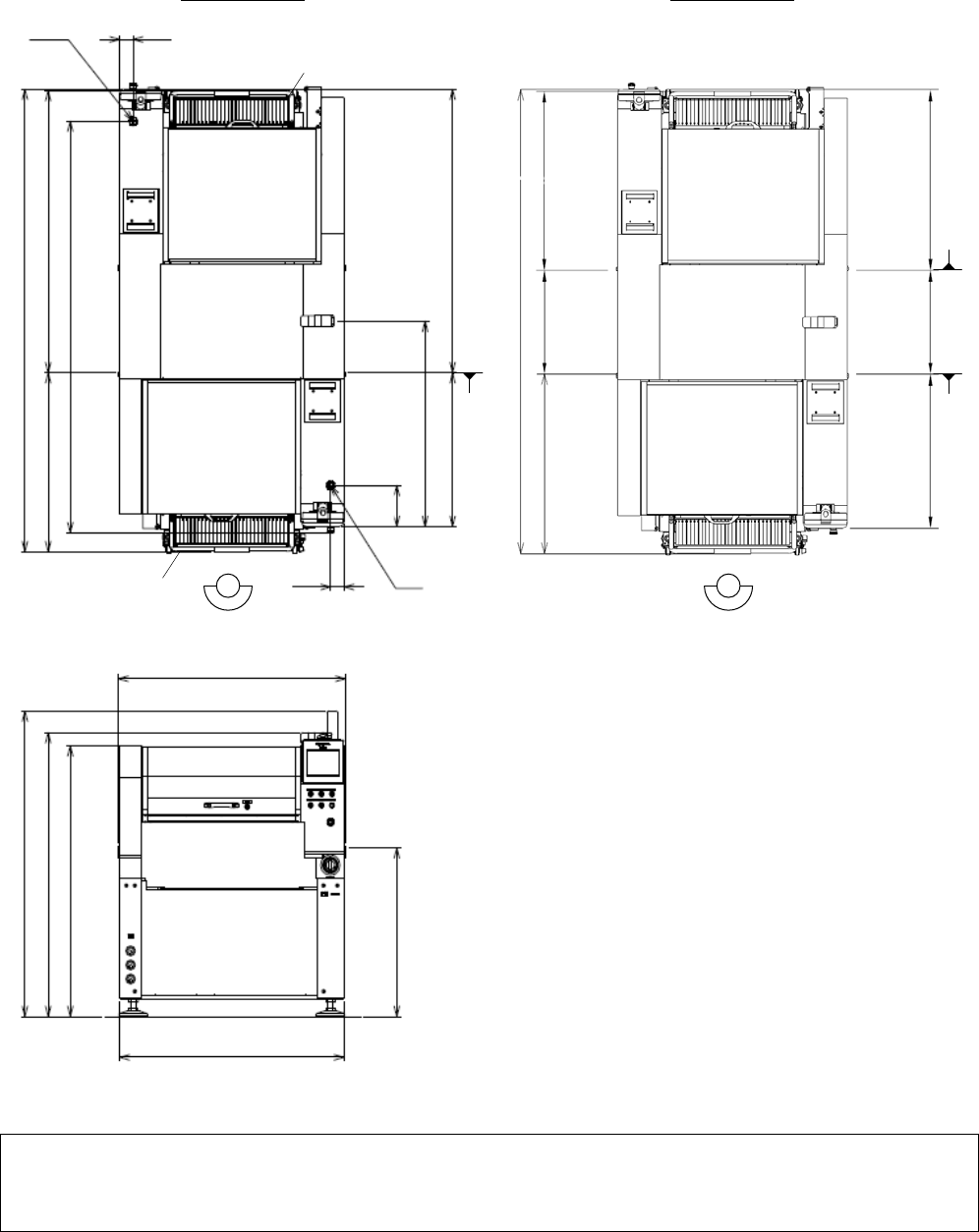
- 148 -
13.
尺寸图
(单位: mm)
■ 交换台车连接时
Remarks
上述示图的缩小比例与实际机器在严格上讲,并不完全一致。
在研讨生产线构成和尺寸时,请另行索取资料。
本机下部如有设置通风道等时,请确保与主体间空隙保持 40 mm 以上。
76
前 侧
1 629
1 514
1 444
900
1 280 (传送带长度)
1 265 (罩外形)
电源
Air
76
2 465
954
2 194
1 504
220
1 095.5
820.5 1 511.5
交换台车
交换台车
前 侧
2 465
810 951 571
571 943.5 943.5
单轨传送带规格 双轨传送带规格
基板传送基准
基板传送基准
(前侧轨道)
基板传送基准
(后侧轨道)
基板传送高度

NPM-W2 2018.0416
- 149 -
(单位: mm)
■ 单式托盘供料器连接时
■ 双式托盘供料器连接时
1 616 954
1 095.5
820.5 1 511.5
2 570
1 616 954
1 095.5
820.5 1 511.5
单式托盘供料器13 站供料器座
双式托盘供料器
交换台车
2 570
前 侧
交换台车
前 侧
前 侧
前 侧
1 055.5 943.5
2 570
571
810 951 571 810 951 571
1 055.5 943.5 571
2 570
单轨传送带规格 双轨传送带规格
单轨传送带规格 双轨传送带规格
基板传送基准
基板传送基准
(前侧轨道)
基板传送基准
(后侧轨道)
基板传送基准
基板传送基准
(前侧轨道)
基板传送基准
(后侧轨道)

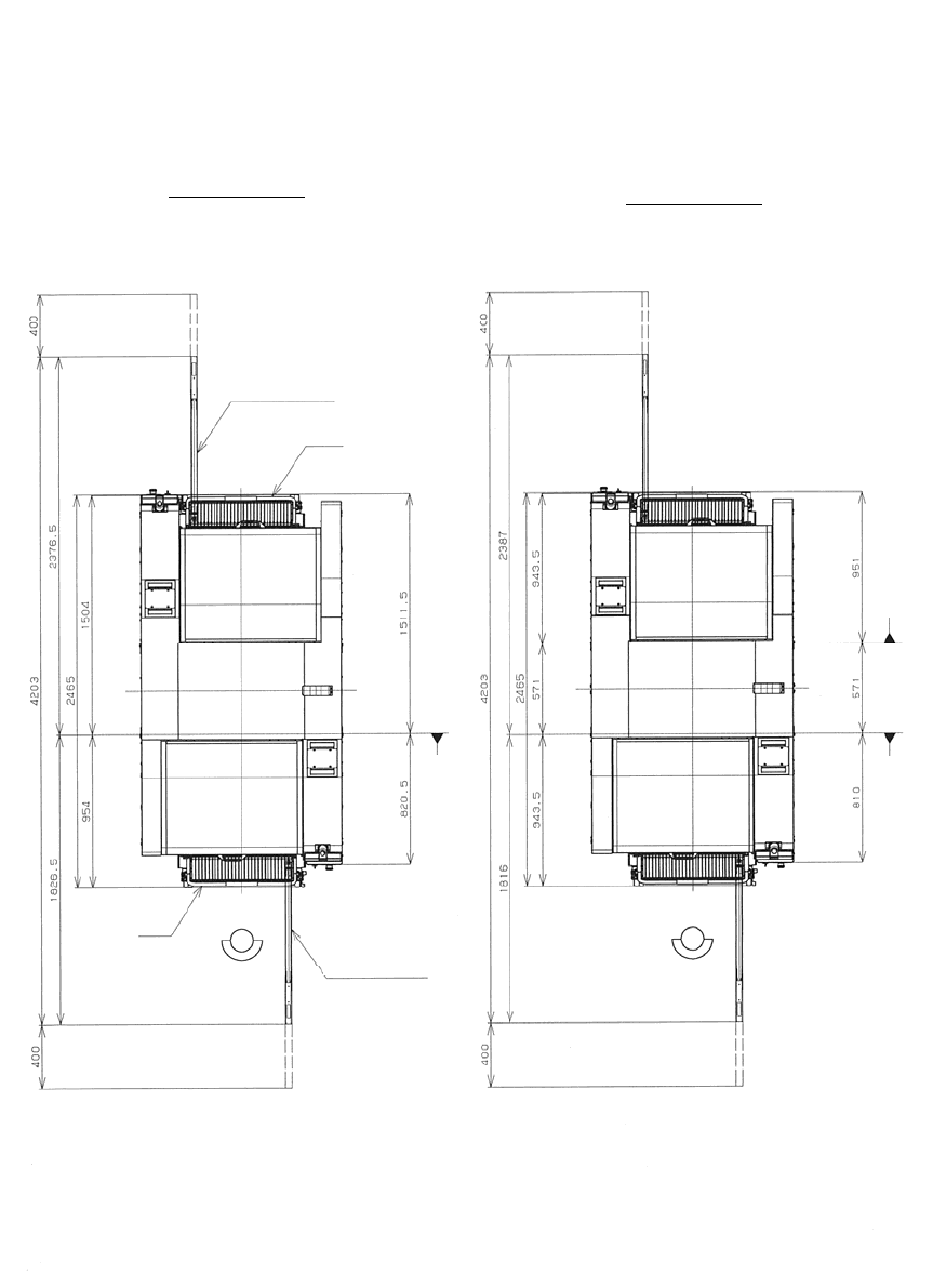
NPM-W2 2018.0416
- 150 -
(単位: mm)
■ 交换台车连接时(包括堆叠杆状供料器)
※ 为了取出和设置供料器,需要以下空间。
・从尾端顺序取出或设置的情况,如上图所示,需要 400 mm 的空间。
・若要从两侧都邻接供料器的位置取出中间的供料器,需要供料器全长的距离,因此需要最多 1 600mm 的空间。
单轨传送带规格
双轨传送带规格
前 侧
前 侧
堆叠杆状供料器
堆叠杆状供料器
交换台车
交换台车
基板传送基准
基板传送基准
(前侧轨道)
基板传送基准
(后侧轨道)